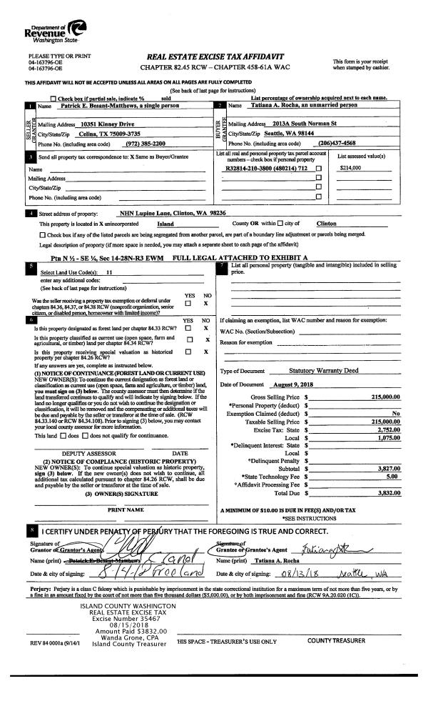
Property
Account |
| Property ID: | 363948 | Abbreviated Legal Description: | ROLL HILL LOT 7 BLK 13 & N25' OF W55' OF LOT 4 BLK 13 TGW EZ AF#92013877 |
| Geographic ID: | S8050-00-13007-0 | Agent Code: | |
| Type: | Real | | |
| Tax Area: | 330 - APPRAISER-Cpvl Schl Dist, Special Dist, improved & less than 1 acre | Land Use Code | 11 |
| Open Space: | N | DFL | N |
| Historic Property: | N | Remodel Property: | N |
| Multi-Family Redevelopment: | N | | |
| Township: | | Section: | |
| Range: | |
Location |
| Address: | 1723 STEPHEN ST OAK HARBOR, WA 98277 | Mapsco: | |
| Neighborhood: | Cycle 2 | Map ID: | 146 |
| Neighborhood CD: | 2 |
Owner |
| Name: | HAMBURG JTWROS, MILES MERRILL | Owner ID: | 294995 |
| Mailing Address: | WILLIAM MERRILL HAMBURG, JTWROS LORETTA MARIE HAMBURG, JTWROS 1049 N SEACLIFF LN COUPEVILLE, WA 98239 | % Ownership: | 100.0000000000% |
| | | Exemptions: | |
Taxes and Assessment Details
Values
| (+) Improvement Homesite Value: | + | $0 | |
| (+) Improvement Non-Homesite Value: | + | $406,726 | |
| (+) Land Homesite Value: | + | $0 | |
| (+) Land Non-Homesite Value: | + | $220,000 | |
| (+) Curr Use (HS): | + | $0 | $0 |
| (+) Curr Use (NHS): | + | $0 | $0 |
| | | -------------------------- | |
| (=) Market Value: | = | $626,726 | |
| (–) Productivity Loss: | – | $0 | |
| | | -------------------------- | |
| (=) Subtotal: | = | $626,726 | |
| (+) Senior Appraised Value: | + | $0 | |
| (+) Non-Senior Appraised Value: | + | $626,726 | |
| | | -------------------------- | |
| (=) Total Appraised Value: | = | $626,726 | |
| (–) Senior Exemption Loss: | – | $0 | |
| (–) Exemption Loss: | – | $0 | |
| | | -------------------------- | |
| (=) Taxable Value: | = | $626,726 | |
Taxing Jurisdiction
| Owner: | HAMBURG JTWROS, MILES MERRILL | | |
| % Ownership: | 100.0000000000% | | |
| Total Value: | $626,726 | | |
| Tax Area: | 330 - APPRAISER-Cpvl Schl Dist, Special Dist, improved & less than 1 acre |
| CF | Conservation Futures | 0.0316035091 | $626,726 | $626,726 | $19.81 | | |
| CEM2 | Cemetery #2 | 0.0095056933 | $626,726 | $626,726 | $5.96 | | |
| FIRE2 | Fire & Rescue Dist #2 N Whidbey GEN | 0.5475949600 | $626,726 | $626,726 | $343.19 | | |
| HOBOND | Hospital BOND | 0.1910887512 | $626,726 | $626,726 | $119.76 | | |
| HOGEN | Hospital GEN | 0.3902502903 | $626,726 | $626,726 | $244.58 | | |
| CE | County Current Expense | 0.3708482477 | $626,726 | $626,726 | $232.42 | | |
| CR | County Roads | 0.4584763726 | $626,726 | $626,726 | $287.34 | | |
| ISLANDEMS | Hospital GEN (EMS) | 0.5000000000 | $626,726 | $626,726 | $313.36 | | |
| LIB | Library Sno-Isle GEN | 0.3153421757 | $626,726 | $626,726 | $197.63 | | |
| LIBCAP | Library Sno-Isle BOND (Cap Fac Imp Area) | 0.0543427938 | $626,726 | $626,726 | $34.06 | | |
| POCOUP | Port of Coupeville GEN | 0.1093371703 | $626,726 | $626,726 | $68.52 | | |
| POCOUPIDD | Port of Coupeville IDD | 0.3409740022 | $626,726 | $626,726 | $213.70 | | |
| COUPSDTECH | School 204 CP (TECH) | 0.7545480007 | $626,726 | $626,726 | $472.89 | | |
| SCH204MO | School 204 Enrichment | 0.6716186034 | $626,726 | $626,726 | $420.92 | | |
| ST | State School | 1.3035497053 | $626,726 | $626,726 | $816.97 | | |
| ST2 | State School Part 2 | 0.8169543533 | $626,726 | $626,726 | $512.01 | | |
| | Total Tax Rate: | 6.8660346289 | | | | | |
| | | | | Taxes w/Current Exemptions: | $4,303.12 | | |
| | | | | Taxes w/o Exemptions: | $4,303.12 | | |
Improvement / Building
| Improvement #1: | RESIDENTIAL | State Code: | Y | 2407.0 sqft | Value: | $406,726 |
| Bathrooms: | 2 | Bedrooms: | 3 | | Ceiling: | DRY WALL SPRAYED | Exterior Wall/Cover: | VINYL | | Floor Covering: | CARPET/VINYL 80-20 | Floor Structure: | WOOD W/SUBFLOOR | | Foundation: | CONCRETE | Heating: | FHA ELECTRIC | | Interior Finish: | DRYWALL PAINT | Plumbing Fixture Cnt: | 10 | | Roof Slope: | 12" IN 12" | Roof Structure/Cover: | BEAM ASPHALT |
|
| | Type | Description | Class CD | Sub Class CD | Year Built | Area |
| | BAS | BASE/MAIN FLOOR | 4 | 0 | 1981 | 1595.0 |
| | UB8 | BASEMENT UNFINISHED 8" | 4 | 0 | 1981 | 180.0 |
| | OP3 | OPEN PORCH W/ROOF | 4 | 0 | 1981 | 144.0 |
| | AGR | ATTACHED GARAGE | 4 | 0 | 1981 | 264.0 |
| | UPH | HALF STORY | 4 | 0 | 1981 | 812.0 |
| | ATU | ATTIC UNFINISHED | 4 | 0 | 1981 | 224.0 |
| | OP1 | OPEN PORCH SLAB | 4 | 0 | 1981 | 916.8 |
Sketch
| No sketches available for this property. |
Property Image
Land
| 1 | 15 | SQ (12001-21780) | 0.5400 | 23522.40 | 0.00 | 0.00 | 1.00 | $220,000 | $0 |
Roll Value History
| 2026 | N/A | N/A | N/A | N/A | N/A |
| 2025 | $406,726 | $220,000 | $0 | $626,726 | $626,726 |
| 2024 | $397,461 | $210,000 | $0 | $607,461 | $607,461 |
| 2023 | $403,039 | $220,000 | $0 | $623,039 | $623,039 |
| 2022 | $370,013 | $220,000 | $0 | $590,013 | $590,013 |
| 2021 | $326,151 | $180,000 | $0 | $506,151 | $506,151 |
| 2020 | $317,130 | $140,000 | $0 | $457,130 | $457,130 |
| 2019 | $239,657 | $170,000 | $0 | $409,657 | $409,657 |
| 2018 | $202,877 | $135,000 | $0 | $337,877 | $337,877 |
| 2017 | $204,403 | $120,000 | $0 | $324,403 | $324,403 |
| 2016 | $207,453 | $100,000 | $0 | $307,453 | $307,453 |
| 2015 | $210,504 | $70,000 | $0 | $280,504 | $280,504 |
| 2014 | $213,555 | $60,000 | $0 | $273,555 | $273,555 |
| 2013 | $216,605 | $55,000 | $0 | $271,605 | $271,605 |
| 2012 | $226,688 | $57,800 | $0 | $284,488 | $284,488 |
| 2011 | $229,724 | $68,000 | $0 | $297,724 | $297,724 |
| 2010 | $245,438 | $68,000 | $0 | $313,438 | $313,438 |
| 2009 | $253,201 | $74,400 | $0 | $327,601 | $327,601 |
| 2008 | $254,735 | $74,400 | $0 | $329,135 | $329,135 |
| 2007 | $259,465 | $73,182 | $0 | $332,647 | $332,647 |
Deed and Sales History
| 1 | 07/01/2020 | QCD | Quit Claim Deed | HAMBURG, BRITTANY RENEA | HAMBURG JTWROS, MILES MERRILL | | | $0.00 | 43624 | 4490360 |
| 2 | 07/01/2020 | WD | Warranty Deed | HAYNES, SARAH P | HAMBURG JTWROS, MILES MERRILL | | | $445,000.00 | 43623 | 4490359 |
| 3 | 05/04/2018 | PRD | Personal Representatives Deed | HAYNES JR, ASHTON M | HAYNES, SARAH P | | | $0.00 | 33990 | 4443919 |
| 4 | 10/25/2000 | WD | Warranty Deed | GIBSON, WILLIAM W | HAYNES, ASHTON M | | | $188,000.00 | 4134 | 20018982 |
| 5 | 06/23/1999 | WD | Warranty Deed | GARCIA, RUDY & | GIBSON, WILLIAM W | | | $170,000.00 | 92696 | 99016038 |
| 6 | 02/01/1993 | WD | Warranty Deed | ADAMS, GLENN R | GARCIA, RUDY & | | | $156,000.00 | 30581 | 93003106 |
| 7 | 10/01/1990 | OTHER | Other - Misc. Documents | ADAMS, GLENN R | ADAMS, GLENN R | | | $0.00 | 63887 | 90018293 |
| 8 | 09/01/1990 | QCD | Quit Claim Deed | Unknown | ADAMS, GLENN R | | | $0.00 | 5417 | 90018108 |
Payout Agreement
| No payout information available.. |