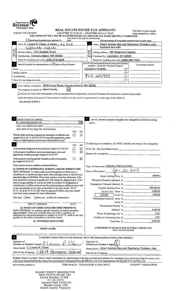
Property
Account |
| Property ID: | 364000 | Abbreviated Legal Description: | ROLL HILL LOT 1 BLK 14 EX N189' |
| Geographic ID: | S8050-00-14001-2 | Agent Code: | |
| Type: | Real | | |
| Tax Area: | 330 - APPRAISER-Cpvl Schl Dist, Special Dist, improved & less than 1 acre | Land Use Code | 11 |
| Open Space: | N | DFL | N |
| Historic Property: | N | Remodel Property: | N |
| Multi-Family Redevelopment: | N | | |
| Township: | | Section: | |
| Range: | |
Location |
| Address: | 1744 STEPHEN ST OAK HARBOR, WA 98277 | Mapsco: | |
| Neighborhood: | Cycle 2 | Map ID: | 146 |
| Neighborhood CD: | 2 |
Owner |
| Name: | ADSIT, CAROLE | Owner ID: | 288788 |
| Mailing Address: | 1744 STEPHEN ST OAK HARBOR, WA 98277 | % Ownership: | 100.0000000000% |
| | | Exemptions: | |
Taxes and Assessment Details
Values
| (+) Improvement Homesite Value: | + | $0 | |
| (+) Improvement Non-Homesite Value: | + | $102,963 | |
| (+) Land Homesite Value: | + | $0 | |
| (+) Land Non-Homesite Value: | + | $220,000 | |
| (+) Curr Use (HS): | + | $0 | $0 |
| (+) Curr Use (NHS): | + | $0 | $0 |
| | | -------------------------- | |
| (=) Market Value: | = | $322,963 | |
| (–) Productivity Loss: | – | $0 | |
| | | -------------------------- | |
| (=) Subtotal: | = | $322,963 | |
| (+) Senior Appraised Value: | + | $0 | |
| (+) Non-Senior Appraised Value: | + | $322,963 | |
| | | -------------------------- | |
| (=) Total Appraised Value: | = | $322,963 | |
| (–) Senior Exemption Loss: | – | $0 | |
| (–) Exemption Loss: | – | $0 | |
| | | -------------------------- | |
| (=) Taxable Value: | = | $322,963 | |
Taxing Jurisdiction
| Owner: | ADSIT, CAROLE | | |
| % Ownership: | 100.0000000000% | | |
| Total Value: | $322,963 | | |
| Tax Area: | 330 - APPRAISER-Cpvl Schl Dist, Special Dist, improved & less than 1 acre |
| CF | Conservation Futures | 0.0316035091 | $322,963 | $322,963 | $10.21 | | |
| CEM2 | Cemetery #2 | 0.0095056933 | $322,963 | $322,963 | $3.07 | | |
| FIRE2 | Fire & Rescue Dist #2 N Whidbey GEN | 0.5475949600 | $322,963 | $322,963 | $176.85 | | |
| HOBOND | Hospital BOND | 0.1910887512 | $322,963 | $322,963 | $61.71 | | |
| HOGEN | Hospital GEN | 0.3902502903 | $322,963 | $322,963 | $126.04 | | |
| CE | County Current Expense | 0.3708482477 | $322,963 | $322,963 | $119.77 | | |
| CR | County Roads | 0.4584763726 | $322,963 | $322,963 | $148.07 | | |
| ISLANDEMS | Hospital GEN (EMS) | 0.5000000000 | $322,963 | $322,963 | $161.48 | | |
| LIB | Library Sno-Isle GEN | 0.3153421757 | $322,963 | $322,963 | $101.84 | | |
| LIBCAP | Library Sno-Isle BOND (Cap Fac Imp Area) | 0.0543427938 | $322,963 | $322,963 | $17.55 | | |
| POCOUP | Port of Coupeville GEN | 0.1093371703 | $322,963 | $322,963 | $35.31 | | |
| POCOUPIDD | Port of Coupeville IDD | 0.3409740022 | $322,963 | $322,963 | $110.12 | | |
| COUPSDTECH | School 204 CP (TECH) | 0.7545480007 | $322,963 | $322,963 | $243.69 | | |
| SCH204MO | School 204 Enrichment | 0.6716186034 | $322,963 | $322,963 | $216.91 | | |
| ST | State School | 1.3035497053 | $322,963 | $322,963 | $421.00 | | |
| ST2 | State School Part 2 | 0.8169543533 | $322,963 | $322,963 | $263.85 | | |
| | Total Tax Rate: | 6.8660346289 | | | | | |
| | | | | Taxes w/Current Exemptions: | $2,217.47 | | |
| | | | | Taxes w/o Exemptions: | $2,217.47 | | |
Improvement / Building
| Improvement #1: | MANUFACTURED HOME | State Code: | Y | 1038.0 sqft | Value: | $102,963 |
| Bathrooms: | 2 | Bedrooms: | 3 | | Ceiling: | PLASTER PAINTED | Cooling: | EVAP NO DUCT | | Exterior Wall/Cover: | VINYL | Floor Covering: | CARPET 100% | | Floor Structure: | SLAB ON GRADE | Foundation: | SLAB | | Heating: | FHA ELECTRIC | Interior Finish: | PLASTER | | Roof Slope: | FLAT | Roof Structure/Cover: | CJ ALUMINIUM HEAVY |
|
| | Type | Description | Class CD | Sub Class CD | Year Built | Area |
| | BAS | BASE/MAIN FLOOR | 4 | 0 | 1999 | 1038.0 |
| | UTY | STORAGE/UTILITY | 4 | 0 | 1999 | 140.0 |
Sketch
Property Image
Land
| 1 | 14 | SQ (08001-12000) | 0.3100 | 13503.60 | 0.00 | 0.00 | 1.00 | $220,000 | $0 |
Roll Value History
| 2026 | N/A | N/A | N/A | N/A | N/A |
| 2025 | $102,963 | $220,000 | $0 | $322,963 | $322,963 |
| 2024 | $104,393 | $210,000 | $0 | $314,393 | $314,393 |
| 2023 | $93,269 | $220,000 | $0 | $313,269 | $313,269 |
| 2022 | $86,705 | $220,000 | $0 | $306,705 | $306,705 |
| 2021 | $77,350 | $180,000 | $0 | $257,350 | $257,350 |
| 2020 | $76,974 | $140,000 | $0 | $216,974 | $216,974 |
| 2019 | $46,231 | $170,000 | $0 | $216,231 | $216,231 |
| 2018 | $45,343 | $135,000 | $0 | $180,343 | $180,343 |
| 2017 | $46,521 | $120,000 | $0 | $166,521 | $166,521 |
| 2016 | $43,314 | $100,000 | $0 | $143,314 | $143,314 |
| 2015 | $44,447 | $70,000 | $0 | $114,447 | $114,447 |
| 2014 | $45,581 | $60,000 | $0 | $105,581 | $105,581 |
| 2013 | $46,715 | $55,000 | $0 | $101,715 | $101,715 |
| 2012 | $47,049 | $57,800 | $0 | $104,849 | $104,849 |
| 2011 | $4,000 | $68,000 | $0 | $72,000 | $72,000 |
| 2010 | $85,635 | $68,000 | $0 | $153,635 | $153,635 |
| 2009 | $89,856 | $74,400 | $0 | $164,256 | $164,256 |
| 2008 | $91,459 | $73,800 | $0 | $165,259 | $165,259 |
| 2007 | $93,073 | $73,800 | $0 | $166,873 | $166,873 |
Deed and Sales History
| 1 | 02/14/2019 | WD | Warranty Deed | ROGERS, MICHAEL | ADSIT, CAROLE | | | $242,000.00 | 37601 | 4459344 |
| 2 | 05/24/2016 | WD | Warranty Deed | HERMANSEN, DALE D | ROGERS, MICHAEL | | | $189,000.00 | 24571 | 4400361 |
| 3 | 10/18/2010 | BARGSLD | Bargain And Sale Deed | HOUSEHOLD REALTY CORPORATION | HERMANSEN, DALE D | | | $45,000.00 | 2703 | 4283726 |
| 4 | 04/09/2010 | TRUSTEED | Trustee's Deed | HOLEMAN, MICHAEL A | HOUSEHOLD REALTY CORPORATION, | | | $125,033.00 | 864 | 4272188 |
| 5 | 08/01/1994 | WD | Warranty Deed | MAKELA, MARTIN A | HOLEMAN, MICHAEL A | | | $88,000.00 | 43209 | 94017262 |
| 6 | 04/01/1987 | WD | Warranty Deed | DILLINGER, IRA C | MAKELA, MARTIN A | | | $53,000.00 | 70957 | 87004894 |
| 7 | 08/01/1982 | TRUSTEED | Trustee's Deed | RICHARDSON, ROBERT W | DILLINGER, IRA C | | | $48,000.00 | 21994 | 399685 |
| 8 | 07/01/1980 | TRUSTEED | Trustee's Deed | PEFFERMAN, D L | RICHARDSON, ROBERT W | | | $10,500.00 | 2445 | 371417 |
| 9 | 07/01/1979 | TRUSTEED | Trustee's Deed | COOPER, HOWARD G | PEFFERMAN, D L | | | $7,000.00 | 93562 | 356223 |
| 10 | 05/01/1979 | TRUSTEED | Trustee's Deed | PEDERSEN, KURT N | COOPER, HOWARD G | | | $3,000.00 | 934070 | 0 |
| 11 | 01/01/1900 | OTHER | Other - Misc. Documents | Unknown | PEDERSEN, KURT N | | | $0.00 | 0 | 0 |
Payout Agreement
| No payout information available.. |