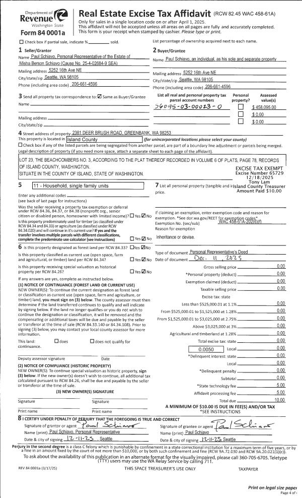
Property
Account |
| Property ID: | 364475 | Abbreviated Legal Description: | ROLL HILL 2 LOT 15 BLK 17 |
| Geographic ID: | S8050-02-17015-0 | Agent Code: | |
| Type: | Real | | |
| Tax Area: | 330 - APPRAISER-Cpvl Schl Dist, Special Dist, improved & less than 1 acre | Land Use Code | 11 |
| Open Space: | N | DFL | N |
| Historic Property: | N | Remodel Property: | N |
| Multi-Family Redevelopment: | N | | |
| Township: | | Section: | |
| Range: | |
Location |
| Address: | 1142 PAUL AVE OAK HARBOR, WA 98277 | Mapsco: | |
| Neighborhood: | Cycle 2 | Map ID: | 148 |
| Neighborhood CD: | 2 |
Owner |
| Name: | WERTZ, RYAN JORDAN | Owner ID: | 303665 |
| Mailing Address: | MICAHELA BELEN WERTZ 218 FERNWOOD DR FERNLEY, NV 89408-7624 | % Ownership: | 100.0000000000% |
| | | Exemptions: | |
Taxes and Assessment Details
Values
| (+) Improvement Homesite Value: | + | $0 | |
| (+) Improvement Non-Homesite Value: | + | $159,463 | |
| (+) Land Homesite Value: | + | $0 | |
| (+) Land Non-Homesite Value: | + | $220,000 | |
| (+) Curr Use (HS): | + | $0 | $0 |
| (+) Curr Use (NHS): | + | $0 | $0 |
| | | -------------------------- | |
| (=) Market Value: | = | $379,463 | |
| (–) Productivity Loss: | – | $0 | |
| | | -------------------------- | |
| (=) Subtotal: | = | $379,463 | |
| (+) Senior Appraised Value: | + | $0 | |
| (+) Non-Senior Appraised Value: | + | $379,463 | |
| | | -------------------------- | |
| (=) Total Appraised Value: | = | $379,463 | |
| (–) Senior Exemption Loss: | – | $0 | |
| (–) Exemption Loss: | – | $0 | |
| | | -------------------------- | |
| (=) Taxable Value: | = | $379,463 | |
Taxing Jurisdiction
| Owner: | WERTZ, RYAN JORDAN | | |
| % Ownership: | 100.0000000000% | | |
| Total Value: | $379,463 | | |
| Tax Area: | 330 - APPRAISER-Cpvl Schl Dist, Special Dist, improved & less than 1 acre |
| CF | Conservation Futures | 0.0316035091 | $379,463 | $379,463 | $11.99 | | |
| CEM2 | Cemetery #2 | 0.0095056933 | $379,463 | $379,463 | $3.61 | | |
| FIRE2 | Fire & Rescue Dist #2 N Whidbey GEN | 0.5475949600 | $379,463 | $379,463 | $207.79 | | |
| HOBOND | Hospital BOND | 0.1910887512 | $379,463 | $379,463 | $72.51 | | |
| HOGEN | Hospital GEN | 0.3902502903 | $379,463 | $379,463 | $148.09 | | |
| CE | County Current Expense | 0.3708482477 | $379,463 | $379,463 | $140.72 | | |
| CR | County Roads | 0.4584763726 | $379,463 | $379,463 | $173.97 | | |
| ISLANDEMS | Hospital GEN (EMS) | 0.5000000000 | $379,463 | $379,463 | $189.73 | | |
| LIB | Library Sno-Isle GEN | 0.3153421757 | $379,463 | $379,463 | $119.66 | | |
| LIBCAP | Library Sno-Isle BOND (Cap Fac Imp Area) | 0.0543427938 | $379,463 | $379,463 | $20.62 | | |
| POCOUP | Port of Coupeville GEN | 0.1093371703 | $379,463 | $379,463 | $41.49 | | |
| POCOUPIDD | Port of Coupeville IDD | 0.3409740022 | $379,463 | $379,463 | $129.39 | | |
| COUPSDTECH | School 204 CP (TECH) | 0.7545480007 | $379,463 | $379,463 | $286.32 | | |
| SCH204MO | School 204 Enrichment | 0.6716186034 | $379,463 | $379,463 | $254.85 | | |
| ST | State School | 1.3035497053 | $379,463 | $379,463 | $494.65 | | |
| ST2 | State School Part 2 | 0.8169543533 | $379,463 | $379,463 | $310.00 | | |
| | Total Tax Rate: | 6.8660346289 | | | | | |
| | | | | Taxes w/Current Exemptions: | $2,605.39 | | |
| | | | | Taxes w/o Exemptions: | $2,605.39 | | |
Improvement / Building
| Improvement #1: | MANUFACTURED HOME | State Code: | Y | 1680.0 sqft | Value: | $159,463 |
| Bathrooms: | 2 | Bedrooms: | 3 | | Ceiling: | PLASTER PAINTED | Cooling: | EVAP NO DUCT | | Exterior Wall/Cover: | VINYL | Floor Covering: | CARPET 100% | | Floor Structure: | SLAB ON GRADE | Foundation: | SLAB | | Heating: | FHA ELECTRIC | Interior Finish: | PLASTER | | Plumbing Fixture Cnt: | 9 | Roof Slope: | FLAT | | Roof Structure/Cover: | CJ ALUMINIUM HEAVY |   |   |
|
| | Type | Description | Class CD | Sub Class CD | Year Built | Area |
| | BAS | BASE/MAIN FLOOR | 4 | 0 | 1983 | 1680.0 |
| | OWP | OPEN WOOD PORCH W/STEPS | 4 | 0 | 1983 | 360.0 |
Sketch
| No sketches available for this property. |
Property Image
Land
| 1 | 15 | SQ (12001-21780) | 0.3825 | 16661.70 | 0.00 | 0.00 | 1.00 | $220,000 | $0 |
Roll Value History
| 2026 | N/A | N/A | N/A | N/A | N/A |
| 2025 | $159,463 | $220,000 | $0 | $379,463 | $379,463 |
| 2024 | $126,318 | $210,000 | $0 | $336,318 | $336,318 |
| 2023 | $127,803 | $220,000 | $0 | $347,803 | $347,803 |
| 2022 | $94,194 | $220,000 | $0 | $314,194 | $314,194 |
| 2021 | $84,244 | $180,000 | $0 | $264,244 | $264,244 |
| 2020 | $82,923 | $140,000 | $0 | $222,923 | $222,923 |
| 2019 | $67,115 | $170,000 | $0 | $237,115 | $237,115 |
| 2018 | $61,306 | $135,000 | $0 | $196,306 | $196,306 |
| 2017 | $62,958 | $120,000 | $0 | $182,958 | $182,958 |
| 2016 | $64,609 | $100,000 | $0 | $164,609 | $164,609 |
| 2015 | $66,260 | $70,000 | $0 | $136,260 | $136,260 |
| 2014 | $67,912 | $60,000 | $0 | $127,912 | $127,912 |
| 2013 | $68,738 | $55,000 | $0 | $123,738 | $123,738 |
| 2012 | $74,685 | $57,800 | $0 | $132,485 | $132,485 |
| 2011 | $76,336 | $68,000 | $0 | $144,336 | $144,336 |
| 2010 | $72,732 | $68,000 | $0 | $140,732 | $140,732 |
| 2009 | $76,721 | $74,400 | $0 | $151,121 | $151,121 |
| 2008 | $107,717 | $74,400 | $0 | $182,117 | $182,117 |
| 2007 | $110,111 | $74,400 | $0 | $184,511 | $184,511 |
Deed and Sales History
| 1 | 03/21/2022 | WD | Warranty Deed | WELLER, DUSTIN LEE | WERTZ, RYAN JORDAN | | | $440,000.00 | 52594 | 4542784 |
| 2 | 05/31/2018 | WD | Warranty Deed | WEATHERFORD, JOHN M | WELLER, DUSTIN LEE | | | $265,000.00 | 34472 | 4445943 |
| 3 | 04/02/2004 | WD | Warranty Deed | MC DANIEL, MARK | WEATHERFORD, JOHN M | | | $146,500.00 | 41323 | 4096286 |
| 4 | 04/22/2003 | WD | Warranty Deed | HALL, REED J | MC DANIEL, MARK | | | $115,000.00 | 31750 | 4056668 |
| 5 | 12/10/1998 | WD | Warranty Deed | SOCHA, RICHARD A | HALL, REED J | | | $35,000.00 | 85044 | 98027615 |
| 6 | 12/01/1997 | WD | Warranty Deed | OVE, WARREN E | SOCHA, RICHARD A | | | $10,000.00 | 74345 | 97020873 |
| 7 | 04/01/1993 | QCD | Quit Claim Deed | METCALF, MARILYN J | OVE, WARREN E | | | $1,000.00 | 32147 | 93011107 |
| 8 | 02/01/1984 | QCD | Quit Claim Deed | WASSON, HUBERT V | METCALF, MARILYN J | | | $0.00 | 40610 | 421898 |
| 9 | 01/01/1900 | PACD | Purchaser's Assignment | Unknown | HALL, REED J | | | $0.00 | 0 | 0 |
| 10 | 01/01/1900 | OTHER | Other - Misc. Documents | HALL, REED J | WASSON, HUBERT V | | | $0.00 | 0 | 0 |
Payout Agreement
| No payout information available.. |