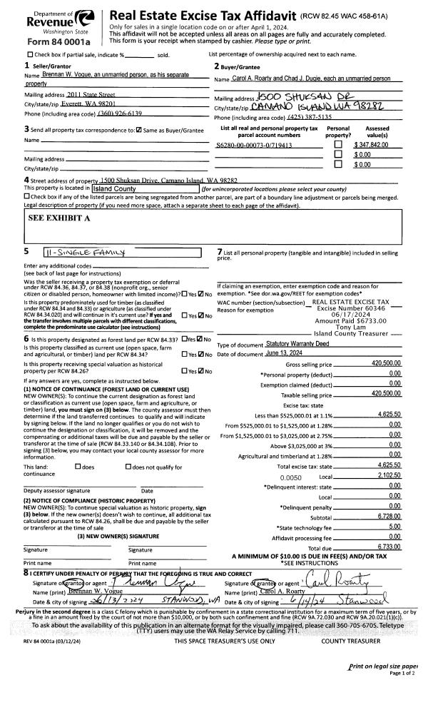
Property
Account |
| Property ID: | 364821 | Abbreviated Legal Description: | RUDDICKS LOT 9 |
| Geographic ID: | S8055-00-00009-0 | Agent Code: | |
| Type: | Real | | |
| Tax Area: | 100 - APPRAISER-OH Schl Dist, in OH | Land Use Code | 11 |
| Open Space: | N | DFL | N |
| Historic Property: | N | Remodel Property: | N |
| Multi-Family Redevelopment: | N | | |
| Township: | | Section: | |
| Range: | |
Location |
| Address: | 1920 NE 7TH AVE OAK HARBOR, WA 98277 | Mapsco: | |
| Neighborhood: | Cycle 1 | Map ID: | 260 |
| Neighborhood CD: | 1 |
Owner |
| Name: | WIEDRICH JTWROS, JOHN D | Owner ID: | 288353 |
| Mailing Address: | HEATHER MAHALA JTWROS 485 CORNET BAY RD OAK HARBOR, WA 98277-9782 | % Ownership: | 100.0000000000% |
| | | Exemptions: | |
Taxes and Assessment Details
Values
| (+) Improvement Homesite Value: | + | $0 | |
| (+) Improvement Non-Homesite Value: | + | $116,210 | |
| (+) Land Homesite Value: | + | $0 | |
| (+) Land Non-Homesite Value: | + | $180,000 | |
| (+) Curr Use (HS): | + | $0 | $0 |
| (+) Curr Use (NHS): | + | $0 | $0 |
| | | -------------------------- | |
| (=) Market Value: | = | $296,210 | |
| (–) Productivity Loss: | – | $0 | |
| | | -------------------------- | |
| (=) Subtotal: | = | $296,210 | |
| (+) Senior Appraised Value: | + | $0 | |
| (+) Non-Senior Appraised Value: | + | $296,210 | |
| | | -------------------------- | |
| (=) Total Appraised Value: | = | $296,210 | |
| (–) Senior Exemption Loss: | – | $0 | |
| (–) Exemption Loss: | – | $0 | |
| | | -------------------------- | |
| (=) Taxable Value: | = | $296,210 | |
Taxing Jurisdiction
| Owner: | WIEDRICH JTWROS, JOHN D | | |
| % Ownership: | 100.0000000000% | | |
| Total Value: | $296,210 | | |
| Tax Area: | 100 - APPRAISER-OH Schl Dist, in OH |
| CF | Conservation Futures | 0.0316035091 | $296,210 | $296,210 | $9.36 | | |
| CEM1 | Cemetery #1 | 0.0040320932 | $296,210 | $296,210 | $1.19 | | |
| COH | City of Oak Harbor | 2.3001546061 | $296,210 | $296,210 | $681.33 | | |
| OAKBOND | City of Oak Harbor BOND | 0.1926904192 | $296,210 | $296,210 | $57.08 | | |
| HOBOND | Hospital BOND | 0.1910887512 | $296,210 | $296,210 | $56.60 | | |
| HOGEN | Hospital GEN | 0.3902502903 | $296,210 | $296,210 | $115.60 | | |
| CE | County Current Expense | 0.3708482477 | $296,210 | $296,210 | $109.85 | | |
| ISLANDEMS | Hospital GEN (EMS) | 0.5000000000 | $296,210 | $296,210 | $148.11 | | |
| LIB | Library Sno-Isle GEN | 0.3153421757 | $296,210 | $296,210 | $93.41 | | |
| NWHIDPRMT | P & R N Whidbey GEN | 0.2004466701 | $296,210 | $296,210 | $59.37 | | |
| SCH201MO | School 201 Enrichment | 1.8559231640 | $296,210 | $296,210 | $549.74 | | |
| ST | State School | 1.3035497053 | $296,210 | $296,210 | $386.12 | | |
| ST2 | State School Part 2 | 0.8169543533 | $296,210 | $296,210 | $241.99 | | |
| | Total Tax Rate: | 8.4728839852 | | | | | |
| | | | | Taxes w/Current Exemptions: | $2,509.75 | | |
| | | | | Taxes w/o Exemptions: | $2,509.75 | | |
Improvement / Building
| Improvement #1: | RESIDENTIAL | State Code: | Y | 1166.0 sqft | Value: | $116,210 |
| Bathrooms: | 1 | Bedrooms: | 2 | | Ceiling: | DRYWALL PAINTED | Exterior Wall/Cover: | WOOD SIDING | | Floor Covering: | VINYL 100% | Floor Structure: | SLAB ON GRADE | | Foundation: | SLAB | Heating: | FHA GAS | | Interior Finish: | DRYWALL PAINT | Plumbing Fixture Cnt: | 6 | | Roof Slope: | 12" IN 12" | Roof Structure/Cover: | CJ ASPHALT |
|
| | Type | Description | Class CD | Sub Class CD | Year Built | Area |
| | BAS | BASE/MAIN FLOOR | 3 | 0 | 1954 | 770.0 |
| | OP3 | OPEN PORCH W/ROOF | 3 | 0 | 1954 | 20.0 |
| | UPH | HALF STORY | 3 | 0 | 1954 | 396.0 |
| | DGR | DETACHED GARAGE | 3 | 0 | 1954 | 396.0 |
Sketch
Property Image
Land
| 1 | 13 | SQ (06001-08000) | 0.0000 | 0.00 | 0.00 | 0.00 | 1.00 | $180,000 | $0 |
Roll Value History
| 2026 | N/A | N/A | N/A | N/A | N/A |
| 2025 | $116,210 | $180,000 | $0 | $296,210 | $296,210 |
| 2024 | $118,436 | $170,000 | $0 | $288,436 | $288,436 |
| 2023 | $104,266 | $170,000 | $0 | $274,266 | $274,266 |
| 2022 | $96,218 | $160,000 | $0 | $256,218 | $256,218 |
| 2021 | $85,240 | $120,000 | $0 | $205,240 | $205,240 |
| 2020 | $83,635 | $100,000 | $0 | $183,635 | $183,635 |
| 2019 | $60,044 | $140,000 | $0 | $200,044 | $200,044 |
| 2018 | $60,311 | $125,000 | $0 | $185,311 | $185,311 |
| 2017 | $44,241 | $110,000 | $0 | $154,241 | $154,241 |
| 2016 | $45,246 | $90,000 | $0 | $135,246 | $135,246 |
| 2015 | $46,251 | $80,000 | $0 | $126,251 | $126,251 |
| 2014 | $47,256 | $80,000 | $0 | $127,256 | $127,256 |
| 2013 | $48,262 | $80,000 | $0 | $128,262 | $128,262 |
| 2012 | $49,267 | $70,000 | $0 | $119,267 | $119,267 |
| 2011 | $47,380 | $80,000 | $0 | $127,380 | $127,380 |
| 2010 | $56,246 | $80,000 | $0 | $136,246 | $136,246 |
| 2009 | $58,913 | $120,000 | $0 | $178,913 | $178,913 |
| 2008 | $60,009 | $97,000 | $0 | $157,009 | $157,009 |
| 2007 | $61,105 | $97,000 | $0 | $158,105 | $158,105 |
Deed and Sales History
| 1 | 12/15/2018 | QCD | Quit Claim Deed | WIEDRICH, JOHN D | WIEDRICH JTWROS, JOHN D | | | $0.00 | 37106 | 4457134 |
| 2 | 01/04/2007 | QCD | Quit Claim Deed | WIEDRICH, DAVID E | WIEDRICH, JOHN D | | | $0.00 | 70144 | 4191674 |
| 3 | 01/01/1900 | OTHER | Other - Misc. Documents | Unknown | WIEDRICH, DAVID E | | | $0.00 | 0 | 0 |
Payout Agreement
| No payout information available.. |