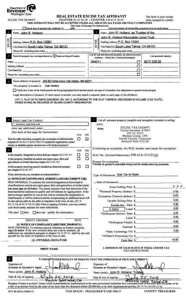
Property
Account |
| Property ID: | 364830 | Abbreviated Legal Description: | RUDDICKS LOT 10 |
| Geographic ID: | S8055-00-00010-0 | Agent Code: | |
| Type: | Real | | |
| Tax Area: | 100 - APPRAISER-OH Schl Dist, in OH | Land Use Code | 11 |
| Open Space: | N | DFL | N |
| Historic Property: | N | Remodel Property: | N |
| Multi-Family Redevelopment: | N | | |
| Township: | | Section: | |
| Range: | |
Location |
| Address: | 1970 NE 7TH AVE OAK HARBOR, WA 98277 | Mapsco: | |
| Neighborhood: | Cycle 1 | Map ID: | 260 |
| Neighborhood CD: | 1 |
Owner |
| Name: | SARDEGNA, BRYAN S | Owner ID: | 296790 |
| Mailing Address: | SHELLIE A SARDEGNA 1970 NE 7TH AVE OAK HARBOR, WA 98277 | % Ownership: | 100.0000000000% |
| | | Exemptions: | |
Taxes and Assessment Details
Values
| (+) Improvement Homesite Value: | + | $0 | |
| (+) Improvement Non-Homesite Value: | + | $305,845 | |
| (+) Land Homesite Value: | + | $0 | |
| (+) Land Non-Homesite Value: | + | $180,000 | |
| (+) Curr Use (HS): | + | $0 | $0 |
| (+) Curr Use (NHS): | + | $0 | $0 |
| | | -------------------------- | |
| (=) Market Value: | = | $485,845 | |
| (–) Productivity Loss: | – | $0 | |
| | | -------------------------- | |
| (=) Subtotal: | = | $485,845 | |
| (+) Senior Appraised Value: | + | $0 | |
| (+) Non-Senior Appraised Value: | + | $485,845 | |
| | | -------------------------- | |
| (=) Total Appraised Value: | = | $485,845 | |
| (–) Senior Exemption Loss: | – | $0 | |
| (–) Exemption Loss: | – | $0 | |
| | | -------------------------- | |
| (=) Taxable Value: | = | $485,845 | |
Taxing Jurisdiction
| Owner: | SARDEGNA, BRYAN S | | |
| % Ownership: | 100.0000000000% | | |
| Total Value: | $485,845 | | |
| Tax Area: | 100 - APPRAISER-OH Schl Dist, in OH |
| CF | Conservation Futures | 0.0316035091 | $485,845 | $485,845 | $15.35 | | |
| CEM1 | Cemetery #1 | 0.0040320932 | $485,845 | $485,845 | $1.96 | | |
| COH | City of Oak Harbor | 2.3001546061 | $485,845 | $485,845 | $1,117.52 | | |
| OAKBOND | City of Oak Harbor BOND | 0.1926904192 | $485,845 | $485,845 | $93.62 | | |
| HOBOND | Hospital BOND | 0.1910887512 | $485,845 | $485,845 | $92.84 | | |
| HOGEN | Hospital GEN | 0.3902502903 | $485,845 | $485,845 | $189.60 | | |
| CE | County Current Expense | 0.3708482477 | $485,845 | $485,845 | $180.17 | | |
| ISLANDEMS | Hospital GEN (EMS) | 0.5000000000 | $485,845 | $485,845 | $242.92 | | |
| LIB | Library Sno-Isle GEN | 0.3153421757 | $485,845 | $485,845 | $153.21 | | |
| NWHIDPRMT | P & R N Whidbey GEN | 0.2004466701 | $485,845 | $485,845 | $97.39 | | |
| SCH201MO | School 201 Enrichment | 1.8559231640 | $485,845 | $485,845 | $901.69 | | |
| ST | State School | 1.3035497053 | $485,845 | $485,845 | $633.32 | | |
| ST2 | State School Part 2 | 0.8169543533 | $485,845 | $485,845 | $396.91 | | |
| | Total Tax Rate: | 8.4728839852 | | | | | |
| | | | | Taxes w/Current Exemptions: | $4,116.50 | | |
| | | | | Taxes w/o Exemptions: | $4,116.50 | | |
Improvement / Building
| Improvement #1: | RESIDENTIAL | State Code: | Y | 1918.0 sqft | Value: | $305,845 |
| Bathrooms: | 2 | Bedrooms: | 3 | | Ceiling: | DRY WALL SPRAYED | Exterior Wall/Cover: | PLY/HARDBOARD T-111 | | Floor Covering: | HARDWOOD 100% | Floor Structure: | WOOD W/SUBFLOOR | | Foundation: | CONCRETE | Heating: | FHA ELECTRIC | | Interior Finish: | DRYWALL PAINT | Plumbing Fixture Cnt: | 11 | | Roof Slope: | 4" IN 12" | Roof Structure/Cover: | CJ ALUMINIUM HEAVY |
|
| | Type | Description | Class CD | Sub Class CD | Year Built | Area |
| | BAS | BASE/MAIN FLOOR | 3 | 0 | 1968 | 1918.0 |
| | OP1 | OPEN PORCH SLAB | 3 | 0 | 1968 | 528.0 |
| | AGR | ATTACHED GARAGE | 3 | 0 | 1968 | 629.0 |
Sketch
Property Image
Land
| 1 | 14 | SQ (08001-12000) | 0.0000 | 0.00 | 0.00 | 0.00 | 1.00 | $180,000 | $0 |
Roll Value History
| 2026 | N/A | N/A | N/A | N/A | N/A |
| 2025 | $305,845 | $180,000 | $0 | $485,845 | $485,845 |
| 2024 | $310,020 | $170,000 | $0 | $480,020 | $480,020 |
| 2023 | $300,922 | $170,000 | $0 | $470,922 | $470,922 |
| 2022 | $276,259 | $160,000 | $0 | $436,259 | $436,259 |
| 2021 | $243,503 | $125,000 | $0 | $368,503 | $368,503 |
| 2020 | $237,825 | $100,000 | $0 | $337,825 | $337,825 |
| 2019 | $179,590 | $140,000 | $0 | $319,590 | $319,590 |
| 2018 | $180,178 | $125,000 | $0 | $305,178 | $305,178 |
| 2017 | $122,858 | $110,000 | $0 | $232,858 | $232,858 |
| 2016 | $124,638 | $90,000 | $0 | $214,638 | $214,638 |
| 2015 | $126,418 | $80,000 | $0 | $206,418 | $206,418 |
| 2014 | $128,199 | $80,000 | $0 | $208,199 | $208,199 |
| 2013 | $129,979 | $80,000 | $0 | $209,979 | $209,979 |
| 2012 | $122,858 | $70,000 | $0 | $192,858 | $192,858 |
| 2011 | $123,822 | $80,000 | $0 | $203,822 | $203,822 |
| 2010 | $134,837 | $80,000 | $0 | $214,837 | $214,837 |
| 2009 | $140,590 | $120,000 | $0 | $260,590 | $260,590 |
| 2008 | $142,894 | $97,000 | $0 | $239,894 | $239,894 |
| 2007 | $145,035 | $97,000 | $0 | $242,035 | $242,035 |
Deed and Sales History
| 1 | 11/17/2020 | QCD | Quit Claim Deed | SARDENGA, BRYAN | SARDEGNA, BRYAN S | | | $0.00 | 45840 | 4503187 |
| 2 | 03/30/2012 | ESTSEPPROP | Establish Separate Property | SARDENGA, BRYAN | SARDENGA, BRYAN | | | $0.00 | 7416 | 4313875 |
| 3 | 03/29/2012 | WD | Warranty Deed | GREEN, THOMAS P / HSUIYING L | SARDENGA, BRYAN | | | $225,000.00 | 7415 | 4313874 |
| 4 | 10/01/1995 | WD | Warranty Deed | KURTZ, KENNETH H | GREEN, THOMAS P | | | $115,500.00 | 53829 | 95017544 |
| 5 | 11/01/1993 | QCD | Quit Claim Deed | KURTZ, KENNETH H | KURTZ, KENNETH H | | | $0.00 | 40385 | 94002337 |
| 6 | 02/01/1992 | WD | Warranty Deed | KURTZ, KENNETH H | KURTZ, KENNETH H | | | $0.00 | 20781 | 92004004 |
| 7 | 07/01/1990 | WD | Warranty Deed | TOWERS, JOHN R | KURTZ, KENNETH H | | | $84,500.00 | 4401 | 90014560 |
| 8 | 01/01/1989 | WD | Warranty Deed | RADACH, MICHAEL | TOWERS, JOHN R | | | $65,000.00 | 90126 | 89000439 |
| 9 | 01/01/1900 | OTHER | Other - Misc. Documents | Unknown | RADACH, MICHAEL | | | $0.00 | 0 | 0 |
Payout Agreement
| No payout information available.. |