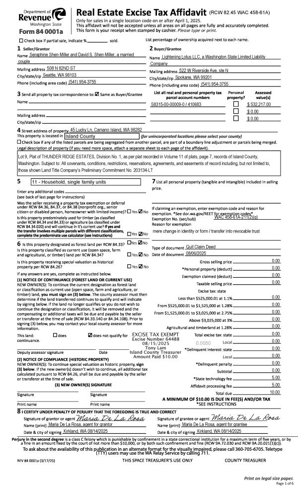
Property
Account |
| Property ID: | 365161 | Abbreviated Legal Description: | SAN DE FUCA LOTS 1, 2 & 3 BLK 9 & ADJ PT VAC W ST PER A42911 ALSO LOTS 22, 23 & 24 BLK 9 |
| Geographic ID: | S8060-00-09001-0 | Agent Code: | |
| Type: | Real | | |
| Tax Area: | 330 - APPRAISER-Cpvl Schl Dist, Special Dist, improved & less than 1 acre | Land Use Code | 11 |
| Open Space: | N | DFL | N |
| Historic Property: | N | Remodel Property: | N |
| Multi-Family Redevelopment: | N | | |
| Township: | | Section: | |
| Range: | |
Location |
| Address: | 1950 PENN COVE RD OAK HARBOR, WA 98277 | Mapsco: | |
| Neighborhood: | Cycle 2 | Map ID: | 160 |
| Neighborhood CD: | 2 |
Owner |
| Name: | IVERSON, MATTHEW T | Owner ID: | 295492 |
| Mailing Address: | HEIDI K IVERSON 1950 PENN COVE RD OAK HARBOR, WA 98277 | % Ownership: | 100.0000000000% |
| | | Exemptions: | |
Taxes and Assessment Details
Values
| (+) Improvement Homesite Value: | + | $0 | |
| (+) Improvement Non-Homesite Value: | + | $218,296 | |
| (+) Land Homesite Value: | + | $0 | |
| (+) Land Non-Homesite Value: | + | $320,000 | |
| (+) Curr Use (HS): | + | $0 | $0 |
| (+) Curr Use (NHS): | + | $0 | $0 |
| | | -------------------------- | |
| (=) Market Value: | = | $538,296 | |
| (–) Productivity Loss: | – | $0 | |
| | | -------------------------- | |
| (=) Subtotal: | = | $538,296 | |
| (+) Senior Appraised Value: | + | $0 | |
| (+) Non-Senior Appraised Value: | + | $538,296 | |
| | | -------------------------- | |
| (=) Total Appraised Value: | = | $538,296 | |
| (–) Senior Exemption Loss: | – | $0 | |
| (–) Exemption Loss: | – | $0 | |
| | | -------------------------- | |
| (=) Taxable Value: | = | $538,296 | |
Taxing Jurisdiction
| Owner: | IVERSON, MATTHEW T | | |
| % Ownership: | 100.0000000000% | | |
| Total Value: | $538,296 | | |
| Tax Area: | 330 - APPRAISER-Cpvl Schl Dist, Special Dist, improved & less than 1 acre |
| CF | Conservation Futures | 0.0316035091 | $538,296 | $538,296 | $17.01 | | |
| CEM2 | Cemetery #2 | 0.0095056933 | $538,296 | $538,296 | $5.12 | | |
| FIRE2 | Fire & Rescue Dist #2 N Whidbey GEN | 0.5475949600 | $538,296 | $538,296 | $294.77 | | |
| HOBOND | Hospital BOND | 0.1910887512 | $538,296 | $538,296 | $102.86 | | |
| HOGEN | Hospital GEN | 0.3902502903 | $538,296 | $538,296 | $210.07 | | |
| CE | County Current Expense | 0.3708482477 | $538,296 | $538,296 | $199.63 | | |
| CR | County Roads | 0.4584763726 | $538,296 | $538,296 | $246.80 | | |
| ISLANDEMS | Hospital GEN (EMS) | 0.5000000000 | $538,296 | $538,296 | $269.15 | | |
| LIB | Library Sno-Isle GEN | 0.3153421757 | $538,296 | $538,296 | $169.75 | | |
| LIBCAP | Library Sno-Isle BOND (Cap Fac Imp Area) | 0.0543427938 | $538,296 | $538,296 | $29.25 | | |
| POCOUP | Port of Coupeville GEN | 0.1093371703 | $538,296 | $538,296 | $58.86 | | |
| POCOUPIDD | Port of Coupeville IDD | 0.3409740022 | $538,296 | $538,296 | $183.54 | | |
| COUPSDTECH | School 204 CP (TECH) | 0.7545480007 | $538,296 | $538,296 | $406.17 | | |
| SCH204MO | School 204 Enrichment | 0.6716186034 | $538,296 | $538,296 | $361.53 | | |
| ST | State School | 1.3035497053 | $538,296 | $538,296 | $701.70 | | |
| ST2 | State School Part 2 | 0.8169543533 | $538,296 | $538,296 | $439.76 | | |
| | Total Tax Rate: | 6.8660346289 | | | | | |
| | | | | Taxes w/Current Exemptions: | $3,695.97 | | |
| | | | | Taxes w/o Exemptions: | $3,695.97 | | |
Improvement / Building
| Improvement #1: | RESIDENTIAL | State Code: | Y | 1440.0 sqft | Value: | $165,499 |
| Bathrooms: | 1 | Bedrooms: | 3 | | Ceiling: | PLYWOOD PAINTED | Exterior Wall/Cover: | WOOD SIDING | | Floor Covering: | VINYL/HARDWOOD 20-80 | Floor Structure: | WOOD W/SUBFLOOR | | Foundation: | WOOD BLOCKS | Heating: | FHA OIL | | Interior Finish: | DRYWALL PAINT | Plumbing Fixture Cnt: | 5 | | Roof Slope: | 8" IN 12" | Roof Structure/Cover: | CJ ALUMINIUM HEAVY |
|
| | Type | Description | Class CD | Sub Class CD | Year Built | Area |
| | BAS | BASE/MAIN FLOOR | 3 | 0 | 1880 | 864.0 |
| | OP1 | OPEN PORCH SLAB | 3 | 0 | 1880 | 150.0 |
| | OWC | OPEN WOOD PORCH W/STEPS/ROOF/C | 3 | 0 | 1880 | 72.0 |
| | UPS | UPPER STORY | 3 | 0 | 1880 | 576.0 |
| | OWC | OPEN WOOD PORCH W/STEPS/ROOF/C | 3 | 0 | 1880 | 64.0 |
| | ENP | ENCLOSED PORCH | 3 | 0 | 1880 | 128.0 |
| Improvement #2: | RESIDENTIAL | State Code: | Y | 0.0 sqft | Value: | $52,797 |
| | Type | Description | Class CD | Sub Class CD | Year Built | Area |
| | oEQU | EQUIP SHED | 3 | 0 | 1970 | 272.0 |
| | oCB2 | CABIN FIN | 3 | 0 | 2021 | 280.0 |
| | oCB1 | CABIN UNFI | 3 | 0 | 2021 | 180.0 |
Sketch
Property Image
Land
| 1 | 15 | SQ (12001-21780) | 0.5900 | 25700.40 | 0.00 | 0.00 | 1.00 | $320,000 | $0 |
Roll Value History
| 2026 | N/A | N/A | N/A | N/A | N/A |
| 2025 | $218,296 | $320,000 | $0 | $538,296 | $538,296 |
| 2024 | $84,374 | $320,000 | $0 | $404,374 | $404,374 |
| 2023 | $85,876 | $320,000 | $0 | $405,876 | $405,876 |
| 2022 | $79,117 | $280,000 | $0 | $359,117 | $359,117 |
| 2021 | $69,978 | $200,000 | $0 | $269,978 | $269,978 |
| 2020 | $149,032 | $200,000 | $0 | $349,032 | $349,032 |
| 2019 | $111,617 | $220,000 | $0 | $331,617 | $91,231 |
| 2018 | $53,061 | $170,000 | $0 | $223,061 | $89,224 |
| 2017 | $53,058 | $170,000 | $0 | $223,058 | $89,223 |
| 2016 | $53,058 | $150,000 | $0 | $203,058 | $81,223 |
| 2015 | $53,058 | $120,000 | $0 | $173,058 | $69,223 |
| 2014 | $53,058 | $120,000 | $0 | $173,058 | $69,223 |
| 2013 | $53,058 | $148,750 | $0 | $201,808 | $80,723 |
| 2012 | $53,078 | $148,750 | $0 | $201,828 | $80,731 |
| 2011 | $53,078 | $175,000 | $0 | $228,078 | $91,231 |
| 2010 | $57,784 | $175,000 | $0 | $232,784 | $232,784 |
| 2009 | $61,435 | $200,000 | $0 | $261,435 | $261,435 |
| 2008 | $61,820 | $201,500 | $0 | $263,320 | $263,320 |
| 2007 | $63,877 | $185,000 | $0 | $248,877 | $248,877 |
Deed and Sales History
| 1 | 07/28/2020 | WD | Warranty Deed | STARRING, MICHAEL P | IVERSON, MATTHEW T | | | $271,000.00 | 44020 | 4492616 |
| 2 | 11/01/1997 | WD | Warranty Deed | HINGSTON, THOMAS B | STARRING, MICHAEL P | | | $85,000.00 | 74035 | 97019351 |
| 3 | 05/01/1997 | QCD | Quit Claim Deed | HINGSTON, THOMAS B | HINGSTON, THOMAS B | | | $0.00 | 71431 | 97006606 |
| 4 | 05/01/1997 | QCD | Quit Claim Deed | HINGSTON, THOMAS B | HINGSTON, THOMAS B | | | $0.00 | 71479 | 97006967 |
| 5 | 01/01/1900 | OTHER | Other - Misc. Documents | Unknown | HINGSTON, THOMAS B | | | $0.00 | 0 | 0 |
Payout Agreement
| No payout information available.. |