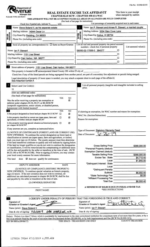
Property
Account |
| Property ID: | 365474 | Abbreviated Legal Description: | SAN DE FUCA LOT 10 BLK 18 & LOT 9 & 11 BLK 19 TGW ADJ VAC ALLEY COMBINED/LIST COMB 9/81 TGW EZ AF#94003188 |
| Geographic ID: | S8060-00-18010-0 | Agent Code: | |
| Type: | Real | | |
| Tax Area: | 330 - APPRAISER-Cpvl Schl Dist, Special Dist, improved & less than 1 acre | Land Use Code | 11 |
| Open Space: | N | DFL | N |
| Historic Property: | N | Remodel Property: | N |
| Multi-Family Redevelopment: | N | | |
| Township: | | Section: | |
| Range: | |
Location |
| Address: | 2015 ARMSTRONG RD COUPEVILLE, WA 98239 | Mapsco: | |
| Neighborhood: | Cycle 2 | Map ID: | 165 |
| Neighborhood CD: | 2 |
Owner |
| Name: | MARUNA, DAVID D | Owner ID: | 291641 |
| Mailing Address: | 2015 ARMSTRONG RD COUPEVILLE, WA 98239 | % Ownership: | 100.0000000000% |
| | | Exemptions: | |
Taxes and Assessment Details
Values
| (+) Improvement Homesite Value: | + | $0 | |
| (+) Improvement Non-Homesite Value: | + | $107,778 | |
| (+) Land Homesite Value: | + | $0 | |
| (+) Land Non-Homesite Value: | + | $320,000 | |
| (+) Curr Use (HS): | + | $0 | $0 |
| (+) Curr Use (NHS): | + | $0 | $0 |
| | | -------------------------- | |
| (=) Market Value: | = | $427,778 | |
| (–) Productivity Loss: | – | $0 | |
| | | -------------------------- | |
| (=) Subtotal: | = | $427,778 | |
| (+) Senior Appraised Value: | + | $0 | |
| (+) Non-Senior Appraised Value: | + | $427,778 | |
| | | -------------------------- | |
| (=) Total Appraised Value: | = | $427,778 | |
| (–) Senior Exemption Loss: | – | $0 | |
| (–) Exemption Loss: | – | $0 | |
| | | -------------------------- | |
| (=) Taxable Value: | = | $427,778 | |
Taxing Jurisdiction
| Owner: | MARUNA, DAVID D | | |
| % Ownership: | 100.0000000000% | | |
| Total Value: | $427,778 | | |
| Tax Area: | 330 - APPRAISER-Cpvl Schl Dist, Special Dist, improved & less than 1 acre |
| CF | Conservation Futures | 0.0316035091 | $427,778 | $427,778 | $13.52 | | |
| CEM2 | Cemetery #2 | 0.0095056933 | $427,778 | $427,778 | $4.07 | | |
| FIRE2 | Fire & Rescue Dist #2 N Whidbey GEN | 0.5475949600 | $427,778 | $427,778 | $234.25 | | |
| HOBOND | Hospital BOND | 0.1910887512 | $427,778 | $427,778 | $81.74 | | |
| HOGEN | Hospital GEN | 0.3902502903 | $427,778 | $427,778 | $166.94 | | |
| CE | County Current Expense | 0.3708482477 | $427,778 | $427,778 | $158.64 | | |
| CR | County Roads | 0.4584763726 | $427,778 | $427,778 | $196.13 | | |
| ISLANDEMS | Hospital GEN (EMS) | 0.5000000000 | $427,778 | $427,778 | $213.89 | | |
| LIB | Library Sno-Isle GEN | 0.3153421757 | $427,778 | $427,778 | $134.90 | | |
| LIBCAP | Library Sno-Isle BOND (Cap Fac Imp Area) | 0.0543427938 | $427,778 | $427,778 | $23.25 | | |
| POCOUP | Port of Coupeville GEN | 0.1093371703 | $427,778 | $427,778 | $46.77 | | |
| POCOUPIDD | Port of Coupeville IDD | 0.3409740022 | $427,778 | $427,778 | $145.86 | | |
| COUPSDTECH | School 204 CP (TECH) | 0.7545480007 | $427,778 | $427,778 | $322.78 | | |
| SCH204MO | School 204 Enrichment | 0.6716186034 | $427,778 | $427,778 | $287.30 | | |
| ST | State School | 1.3035497053 | $427,778 | $427,778 | $557.63 | | |
| ST2 | State School Part 2 | 0.8169543533 | $427,778 | $427,778 | $349.48 | | |
| | Total Tax Rate: | 6.8660346289 | | | | | |
| | | | | Taxes w/Current Exemptions: | $2,937.15 | | |
| | | | | Taxes w/o Exemptions: | $2,937.15 | | |
Improvement / Building
| Improvement #1: | MANUFACTURED HOME | State Code: | Y | 1344.0 sqft | Value: | $107,778 |
| Bathrooms: | 0 | Bedrooms: | 0 | | Ceiling: | PLASTER PAINTED | Cooling: | EVAP NO DUCT | | Exterior Wall/Cover: | VINYL | Floor Covering: | CARPET 100% | | Floor Structure: | SLAB ON GRADE | Foundation: | SLAB | | Heating: | FHA ELECTRIC | Interior Finish: | PLASTER | | Plumbing Fixture Cnt: | 1 | Roof Slope: | FLAT | | Roof Structure/Cover: | CJ ALUMINIUM HEAVY |   |   |
|
| | Type | Description | Class CD | Sub Class CD | Year Built | Area |
| | BAS | BASE/MAIN FLOOR | 4 | 0 | 1993 | 1344.0 |
| | OWP | OPEN WOOD PORCH W/STEPS | 4 | 0 | 1993 | 436.0 |
Sketch
Property Image
Land
| 1 | 16 | AC (00.51-01.00) | 0.5900 | 25700.40 | 0.00 | 0.00 | 1.00 | $320,000 | $0 |
Roll Value History
| 2026 | N/A | N/A | N/A | N/A | N/A |
| 2025 | $107,778 | $320,000 | $0 | $427,778 | $427,778 |
| 2024 | $104,608 | $320,000 | $0 | $424,608 | $424,608 |
| 2023 | $93,721 | $320,000 | $0 | $413,721 | $413,721 |
| 2022 | $87,361 | $280,000 | $0 | $367,361 | $367,361 |
| 2021 | $78,134 | $200,000 | $0 | $278,134 | $278,134 |
| 2020 | $76,904 | $200,000 | $0 | $276,904 | $276,904 |
| 2019 | $62,242 | $220,000 | $0 | $282,242 | $282,242 |
| 2018 | $63,900 | $170,000 | $0 | $233,900 | $233,900 |
| 2017 | $46,780 | $150,000 | $0 | $196,780 | $196,780 |
| 2016 | $48,289 | $150,000 | $0 | $198,289 | $198,289 |
| 2015 | $49,798 | $120,000 | $0 | $169,798 | $67,919 |
| 2014 | $51,307 | $120,000 | $0 | $171,307 | $111,350 |
| 2013 | $52,816 | $148,750 | $0 | $201,566 | $131,566 |
| 2012 | $57,293 | $148,750 | $0 | $206,043 | $136,043 |
| 2011 | $57,958 | $175,000 | $0 | $232,958 | $162,958 |
| 2010 | $53,301 | $175,000 | $0 | $228,301 | $228,301 |
| 2009 | $56,237 | $200,000 | $0 | $256,237 | $256,237 |
| 2008 | $57,078 | $201,250 | $0 | $258,328 | $258,328 |
| 2007 | $58,656 | $195,000 | $0 | $253,656 | $253,656 |
Deed and Sales History
| 1 | 09/05/2019 | QCD | Quit Claim Deed | MARUNA, DAVID D | MARUNA, DAVID D | | | $0.00 | 40129 | 4470801 |
| 2 | 05/19/2017 | WD | Warranty Deed | KONOPIK, GEORGE | MARUNA, DAVID D | | | $239,000.00 | 29764 | 4424342 |
| 3 | 07/01/1996 | OTHER | Other - Misc. Documents | KONOPIK, GEORGE / | KONOPIK, GEORGE | | | $0.00 | 67069 | 96012643 |
| 4 | 03/01/1993 | OTHER | Other - Misc. Documents | KONOPIK, GEORGE & | KONOPIK, GEORGE / | | | $38,368.00 | 11111111 | 0 |
| 5 | 08/01/1984 | QCD | Quit Claim Deed | KONOPIK, GEORGE & | KONOPIK, GEORGE & | | | $0.00 | 42563 | 84002650 |
| 6 | 07/01/1984 | QCD | Quit Claim Deed | KONOPIK, GEORGE | KONOPIK, GEORGE & | | | $0.00 | 42825 | 84003725 |
| 7 | 08/02/1974 | WD | Warranty Deed | Unknown | KONOPIK, GEORGE | | | $0.00 | 51981 | 0 |
Payout Agreement
| No payout information available.. |