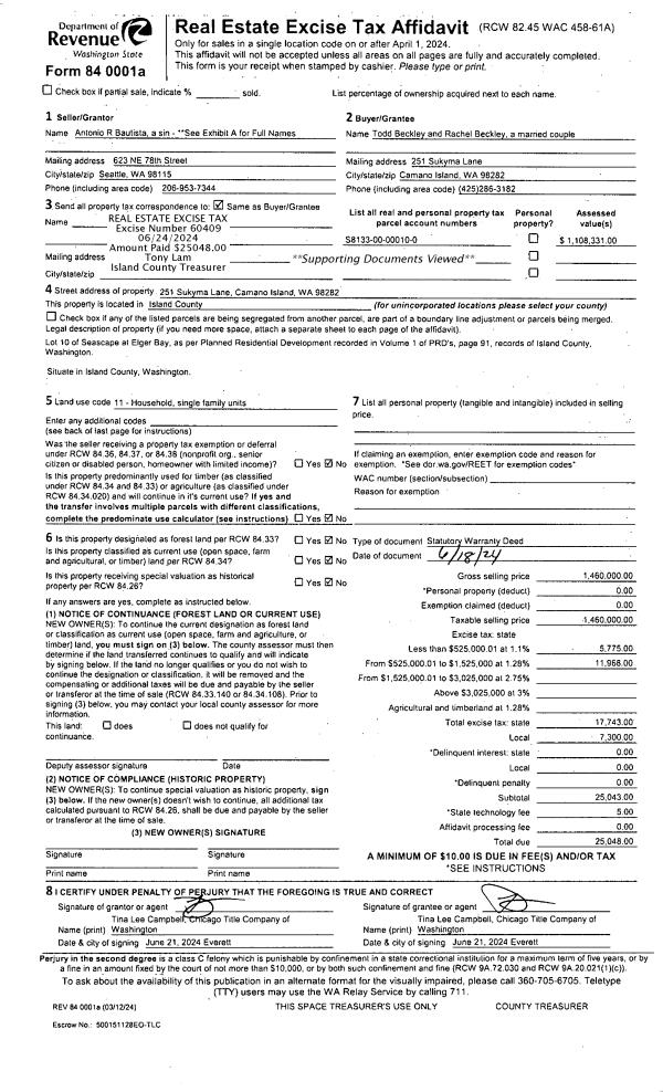
Property
Account |
| Property ID: | 366525 | Abbreviated Legal Description: | SANDY BUBBLES LOT 24 |
| Geographic ID: | S8065-00-00024-0 | Agent Code: | |
| Type: | Real | | |
| Tax Area: | 110 - APPRAISER-OH Schl Dist, outside OH, improved & 1 acre or less | Land Use Code | 11 |
| Open Space: | N | DFL | N |
| Historic Property: | N | Remodel Property: | N |
| Multi-Family Redevelopment: | N | | |
| Township: | | Section: | |
| Range: | |
Location |
| Address: | 2336 HAPPY LN OAK HARBOR, WA 98277 | Mapsco: | |
| Neighborhood: | Cycle 1 | Map ID: | 103 |
| Neighborhood CD: | 1 |
Owner |
| Name: | PEDERSON, VERN M | Owner ID: | 188768 |
| Mailing Address: | 2336 HAPPY LN OAK HARBOR, WA 98277-8857 | % Ownership: | 100.0000000000% |
| | | Exemptions: | |
Taxes and Assessment Details
Values
| (+) Improvement Homesite Value: | + | $0 | |
| (+) Improvement Non-Homesite Value: | + | $208,859 | |
| (+) Land Homesite Value: | + | $0 | |
| (+) Land Non-Homesite Value: | + | $260,000 | |
| (+) Curr Use (HS): | + | $0 | $0 |
| (+) Curr Use (NHS): | + | $0 | $0 |
| | | -------------------------- | |
| (=) Market Value: | = | $468,859 | |
| (–) Productivity Loss: | – | $0 | |
| | | -------------------------- | |
| (=) Subtotal: | = | $468,859 | |
| (+) Senior Appraised Value: | + | $0 | |
| (+) Non-Senior Appraised Value: | + | $468,859 | |
| | | -------------------------- | |
| (=) Total Appraised Value: | = | $468,859 | |
| (–) Senior Exemption Loss: | – | $0 | |
| (–) Exemption Loss: | – | $0 | |
| | | -------------------------- | |
| (=) Taxable Value: | = | $468,859 | |
Taxing Jurisdiction
| Owner: | PEDERSON, VERN M | | |
| % Ownership: | 100.0000000000% | | |
| Total Value: | $468,859 | | |
| Tax Area: | 110 - APPRAISER-OH Schl Dist, outside OH, improved & 1 acre or less |
| CF | Conservation Futures | 0.0316035091 | $468,859 | $468,859 | $14.82 | | |
| CEM1 | Cemetery #1 | 0.0040320932 | $468,859 | $468,859 | $1.89 | | |
| FIRE2 | Fire & Rescue Dist #2 N Whidbey GEN | 0.5475949600 | $468,859 | $468,859 | $256.74 | | |
| HOBOND | Hospital BOND | 0.1910887512 | $468,859 | $468,859 | $89.59 | | |
| HOGEN | Hospital GEN | 0.3902502903 | $468,859 | $468,859 | $182.97 | | |
| CE | County Current Expense | 0.3708482477 | $468,859 | $468,859 | $173.88 | | |
| CR | County Roads | 0.4584763726 | $468,859 | $468,859 | $214.96 | | |
| ISLANDEMS | Hospital GEN (EMS) | 0.5000000000 | $468,859 | $468,859 | $234.43 | | |
| LIB | Library Sno-Isle GEN | 0.3153421757 | $468,859 | $468,859 | $147.85 | | |
| NWHIDPRMT | P & R N Whidbey GEN | 0.2004466701 | $468,859 | $468,859 | $93.98 | | |
| SCH201MO | School 201 Enrichment | 1.8559231640 | $468,859 | $468,859 | $870.17 | | |
| ST | State School | 1.3035497053 | $468,859 | $468,859 | $611.18 | | |
| ST2 | State School Part 2 | 0.8169543533 | $468,859 | $468,859 | $383.04 | | |
| | Total Tax Rate: | 6.9861102925 | | | | | |
| | | | | Taxes w/Current Exemptions: | $3,275.50 | | |
| | | | | Taxes w/o Exemptions: | $3,275.50 | | |
Improvement / Building
| Improvement #1: | RESIDENTIAL | State Code: | Y | 1558.0 sqft | Value: | $208,859 |
| Bathrooms: | 2 | Bedrooms: | 3 | | Ceiling: | DRY WALL SPRAYED | Exterior Wall/Cover: | WOOD SIDING | | Floor Covering: | CARPET/VINYL 80-20 | Floor Structure: | WOOD W/SUBFLOOR | | Foundation: | CONCRETE | Heating: | BASEBOARD ELECTRIC | | Interior Finish: | DRYWALL PAINT | Plumbing Fixture Cnt: | 9 | | Roof Slope: | 4" IN 12" | Roof Structure/Cover: | CJ ASPHALT |
|
| | Type | Description | Class CD | Sub Class CD | Year Built | Area |
| | BAS | BASE/MAIN FLOOR | 3 | 0 | 1977 | 1108.0 |
| | BGR | BASEMENT GARAGE | 3 | 0 | 1977 | 510.0 |
| | OWP | OPEN WOOD PORCH W/STEPS | 3 | 0 | 1977 | 39.0 |
| | OWP | OPEN WOOD PORCH W/STEPS | 3 | 0 | 1977 | 138.0 |
| | DWN | DOWNSTAIRS LIVING AREA | 3 | 0 | 1977 | 450.0 |
Sketch
Property Image
Land
| 1 | 14 | SQ (08001-12000) | 0.0000 | 0.00 | 0.00 | 0.00 | 1.00 | $260,000 | $0 |
Roll Value History
| 2026 | N/A | N/A | N/A | N/A | N/A |
| 2025 | $208,859 | $260,000 | $0 | $468,859 | $468,859 |
| 2024 | $216,366 | $200,000 | $0 | $416,366 | $416,366 |
| 2023 | $219,403 | $200,000 | $0 | $419,403 | $419,403 |
| 2022 | $201,419 | $200,000 | $0 | $401,419 | $401,419 |
| 2021 | $177,538 | $150,000 | $0 | $327,538 | $327,538 |
| 2020 | $173,259 | $145,000 | $0 | $318,259 | $318,259 |
| 2019 | $126,540 | $185,000 | $0 | $311,540 | $311,540 |
| 2018 | $126,953 | $175,000 | $0 | $301,953 | $301,953 |
| 2017 | $107,793 | $140,000 | $0 | $247,793 | $247,793 |
| 2016 | $109,496 | $120,000 | $0 | $229,496 | $229,496 |
| 2015 | $111,198 | $75,000 | $0 | $186,198 | $186,198 |
| 2014 | $112,901 | $70,000 | $0 | $182,901 | $182,901 |
| 2013 | $114,604 | $70,000 | $0 | $184,604 | $184,604 |
| 2012 | $116,306 | $76,500 | $0 | $192,806 | $192,806 |
| 2011 | $118,009 | $90,000 | $0 | $208,009 | $208,009 |
| 2010 | $128,823 | $90,000 | $0 | $218,823 | $218,823 |
| 2009 | $134,376 | $110,000 | $0 | $244,376 | $244,376 |
| 2008 | $136,101 | $112,320 | $0 | $248,421 | $248,421 |
| 2007 | $137,826 | $112,320 | $0 | $250,146 | $250,146 |
Deed and Sales History
| 1 | 09/26/2002 | ESTSEPPROP | Establish Separate Property | PEDERSON, VERN M | PEDERSON, VERN M | | | $0.00 | 23949 | 4033110 |
| 2 | 09/26/2002 | WD | Warranty Deed | ENGEN, GILBERT J | PEDERSON, VERN M | | | $150,739.00 | 23948 | 4033109 |
| 3 | 05/01/1985 | OTHER | Other - Misc. Documents | SHOWALTER, KENNETH R | ENGEN, GILBERT J | | | $62,000.00 | 41321 | 424389 |
| 4 | 01/01/1900 | OTHER | Other - Misc. Documents | Unknown | SHOWALTER, KENNETH R | | | $0.00 | 0 | 0 |
Payout Agreement
| No payout information available.. |