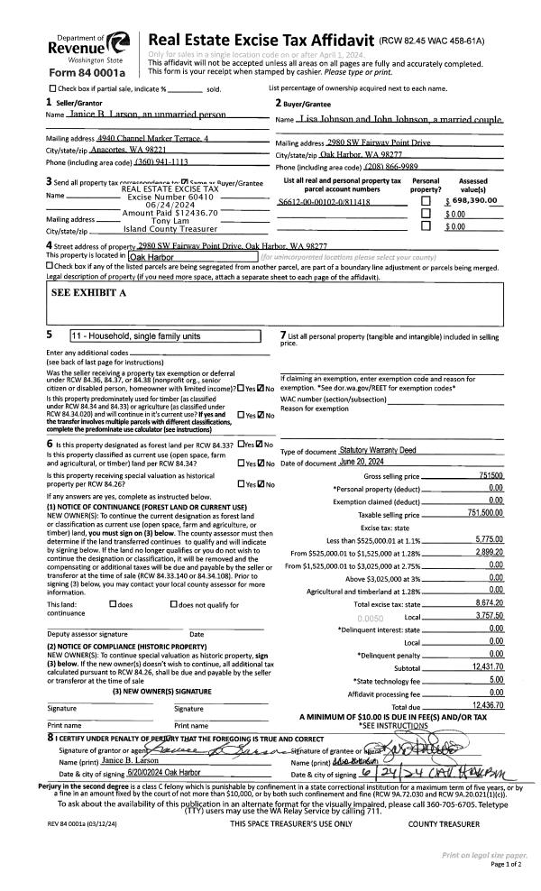
Property
Account |
| Property ID: | 366534 | Abbreviated Legal Description: | SANDY BUBBLES LOT 25 |
| Geographic ID: | S8065-00-00025-0 | Agent Code: | |
| Type: | Real | | |
| Tax Area: | 110 - APPRAISER-OH Schl Dist, outside OH, improved & 1 acre or less | Land Use Code | 11 |
| Open Space: | N | DFL | N |
| Historic Property: | N | Remodel Property: | N |
| Multi-Family Redevelopment: | N | | |
| Township: | | Section: | |
| Range: | |
Location |
| Address: | 2332 HAPPY LN OAK HARBOR, WA 98277 | Mapsco: | |
| Neighborhood: | Cycle 1 | Map ID: | 103 |
| Neighborhood CD: | 1 |
Owner |
| Name: | ROWLANDS, TIMOTHY S | Owner ID: | 299918 |
| Mailing Address: | 2332 HAPPY LN OAK HARBOR, WA 98277 | % Ownership: | 100.0000000000% |
| | | Exemptions: | SNR/DSBL |
Taxes and Assessment Details
Values
| (+) Improvement Homesite Value: | + | $261,220 | |
| (+) Improvement Non-Homesite Value: | + | $0 | |
| (+) Land Homesite Value: | + | $260,000 | |
| (+) Land Non-Homesite Value: | + | $0 | |
| (+) Curr Use (HS): | + | $0 | $0 |
| (+) Curr Use (NHS): | + | $0 | $0 |
| | | -------------------------- | |
| (=) Market Value: | = | $521,220 | |
| (–) Productivity Loss: | – | $0 | |
| | | -------------------------- | |
| (=) Subtotal: | = | $521,220 | |
| (+) Senior Appraised Value: | + | $519,972 | |
| (+) Non-Senior Appraised Value: | + | $0 | |
| | | -------------------------- | |
| (=) Total Appraised Value: | = | $519,972 | |
| (–) Senior Exemption Loss: | – | $0 | |
| (–) Exemption Loss: | – | $0 | |
| | | -------------------------- | |
| (=) Taxable Value: | = | $519,972 | |
Taxing Jurisdiction
| Owner: | ROWLANDS, TIMOTHY S | | |
| % Ownership: | 100.0000000000% | | |
| Total Value: | $521,220 | | |
| Tax Area: | 110 - APPRAISER-OH Schl Dist, outside OH, improved & 1 acre or less |
| CF | Conservation Futures | 0.0316035091 | $521,220 | $519,972 | $16.43 | | |
| CEM1 | Cemetery #1 | 0.0040320932 | $521,220 | $519,972 | $2.10 | | |
| FIRE2 | Fire & Rescue Dist #2 N Whidbey GEN | 0.5475949600 | $521,220 | $519,972 | $284.73 | | |
| HOBOND | Hospital BOND | 0.0000000000 | $521,220 | $0 | $0.00 | | |
| HOGEN | Hospital GEN | 0.3902502903 | $521,220 | $519,972 | $202.92 | | |
| CE | County Current Expense | 0.3708482477 | $521,220 | $519,972 | $192.83 | | |
| CR | County Roads | 0.4584763726 | $521,220 | $519,972 | $238.39 | | |
| ISLANDEMS | Hospital GEN (EMS) | 0.5000000000 | $521,220 | $519,972 | $259.99 | | |
| LIB | Library Sno-Isle GEN | 0.3153421757 | $521,220 | $519,972 | $163.97 | | |
| NWHIDPRMT | P & R N Whidbey GEN | 0.2004466701 | $521,220 | $519,972 | $104.23 | | |
| SCH201MO | School 201 Enrichment | 0.0000000000 | $521,220 | $0 | $0.00 | | |
| ST | State School | 1.3035497053 | $521,220 | $519,972 | $677.81 | | |
| ST2 | State School Part 2 | 0.0000000000 | $521,220 | $0 | $0.00 | | |
| | Total Tax Rate: | 4.1221440240 | | | | | |
| | | | | Taxes w/Current Exemptions: | $2,143.40 | | |
| | | | | Taxes w/o Exemptions: | $3,641.30 | | |
Improvement / Building
| Improvement #1: | RESIDENTIAL | State Code: | Y | 1743.0 sqft | Value: | $261,220 |
| Bathrooms: | 2.5 | Bedrooms: | 3 | | Ceiling: | DRY WALL SPRAYED | Exterior Wall/Cover: | VINYL | | Floor Covering: | CARPET/VINYL 60-40 | Floor Structure: | WOOD W/SUBFLOOR | | Foundation: | CONCRETE | Heating: | BASEBOARD ELECTRIC | | Interior Finish: | DRYWALL PAINT | Plumbing Fixture Cnt: | 11 | | Roof Slope: | 4" IN 12" | Roof Structure/Cover: | CJ ALUMINIUM HEAVY |
|
| | Type | Description | Class CD | Sub Class CD | Year Built | Area |
| | BAS | BASE/MAIN FLOOR | 3 | 0 | 1977 | 1182.0 |
| | BIG | BUILT IN GARAGE | 3 | 0 | 1977 | 649.0 |
| | OWP | OPEN WOOD PORCH W/STEPS | 3 | 0 | 1977 | 36.0 |
| | OWP | OPEN WOOD PORCH W/STEPS | 3 | 0 | 1977 | 154.0 |
| | DWN | DOWNSTAIRS LIVING AREA | 3 | 0 | 1977 | 561.0 |
Sketch
Property Image
Land
| 1 | 14 | SQ (08001-12000) | 0.0000 | 0.00 | 0.00 | 0.00 | 1.00 | $260,000 | $0 |
Roll Value History
| 2026 | N/A | N/A | N/A | N/A | N/A |
| 2025 | $261,220 | $260,000 | $0 | $521,220 | $519,972 |
| 2024 | $269,972 | $250,000 | $0 | $519,972 | $519,972 |
| 2023 | $273,512 | $250,000 | $0 | $523,512 | $523,512 |
| 2022 | $250,878 | $250,000 | $0 | $500,878 | $500,878 |
| 2021 | $220,934 | $150,000 | $0 | $370,934 | $370,934 |
| 2020 | $215,397 | $145,000 | $0 | $360,397 | $360,397 |
| 2019 | $152,653 | $185,000 | $0 | $337,653 | $337,653 |
| 2018 | $153,140 | $175,000 | $0 | $328,140 | $328,140 |
| 2017 | $135,930 | $140,000 | $0 | $275,930 | $275,930 |
| 2016 | $137,873 | $120,000 | $0 | $257,873 | $257,873 |
| 2015 | $139,813 | $75,000 | $0 | $214,813 | $214,813 |
| 2014 | $141,756 | $70,000 | $0 | $211,756 | $211,756 |
| 2013 | $143,698 | $70,000 | $0 | $213,698 | $213,698 |
| 2012 | $145,640 | $76,500 | $0 | $222,140 | $222,140 |
| 2011 | $148,080 | $90,000 | $0 | $238,080 | $238,080 |
| 2010 | $176,817 | $90,000 | $0 | $266,817 | $266,817 |
| 2009 | $184,309 | $110,000 | $0 | $294,309 | $294,309 |
| 2008 | $186,564 | $112,320 | $0 | $298,884 | $298,884 |
| 2007 | $188,795 | $112,320 | $0 | $301,115 | $301,115 |
Deed and Sales History
| 1 | 06/17/2021 | WD | Warranty Deed | CUFF, SHARON | ROWLANDS, TIMOTHY S | | | $520,000.00 | 48823 | 4522639 |
| 2 | 12/03/2019 | WD | Warranty Deed | SALEH, SAM W | CUFF, SHARON | | | $355,000.00 | 41464 | 4477495 |
| 3 | 07/14/2015 | WD | Warranty Deed | LEDBETTER, DANE | SALEH, SAM W | | | $266,000.00 | 20450 | 4382117 |
| 4 | 03/03/2014 | DECREE | Divorce Decree/Legal Separation | LEDBETTER, DANE | LEDBETTER, DANE | | | $0.00 | 15214 | 4359040 |
| 5 | 11/20/2009 | TRUSTEED | Trustee's Deed | CITIBANK NA, | LEDBETTER, DANE | | | $0.00 | 92850 | 4264039 |
| 6 | 06/17/2009 | TRUSTEED | Trustee's Deed | NELSON, DENNIS L | CITIBANK NA, | | | $444,811.00 | 91387 | 4254476 |
| 7 | 08/03/2006 | WD | Warranty Deed | PRICE, ROBERT | NELSON, DENNIS L | | | $324,500.00 | 63386 | 4178056 |
| 8 | 12/22/1998 | WD | Warranty Deed | TODD, MICHAEL L | PRICE, ROBERT | | | $126,500.00 | 85219 | 98028470 |
| 9 | 06/01/1981 | WD | Warranty Deed | DAVIES, ROBERT T | TODD, MICHAEL L | | | $75,000.00 | 11761 | 384050 |
| 10 | 01/01/1900 | OTHER | Other - Misc. Documents | Unknown | DAVIES, ROBERT T | | | $0.00 | 0 | 0 |
Payout Agreement
| No payout information available.. |