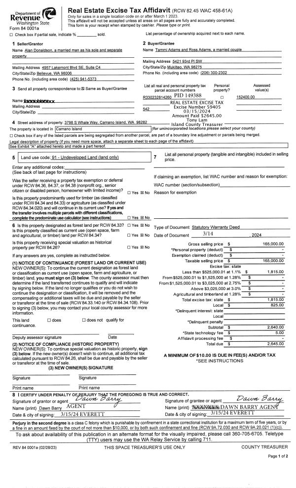
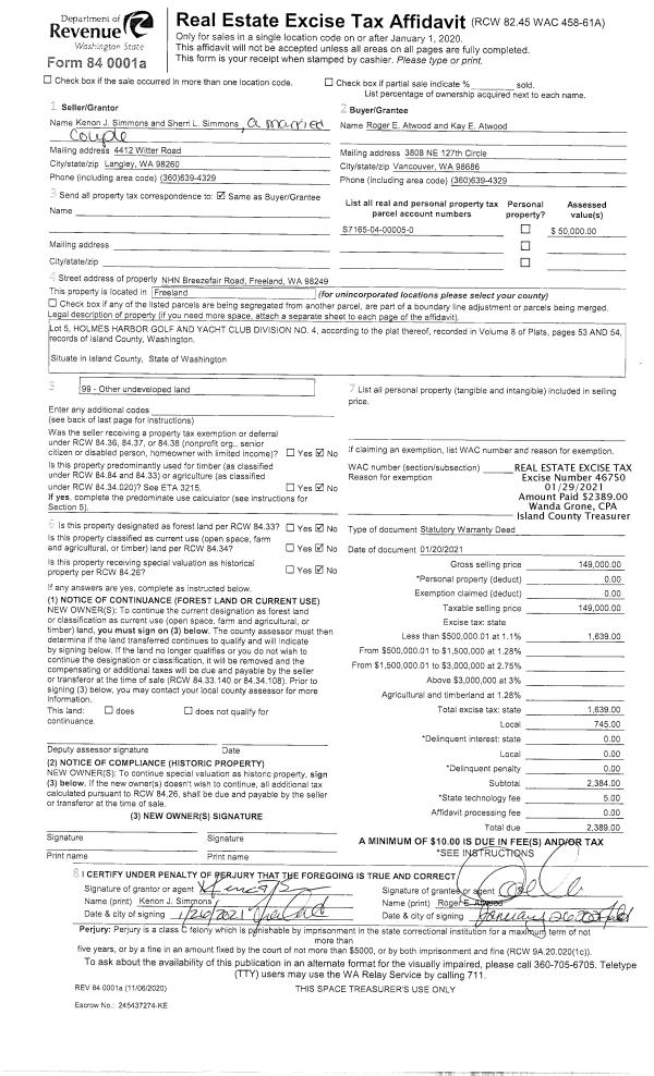
Property
Account |
| Property ID: | 366598 | Abbreviated Legal Description: | SANDY BUBBLES LOT 31 |
| Geographic ID: | S8065-00-00031-0 | Agent Code: | |
| Type: | Real | | |
| Tax Area: | 110 - APPRAISER-OH Schl Dist, outside OH, improved & 1 acre or less | Land Use Code | 11 |
| Open Space: | N | DFL | N |
| Historic Property: | N | Remodel Property: | N |
| Multi-Family Redevelopment: | N | | |
| Township: | | Section: | |
| Range: | |
Location |
| Address: | 2313 WEST BEACH RD OAK HARBOR, WA 98277 | Mapsco: | |
| Neighborhood: | Cycle 1 | Map ID: | 103 |
| Neighborhood CD: | 1 |
Owner |
| Name: | GUO, YU DAVID | Owner ID: | 312139 |
| Mailing Address: | HSINPING LILY LIAO 13620 SOUTHEAST 43 PL BELLEVUE, WA 98006 | % Ownership: | 100.0000000000% |
| | | Exemptions: | |
Taxes and Assessment Details
Values
| (+) Improvement Homesite Value: | + | $0 | |
| (+) Improvement Non-Homesite Value: | + | $521,024 | |
| (+) Land Homesite Value: | + | $0 | |
| (+) Land Non-Homesite Value: | + | $350,000 | |
| (+) Curr Use (HS): | + | $0 | $0 |
| (+) Curr Use (NHS): | + | $0 | $0 |
| | | -------------------------- | |
| (=) Market Value: | = | $871,024 | |
| (–) Productivity Loss: | – | $0 | |
| | | -------------------------- | |
| (=) Subtotal: | = | $871,024 | |
| (+) Senior Appraised Value: | + | $0 | |
| (+) Non-Senior Appraised Value: | + | $871,024 | |
| | | -------------------------- | |
| (=) Total Appraised Value: | = | $871,024 | |
| (–) Senior Exemption Loss: | – | $0 | |
| (–) Exemption Loss: | – | $0 | |
| | | -------------------------- | |
| (=) Taxable Value: | = | $871,024 | |
Taxing Jurisdiction
| Owner: | GUO, YU DAVID | | |
| % Ownership: | 100.0000000000% | | |
| Total Value: | $871,024 | | |
| Tax Area: | 110 - APPRAISER-OH Schl Dist, outside OH, improved & 1 acre or less |
| CF | Conservation Futures | 0.0316035091 | $871,024 | $871,024 | $27.53 | | |
| CEM1 | Cemetery #1 | 0.0040320932 | $871,024 | $871,024 | $3.51 | | |
| FIRE2 | Fire & Rescue Dist #2 N Whidbey GEN | 0.5475949600 | $871,024 | $871,024 | $476.97 | | |
| HOBOND | Hospital BOND | 0.1910887512 | $871,024 | $871,024 | $166.44 | | |
| HOGEN | Hospital GEN | 0.3902502903 | $871,024 | $871,024 | $339.92 | | |
| CE | County Current Expense | 0.3708482477 | $871,024 | $871,024 | $323.02 | | |
| CR | County Roads | 0.4584763726 | $871,024 | $871,024 | $399.34 | | |
| ISLANDEMS | Hospital GEN (EMS) | 0.5000000000 | $871,024 | $871,024 | $435.51 | | |
| LIB | Library Sno-Isle GEN | 0.3153421757 | $871,024 | $871,024 | $274.67 | | |
| NWHIDPRMT | P & R N Whidbey GEN | 0.2004466701 | $871,024 | $871,024 | $174.59 | | |
| SCH201MO | School 201 Enrichment | 1.8559231640 | $871,024 | $871,024 | $1,616.55 | | |
| ST | State School | 1.3035497053 | $871,024 | $871,024 | $1,135.42 | | |
| ST2 | State School Part 2 | 0.8169543533 | $871,024 | $871,024 | $711.59 | | |
| | Total Tax Rate: | 6.9861102925 | | | | | |
| | | | | Taxes w/Current Exemptions: | $6,085.06 | | |
| | | | | Taxes w/o Exemptions: | $6,085.06 | | |
Improvement / Building
| Improvement #1: | RESIDENTIAL | State Code: | Y | 2645.0 sqft | Value: | $521,024 |
| Bathrooms: | 3.5 | Bedrooms: | 4 | | Ceiling: | DRYWALL PAINTED | Exterior Wall/Cover: | CEMENT FIBER | | Floor Covering: | HARDWOOD/CARP 20-80 | Floor Structure: | WOOD W/SUBFLOOR | | Foundation: | CONCRETE | Heating: | FHA GAS | | Interior Finish: | DRYWALL PAINT | Plumbing Fixture Cnt: | 13 | | Roof Slope: | 12" IN 12" | Roof Structure/Cover: | CJ ALUMINIUM HEAVY |
|
| | Type | Description | Class CD | Sub Class CD | Year Built | Area |
| | BAS | BASE/MAIN FLOOR | 4 | 0 | 1989 | 1095.5 |
| | BIG | BUILT IN GARAGE | 4 | 0 | 1989 | 888.0 |
| | UPS | UPPER STORY | 4 | 0 | 1989 | 1165.5 |
| | BAW | BALCONY WOOD RAIL | 4 | 0 | 1989 | 144.0 |
| | OWP | OPEN WOOD PORCH W/STEPS | 4 | 0 | 1989 | 358.8 |
| | OWC | OPEN WOOD PORCH W/STEPS/ROOF/C | 4 | 0 | 1989 | 48.0 |
| | ENP | ENCLOSED PORCH | 4 | 0 | 1989 | 168.0 |
| | UPH | HALF STORY | 4 | 0 | 1989 | 384.0 |
Sketch
Property Image
Land
| 1 | HB | HIGH BLUFF | 0.5778 | 25168.97 | 70.00 | 0.00 | 1.00 | $350,000 | $0 |
Roll Value History
| 2026 | N/A | N/A | N/A | N/A | N/A |
| 2025 | $521,024 | $350,000 | $0 | $871,024 | $871,024 |
| 2024 | $476,539 | $290,000 | $0 | $766,539 | $766,539 |
| 2023 | $457,790 | $290,000 | $0 | $747,790 | $747,790 |
| 2022 | $420,200 | $290,000 | $0 | $710,200 | $710,200 |
| 2021 | $370,319 | $225,000 | $0 | $595,319 | $595,319 |
| 2020 | $378,461 | $200,000 | $0 | $578,461 | $578,461 |
| 2019 | $283,846 | $220,000 | $0 | $503,846 | $503,846 |
| 2018 | $284,765 | $200,000 | $0 | $484,765 | $484,765 |
| 2017 | $264,137 | $200,000 | $0 | $464,137 | $464,137 |
| 2016 | $267,656 | $200,000 | $0 | $467,656 | $467,656 |
| 2015 | $271,179 | $150,000 | $0 | $421,179 | $421,179 |
| 2014 | $274,701 | $150,000 | $0 | $424,701 | $424,701 |
| 2013 | $278,223 | $121,715 | $0 | $399,938 | $399,938 |
| 2012 | $281,745 | $121,715 | $0 | $403,460 | $403,460 |
| 2011 | $287,433 | $121,715 | $0 | $409,148 | $409,148 |
| 2010 | $300,258 | $121,715 | $0 | $421,973 | $421,973 |
| 2009 | $313,083 | $124,251 | $0 | $437,334 | $437,334 |
| 2008 | $316,859 | $124,251 | $0 | $441,110 | $441,110 |
| 2007 | $320,708 | $124,247 | $0 | $444,955 | $444,955 |
Deed and Sales History
| 1 | 04/17/2024 | WD | Warranty Deed | REIERSON, PETER | GUO, YU DAVID | | | $928,000.00 | 59764 | 4571659 |
|   | |
| 2 | 10/25/2021 | QCD | Quit Claim Deed | REIERSON, PETER V | REIERSON, PETER | | | $0.00 | 50905 | 4533842 |
| 3 | 10/01/2020 | WD | Warranty Deed | REIS TRUSTEE, MARGOT | REIERSON, PETER V | | | $624,000.00 | 45088 | 4498540 |
|   | |
| 4 | 01/07/2008 | OTHER | Other - Misc. Documents | REIS TRUSTEE, MARGOT | REIS TRUSTEE, MARGOT | | | $0.00 | 0 | 80556 |
| 5 | 03/22/2003 | QCD | Quit Claim Deed | REIS, MARLOT | REIS TRUSTEE, MARGOT | | | $0.00 | 32221 | 4060359 |
| 6 | 02/07/2003 | QCD | Quit Claim Deed | REIS, MARLOT | REIS, MARLOT | | | $0.00 | 30544 | 4047475 |
| 7 | 10/20/2000 | QCD | Quit Claim Deed | REIS, MARLOT | REIS, MARLOT | | | $0.00 | 4402 | 20020229 |
| 8 | 08/09/2000 | QCD | Quit Claim Deed | REIS, RON/NANCY | REIS, MARLOT | | | $0.00 | 3003 | 20014036 |
| 9 | 12/01/1997 | WD | Warranty Deed | CAMPION, CHRISTOPHER L | REIS, RON/NANCY | | | $254,600.00 | 74432 | 97021267 |
| 10 | 04/01/1990 | WD | Warranty Deed | CAMPION, CHRISTOPHER L | CAMPION, CHRISTOPHER L | | | $109,500.00 | 2275 | 90007444 |
| 11 | 11/01/1989 | WD | Warranty Deed | HAMMING, GREGORY T | CAMPION, CHRISTOPHER L | | | $33,000.00 | 96095 | 89019605 |
| 12 | 11/01/1989 | QCD | Quit Claim Deed | SANDUSKY, J W | HAMMING, GREGORY T | | | $0.00 | 25 | 90000075 |
| 13 | 01/01/1900 | OTHER | Other - Misc. Documents | Unknown | SANDUSKY, J W | | | $0.00 | 0 | 0 |
Payout Agreement
| No payout information available.. |