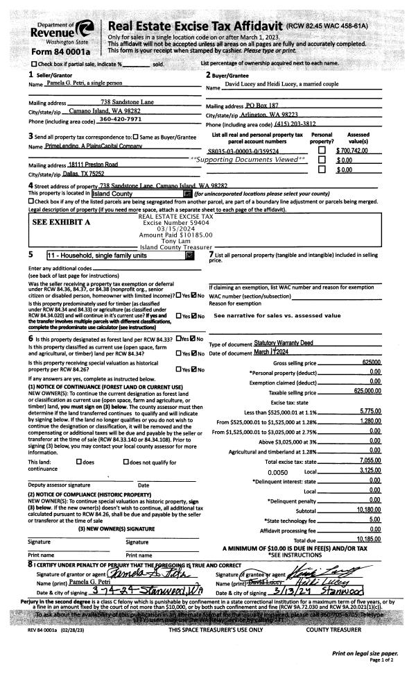
Property
Account |
| Property ID: | 366605 | Abbreviated Legal Description: | SANDY BUBBLES LOT 32 |
| Geographic ID: | S8065-00-00032-0 | Agent Code: | |
| Type: | Real | | |
| Tax Area: | 119 - APPRAISER-OH Schl Dist, outside OH, vacant & 50 acres or less | Land Use Code | 99 |
| Open Space: | N | DFL | N |
| Historic Property: | N | Remodel Property: | N |
| Multi-Family Redevelopment: | N | | |
| Township: | | Section: | |
| Range: | |
Location |
| Address: | | Mapsco: | |
| Neighborhood: | Cycle 1 | Map ID: | 103 |
| Neighborhood CD: | 1 |
Owner |
| Name: | GUO, YU DAVID | Owner ID: | 312139 |
| Mailing Address: | HSINPING LILY LIAO 13620 SOUTHEAST 43 PL BELLEVUE, WA 98006 | % Ownership: | 100.0000000000% |
| | | Exemptions: | |
Taxes and Assessment Details
Values
| (+) Improvement Homesite Value: | + | $0 | |
| (+) Improvement Non-Homesite Value: | + | $0 | |
| (+) Land Homesite Value: | + | $0 | |
| (+) Land Non-Homesite Value: | + | $225,000 | |
| (+) Curr Use (HS): | + | $0 | $0 |
| (+) Curr Use (NHS): | + | $0 | $0 |
| | | -------------------------- | |
| (=) Market Value: | = | $225,000 | |
| (–) Productivity Loss: | – | $0 | |
| | | -------------------------- | |
| (=) Subtotal: | = | $225,000 | |
| (+) Senior Appraised Value: | + | $0 | |
| (+) Non-Senior Appraised Value: | + | $225,000 | |
| | | -------------------------- | |
| (=) Total Appraised Value: | = | $225,000 | |
| (–) Senior Exemption Loss: | – | $0 | |
| (–) Exemption Loss: | – | $0 | |
| | | -------------------------- | |
| (=) Taxable Value: | = | $225,000 | |
Taxing Jurisdiction
| Owner: | GUO, YU DAVID | | |
| % Ownership: | 100.0000000000% | | |
| Total Value: | $225,000 | | |
| Tax Area: | 119 - APPRAISER-OH Schl Dist, outside OH, vacant & 50 acres or less |
| CF | Conservation Futures | 0.0316035091 | $225,000 | $225,000 | $7.11 | | |
| CEM1 | Cemetery #1 | 0.0040320932 | $225,000 | $225,000 | $0.91 | | |
| HOBOND | Hospital BOND | 0.1910887512 | $225,000 | $225,000 | $42.99 | | |
| HOGEN | Hospital GEN | 0.3902502903 | $225,000 | $225,000 | $87.81 | | |
| CE | County Current Expense | 0.3708482477 | $225,000 | $225,000 | $83.44 | | |
| CR | County Roads | 0.4584763726 | $225,000 | $225,000 | $103.16 | | |
| ISLANDEMS | Hospital GEN (EMS) | 0.5000000000 | $225,000 | $225,000 | $112.50 | | |
| LIB | Library Sno-Isle GEN | 0.3153421757 | $225,000 | $225,000 | $70.95 | | |
| NWHIDPRMT | P & R N Whidbey GEN | 0.2004466701 | $225,000 | $225,000 | $45.10 | | |
| SCH201MO | School 201 Enrichment | 1.8559231640 | $225,000 | $225,000 | $417.58 | | |
| ST | State School | 1.3035497053 | $225,000 | $225,000 | $293.30 | | |
| ST2 | State School Part 2 | 0.8169543533 | $225,000 | $225,000 | $183.81 | | |
| | Total Tax Rate: | 6.4385153325 | | | | | |
| | | | | Taxes w/Current Exemptions: | $1,448.66 | | |
| | | | | Taxes w/o Exemptions: | $1,448.66 | | |
Improvement / Building
Sketch
| No sketches available for this property. |
Property Image
Land
| 1 | HB | HIGH BLUFF | 0.5675 | 24720.30 | 70.00 | 0.00 | 1.00 | $225,000 | $0 |
Roll Value History
| 2026 | N/A | N/A | N/A | N/A | N/A |
| 2025 | $0 | $225,000 | $0 | $225,000 | $225,000 |
| 2024 | $0 | $200,000 | $0 | $200,000 | $200,000 |
| 2023 | $0 | $200,000 | $0 | $200,000 | $200,000 |
| 2022 | $0 | $150,000 | $0 | $150,000 | $150,000 |
| 2021 | $0 | $150,000 | $0 | $150,000 | $150,000 |
| 2020 | $0 | $145,000 | $0 | $145,000 | $145,000 |
| 2019 | $0 | $160,000 | $0 | $160,000 | $160,000 |
| 2018 | $0 | $150,000 | $0 | $150,000 | $150,000 |
| 2017 | $0 | $150,000 | $0 | $150,000 | $150,000 |
| 2016 | $0 | $150,000 | $0 | $150,000 | $150,000 |
| 2015 | $0 | $150,000 | $0 | $150,000 | $150,000 |
| 2014 | $0 | $150,000 | $0 | $150,000 | $150,000 |
| 2013 | $0 | $121,715 | $0 | $121,715 | $121,715 |
| 2012 | $0 | $121,715 | $0 | $121,715 | $121,715 |
| 2011 | $0 | $121,715 | $0 | $121,715 | $121,715 |
| 2010 | $0 | $121,715 | $0 | $121,715 | $121,715 |
| 2009 | $0 | $121,761 | $0 | $121,761 | $121,761 |
| 2008 | $0 | $121,761 | $0 | $121,761 | $121,761 |
| 2007 | $0 | $89,531 | $0 | $89,531 | $89,531 |
Deed and Sales History
| 1 | 04/17/2024 | WD | Warranty Deed | REIERSON, PETER | GUO, YU DAVID | | | $928,000.00 | 59764 | 4571659 |
|   | |
| 2 | 10/25/2021 | QCD | Quit Claim Deed | REIERSON, PETER V | REIERSON, PETER | | | $0.00 | 50905 | 4533842 |
| 3 | 10/01/2020 | WD | Warranty Deed | REIS TRUSTEE, MARGOT | REIERSON, PETER V | | | $624,000.00 | 45088 | 4498540 |
|   | |
| 4 | 01/07/2008 | OTHER | Other - Misc. Documents | REIS TRUSTEE, MARGOT | REIS TRUSTEE, MARGOT | | | $0.00 | 80556 | 0 |
| 5 | 03/22/2003 | QCD | Quit Claim Deed | REIS, MARGOT | REIS TRUSTEE, MARGOT | | | $0.00 | 32221 | 4060359 |
| 6 | 08/30/2000 | WD | Warranty Deed | NELSON, WILLIAM R | REIS, MARGOT | | | $69,500.00 | 3459 | 20016008 |
| 7 | 02/01/1990 | QCD | Quit Claim Deed | NELSON, WILLIAM R | NELSON, WILLIAM R | | | $0.00 | 1511 | 90004867 |
| 8 | 11/01/1989 | WD | Warranty Deed | SANDUSKY, J W | NELSON, WILLIAM R | | | $31,400.00 | 95285 | 89017012 |
| 9 | 01/01/1900 | OTHER | Other - Misc. Documents | Unknown | SANDUSKY, J W | | | $0.00 | 0 | 0 |
Payout Agreement
| No payout information available.. |