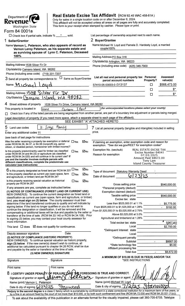
Property
Account |
| Property ID: | 366669 | Abbreviated Legal Description: | SANDY BUBBLES LOT 38 |
| Geographic ID: | S8065-00-00038-0 | Agent Code: | |
| Type: | Real | | |
| Tax Area: | 110 - APPRAISER-OH Schl Dist, outside OH, improved & 1 acre or less | Land Use Code | 11 |
| Open Space: | N | DFL | N |
| Historic Property: | N | Remodel Property: | N |
| Multi-Family Redevelopment: | N | | |
| Township: | | Section: | |
| Range: | |
Location |
| Address: | 2355 WEST BEACH RD OAK HARBOR, WA 98277 | Mapsco: | |
| Neighborhood: | Cycle 1 | Map ID: | 103 |
| Neighborhood CD: | 1 |
Owner |
| Name: | COWART, LAVAKE | Owner ID: | 314158 |
| Mailing Address: | MAI PHAM COWART 2355 W BEACH RD OAK HARBOR, WA 98277 | % Ownership: | 100.0000000000% |
| | | Exemptions: | |
Taxes and Assessment Details
Values
| (+) Improvement Homesite Value: | + | $0 | |
| (+) Improvement Non-Homesite Value: | + | $474,329 | |
| (+) Land Homesite Value: | + | $0 | |
| (+) Land Non-Homesite Value: | + | $290,000 | |
| (+) Curr Use (HS): | + | $0 | $0 |
| (+) Curr Use (NHS): | + | $0 | $0 |
| | | -------------------------- | |
| (=) Market Value: | = | $764,329 | |
| (–) Productivity Loss: | – | $0 | |
| | | -------------------------- | |
| (=) Subtotal: | = | $764,329 | |
| (+) Senior Appraised Value: | + | $0 | |
| (+) Non-Senior Appraised Value: | + | $764,329 | |
| | | -------------------------- | |
| (=) Total Appraised Value: | = | $764,329 | |
| (–) Senior Exemption Loss: | – | $0 | |
| (–) Exemption Loss: | – | $0 | |
| | | -------------------------- | |
| (=) Taxable Value: | = | $764,329 | |
Taxing Jurisdiction
| Owner: | COWART, LAVAKE | | |
| % Ownership: | 100.0000000000% | | |
| Total Value: | $764,329 | | |
| Tax Area: | 110 - APPRAISER-OH Schl Dist, outside OH, improved & 1 acre or less |
| CF | Conservation Futures | 0.0316035091 | $764,329 | $764,329 | $24.16 | | |
| CEM1 | Cemetery #1 | 0.0040320932 | $764,329 | $764,329 | $3.08 | | |
| FIRE2 | Fire & Rescue Dist #2 N Whidbey GEN | 0.5475949600 | $764,329 | $764,329 | $418.54 | | |
| HOBOND | Hospital BOND | 0.1910887512 | $764,329 | $764,329 | $146.05 | | |
| HOGEN | Hospital GEN | 0.3902502903 | $764,329 | $764,329 | $298.28 | | |
| CE | County Current Expense | 0.3708482477 | $764,329 | $764,329 | $283.45 | | |
| CR | County Roads | 0.4584763726 | $764,329 | $764,329 | $350.43 | | |
| ISLANDEMS | Hospital GEN (EMS) | 0.5000000000 | $764,329 | $764,329 | $382.16 | | |
| LIB | Library Sno-Isle GEN | 0.3153421757 | $764,329 | $764,329 | $241.03 | | |
| NWHIDPRMT | P & R N Whidbey GEN | 0.2004466701 | $764,329 | $764,329 | $153.21 | | |
| SCH201MO | School 201 Enrichment | 1.8559231640 | $764,329 | $764,329 | $1,418.54 | | |
| ST | State School | 1.3035497053 | $764,329 | $764,329 | $996.34 | | |
| ST2 | State School Part 2 | 0.8169543533 | $764,329 | $764,329 | $624.42 | | |
| | Total Tax Rate: | 6.9861102925 | | | | | |
| | | | | Taxes w/Current Exemptions: | $5,339.69 | | |
| | | | | Taxes w/o Exemptions: | $5,339.69 | | |
Improvement / Building
| Improvement #1: | RESIDENTIAL | State Code: | Y | 2082.0 sqft | Value: | $474,329 |
| Bathrooms: | 2 | Bedrooms: | 2 | | Ceiling: | DRYWALL PAINTED | Exterior Wall/Cover: | WOOD SIDING | | Floor Covering: | SLATE | Floor Structure: | WOOD W/SUBFLOOR | | Foundation: | CONCRETE | Heating: | CEILING ELECTRIC | | Interior Finish: | DRYWALL PAINT | Plumbing Fixture Cnt: | 12 | | Roof Slope: | 8" IN 12" | Roof Structure/Cover: | CJ ASPHALT |
|
| | Type | Description | Class CD | Sub Class CD | Year Built | Area |
| | BAS | BASE/MAIN FLOOR | 4 | 0 | 1992 | 2082.0 |
| | UB8 | BASEMENT UNFINISHED 8" | 4 | 0 | 1992 | 1372.0 |
| | BIG | BUILT IN GARAGE | 4 | 0 | 1992 | 686.0 |
| | OWP | OPEN WOOD PORCH W/STEPS | 4 | 0 | 1992 | 162.0 |
| | OWP | OPEN WOOD PORCH W/STEPS | 4 | 0 | 1992 | 44.0 |
| | OWP | OPEN WOOD PORCH W/STEPS | 4 | 0 | 1992 | 130.0 |
| | OWP | OPEN WOOD PORCH W/STEPS | 4 | 0 | 1992 | 288.0 |
Sketch
Property Image
Land
| 1 | HB | HIGH BLUFF | 0.0000 | 0.00 | 95.00 | 0.00 | 1.00 | $290,000 | $0 |
Roll Value History
| 2026 | N/A | N/A | N/A | N/A | N/A |
| 2025 | $474,329 | $290,000 | $0 | $764,329 | $764,329 |
| 2024 | $478,045 | $290,000 | $0 | $768,045 | $768,045 |
| 2023 | $458,729 | $290,000 | $0 | $748,729 | $98,238 |
| 2022 | $421,213 | $290,000 | $0 | $711,213 | $98,238 |
| 2021 | $371,343 | $225,000 | $0 | $596,343 | $98,238 |
| 2020 | $362,770 | $200,000 | $0 | $562,770 | $98,238 |
| 2019 | $270,964 | $220,000 | $0 | $490,964 | $98,238 |
| 2018 | $271,864 | $200,000 | $0 | $471,864 | $98,238 |
| 2017 | $253,103 | $200,000 | $0 | $453,103 | $98,238 |
| 2016 | $256,431 | $200,000 | $0 | $456,431 | $98,238 |
| 2015 | $259,765 | $200,000 | $0 | $459,765 | $98,238 |
| 2014 | $263,091 | $200,000 | $0 | $463,091 | $98,238 |
| 2013 | $266,423 | $156,758 | $0 | $423,181 | $98,238 |
| 2012 | $269,754 | $156,758 | $0 | $426,512 | $98,238 |
| 2011 | $273,573 | $156,758 | $0 | $430,331 | $98,238 |
| 2010 | $246,014 | $156,758 | $0 | $402,772 | $98,238 |
| 2009 | $256,912 | $160,024 | $0 | $416,936 | $98,238 |
| 2008 | $260,362 | $160,024 | $0 | $420,386 | $98,238 |
| 2007 | $262,819 | $161,083 | $0 | $423,902 | $98,238 |
Deed and Sales History
| 1 | 09/23/2024 | WD | Warranty Deed | GILLON JR, PAUL N | COWART, LAVAKE | | | $775,000.00 | 61484 | 4577895 |
| 2 | 01/01/1990 | WD | Warranty Deed | LOFGREN, JAMES A | GILLON, PAUL N | | | $45,000.00 | 175 | 90000530 |
| 3 | 01/01/1979 | PACD | Purchaser's Assignment | Unknown | LOFGREN, JAMES A | | | $34,250.00 | 90151 | 345790 |
Payout Agreement
| No payout information available.. |