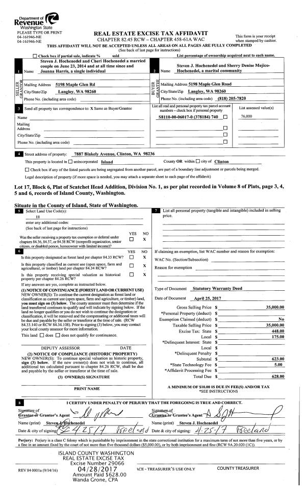
Property
Account |
| Property ID: | 366687 | Abbreviated Legal Description: | SANDY BUBBLES LOT 40 |
| Geographic ID: | S8065-00-00040-0 | Agent Code: | |
| Type: | Real | | |
| Tax Area: | 110 - APPRAISER-OH Schl Dist, outside OH, improved & 1 acre or less | Land Use Code | 11 |
| Open Space: | N | DFL | N |
| Historic Property: | N | Remodel Property: | N |
| Multi-Family Redevelopment: | N | | |
| Township: | | Section: | |
| Range: | |
Location |
| Address: | 2369 WEST BEACH RD OAK HARBOR, WA 98277 | Mapsco: | |
| Neighborhood: | Cycle 1 | Map ID: | 103 |
| Neighborhood CD: | 1 |
Owner |
| Name: | MEEK, JOHN | Owner ID: | 281915 |
| Mailing Address: | ANA SONIA MEEK 2369 WEST BEACH RD OAK HARBOR, WA 98277-8800 | % Ownership: | 100.0000000000% |
| | | Exemptions: | |
Taxes and Assessment Details
Values
| (+) Improvement Homesite Value: | + | $0 | |
| (+) Improvement Non-Homesite Value: | + | $444,269 | |
| (+) Land Homesite Value: | + | $0 | |
| (+) Land Non-Homesite Value: | + | $290,000 | |
| (+) Curr Use (HS): | + | $0 | $0 |
| (+) Curr Use (NHS): | + | $0 | $0 |
| | | -------------------------- | |
| (=) Market Value: | = | $734,269 | |
| (–) Productivity Loss: | – | $0 | |
| | | -------------------------- | |
| (=) Subtotal: | = | $734,269 | |
| (+) Senior Appraised Value: | + | $0 | |
| (+) Non-Senior Appraised Value: | + | $734,269 | |
| | | -------------------------- | |
| (=) Total Appraised Value: | = | $734,269 | |
| (–) Senior Exemption Loss: | – | $0 | |
| (–) Exemption Loss: | – | $0 | |
| | | -------------------------- | |
| (=) Taxable Value: | = | $734,269 | |
Taxing Jurisdiction
| Owner: | MEEK, JOHN | | |
| % Ownership: | 100.0000000000% | | |
| Total Value: | $734,269 | | |
| Tax Area: | 110 - APPRAISER-OH Schl Dist, outside OH, improved & 1 acre or less |
| CF | Conservation Futures | 0.0316035091 | $734,269 | $734,269 | $23.21 | | |
| CEM1 | Cemetery #1 | 0.0040320932 | $734,269 | $734,269 | $2.96 | | |
| FIRE2 | Fire & Rescue Dist #2 N Whidbey GEN | 0.5475949600 | $734,269 | $734,269 | $402.08 | | |
| HOBOND | Hospital BOND | 0.1910887512 | $734,269 | $734,269 | $140.31 | | |
| HOGEN | Hospital GEN | 0.3902502903 | $734,269 | $734,269 | $286.55 | | |
| CE | County Current Expense | 0.3708482477 | $734,269 | $734,269 | $272.30 | | |
| CR | County Roads | 0.4584763726 | $734,269 | $734,269 | $336.64 | | |
| ISLANDEMS | Hospital GEN (EMS) | 0.5000000000 | $734,269 | $734,269 | $367.13 | | |
| LIB | Library Sno-Isle GEN | 0.3153421757 | $734,269 | $734,269 | $231.55 | | |
| NWHIDPRMT | P & R N Whidbey GEN | 0.2004466701 | $734,269 | $734,269 | $147.18 | | |
| SCH201MO | School 201 Enrichment | 1.8559231640 | $734,269 | $734,269 | $1,362.75 | | |
| ST | State School | 1.3035497053 | $734,269 | $734,269 | $957.16 | | |
| ST2 | State School Part 2 | 0.8169543533 | $734,269 | $734,269 | $599.86 | | |
| | Total Tax Rate: | 6.9861102925 | | | | | |
| | | | | Taxes w/Current Exemptions: | $5,129.68 | | |
| | | | | Taxes w/o Exemptions: | $5,129.68 | | |
Improvement / Building
| Improvement #1: | RESIDENTIAL | State Code: | Y | 1596.8 sqft | Value: | $444,269 |
| Bathrooms: | 2.5 | Bedrooms: | 2 | | Ceiling: | DRYWALL PAINTED | Exterior Wall/Cover: | CEMENT FIBER | | Floor Covering: | HARDWOOD/CARP 60-40 | Floor Structure: | WOOD W/SUBFLOOR | | Foundation: | CONCRETE | Heating: | RADIANT FLOOR | | Interior Finish: | DRYWALL PAINT | Plumbing Fixture Cnt: | 12 | | Roof Slope: | 6" IN 12" | Roof Structure/Cover: | CJ ASPHALT |
|
| | Type | Description | Class CD | Sub Class CD | Year Built | Area |
| | BAS | BASE/MAIN FLOOR | 4 | 0 | 1997 | 791.4 |
| | AGR | ATTACHED GARAGE | 4 | 0 | 1997 | 546.0 |
| | UPS | UPPER STORY | 4 | 0 | 1997 | 805.4 |
| | OWP | OPEN WOOD PORCH W/STEPS | 4 | 0 | 1997 | 243.8 |
| | OWC | OPEN WOOD PORCH W/STEPS/ROOF/C | 4 | 0 | 1997 | 51.0 |
Sketch
Property Image
Land
| 1 | HB | HIGH BLUFF | 0.5700 | 24829.20 | 95.00 | 0.00 | 1.00 | $290,000 | $0 |
Roll Value History
| 2026 | N/A | N/A | N/A | N/A | N/A |
| 2025 | $444,269 | $290,000 | $0 | $734,269 | $734,269 |
| 2024 | $447,696 | $290,000 | $0 | $737,696 | $737,696 |
| 2023 | $441,414 | $290,000 | $0 | $731,414 | $731,414 |
| 2022 | $403,077 | $290,000 | $0 | $693,077 | $693,077 |
| 2021 | $353,609 | $225,000 | $0 | $578,609 | $578,609 |
| 2020 | $342,383 | $200,000 | $0 | $542,383 | $542,383 |
| 2019 | $252,138 | $220,000 | $0 | $472,138 | $472,138 |
| 2018 | $252,813 | $200,000 | $0 | $452,813 | $452,813 |
| 2017 | $215,503 | $200,000 | $0 | $415,503 | $415,503 |
| 2016 | $186,946 | $200,000 | $0 | $386,946 | $386,946 |
| 2015 | $189,282 | $200,000 | $0 | $389,282 | $389,282 |
| 2014 | $191,620 | $200,000 | $0 | $391,620 | $391,620 |
| 2013 | $193,956 | $156,758 | $0 | $350,714 | $350,714 |
| 2012 | $196,292 | $156,758 | $0 | $353,050 | $353,050 |
| 2011 | $203,502 | $156,758 | $0 | $360,260 | $360,260 |
| 2010 | $210,318 | $156,758 | $0 | $367,076 | $367,076 |
| 2009 | $219,332 | $160,024 | $0 | $379,356 | $379,356 |
| 2008 | $222,009 | $160,024 | $0 | $382,033 | $382,033 |
| 2007 | $224,662 | $160,019 | $0 | $384,681 | $384,681 |
Deed and Sales History
| 1 | 07/28/2025 | WD | Warranty Deed | MEEK, JOHN | DAVIS, DON W | | | $849,000.00 | 64331 | 4589003 |
| 2 | 08/31/2017 | WD | Warranty Deed | BONNEIK, PETER | MEEK, JOHN | | | $505,000.00 | 31061 | 4430069 |
| 3 | 06/07/2016 | WD | Warranty Deed | DICKSON, LEAL G | BONNEIK, PETER | | | $413,000.00 | 24699 | 4400891 |
| 4 | 03/15/1999 | WD | Warranty Deed | KELLY, CHRIS E | DICKSON, LEAL G | | | $259,000.00 | 91129 | 99007609 |
| 5 | 12/01/1996 | WD | Warranty Deed | SKIVER, RANDY D | KELLY, CHRIS E | | | $63,500.00 | 70118 | 97000444 |
| 6 | 01/01/1990 | REC | Real Estate Contract | SANDUSKY, J W | SKIVER, RANDY D | | | $36,640.00 | 252 | 90000753 |
| 7 | 01/01/1900 | OTHER | Other - Misc. Documents | Unknown | SANDUSKY, J W | | | $0.00 | 0 | 0 |
Payout Agreement
| No payout information available.. |