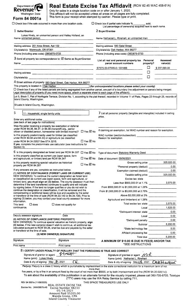
Property
Account |
| Property ID: | 366749 | Abbreviated Legal Description: | SANDY HOOK TERR LOT 5 |
| Geographic ID: | S8070-00-00005-0 | Agent Code: | |
| Type: | Real | | |
| Tax Area: | 710 - APPRAISER-S Whid Schl Dist, outside Langley, improved & 1 acre or less | Land Use Code | 11 |
| Open Space: | N | DFL | N |
| Historic Property: | N | Remodel Property: | N |
| Multi-Family Redevelopment: | N | | |
| Township: | | Section: | |
| Range: | |
Location |
| Address: | 8244 SANDY HOOK DR CLINTON, WA 98236 | Mapsco: | |
| Neighborhood: | Cycle 4 | Map ID: | 708 |
| Neighborhood CD: | 4 |
Owner |
| Name: | BAINBRIDGE, ROBERT F | Owner ID: | 99755 |
| Mailing Address: | WINNIFRED J BAINBRIDGE TRUSTEES 628 BELL ST APT A EDMONDS, WA 98020 | % Ownership: | 100.0000000000% |
| | | Exemptions: | |
Taxes and Assessment Details
Values
| (+) Improvement Homesite Value: | + | $0 | |
| (+) Improvement Non-Homesite Value: | + | $234,772 | |
| (+) Land Homesite Value: | + | $0 | |
| (+) Land Non-Homesite Value: | + | $360,000 | |
| (+) Curr Use (HS): | + | $0 | $0 |
| (+) Curr Use (NHS): | + | $0 | $0 |
| | | -------------------------- | |
| (=) Market Value: | = | $594,772 | |
| (–) Productivity Loss: | – | $0 | |
| | | -------------------------- | |
| (=) Subtotal: | = | $594,772 | |
| (+) Senior Appraised Value: | + | $0 | |
| (+) Non-Senior Appraised Value: | + | $594,772 | |
| | | -------------------------- | |
| (=) Total Appraised Value: | = | $594,772 | |
| (–) Senior Exemption Loss: | – | $0 | |
| (–) Exemption Loss: | – | $0 | |
| | | -------------------------- | |
| (=) Taxable Value: | = | $594,772 | |
Taxing Jurisdiction
| Owner: | BAINBRIDGE, ROBERT F | | |
| % Ownership: | 100.0000000000% | | |
| Total Value: | $594,772 | | |
| Tax Area: | 710 - APPRAISER-S Whid Schl Dist, outside Langley, improved & 1 acre or less |
| CF | Conservation Futures | 0.0316035091 | $594,772 | $594,772 | $18.80 | | |
| FIRE3 | Fire & Rescue Dist #3 S Whidbey GEN | 1.2004855531 | $594,772 | $594,772 | $714.02 | | |
| HOBOND | Hospital BOND | 0.1910887512 | $594,772 | $594,772 | $113.65 | | |
| HOGEN | Hospital GEN | 0.3902502903 | $594,772 | $594,772 | $232.11 | | |
| CE | County Current Expense | 0.3708482477 | $594,772 | $594,772 | $220.57 | | |
| CR | County Roads | 0.4584763726 | $594,772 | $594,772 | $272.69 | | |
| ISLANDEMS | Hospital GEN (EMS) | 0.5000000000 | $594,772 | $594,772 | $297.39 | | |
| LIB | Library Sno-Isle GEN | 0.3153421757 | $594,772 | $594,772 | $187.56 | | |
| PORTWHID | Port of S Whidbey GEN | 0.1094540357 | $594,772 | $594,772 | $65.10 | | |
| SCH206BOND | School 206 BOND | 0.3161759235 | $594,772 | $594,772 | $188.05 | | |
| SCH206MO | School 206 Enrichment | 0.4547169547 | $594,772 | $594,772 | $270.45 | | |
| ST | State School | 1.3035497053 | $594,772 | $594,772 | $775.31 | | |
| ST2 | State School Part 2 | 0.8169543533 | $594,772 | $594,772 | $485.90 | | |
| SWHIDPRBD | P & R S Whidbey BOND | 0.0152817568 | $594,772 | $594,772 | $9.09 | | |
| SWHIDPRBD2 | P & R S Whidbey BOND2 | 0.0138911264 | $594,772 | $594,772 | $8.26 | | |
| SWHIDPRMT | P & R S Whidbey GEN | 0.2053334452 | $594,772 | $594,772 | $122.13 | | |
| | Total Tax Rate: | 6.6934522006 | | | | | |
| | | | | Taxes w/Current Exemptions: | $3,981.08 | | |
| | | | | Taxes w/o Exemptions: | $3,981.08 | | |
Improvement / Building
| Improvement #1: | RESIDENTIAL | State Code: | Y | 1256.0 sqft | Value: | $234,772 |
| Bathrooms: | 2 | Bedrooms: | 4 | | Ceiling: | DRY WALL SPRAYED | Exterior Wall/Cover: | PLY/HARDBOARD T-111 | | Floor Covering: | SOFTWOOD/VINYL 60-40 | Floor Structure: | WOOD W/SUBFLOOR | | Foundation: | CONCRETE | Heating: | BASEBOARD ELECTRIC | | Interior Finish: | DRYWALL PAINT | Plumbing Fixture Cnt: | 9 | | Roof Slope: | 6" IN 12" | Roof Structure/Cover: | CJ ASPHALT |
|
| | Type | Description | Class CD | Sub Class CD | Year Built | Area |
| | BAS | BASE/MAIN FLOOR | 3 | 0 | 1972 | 1256.0 |
| | AGR | ATTACHED GARAGE | 3 | 0 | 1972 | 432.0 |
| | UTY | STORAGE/UTILITY | 3 | 0 | 1972 | 62.8 |
| | OWP | OPEN WOOD PORCH W/STEPS | 3 | 0 | 1972 | 479.0 |
| | OWR | OPEN WOOD PORCH W/STEPS/ROOF | 3 | 0 | 1972 | 160.0 |
Sketch
| No sketches available for this property. |
Property Image
Land
| 1 | 15 | SQ (12001-21780) | 0.0000 | 0.00 | 0.00 | 0.00 | 1.00 | $360,000 | $0 |
Roll Value History
| 2026 | N/A | N/A | N/A | N/A | N/A |
| 2025 | $234,772 | $360,000 | $0 | $594,772 | $594,772 |
| 2024 | $242,706 | $330,000 | $0 | $572,706 | $572,706 |
| 2023 | $245,849 | $320,000 | $0 | $565,849 | $565,849 |
| 2022 | $225,455 | $280,000 | $0 | $505,455 | $505,455 |
| 2021 | $198,527 | $220,000 | $0 | $418,527 | $418,527 |
| 2020 | $177,415 | $180,000 | $0 | $357,415 | $357,415 |
| 2019 | $125,389 | $210,000 | $0 | $335,389 | $335,389 |
| 2018 | $125,784 | $200,000 | $0 | $325,784 | $325,784 |
| 2017 | $126,558 | $170,000 | $0 | $296,558 | $296,558 |
| 2016 | $128,141 | $145,000 | $0 | $273,141 | $273,141 |
| 2015 | $129,723 | $140,000 | $0 | $269,723 | $269,723 |
| 2014 | $95,051 | $140,000 | $0 | $235,051 | $235,051 |
| 2013 | $96,663 | $125,000 | $0 | $221,663 | $221,663 |
| 2012 | $98,274 | $129,200 | $0 | $227,474 | $227,474 |
| 2011 | $99,885 | $152,000 | $0 | $251,885 | $251,885 |
| 2010 | $112,057 | $152,000 | $0 | $264,057 | $264,057 |
| 2009 | $117,048 | $155,000 | $0 | $272,048 | $272,048 |
| 2008 | $114,648 | $215,000 | $0 | $329,648 | $329,648 |
| 2007 | $116,292 | $215,000 | $0 | $331,292 | $331,292 |
Deed and Sales History
| 1 | 04/01/1993 | QCD | Quit Claim Deed | BAINBRIDGE, ROBERT P | BAINBRIDGE, ROBERT F | | | $0.00 | 31966 | 93010200 |
| 2 | 10/01/1972 | TRUSTEED | Trustee's Deed | MACPHERSON, MURDOCK D | BAINBRIDGE, ROBERT P | | | $0.00 | 45728 | 0 |
| 3 | 01/01/1900 | OTHER | Other - Misc. Documents | Unknown | MACPHERSON, MURDOCK D | | | $0.00 | 0 | 0 |
Payout Agreement
| No payout information available.. |