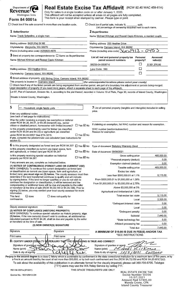
Property
Account |
| Property ID: | 366801 | Abbreviated Legal Description: | SANDY HOOK LOT 1 BLK 1 |
| Geographic ID: | S8075-00-01001-0 | Agent Code: | |
| Type: | Real | | |
| Tax Area: | 710 - APPRAISER-S Whid Schl Dist, outside Langley, improved & 1 acre or less | Land Use Code | 11 |
| Open Space: | N | DFL | N |
| Historic Property: | N | Remodel Property: | N |
| Multi-Family Redevelopment: | N | | |
| Township: | | Section: | |
| Range: | |
Location |
| Address: | 8410 SANDY HOOK DR CLINTON, WA 98236 | Mapsco: | |
| Neighborhood: | Cycle 4 | Map ID: | 710 |
| Neighborhood CD: | 4 |
Owner |
| Name: | GILBERTS, DAVID D | Owner ID: | 23060 |
| Mailing Address: | LISA L GILBERTS 8410 SANDY HOOK DR CLINTON, WA 98236-8929 | % Ownership: | 100.0000000000% |
| | | Exemptions: | |
Taxes and Assessment Details
Values
| (+) Improvement Homesite Value: | + | $0 | |
| (+) Improvement Non-Homesite Value: | + | $341,915 | |
| (+) Land Homesite Value: | + | $0 | |
| (+) Land Non-Homesite Value: | + | $360,000 | |
| (+) Curr Use (HS): | + | $0 | $0 |
| (+) Curr Use (NHS): | + | $0 | $0 |
| | | -------------------------- | |
| (=) Market Value: | = | $701,915 | |
| (–) Productivity Loss: | – | $0 | |
| | | -------------------------- | |
| (=) Subtotal: | = | $701,915 | |
| (+) Senior Appraised Value: | + | $0 | |
| (+) Non-Senior Appraised Value: | + | $701,915 | |
| | | -------------------------- | |
| (=) Total Appraised Value: | = | $701,915 | |
| (–) Senior Exemption Loss: | – | $0 | |
| (–) Exemption Loss: | – | $0 | |
| | | -------------------------- | |
| (=) Taxable Value: | = | $701,915 | |
Taxing Jurisdiction
| Owner: | GILBERTS, DAVID D | | |
| % Ownership: | 100.0000000000% | | |
| Total Value: | $701,915 | | |
| Tax Area: | 710 - APPRAISER-S Whid Schl Dist, outside Langley, improved & 1 acre or less |
| CF | Conservation Futures | 0.0316035091 | $701,915 | $701,915 | $22.18 | | |
| FIRE3 | Fire & Rescue Dist #3 S Whidbey GEN | 1.2004855531 | $701,915 | $701,915 | $842.64 | | |
| HOBOND | Hospital BOND | 0.1910887512 | $701,915 | $701,915 | $134.13 | | |
| HOGEN | Hospital GEN | 0.3902502903 | $701,915 | $701,915 | $273.92 | | |
| CE | County Current Expense | 0.3708482477 | $701,915 | $701,915 | $260.30 | | |
| CR | County Roads | 0.4584763726 | $701,915 | $701,915 | $321.81 | | |
| ISLANDEMS | Hospital GEN (EMS) | 0.5000000000 | $701,915 | $701,915 | $350.96 | | |
| LIB | Library Sno-Isle GEN | 0.3153421757 | $701,915 | $701,915 | $221.34 | | |
| PORTWHID | Port of S Whidbey GEN | 0.1094540357 | $701,915 | $701,915 | $76.83 | | |
| SCH206BOND | School 206 BOND | 0.3161759235 | $701,915 | $701,915 | $221.93 | | |
| SCH206MO | School 206 Enrichment | 0.4547169547 | $701,915 | $701,915 | $319.17 | | |
| ST | State School | 1.3035497053 | $701,915 | $701,915 | $914.98 | | |
| ST2 | State School Part 2 | 0.8169543533 | $701,915 | $701,915 | $573.43 | | |
| SWHIDPRBD | P & R S Whidbey BOND | 0.0152817568 | $701,915 | $701,915 | $10.73 | | |
| SWHIDPRBD2 | P & R S Whidbey BOND2 | 0.0138911264 | $701,915 | $701,915 | $9.75 | | |
| SWHIDPRMT | P & R S Whidbey GEN | 0.2053334452 | $701,915 | $701,915 | $144.13 | | |
| | Total Tax Rate: | 6.6934522006 | | | | | |
| | | | | Taxes w/Current Exemptions: | $4,698.23 | | |
| | | | | Taxes w/o Exemptions: | $4,698.23 | | |
Improvement / Building
| Improvement #1: | RESIDENTIAL | State Code: | Y | 2479.2 sqft | Value: | $341,915 |
| Bathrooms: | 2 | Bedrooms: | 3 | | Ceiling: | DRYWALL PAINTED | Exterior Wall/Cover: | CEMENT FIBER | | Floor Covering: | CARPET/VINYL 80-20 | Floor Structure: | WOOD W/SUBFLOOR | | Foundation: | CONCRETE | Heating: | WALL HEAT ELECTRIC | | Interior Finish: | DRYWALL PAINT | Plumbing Fixture Cnt: | 9 | | Roof Slope: | 3" IN 12" | Roof Structure/Cover: | CJ ASPHALT |
|
| | Type | Description | Class CD | Sub Class CD | Year Built | Area |
| | BAS | BASE/MAIN FLOOR | 3 | 0 | 1978 | 1259.6 |
| | OP4 | OPEN PORCH W/CEILING-ROOF | 3 | 0 | 1978 | 55.0 |
| | AGR | ATTACHED GARAGE | 3 | 0 | 1978 | 550.4 |
| | UPS | UPPER STORY | 3 | 0 | 1978 | 1219.6 |
| | OWP | OPEN WOOD PORCH W/STEPS | 3 | 0 | 1978 | 79.8 |
| | OWP | OPEN WOOD PORCH W/STEPS | 3 | 0 | 1978 | 345.0 |
| | BAW | BALCONY WOOD RAIL | 3 | 0 | 1978 | 55.0 |
Sketch
| No sketches available for this property. |
Property Image
Land
| 1 | 14 | SQ (08001-12000) | 0.0000 | 0.00 | 0.00 | 0.00 | 1.00 | $360,000 | $0 |
Roll Value History
| 2026 | N/A | N/A | N/A | N/A | N/A |
| 2025 | $341,915 | $360,000 | $0 | $701,915 | $701,915 |
| 2024 | $346,284 | $330,000 | $0 | $676,284 | $676,284 |
| 2023 | $350,653 | $320,000 | $0 | $670,653 | $670,653 |
| 2022 | $321,468 | $280,000 | $0 | $601,468 | $601,468 |
| 2021 | $282,979 | $220,000 | $0 | $502,979 | $502,979 |
| 2020 | $245,767 | $180,000 | $0 | $425,767 | $425,767 |
| 2019 | $192,108 | $210,000 | $0 | $402,108 | $402,108 |
| 2018 | $192,700 | $200,000 | $0 | $392,700 | $392,700 |
| 2017 | $193,791 | $170,000 | $0 | $363,791 | $363,791 |
| 2016 | $196,155 | $170,000 | $0 | $366,155 | $366,155 |
| 2015 | $198,520 | $120,000 | $0 | $318,520 | $318,520 |
| 2014 | $185,128 | $125,800 | $0 | $310,928 | $310,928 |
| 2013 | $187,532 | $125,800 | $0 | $313,332 | $313,332 |
| 2012 | $189,936 | $125,800 | $0 | $315,736 | $315,736 |
| 2011 | $192,341 | $148,000 | $0 | $340,341 | $340,341 |
| 2010 | $197,184 | $148,000 | $0 | $345,184 | $345,184 |
| 2009 | $205,633 | $185,000 | $0 | $390,633 | $390,633 |
| 2008 | $212,519 | $206,000 | $0 | $418,519 | $418,519 |
| 2007 | $215,012 | $200,000 | $0 | $415,012 | $415,012 |
Deed and Sales History
| 1 | 08/11/2003 | 5 | DNU - Marriage License/Name Change | GILBERTS, DAVID D | GILBERTS, DAVID D | | | $0.00 | 33486 | 4070400 |
| 2 | 06/03/1998 | QCD | Quit Claim Deed | GILBERTS, DAVID D | GILBERTS, DAVID D | | | $0.00 | 82228 | 98011571 |
| 3 | 04/01/1983 | WD | Warranty Deed | BROOKS, B S | GILBERTS, DAVID D | | | $47,500.00 | 30873 | 408024 |
| 4 | 04/01/1981 | CD | DNU - Correction Deed | BROOKS, HELENE M | BROOKS, B S | | | $0.00 | 11099 | 381762 |
| 5 | 10/01/1978 | OTHER | Other - Misc. Documents | GILBERTS, DAVID D | BROOKS, HELENE M | | | $44,500.00 | 84956 | 340983 |
| 6 | 01/01/1900 | OTHER | Other - Misc. Documents | Unknown | GILBERTS, DAVID D | | | $0.00 | 82228 | 98011571 |
Payout Agreement
| No payout information available.. |