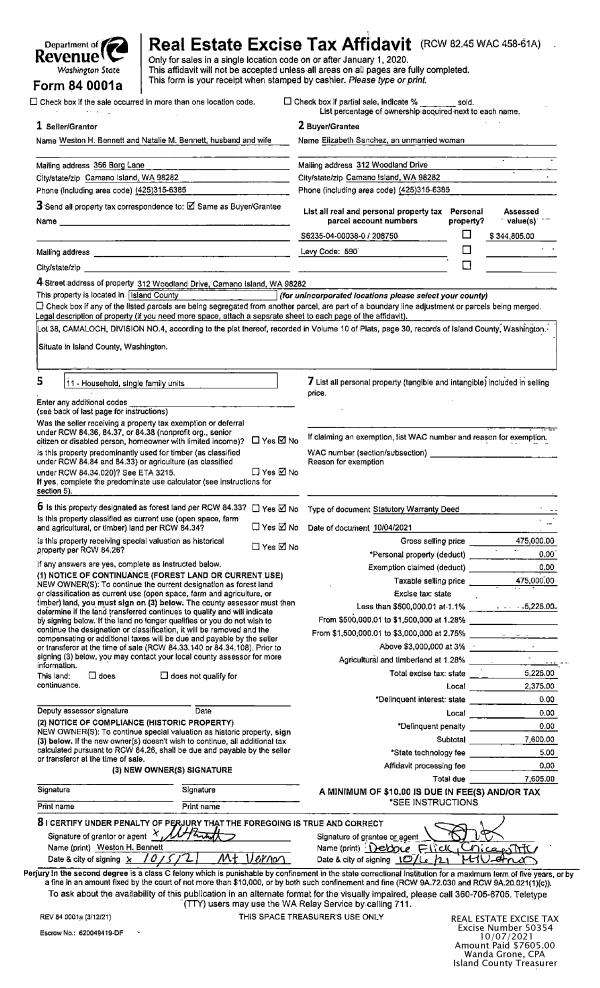
Property
Account |
| Property ID: | 366847 | Abbreviated Legal Description: | SANDY HOOK LOT 5 BLK 1 |
| Geographic ID: | S8075-00-01005-0 | Agent Code: | |
| Type: | Real | | |
| Tax Area: | 710 - APPRAISER-S Whid Schl Dist, outside Langley, improved & 1 acre or less | Land Use Code | 11 |
| Open Space: | N | DFL | N |
| Historic Property: | N | Remodel Property: | N |
| Multi-Family Redevelopment: | N | | |
| Township: | | Section: | |
| Range: | |
Location |
| Address: | 8127 UPLAND PLACE CLINTON, WA 98236 | Mapsco: | |
| Neighborhood: | Cycle 4 | Map ID: | 710 |
| Neighborhood CD: | 4 |
Owner |
| Name: | MORGAN, MICHAEL G | Owner ID: | 23064 |
| Mailing Address: | 8127 UPLAND PLACE CLINTON, WA 98236-8919 | % Ownership: | 100.0000000000% |
| | | Exemptions: | |
Taxes and Assessment Details
Values
| (+) Improvement Homesite Value: | + | $0 | |
| (+) Improvement Non-Homesite Value: | + | $174,786 | |
| (+) Land Homesite Value: | + | $0 | |
| (+) Land Non-Homesite Value: | + | $360,000 | |
| (+) Curr Use (HS): | + | $0 | $0 |
| (+) Curr Use (NHS): | + | $0 | $0 |
| | | -------------------------- | |
| (=) Market Value: | = | $534,786 | |
| (–) Productivity Loss: | – | $0 | |
| | | -------------------------- | |
| (=) Subtotal: | = | $534,786 | |
| (+) Senior Appraised Value: | + | $0 | |
| (+) Non-Senior Appraised Value: | + | $534,786 | |
| | | -------------------------- | |
| (=) Total Appraised Value: | = | $534,786 | |
| (–) Senior Exemption Loss: | – | $0 | |
| (–) Exemption Loss: | – | $0 | |
| | | -------------------------- | |
| (=) Taxable Value: | = | $534,786 | |
Taxing Jurisdiction
| Owner: | MORGAN, MICHAEL G | | |
| % Ownership: | 100.0000000000% | | |
| Total Value: | $534,786 | | |
| Tax Area: | 710 - APPRAISER-S Whid Schl Dist, outside Langley, improved & 1 acre or less |
| CF | Conservation Futures | 0.0316035091 | $534,786 | $534,786 | $16.90 | | |
| FIRE3 | Fire & Rescue Dist #3 S Whidbey GEN | 1.2004855531 | $534,786 | $534,786 | $642.00 | | |
| HOBOND | Hospital BOND | 0.1910887512 | $534,786 | $534,786 | $102.19 | | |
| HOGEN | Hospital GEN | 0.3902502903 | $534,786 | $534,786 | $208.70 | | |
| CE | County Current Expense | 0.3708482477 | $534,786 | $534,786 | $198.32 | | |
| CR | County Roads | 0.4584763726 | $534,786 | $534,786 | $245.19 | | |
| ISLANDEMS | Hospital GEN (EMS) | 0.5000000000 | $534,786 | $534,786 | $267.39 | | |
| LIB | Library Sno-Isle GEN | 0.3153421757 | $534,786 | $534,786 | $168.64 | | |
| PORTWHID | Port of S Whidbey GEN | 0.1094540357 | $534,786 | $534,786 | $58.53 | | |
| SCH206BOND | School 206 BOND | 0.3161759235 | $534,786 | $534,786 | $169.09 | | |
| SCH206MO | School 206 Enrichment | 0.4547169547 | $534,786 | $534,786 | $243.18 | | |
| ST | State School | 1.3035497053 | $534,786 | $534,786 | $697.12 | | |
| ST2 | State School Part 2 | 0.8169543533 | $534,786 | $534,786 | $436.90 | | |
| SWHIDPRBD | P & R S Whidbey BOND | 0.0152817568 | $534,786 | $534,786 | $8.17 | | |
| SWHIDPRBD2 | P & R S Whidbey BOND2 | 0.0138911264 | $534,786 | $534,786 | $7.43 | | |
| SWHIDPRMT | P & R S Whidbey GEN | 0.2053334452 | $534,786 | $534,786 | $109.81 | | |
| | Total Tax Rate: | 6.6934522006 | | | | | |
| | | | | Taxes w/Current Exemptions: | $3,579.56 | | |
| | | | | Taxes w/o Exemptions: | $3,579.56 | | |
Improvement / Building
| Improvement #1: | RESIDENTIAL | State Code: | Y | 1448.7 sqft | Value: | $174,786 |
| Bathrooms: | 1 | Bedrooms: | 3 | | Ceiling: | DRY WALL SPRAYED | Exterior Wall/Cover: | WOOD SIDING | | Floor Covering: | CARPET/VINYL 80-20 | Floor Structure: | WOOD W/SUBFLOOR | | Foundation: | CONCRETE | Heating: | BASEBOARD ELECTRIC | | Interior Finish: | DRYWALL PAINT | Plumbing Fixture Cnt: | 6 | | Roof Slope: | 4" IN 12" | Roof Structure/Cover: | CJ ASPHALT |
|
| | Type | Description | Class CD | Sub Class CD | Year Built | Area |
| | BAS | BASE/MAIN FLOOR | 3 | 0 | 1976 | 1448.7 |
| | OWP | OPEN WOOD PORCH W/STEPS | 3 | 0 | 1976 | 356.4 |
| | UTY | STORAGE/UTILITY | 3 | 0 | 1976 | 96.0 |
| | CPD | OPEN CARPORT DIRT FLOOR | 3 | 0 | 1976 | 60.0 |
Sketch
| No sketches available for this property. |
Property Image
Land
| 1 | 15 | SQ (12001-21780) | 0.0000 | 0.00 | 0.00 | 0.00 | 1.00 | $360,000 | $0 |
Roll Value History
| 2026 | N/A | N/A | N/A | N/A | N/A |
| 2025 | $174,786 | $360,000 | $0 | $534,786 | $534,786 |
| 2024 | $181,336 | $330,000 | $0 | $511,336 | $511,336 |
| 2023 | $183,995 | $320,000 | $0 | $503,995 | $503,995 |
| 2022 | $169,024 | $280,000 | $0 | $449,024 | $449,024 |
| 2021 | $149,066 | $220,000 | $0 | $369,066 | $369,066 |
| 2020 | $127,542 | $180,000 | $0 | $307,542 | $307,542 |
| 2019 | $96,765 | $210,000 | $0 | $306,765 | $306,765 |
| 2018 | $97,110 | $200,000 | $0 | $297,110 | $297,110 |
| 2017 | $97,798 | $170,000 | $0 | $267,798 | $267,798 |
| 2016 | $99,176 | $145,000 | $0 | $244,176 | $244,176 |
| 2015 | $100,553 | $120,000 | $0 | $220,553 | $220,553 |
| 2014 | $89,756 | $125,800 | $0 | $215,556 | $215,556 |
| 2013 | $91,210 | $125,800 | $0 | $217,010 | $217,010 |
| 2012 | $92,663 | $125,800 | $0 | $218,463 | $218,463 |
| 2011 | $94,117 | $148,000 | $0 | $242,117 | $242,117 |
| 2010 | $100,810 | $148,000 | $0 | $248,810 | $248,810 |
| 2009 | $105,333 | $185,000 | $0 | $290,333 | $290,333 |
| 2008 | $108,226 | $206,000 | $0 | $314,226 | $314,226 |
| 2007 | $109,756 | $200,000 | $0 | $309,756 | $309,756 |
Deed and Sales History
Payout Agreement
| No payout information available.. |