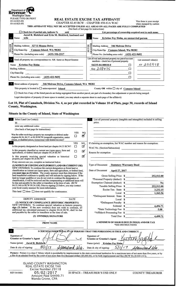
Property
Account |
| Property ID: | 366918 | Abbreviated Legal Description: | SANDY HOOK LOT 12 BLK 1 |
| Geographic ID: | S8075-00-01012-0 | Agent Code: | |
| Type: | Real | | |
| Tax Area: | 710 - APPRAISER-S Whid Schl Dist, outside Langley, improved & 1 acre or less | Land Use Code | 11 |
| Open Space: | N | DFL | N |
| Historic Property: | N | Remodel Property: | N |
| Multi-Family Redevelopment: | N | | |
| Township: | | Section: | |
| Range: | |
Location |
| Address: | 8120 UPLAND PLACE CLINTON, WA 98236 | Mapsco: | |
| Neighborhood: | Cycle 4 | Map ID: | 710 |
| Neighborhood CD: | 4 |
Owner |
| Name: | ROLLAND, JILL BENTE | Owner ID: | 294503 |
| Mailing Address: | 3649 LANDIS ST WEST LINN, OR 97068 | % Ownership: | 100.0000000000% |
| | | Exemptions: | |
Taxes and Assessment Details
Values
| (+) Improvement Homesite Value: | + | $0 | |
| (+) Improvement Non-Homesite Value: | + | $268,062 | |
| (+) Land Homesite Value: | + | $0 | |
| (+) Land Non-Homesite Value: | + | $360,000 | |
| (+) Curr Use (HS): | + | $0 | $0 |
| (+) Curr Use (NHS): | + | $0 | $0 |
| | | -------------------------- | |
| (=) Market Value: | = | $628,062 | |
| (–) Productivity Loss: | – | $0 | |
| | | -------------------------- | |
| (=) Subtotal: | = | $628,062 | |
| (+) Senior Appraised Value: | + | $0 | |
| (+) Non-Senior Appraised Value: | + | $628,062 | |
| | | -------------------------- | |
| (=) Total Appraised Value: | = | $628,062 | |
| (–) Senior Exemption Loss: | – | $0 | |
| (–) Exemption Loss: | – | $0 | |
| | | -------------------------- | |
| (=) Taxable Value: | = | $628,062 | |
Taxing Jurisdiction
| Owner: | ROLLAND, JILL BENTE | | |
| % Ownership: | 100.0000000000% | | |
| Total Value: | $628,062 | | |
| Tax Area: | 710 - APPRAISER-S Whid Schl Dist, outside Langley, improved & 1 acre or less |
| CF | Conservation Futures | 0.0316035091 | $628,062 | $628,062 | $19.85 | | |
| FIRE3 | Fire & Rescue Dist #3 S Whidbey GEN | 1.2004855531 | $628,062 | $628,062 | $753.98 | | |
| HOBOND | Hospital BOND | 0.1910887512 | $628,062 | $628,062 | $120.02 | | |
| HOGEN | Hospital GEN | 0.3902502903 | $628,062 | $628,062 | $245.10 | | |
| CE | County Current Expense | 0.3708482477 | $628,062 | $628,062 | $232.92 | | |
| CR | County Roads | 0.4584763726 | $628,062 | $628,062 | $287.95 | | |
| ISLANDEMS | Hospital GEN (EMS) | 0.5000000000 | $628,062 | $628,062 | $314.03 | | |
| LIB | Library Sno-Isle GEN | 0.3153421757 | $628,062 | $628,062 | $198.05 | | |
| PORTWHID | Port of S Whidbey GEN | 0.1094540357 | $628,062 | $628,062 | $68.74 | | |
| SCH206BOND | School 206 BOND | 0.3161759235 | $628,062 | $628,062 | $198.58 | | |
| SCH206MO | School 206 Enrichment | 0.4547169547 | $628,062 | $628,062 | $285.59 | | |
| ST | State School | 1.3035497053 | $628,062 | $628,062 | $818.71 | | |
| ST2 | State School Part 2 | 0.8169543533 | $628,062 | $628,062 | $513.10 | | |
| SWHIDPRBD | P & R S Whidbey BOND | 0.0152817568 | $628,062 | $628,062 | $9.60 | | |
| SWHIDPRBD2 | P & R S Whidbey BOND2 | 0.0138911264 | $628,062 | $628,062 | $8.72 | | |
| SWHIDPRMT | P & R S Whidbey GEN | 0.2053334452 | $628,062 | $628,062 | $128.96 | | |
| | Total Tax Rate: | 6.6934522006 | | | | | |
| | | | | Taxes w/Current Exemptions: | $4,203.90 | | |
| | | | | Taxes w/o Exemptions: | $4,203.90 | | |
Improvement / Building
| Improvement #1: | RESIDENTIAL | State Code: | Y | 1032.0 sqft | Value: | $268,062 |
| Bathrooms: | 1 | Bedrooms: | 2 | | Ceiling: | TONGUE & GROOVE | Cooling: | HEAT PUMP/CONV/V | | Exterior Wall/Cover: | CEMENT FIBER | Floor Covering: | CERAMIC TILE/HWD 40/60 | | Floor Structure: | WOOD W/SUBFLOOR | Foundation: | CONCRETE | | Interior Finish: | DRYWALL PAINT | Plumbing Fixture Cnt: | 6 | | Roof Slope: | 6" IN 12" | Roof Structure/Cover: | CJ ALUMINIUM HEAVY |
|
| | Type | Description | Class CD | Sub Class CD | Year Built | Area |
| | BAS | BASE/MAIN FLOOR | 3 | 0 | 2021 | 1032.0 |
| | OP4 | OPEN PORCH W/CEILING-ROOF | 3 | 0 | 2021 | 24.0 |
| | UTY | STORAGE/UTILITY | 3 | 0 | 2021 | 224.0 |
| | OP1 | OPEN PORCH SLAB | 3 | 0 | 2021 | 320.0 |
Sketch
| No sketches available for this property. |
Property Image
Land
| 1 | 14 | SQ (08001-12000) | 0.0000 | 0.00 | 0.00 | 0.00 | 1.00 | $360,000 | $0 |
Roll Value History
| 2026 | N/A | N/A | N/A | N/A | N/A |
| 2025 | $268,062 | $360,000 | $0 | $628,062 | $628,062 |
| 2024 | $270,189 | $330,000 | $0 | $600,189 | $600,189 |
| 2023 | $273,026 | $320,000 | $0 | $593,026 | $593,026 |
| 2022 | $251,718 | $280,000 | $0 | $531,718 | $531,718 |
| 2021 | $223,362 | $220,000 | $0 | $443,362 | $443,362 |
| 2020 | $9,000 | $110,000 | $0 | $119,000 | $119,000 |
| 2019 | $0 | $110,000 | $0 | $110,000 | $110,000 |
| 2018 | $4,000 | $85,000 | $0 | $89,000 | $89,000 |
| 2017 | $4,000 | $85,000 | $0 | $89,000 | $89,000 |
| 2016 | $4,000 | $90,000 | $0 | $94,000 | $94,000 |
| 2015 | $4,000 | $85,000 | $0 | $89,000 | $89,000 |
| 2014 | $4,000 | $85,000 | $0 | $89,000 | $89,000 |
| 2013 | $4,000 | $47,600 | $0 | $51,600 | $51,600 |
| 2012 | $4,000 | $47,600 | $0 | $51,600 | $51,600 |
| 2011 | $4,000 | $56,000 | $0 | $60,000 | $60,000 |
| 2010 | $4,000 | $56,000 | $0 | $60,000 | $60,000 |
| 2009 | $4,000 | $70,000 | $0 | $74,000 | $74,000 |
| 2008 | $4,000 | $80,000 | $0 | $84,000 | $84,000 |
| 2007 | $4,000 | $80,000 | $0 | $84,000 | $84,000 |
Deed and Sales History
| 1 | 11/20/2019 | QCD | Quit Claim Deed | ROLLAND, JILL B | ROLLAND, JILL BENTE | | | $0.00 | 43260 | 4489050 |
| 2 | 08/08/2017 | WD | Warranty Deed | HAINES, DONALD W | ROLLAND, JILL B | | | $100,000.00 | 30613 | 4428026 |
| 3 | 04/14/2010 | WD | Warranty Deed | BRAZELL, DOREEN | HAINES, DONALD W | | | $91,000.00 | 939 | 4272549 |
| 4 | 10/07/1999 | WD | Warranty Deed | ROOD, LARRY N | BRAZELL, DOREEN | | | $54,500.00 | 94610 | 99025429 |
| 5 | 04/01/1996 | WD | Warranty Deed | WEISS, STEVEN C | ROOD, LARRY N | | | $50,500.00 | 61237 | 96006377 |
| 6 | 10/01/1989 | WD | Warranty Deed | BOLINGER, DELMAR | WEISS, STEVEN C | | | $32,000.00 | 94863 | 89015752 |
| 7 | 01/01/1985 | PACD | Purchaser's Assignment | PAGE, MIKE | BOLINGER, DELMAR | | | $11,200.00 | 50259 | 85001209 |
| 8 | 07/01/1983 | REC | Real Estate Contract | WRIGHT, LOUIS E | PAGE, MIKE | | | $7,950.00 | 32092 | 412680 |
| 9 | 01/01/1900 | OTHER | Other - Misc. Documents | Unknown | WRIGHT, LOUIS E | | | $0.00 | 0 | 0 |
Payout Agreement
| No payout information available.. |