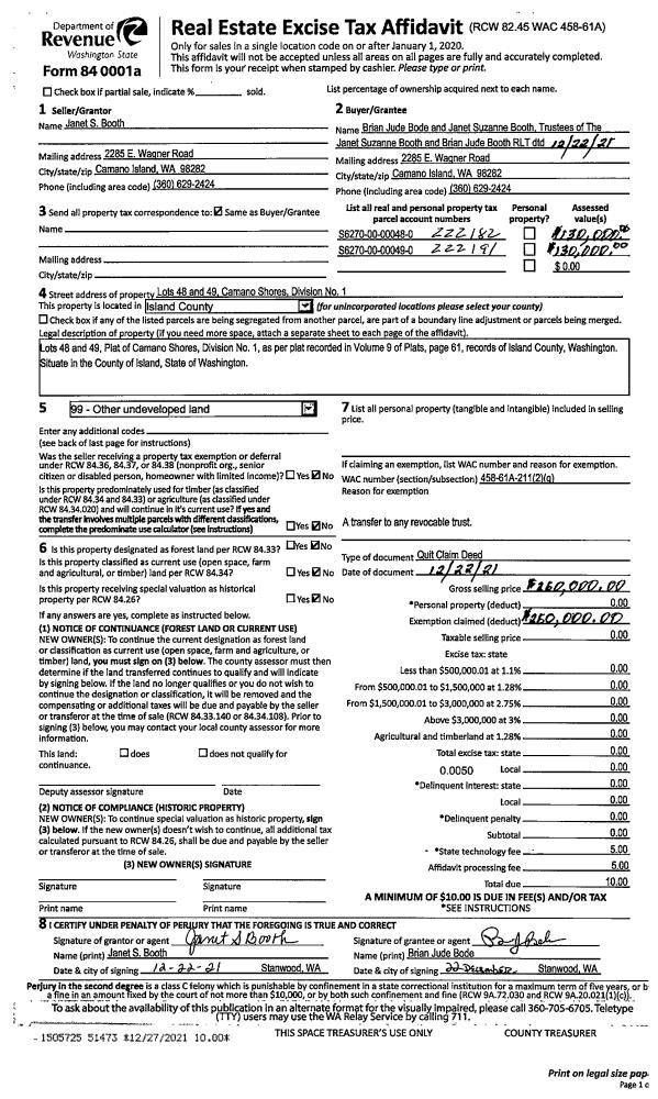
Property
Account |
| Property ID: | 366981 | Abbreviated Legal Description: | SANDY HOOK LOT 19 BLK 1 |
| Geographic ID: | S8075-00-01019-0 | Agent Code: | |
| Type: | Real | | |
| Tax Area: | 710 - APPRAISER-S Whid Schl Dist, outside Langley, improved & 1 acre or less | Land Use Code | 11 |
| Open Space: | N | DFL | N |
| Historic Property: | N | Remodel Property: | N |
| Multi-Family Redevelopment: | N | | |
| Township: | | Section: | |
| Range: | |
Location |
| Address: | 8160 CULTUS BAY RD CLINTON, WA 98236 | Mapsco: | |
| Neighborhood: | Cycle 4 | Map ID: | 710 |
| Neighborhood CD: | 4 |
Owner |
| Name: | HOLE, CHARLES R | Owner ID: | 301110 |
| Mailing Address: | ANNE N JOZALTIS-HOLE 8160 CULTUS BAY RD CLINTON, WA 98236 | % Ownership: | 100.0000000000% |
| | | Exemptions: | |
Taxes and Assessment Details
Values
| (+) Improvement Homesite Value: | + | $0 | |
| (+) Improvement Non-Homesite Value: | + | $754,006 | |
| (+) Land Homesite Value: | + | $0 | |
| (+) Land Non-Homesite Value: | + | $360,000 | |
| (+) Curr Use (HS): | + | $0 | $0 |
| (+) Curr Use (NHS): | + | $0 | $0 |
| | | -------------------------- | |
| (=) Market Value: | = | $1,114,006 | |
| (–) Productivity Loss: | – | $0 | |
| | | -------------------------- | |
| (=) Subtotal: | = | $1,114,006 | |
| (+) Senior Appraised Value: | + | $0 | |
| (+) Non-Senior Appraised Value: | + | $1,114,006 | |
| | | -------------------------- | |
| (=) Total Appraised Value: | = | $1,114,006 | |
| (–) Senior Exemption Loss: | – | $0 | |
| (–) Exemption Loss: | – | $0 | |
| | | -------------------------- | |
| (=) Taxable Value: | = | $1,114,006 | |
Taxing Jurisdiction
| Owner: | HOLE, CHARLES R | | |
| % Ownership: | 100.0000000000% | | |
| Total Value: | $1,114,006 | | |
| Tax Area: | 710 - APPRAISER-S Whid Schl Dist, outside Langley, improved & 1 acre or less |
| CF | Conservation Futures | 0.0316035091 | $1,114,006 | $1,114,006 | $35.21 | | |
| FIRE3 | Fire & Rescue Dist #3 S Whidbey GEN | 1.2004855531 | $1,114,006 | $1,114,006 | $1,337.35 | | |
| HOBOND | Hospital BOND | 0.1910887512 | $1,114,006 | $1,114,006 | $212.87 | | |
| HOGEN | Hospital GEN | 0.3902502903 | $1,114,006 | $1,114,006 | $434.74 | | |
| CE | County Current Expense | 0.3708482477 | $1,114,006 | $1,114,006 | $413.13 | | |
| CR | County Roads | 0.4584763726 | $1,114,006 | $1,114,006 | $510.75 | | |
| ISLANDEMS | Hospital GEN (EMS) | 0.5000000000 | $1,114,006 | $1,114,006 | $557.00 | | |
| LIB | Library Sno-Isle GEN | 0.3153421757 | $1,114,006 | $1,114,006 | $351.29 | | |
| PORTWHID | Port of S Whidbey GEN | 0.1094540357 | $1,114,006 | $1,114,006 | $121.93 | | |
| SCH206BOND | School 206 BOND | 0.3161759235 | $1,114,006 | $1,114,006 | $352.22 | | |
| SCH206MO | School 206 Enrichment | 0.4547169547 | $1,114,006 | $1,114,006 | $506.56 | | |
| ST | State School | 1.3035497053 | $1,114,006 | $1,114,006 | $1,452.16 | | |
| ST2 | State School Part 2 | 0.8169543533 | $1,114,006 | $1,114,006 | $910.09 | | |
| SWHIDPRBD | P & R S Whidbey BOND | 0.0152817568 | $1,114,006 | $1,114,006 | $17.02 | | |
| SWHIDPRBD2 | P & R S Whidbey BOND2 | 0.0138911264 | $1,114,006 | $1,114,006 | $15.47 | | |
| SWHIDPRMT | P & R S Whidbey GEN | 0.2053334452 | $1,114,006 | $1,114,006 | $228.74 | | |
| | Total Tax Rate: | 6.6934522006 | | | | | |
| | | | | Taxes w/Current Exemptions: | $7,456.53 | | |
| | | | | Taxes w/o Exemptions: | $7,456.53 | | |
Improvement / Building
| Improvement #1: | RESIDENTIAL | State Code: | Y | 3154.2 sqft | Value: | $754,006 |
| Bathrooms: | 2.5 | Bedrooms: | 3 | | Ceiling: | DRYWALL PAINTED | Cooling: | HEAT PUMP/CONV/V | | Exterior Wall/Cover: | VINYL | Floor Covering: | CERAMIC TILE/CPT 40-60 | | Floor Structure: | WOOD W/SUBFLOOR | Foundation: | CONCRETE | | Interior Finish: | DRYWALL PAINT | Plumbing Fixture Cnt: | 14 | | Roof Slope: | 8" IN 12" | Roof Structure/Cover: | STEEL TERNE |
|
| | Type | Description | Class CD | Sub Class CD | Year Built | Area |
| | BAS | BASE/MAIN FLOOR | 5 | 0 | 1998 | 1281.8 |
| | AGR | ATTACHED GARAGE | 5 | 0 | 1998 | 1568.6 |
| | UPS | UPPER STORY | 5 | 0 | 1998 | 644.0 |
| | OWP | OPEN WOOD PORCH W/STEPS | 5 | 0 | 1998 | 97.3 |
| | OWP | OPEN WOOD PORCH W/STEPS | 5 | 0 | 1998 | 453.2 |
| | OWC | OPEN WOOD PORCH W/STEPS/ROOF/C | 5 | 0 | 1998 | 46.7 |
| | DWN | DOWNSTAIRS LIVING AREA | 5 | 0 | 1998 | 1228.4 |
Sketch
| No sketches available for this property. |
Property Image
Land
| 1 | 15 | SQ (12001-21780) | 0.0000 | 0.00 | 0.00 | 0.00 | 1.00 | $360,000 | $0 |
Roll Value History
| 2026 | N/A | N/A | N/A | N/A | N/A |
| 2025 | $754,006 | $360,000 | $0 | $1,114,006 | $1,114,006 |
| 2024 | $763,063 | $330,000 | $0 | $1,093,063 | $1,093,063 |
| 2023 | $772,120 | $320,000 | $0 | $1,092,120 | $1,092,120 |
| 2022 | $699,377 | $280,000 | $0 | $979,377 | $979,377 |
| 2021 | $586,844 | $220,000 | $0 | $806,844 | $806,844 |
| 2020 | $533,970 | $180,000 | $0 | $713,970 | $713,970 |
| 2019 | $429,396 | $210,000 | $0 | $639,396 | $639,396 |
| 2018 | $430,742 | $200,000 | $0 | $630,742 | $630,742 |
| 2017 | $433,179 | $170,000 | $0 | $603,179 | $603,179 |
| 2016 | $438,558 | $145,000 | $0 | $583,558 | $583,558 |
| 2015 | $443,940 | $140,000 | $0 | $583,940 | $583,940 |
| 2014 | $449,319 | $85,000 | $0 | $534,319 | $534,319 |
| 2013 | $454,701 | $85,000 | $0 | $539,701 | $539,701 |
| 2012 | $460,082 | $129,200 | $0 | $589,282 | $589,282 |
| 2011 | $465,463 | $152,000 | $0 | $617,463 | $617,463 |
| 2010 | $476,657 | $152,000 | $0 | $628,657 | $628,657 |
| 2009 | $497,133 | $190,000 | $0 | $687,133 | $687,133 |
| 2008 | $478,066 | $228,000 | $0 | $706,066 | $706,066 |
| 2007 | $483,870 | $215,000 | $0 | $698,870 | $698,870 |
Deed and Sales History
| 1 | 09/07/2021 | WD | Warranty Deed | MARTIN, ROSEMARY A | HOLE, CHARLES R | | | $1,005,000.00 | 50012 | 4529018 |
| 2 | 02/06/2014 | PRD | Personal Representatives Deed | MARTIN, ROSEMARY A | MARTIN, ROSEMARY A | | | $0.00 | 14357 | 4355527 |
| 3 | 08/01/1997 | QCD | Quit Claim Deed | MARTIN, ROSEMARY A | MARTIN, ROSEMARY A | | | $0.00 | 72959 | 97014067 |
| 4 | 07/01/1996 | WD | Warranty Deed | GRAY, H G | MARTIN, ROSEMARY A | | | $45,000.00 | 62685 | 96013148 |
| 5 | 01/01/1900 | OTHER | Other - Misc. Documents | Unknown | GRAY, H G | | | $0.00 | 0 | 0 |
Payout Agreement
| No payout information available.. |