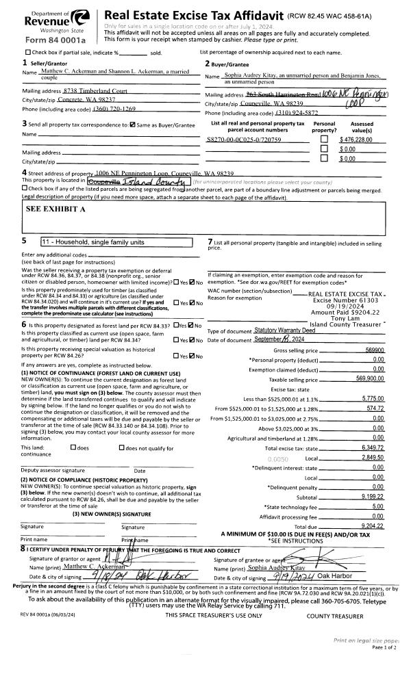
Property
Account |
| Property ID: | 367016 | Abbreviated Legal Description: | SANDY HOOK LOT 22 BLK 1 |
| Geographic ID: | S8075-00-01022-0 | Agent Code: | |
| Type: | Real | | |
| Tax Area: | 710 - APPRAISER-S Whid Schl Dist, outside Langley, improved & 1 acre or less | Land Use Code | 11 |
| Open Space: | N | DFL | N |
| Historic Property: | N | Remodel Property: | N |
| Multi-Family Redevelopment: | N | | |
| Township: | | Section: | |
| Range: | |
Location |
| Address: | 8178 CULTUS BAY RD CLINTON, WA 98236 | Mapsco: | |
| Neighborhood: | Cycle 4 | Map ID: | 710 |
| Neighborhood CD: | 4 |
Owner |
| Name: | SON, JENNY HYJOO | Owner ID: | 310070 |
| Mailing Address: | 8178 CULTUS BAY RD CLINTON, WA 98236 | % Ownership: | 100.0000000000% |
| | | Exemptions: | |
Taxes and Assessment Details
Values
| (+) Improvement Homesite Value: | + | $0 | |
| (+) Improvement Non-Homesite Value: | + | $187,949 | |
| (+) Land Homesite Value: | + | $0 | |
| (+) Land Non-Homesite Value: | + | $360,000 | |
| (+) Curr Use (HS): | + | $0 | $0 |
| (+) Curr Use (NHS): | + | $0 | $0 |
| | | -------------------------- | |
| (=) Market Value: | = | $547,949 | |
| (–) Productivity Loss: | – | $0 | |
| | | -------------------------- | |
| (=) Subtotal: | = | $547,949 | |
| (+) Senior Appraised Value: | + | $0 | |
| (+) Non-Senior Appraised Value: | + | $547,949 | |
| | | -------------------------- | |
| (=) Total Appraised Value: | = | $547,949 | |
| (–) Senior Exemption Loss: | – | $0 | |
| (–) Exemption Loss: | – | $0 | |
| | | -------------------------- | |
| (=) Taxable Value: | = | $547,949 | |
Taxing Jurisdiction
| Owner: | SON, JENNY HYJOO | | |
| % Ownership: | 100.0000000000% | | |
| Total Value: | $547,949 | | |
| Tax Area: | 710 - APPRAISER-S Whid Schl Dist, outside Langley, improved & 1 acre or less |
| CF | Conservation Futures | 0.0316035091 | $547,949 | $547,949 | $17.32 | | |
| FIRE3 | Fire & Rescue Dist #3 S Whidbey GEN | 1.2004855531 | $547,949 | $547,949 | $657.80 | | |
| HOBOND | Hospital BOND | 0.1910887512 | $547,949 | $547,949 | $104.71 | | |
| HOGEN | Hospital GEN | 0.3902502903 | $547,949 | $547,949 | $213.84 | | |
| CE | County Current Expense | 0.3708482477 | $547,949 | $547,949 | $203.21 | | |
| CR | County Roads | 0.4584763726 | $547,949 | $547,949 | $251.22 | | |
| ISLANDEMS | Hospital GEN (EMS) | 0.5000000000 | $547,949 | $547,949 | $273.97 | | |
| LIB | Library Sno-Isle GEN | 0.3153421757 | $547,949 | $547,949 | $172.79 | | |
| PORTWHID | Port of S Whidbey GEN | 0.1094540357 | $547,949 | $547,949 | $59.98 | | |
| SCH206BOND | School 206 BOND | 0.3161759235 | $547,949 | $547,949 | $173.25 | | |
| SCH206MO | School 206 Enrichment | 0.4547169547 | $547,949 | $547,949 | $249.16 | | |
| ST | State School | 1.3035497053 | $547,949 | $547,949 | $714.28 | | |
| ST2 | State School Part 2 | 0.8169543533 | $547,949 | $547,949 | $447.65 | | |
| SWHIDPRBD | P & R S Whidbey BOND | 0.0152817568 | $547,949 | $547,949 | $8.37 | | |
| SWHIDPRBD2 | P & R S Whidbey BOND2 | 0.0138911264 | $547,949 | $547,949 | $7.61 | | |
| SWHIDPRMT | P & R S Whidbey GEN | 0.2053334452 | $547,949 | $547,949 | $112.51 | | |
| | Total Tax Rate: | 6.6934522006 | | | | | |
| | | | | Taxes w/Current Exemptions: | $3,667.67 | | |
| | | | | Taxes w/o Exemptions: | $3,667.67 | | |
Improvement / Building
| Improvement #1: | RESIDENTIAL | State Code: | Y | 907.0 sqft | Value: | $187,949 |
| Bathrooms: | 1 | Bedrooms: | 2 | | Ceiling: | DRYWALL PAINTED | Cooling: | HEAT PUMP/CONV/V | | Exterior Wall/Cover: | SHINGLE | Floor Covering: | VINYL/HARDWOOD 60-40 | | Floor Structure: | WOOD W/SUBFLOOR | Foundation: | CONCRETE | | Interior Finish: | DRYWALL PAINT | Plumbing Fixture Cnt: | 6 | | Roof Slope: | 6" IN 12" | Roof Structure/Cover: | CJ ASPHALT |
|
| | Type | Description | Class CD | Sub Class CD | Year Built | Area |
| | BAS | BASE/MAIN FLOOR | 3 | 0 | 1986 | 587.0 |
| | OWP | OPEN WOOD PORCH W/STEPS | 3 | 0 | 1986 | 367.8 |
| | OWR | OPEN WOOD PORCH W/STEPS/ROOF | 3 | 0 | 1986 | 39.9 |
| | UPS | UPPER STORY | 3 | 0 | 1986 | 320.0 |
Sketch
| No sketches available for this property. |
Property Image
Land
| 1 | 14 | SQ (08001-12000) | 0.0000 | 0.00 | 0.00 | 0.00 | 1.00 | $360,000 | $0 |
Roll Value History
| 2026 | N/A | N/A | N/A | N/A | N/A |
| 2025 | $187,949 | $360,000 | $0 | $547,949 | $547,949 |
| 2024 | $190,296 | $330,000 | $0 | $520,296 | $520,296 |
| 2023 | $166,684 | $320,000 | $0 | $486,684 | $486,684 |
| 2022 | $152,816 | $280,000 | $0 | $432,816 | $432,816 |
| 2021 | $134,522 | $220,000 | $0 | $354,522 | $354,522 |
| 2020 | $104,008 | $180,000 | $0 | $284,008 | $284,008 |
| 2019 | $73,479 | $210,000 | $0 | $283,479 | $283,479 |
| 2018 | $73,706 | $200,000 | $0 | $273,706 | $273,706 |
| 2017 | $74,158 | $170,000 | $0 | $244,158 | $244,158 |
| 2016 | $75,061 | $145,000 | $0 | $220,061 | $220,061 |
| 2015 | $75,966 | $140,000 | $0 | $215,966 | $215,966 |
| 2014 | $83,759 | $85,000 | $0 | $168,759 | $168,759 |
| 2013 | $85,727 | $85,000 | $0 | $170,727 | $170,727 |
| 2012 | $86,723 | $129,200 | $0 | $215,923 | $215,923 |
| 2011 | $87,720 | $152,000 | $0 | $239,720 | $239,720 |
| 2010 | $91,415 | $152,000 | $0 | $243,415 | $243,415 |
| 2009 | $95,284 | $190,000 | $0 | $285,284 | $285,284 |
| 2008 | $96,395 | $228,000 | $0 | $324,395 | $324,395 |
| 2007 | $96,506 | $215,000 | $0 | $311,506 | $311,506 |
Deed and Sales History
| 1 | 09/06/2023 | WD | Warranty Deed | SCHULLER, PAUL J | SON, JENNY HYJOO | | | $600,000.00 | 57982 | 4564731 |
| 2 | 05/03/2004 | WD | Warranty Deed | GAVIN, WELLS & GAVIN, | SCHULLER, PAUL J | | | $167,000.00 | 41886 | 4099615 |
| 3 | 01/22/1999 | QCD | Quit Claim Deed | HUTCHINSON, ROBERT H | GAVIN, WELLS & GAVIN, | | | $0.00 | 90445 | 99002880 |
| 4 | 12/01/1983 | REC | Real Estate Contract | MORGAN, EARL | HUTCHINSON, ROBERT H | | | $19,000.00 | 33594 | 418492 |
| 5 | 01/01/1900 | OTHER | Other - Misc. Documents | Unknown | MORGAN, EARL | | | $0.00 | 0 | 0 |
Payout Agreement
| No payout information available.. |