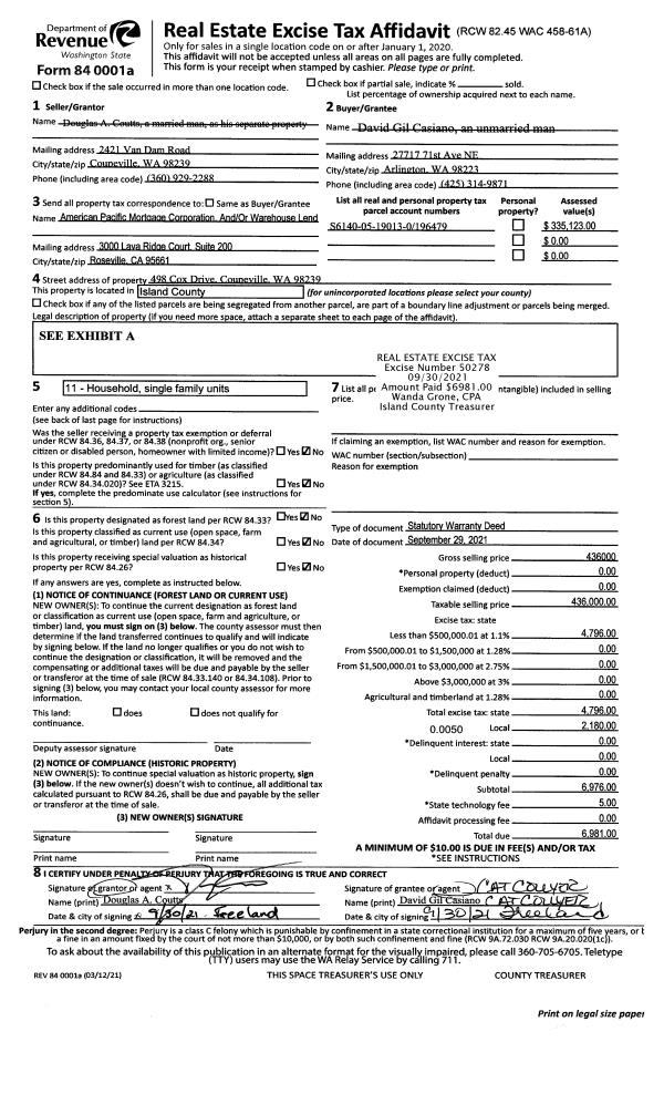
Property
Account |
| Property ID: | 367070 | Abbreviated Legal Description: | SANDY HOOK LOT 28 BLK 1 |
| Geographic ID: | S8075-00-01028-0 | Agent Code: | |
| Type: | Real | | |
| Tax Area: | 710 - APPRAISER-S Whid Schl Dist, outside Langley, improved & 1 acre or less | Land Use Code | 11 |
| Open Space: | N | DFL | N |
| Historic Property: | N | Remodel Property: | N |
| Multi-Family Redevelopment: | N | | |
| Township: | | Section: | |
| Range: | |
Location |
| Address: | 8214 CULTUS BAY RD CLINTON, WA 98236 | Mapsco: | |
| Neighborhood: | Cycle 4 | Map ID: | 708 |
| Neighborhood CD: | 4 |
Owner |
| Name: | LANE, DONALD | Owner ID: | 99786 |
| Mailing Address: | JULIE LANE 8214 CULTUS BAY RD CLINTON, WA 98236-8904 | % Ownership: | 100.0000000000% |
| | | Exemptions: | |
Taxes and Assessment Details
Values
| (+) Improvement Homesite Value: | + | $0 | |
| (+) Improvement Non-Homesite Value: | + | $542,453 | |
| (+) Land Homesite Value: | + | $0 | |
| (+) Land Non-Homesite Value: | + | $360,000 | |
| (+) Curr Use (HS): | + | $0 | $0 |
| (+) Curr Use (NHS): | + | $0 | $0 |
| | | -------------------------- | |
| (=) Market Value: | = | $902,453 | |
| (–) Productivity Loss: | – | $0 | |
| | | -------------------------- | |
| (=) Subtotal: | = | $902,453 | |
| (+) Senior Appraised Value: | + | $0 | |
| (+) Non-Senior Appraised Value: | + | $902,453 | |
| | | -------------------------- | |
| (=) Total Appraised Value: | = | $902,453 | |
| (–) Senior Exemption Loss: | – | $0 | |
| (–) Exemption Loss: | – | $0 | |
| | | -------------------------- | |
| (=) Taxable Value: | = | $902,453 | |
Taxing Jurisdiction
| Owner: | LANE, DONALD | | |
| % Ownership: | 100.0000000000% | | |
| Total Value: | $902,453 | | |
| Tax Area: | 710 - APPRAISER-S Whid Schl Dist, outside Langley, improved & 1 acre or less |
| CF | Conservation Futures | 0.0316035091 | $902,453 | $902,453 | $28.52 | | |
| FIRE3 | Fire & Rescue Dist #3 S Whidbey GEN | 1.2004855531 | $902,453 | $902,453 | $1,083.38 | | |
| HOBOND | Hospital BOND | 0.1910887512 | $902,453 | $902,453 | $172.45 | | |
| HOGEN | Hospital GEN | 0.3902502903 | $902,453 | $902,453 | $352.18 | | |
| CE | County Current Expense | 0.3708482477 | $902,453 | $902,453 | $334.67 | | |
| CR | County Roads | 0.4584763726 | $902,453 | $902,453 | $413.75 | | |
| ISLANDEMS | Hospital GEN (EMS) | 0.5000000000 | $902,453 | $902,453 | $451.23 | | |
| LIB | Library Sno-Isle GEN | 0.3153421757 | $902,453 | $902,453 | $284.58 | | |
| PORTWHID | Port of S Whidbey GEN | 0.1094540357 | $902,453 | $902,453 | $98.78 | | |
| SCH206BOND | School 206 BOND | 0.3161759235 | $902,453 | $902,453 | $285.33 | | |
| SCH206MO | School 206 Enrichment | 0.4547169547 | $902,453 | $902,453 | $410.36 | | |
| ST | State School | 1.3035497053 | $902,453 | $902,453 | $1,176.39 | | |
| ST2 | State School Part 2 | 0.8169543533 | $902,453 | $902,453 | $737.26 | | |
| SWHIDPRBD | P & R S Whidbey BOND | 0.0152817568 | $902,453 | $902,453 | $13.79 | | |
| SWHIDPRBD2 | P & R S Whidbey BOND2 | 0.0138911264 | $902,453 | $902,453 | $12.54 | | |
| SWHIDPRMT | P & R S Whidbey GEN | 0.2053334452 | $902,453 | $902,453 | $185.30 | | |
| | Total Tax Rate: | 6.6934522006 | | | | | |
| | | | | Taxes w/Current Exemptions: | $6,040.51 | | |
| | | | | Taxes w/o Exemptions: | $6,040.51 | | |
Improvement / Building
| Improvement #1: | RESIDENTIAL | State Code: | Y | 2835.0 sqft | Value: | $542,453 |
| Bathrooms: | 3.5 | Bedrooms: | 2 | | Ceiling: | DRYWALL PAINTED | Exterior Wall/Cover: | CEMENT FIBER | | Floor Covering: | HARDWOOD/CARP 80-20 | Floor Structure: | WOOD W/SUBFLOOR | | Foundation: | CONCRETE | Heating: | FHA GAS | | Interior Finish: | DRYWALL PAINT | Plumbing Fixture Cnt: | 16 | | Roof Slope: | 6" IN 12" | Roof Structure/Cover: | CJ ASPHALT |
|
| | Type | Description | Class CD | Sub Class CD | Year Built | Area |
| | BAS | BASE/MAIN FLOOR | 4 | 0 | 2006 | 1725.0 |
| | BIG | BUILT IN GARAGE | 4 | 0 | 2006 | 960.0 |
| | OWP | OPEN WOOD PORCH W/STEPS | 4 | 0 | 2006 | 540.0 |
| | OWP | OPEN WOOD PORCH W/STEPS | 4 | 0 | 2006 | 106.0 |
| | DWN | DOWNSTAIRS LIVING AREA | 4 | 0 | 2006 | 1110.0 |
| | OWC | OPEN WOOD PORCH W/STEPS/ROOF/C | 4 | 0 | 2006 | 250.0 |
Sketch
| No sketches available for this property. |
Property Image
Land
| 1 | 14 | SQ (08001-12000) | 0.0000 | 0.00 | 0.00 | 0.00 | 1.00 | $360,000 | $0 |
Roll Value History
| 2026 | N/A | N/A | N/A | N/A | N/A |
| 2025 | $542,453 | $360,000 | $0 | $902,453 | $902,453 |
| 2024 | $548,669 | $330,000 | $0 | $878,669 | $878,669 |
| 2023 | $554,887 | $320,000 | $0 | $874,887 | $874,887 |
| 2022 | $506,693 | $280,000 | $0 | $786,693 | $786,693 |
| 2021 | $444,505 | $220,000 | $0 | $664,505 | $664,505 |
| 2020 | $377,326 | $180,000 | $0 | $557,326 | $557,326 |
| 2019 | $294,063 | $210,000 | $0 | $504,063 | $504,063 |
| 2018 | $294,887 | $200,000 | $0 | $494,887 | $494,887 |
| 2017 | $296,535 | $170,000 | $0 | $466,535 | $466,535 |
| 2016 | $299,829 | $145,000 | $0 | $444,829 | $444,829 |
| 2015 | $303,125 | $140,000 | $0 | $443,125 | $443,125 |
| 2014 | $364,389 | $85,000 | $0 | $449,389 | $449,389 |
| 2013 | $368,287 | $85,000 | $0 | $453,287 | $453,287 |
| 2012 | $372,182 | $129,200 | $0 | $501,382 | $501,382 |
| 2011 | $376,081 | $152,000 | $0 | $528,081 | $528,081 |
| 2010 | $390,803 | $152,000 | $0 | $542,803 | $542,803 |
| 2009 | $407,110 | $190,000 | $0 | $597,110 | $597,110 |
| 2008 | $397,609 | $206,000 | $0 | $603,609 | $603,609 |
| 2007 | $401,990 | $200,000 | $0 | $601,990 | $601,990 |
Deed and Sales History
| 1 | 08/12/2003 | WD | Warranty Deed | LANE, DONALD | LANE, DONALD | | | $50,000.00 | 33553 | 4070857 |
| 2 | 08/12/2003 | WD | Warranty Deed | JACKSON, W STEVEN | LANE, DONALD | | | $50,000.00 | 33553 | 4070857 |
| 3 | 05/18/1998 | QCD | Quit Claim Deed | JACKSON, W S & W D | JACKSON, W STEVEN | | | $0.00 | 81901 | 98010052 |
| 4 | 01/01/1900 | OTHER | Other - Misc. Documents | Unknown | JACKSON, W S | | | $0.00 | 0 | 0 |
| 5 | 01/01/1900 | OTHER | Other - Misc. Documents | JACKSON, W S | JACKSON, W S | | | $0.00 | 81901 | 98010052 |
| 6 | 01/01/1900 | OTHER | Other - Misc. Documents | JACKSON, W S | JACKSON, W S & W D | | | $0.00 | 0 | 0 |
Payout Agreement
| No payout information available.. |