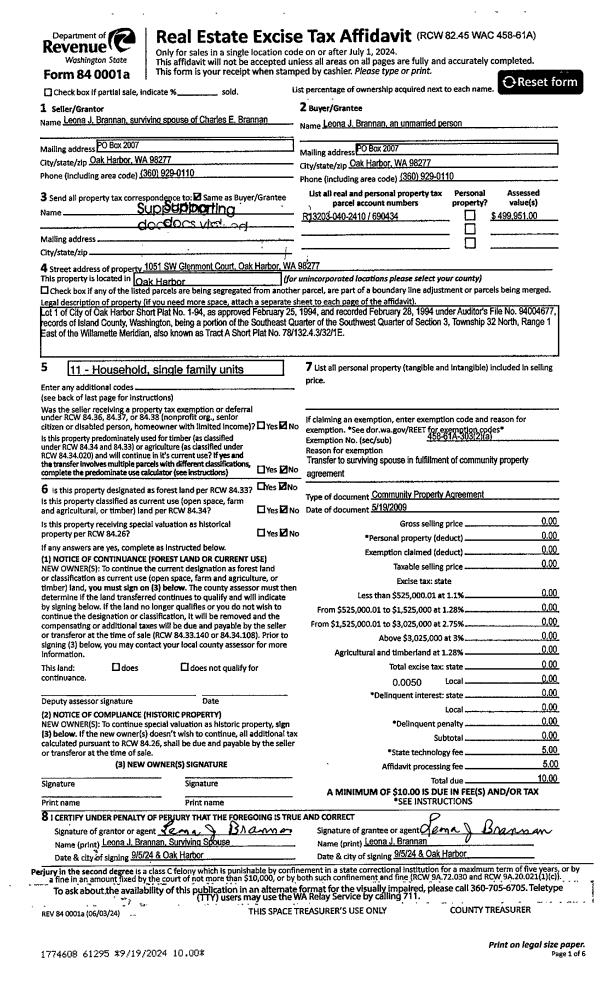
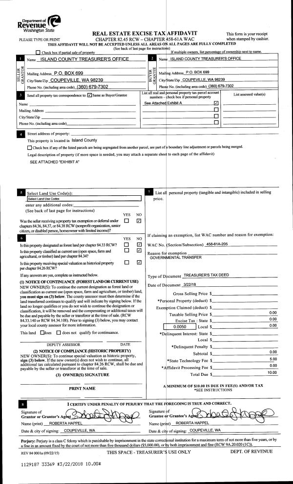
Property
Account |
| Property ID: | 367114 | Abbreviated Legal Description: | SANDY HOOK LOT 32 BLK 1 |
| Geographic ID: | S8075-00-01032-0 | Agent Code: | |
| Type: | Real | | |
| Tax Area: | 710 - APPRAISER-S Whid Schl Dist, outside Langley, improved & 1 acre or less | Land Use Code | 11 |
| Open Space: | N | DFL | N |
| Historic Property: | N | Remodel Property: | N |
| Multi-Family Redevelopment: | N | | |
| Township: | | Section: | |
| Range: | |
Location |
| Address: | 8233 WHIDBEY DR CLINTON, WA 98236 | Mapsco: | |
| Neighborhood: | Cycle 4 | Map ID: | 708 |
| Neighborhood CD: | 4 |
Owner |
| Name: | STAYNER, DALE | Owner ID: | 311230 |
| Mailing Address: | DEBORAH STAYNER 215 CYPRESS LN SNOHOMISH, WA 98290 | % Ownership: | 100.0000000000% |
| | | Exemptions: | |
Taxes and Assessment Details
Values
| (+) Improvement Homesite Value: | + | $0 | |
| (+) Improvement Non-Homesite Value: | + | $316,552 | |
| (+) Land Homesite Value: | + | $0 | |
| (+) Land Non-Homesite Value: | + | $360,000 | |
| (+) Curr Use (HS): | + | $0 | $0 |
| (+) Curr Use (NHS): | + | $0 | $0 |
| | | -------------------------- | |
| (=) Market Value: | = | $676,552 | |
| (–) Productivity Loss: | – | $0 | |
| | | -------------------------- | |
| (=) Subtotal: | = | $676,552 | |
| (+) Senior Appraised Value: | + | $0 | |
| (+) Non-Senior Appraised Value: | + | $676,552 | |
| | | -------------------------- | |
| (=) Total Appraised Value: | = | $676,552 | |
| (–) Senior Exemption Loss: | – | $0 | |
| (–) Exemption Loss: | – | $0 | |
| | | -------------------------- | |
| (=) Taxable Value: | = | $676,552 | |
Taxing Jurisdiction
| Owner: | STAYNER, DALE | | |
| % Ownership: | 100.0000000000% | | |
| Total Value: | $676,552 | | |
| Tax Area: | 710 - APPRAISER-S Whid Schl Dist, outside Langley, improved & 1 acre or less |
| CF | Conservation Futures | 0.0316035091 | $676,552 | $676,552 | $21.38 | | |
| FIRE3 | Fire & Rescue Dist #3 S Whidbey GEN | 1.2004855531 | $676,552 | $676,552 | $812.19 | | |
| HOBOND | Hospital BOND | 0.1910887512 | $676,552 | $676,552 | $129.28 | | |
| HOGEN | Hospital GEN | 0.3902502903 | $676,552 | $676,552 | $264.02 | | |
| CE | County Current Expense | 0.3708482477 | $676,552 | $676,552 | $250.90 | | |
| CR | County Roads | 0.4584763726 | $676,552 | $676,552 | $310.18 | | |
| ISLANDEMS | Hospital GEN (EMS) | 0.5000000000 | $676,552 | $676,552 | $338.28 | | |
| LIB | Library Sno-Isle GEN | 0.3153421757 | $676,552 | $676,552 | $213.35 | | |
| PORTWHID | Port of S Whidbey GEN | 0.1094540357 | $676,552 | $676,552 | $74.05 | | |
| SCH206BOND | School 206 BOND | 0.3161759235 | $676,552 | $676,552 | $213.91 | | |
| SCH206MO | School 206 Enrichment | 0.4547169547 | $676,552 | $676,552 | $307.64 | | |
| ST | State School | 1.3035497053 | $676,552 | $676,552 | $881.92 | | |
| ST2 | State School Part 2 | 0.8169543533 | $676,552 | $676,552 | $552.71 | | |
| SWHIDPRBD | P & R S Whidbey BOND | 0.0152817568 | $676,552 | $676,552 | $10.34 | | |
| SWHIDPRBD2 | P & R S Whidbey BOND2 | 0.0138911264 | $676,552 | $676,552 | $9.40 | | |
| SWHIDPRMT | P & R S Whidbey GEN | 0.2053334452 | $676,552 | $676,552 | $138.92 | | |
| | Total Tax Rate: | 6.6934522006 | | | | | |
| | | | | Taxes w/Current Exemptions: | $4,528.47 | | |
| | | | | Taxes w/o Exemptions: | $4,528.47 | | |
Improvement / Building
| Improvement #1: | RESIDENTIAL | State Code: | Y | 2226.0 sqft | Value: | $316,552 |
| Bathrooms: | 3 | Bedrooms: | 4 | | Ceiling: | DRY WALL SPRAYED | Cooling: | HEAT PUMP/CONV/V | | Exterior Wall/Cover: | WOOD SIDING | Floor Covering: | CARPET/VINYL 80-20 | | Floor Structure: | WOOD W/SUBFLOOR | Foundation: | CONCRETE | | Interior Finish: | DRYWALL PAINT | Plumbing Fixture Cnt: | 15 | | Roof Slope: | 4" IN 12" | Roof Structure/Cover: | BEAM ASPHALT |
|
| | Type | Description | Class CD | Sub Class CD | Year Built | Area |
| | BAS | BASE/MAIN FLOOR | 3 | 0 | 1977 | 1202.0 |
| | OP1 | OPEN PORCH SLAB | 3 | 0 | 1977 | 172.0 |
| | AGR | ATTACHED GARAGE | 3 | 0 | 1977 | 528.0 |
| | OWP | OPEN WOOD PORCH W/STEPS | 3 | 0 | 1977 | 244.5 |
| | DWN | DOWNSTAIRS LIVING AREA | 3 | 0 | 1977 | 1024.0 |
Sketch
Property Image
Land
| 1 | 14 | SQ (08001-12000) | 0.0000 | 0.00 | 0.00 | 0.00 | 1.00 | $360,000 | $0 |
Roll Value History
| 2026 | N/A | N/A | N/A | N/A | N/A |
| 2025 | $316,552 | $360,000 | $0 | $676,552 | $676,552 |
| 2024 | $320,873 | $330,000 | $0 | $650,873 | $650,873 |
| 2023 | $260,716 | $320,000 | $0 | $580,716 | $580,716 |
| 2022 | $239,603 | $280,000 | $0 | $519,603 | $519,603 |
| 2021 | $211,402 | $220,000 | $0 | $431,402 | $431,402 |
| 2020 | $182,018 | $180,000 | $0 | $362,018 | $362,018 |
| 2019 | $141,448 | $210,000 | $0 | $351,448 | $351,448 |
| 2018 | $141,980 | $200,000 | $0 | $341,980 | $341,980 |
| 2017 | $143,047 | $170,000 | $0 | $313,047 | $313,047 |
| 2016 | $145,183 | $145,000 | $0 | $290,183 | $290,183 |
| 2015 | $147,318 | $140,000 | $0 | $287,318 | $287,318 |
| 2014 | $142,240 | $125,800 | $0 | $268,040 | $268,040 |
| 2013 | $144,428 | $125,800 | $0 | $270,228 | $270,228 |
| 2012 | $146,616 | $125,800 | $0 | $272,416 | $272,416 |
| 2011 | $148,806 | $148,000 | $0 | $296,806 | $296,806 |
| 2010 | $159,017 | $148,000 | $0 | $307,017 | $307,017 |
| 2009 | $166,092 | $185,000 | $0 | $351,092 | $351,092 |
| 2008 | $168,312 | $206,000 | $0 | $374,312 | $374,312 |
| 2007 | $170,532 | $200,000 | $0 | $370,532 | $370,532 |
Deed and Sales History
| 1 | 01/17/2024 | WD | Warranty Deed | FALTYS TRUSTEE, MARGARET WALTON | STAYNER, DALE | | | $650,000.00 | 59039 | 4568707 |
| 2 | 10/22/2014 | | | FALTYS, TRUSTEE, JOHN H | FALTYS TRUSTEE, MARGARET WALTON | | | | 85012 | |
| 3 | 08/06/2001 | WD | Warranty Deed | CLARK, JAQUELINE M | FALTYS, TRUSTEE, JOHN H | | | $210,000.00 | 13081 | 20040290 |
| 4 | 08/02/2001 | ESTSEPPROP | Establish Separate Property | CLARK, JACQUELINE M | CLARK, JAQUELINE M | | | $0.00 | 13080 | 20040291 |
| 5 | 12/01/1995 | WD | Warranty Deed | CLARK, JACQUELINE M | CLARK, JACQUELINE M | | | $153,500.00 | 54435 | 95020483 |
| 6 | 12/01/1995 | QCD | Quit Claim Deed | ROWLEY, WILLIAM R | CLARK, JACQUELINE M | | | $0.00 | 54436 | 95020484 |
| 7 | 08/01/1989 | WD | Warranty Deed | TOWNSEND, HELEN B | ROWLEY, WILLIAM R | | | $135,000.00 | 93627 | 89012143 |
| 8 | 01/01/1900 | OTHER | Other - Misc. Documents | Unknown | TOWNSEND, HELEN B | | | $0.00 | 0 | 0 |
Payout Agreement
| No payout information available.. |