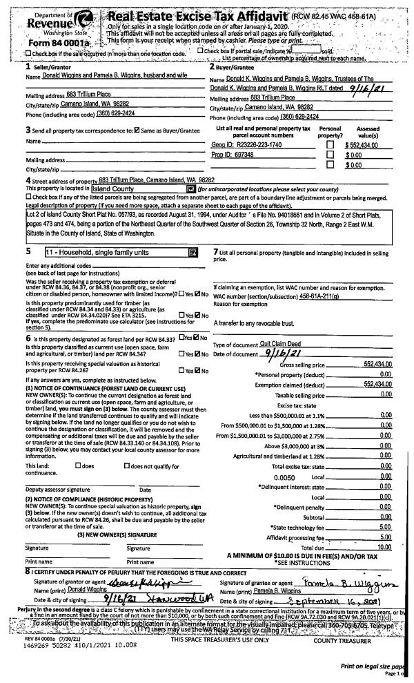
Property
Account |
| Property ID: | 367150 | Abbreviated Legal Description: | SANDY HOOK LOT 4 BLK 2 |
| Geographic ID: | S8075-00-02004-0 | Agent Code: | |
| Type: | Real | | |
| Tax Area: | 710 - APPRAISER-S Whid Schl Dist, outside Langley, improved & 1 acre or less | Land Use Code | 11 |
| Open Space: | N | DFL | N |
| Historic Property: | N | Remodel Property: | N |
| Multi-Family Redevelopment: | N | | |
| Township: | | Section: | |
| Range: | |
Location |
| Address: | 8158 WHIDBEY DR CLINTON, WA 98236 | Mapsco: | |
| Neighborhood: | Cycle 4 | Map ID: | 710 |
| Neighborhood CD: | 4 |
Owner |
| Name: | GEHRIG TTEE, DOLORES | Owner ID: | 286025 |
| Mailing Address: | 7602 SE 34TH ST MERCER ISLAND, WA 98040 | % Ownership: | 100.0000000000% |
| | | Exemptions: | |
Taxes and Assessment Details
Values
| (+) Improvement Homesite Value: | + | $0 | |
| (+) Improvement Non-Homesite Value: | + | $427,826 | |
| (+) Land Homesite Value: | + | $0 | |
| (+) Land Non-Homesite Value: | + | $370,000 | |
| (+) Curr Use (HS): | + | $0 | $0 |
| (+) Curr Use (NHS): | + | $0 | $0 |
| | | -------------------------- | |
| (=) Market Value: | = | $797,826 | |
| (–) Productivity Loss: | – | $0 | |
| | | -------------------------- | |
| (=) Subtotal: | = | $797,826 | |
| (+) Senior Appraised Value: | + | $0 | |
| (+) Non-Senior Appraised Value: | + | $797,826 | |
| | | -------------------------- | |
| (=) Total Appraised Value: | = | $797,826 | |
| (–) Senior Exemption Loss: | – | $0 | |
| (–) Exemption Loss: | – | $0 | |
| | | -------------------------- | |
| (=) Taxable Value: | = | $797,826 | |
Taxing Jurisdiction
| Owner: | GEHRIG TTEE, DOLORES | | |
| % Ownership: | 100.0000000000% | | |
| Total Value: | $797,826 | | |
| Tax Area: | 710 - APPRAISER-S Whid Schl Dist, outside Langley, improved & 1 acre or less |
| CF | Conservation Futures | 0.0316035091 | $797,826 | $797,826 | $25.21 | | |
| FIRE3 | Fire & Rescue Dist #3 S Whidbey GEN | 1.2004855531 | $797,826 | $797,826 | $957.78 | | |
| HOBOND | Hospital BOND | 0.1910887512 | $797,826 | $797,826 | $152.46 | | |
| HOGEN | Hospital GEN | 0.3902502903 | $797,826 | $797,826 | $311.35 | | |
| CE | County Current Expense | 0.3708482477 | $797,826 | $797,826 | $295.87 | | |
| CR | County Roads | 0.4584763726 | $797,826 | $797,826 | $365.78 | | |
| ISLANDEMS | Hospital GEN (EMS) | 0.5000000000 | $797,826 | $797,826 | $398.91 | | |
| LIB | Library Sno-Isle GEN | 0.3153421757 | $797,826 | $797,826 | $251.59 | | |
| PORTWHID | Port of S Whidbey GEN | 0.1094540357 | $797,826 | $797,826 | $87.33 | | |
| SCH206BOND | School 206 BOND | 0.3161759235 | $797,826 | $797,826 | $252.25 | | |
| SCH206MO | School 206 Enrichment | 0.4547169547 | $797,826 | $797,826 | $362.79 | | |
| ST | State School | 1.3035497053 | $797,826 | $797,826 | $1,040.01 | | |
| ST2 | State School Part 2 | 0.8169543533 | $797,826 | $797,826 | $651.79 | | |
| SWHIDPRBD | P & R S Whidbey BOND | 0.0152817568 | $797,826 | $797,826 | $12.19 | | |
| SWHIDPRBD2 | P & R S Whidbey BOND2 | 0.0138911264 | $797,826 | $797,826 | $11.08 | | |
| SWHIDPRMT | P & R S Whidbey GEN | 0.2053334452 | $797,826 | $797,826 | $163.82 | | |
| | Total Tax Rate: | 6.6934522006 | | | | | |
| | | | | Taxes w/Current Exemptions: | $5,340.21 | | |
| | | | | Taxes w/o Exemptions: | $5,340.21 | | |
Improvement / Building
| Improvement #1: | RESIDENTIAL | State Code: | Y | 2931.0 sqft | Value: | $427,826 |
| Bathrooms: | 2 | Bedrooms: | 2 | | Ceiling: | DRYWALL PAINTED | Exterior Wall/Cover: | PLY/HARDBOARD T-111 | | Floor Covering: | VINYL TILE/CARP 20-80 | Floor Structure: | WOOD W/SUBFLOOR | | Foundation: | CONCRETE | Heating: | WALL HEAT ELECTRIC | | Interior Finish: | DRYWALL PAINT | Plumbing Fixture Cnt: | 10 | | Roof Slope: | 4" IN 12" | Roof Structure/Cover: | CJ ASPHALT |
|
| | Type | Description | Class CD | Sub Class CD | Year Built | Area |
| | BAS | BASE/MAIN FLOOR | 4 | 0 | 1989 | 1941.0 |
| | UB8 | BASEMENT UNFINISHED 8" | 4 | 0 | 1989 | 780.0 |
| | OP2 | OPEN PORCH W/STEPS | 4 | 0 | 1989 | 84.0 |
| | AGR | ATTACHED GARAGE | 4 | 0 | 1989 | 480.0 |
| | UPS | UPPER STORY | 4 | 0 | 1989 | 990.0 |
| | OWP | OPEN WOOD PORCH W/STEPS | 4 | 0 | 1989 | 162.0 |
| | OWP | OPEN WOOD PORCH W/STEPS | 4 | 0 | 1989 | 208.0 |
Sketch
| No sketches available for this property. |
Property Image
Land
| 1 | 13 | SQ (06001-08000) | 0.0000 | 0.00 | 0.00 | 0.00 | 1.00 | $370,000 | $0 |
Roll Value History
| 2026 | N/A | N/A | N/A | N/A | N/A |
| 2025 | $427,826 | $370,000 | $0 | $797,826 | $797,826 |
| 2024 | $433,586 | $360,000 | $0 | $793,586 | $793,586 |
| 2023 | $439,348 | $360,000 | $0 | $799,348 | $799,348 |
| 2022 | $403,051 | $340,000 | $0 | $743,051 | $743,051 |
| 2021 | $355,001 | $300,000 | $0 | $655,001 | $655,001 |
| 2020 | $338,070 | $180,000 | $0 | $518,070 | $518,070 |
| 2019 | $263,550 | $210,000 | $0 | $473,550 | $473,550 |
| 2018 | $264,401 | $200,000 | $0 | $464,401 | $464,401 |
| 2017 | $265,293 | $170,000 | $0 | $435,293 | $435,293 |
| 2016 | $268,695 | $145,000 | $0 | $413,695 | $413,695 |
| 2015 | $272,095 | $140,000 | $0 | $412,095 | $412,095 |
| 2014 | $284,414 | $85,000 | $0 | $369,414 | $369,414 |
| 2013 | $288,185 | $85,000 | $0 | $373,185 | $373,185 |
| 2012 | $291,955 | $129,200 | $0 | $421,155 | $421,155 |
| 2011 | $295,727 | $152,000 | $0 | $447,727 | $447,727 |
| 2010 | $303,905 | $152,000 | $0 | $455,905 | $455,905 |
| 2009 | $317,073 | $190,000 | $0 | $507,073 | $507,073 |
| 2008 | $319,120 | $215,000 | $0 | $534,120 | $534,120 |
| 2007 | $323,141 | $215,000 | $0 | $538,141 | $538,141 |
Deed and Sales History
| 1 | 06/25/2018 | SPWARDEED | Special Warranty Deed | GEHRIG, JOHN & MARY D | GEHRIG TTEE, DOLORES | | | $0.00 | 35016 | 4448076 |
| 2 | 09/11/1995 | QCD | Quit Claim Deed | GEHRIG, JOHN & | GEHRIG, JOHN & MARY D | | | $0.00 | 90408 | 99004683 |
| 3 | 08/01/1993 | WD | Warranty Deed | BAUMGARTNER, ROBERT J | GEHRIG, JOHN & | | | $249,000.00 | 33103 | 93016073 |
| 4 | 02/01/1989 | WD | Warranty Deed | SCHAAD, HAROLD S | BAUMGARTNER, ROBERT J | | | $16,000.00 | 90395 | 89001343 |
| 5 | 09/01/1988 | QCD | Quit Claim Deed | SCHAAD, HAROLD S | SCHAAD, HAROLD S | | | $0.00 | 90391 | 89001339 |
| 6 | 09/01/1988 | QCD | Quit Claim Deed | SCHAAD, MABLE | SCHAAD, HAROLD S | | | $0.00 | 90392 | 89001340 |
| 7 | 09/01/1988 | QCD | Quit Claim Deed | SCHAAD, KENNETH H | SCHAAD, MABLE | | | $0.00 | 90393 | 89001341 |
| 8 | 09/01/1988 | QCD | Quit Claim Deed | SCHAAD, HAROLD S | SCHAAD, KENNETH H | | | $0.00 | 90394 | 89001342 |
| 9 | 01/01/1900 | OTHER | Other - Misc. Documents | Unknown | SCHAAD, HAROLD S | | | $0.00 | 0 | 0 |
Payout Agreement
| No payout information available.. |