Property
Account |
| Property ID: | 367178 | Abbreviated Legal Description: | SANDY HOOK LOT 6 BLK 2 |
| Geographic ID: | S8075-00-02006-0 | Agent Code: | |
| Type: | Real | | |
| Tax Area: | 710 - APPRAISER-S Whid Schl Dist, outside Langley, improved & 1 acre or less | Land Use Code | 11 |
| Open Space: | N | DFL | N |
| Historic Property: | N | Remodel Property: | N |
| Multi-Family Redevelopment: | N | | |
| Township: | | Section: | |
| Range: | |
Location |
| Address: | 8172 WHIDBEY DR CLINTON, WA 98236 | Mapsco: | |
| Neighborhood: | Cycle 4 | Map ID: | 710 |
| Neighborhood CD: | 4 |
Owner |
| Name: | WEINER, JEFFREY | Owner ID: | 291885 |
| Mailing Address: | 1856 E HAMLIN ST SEATTLE, WA 98112 | % Ownership: | 100.0000000000% |
| | | Exemptions: | |
Taxes and Assessment Details
Values
| (+) Improvement Homesite Value: | + | $0 | |
| (+) Improvement Non-Homesite Value: | + | $197,027 | |
| (+) Land Homesite Value: | + | $0 | |
| (+) Land Non-Homesite Value: | + | $370,000 | |
| (+) Curr Use (HS): | + | $0 | $0 |
| (+) Curr Use (NHS): | + | $0 | $0 |
| | | -------------------------- | |
| (=) Market Value: | = | $567,027 | |
| (–) Productivity Loss: | – | $0 | |
| | | -------------------------- | |
| (=) Subtotal: | = | $567,027 | |
| (+) Senior Appraised Value: | + | $0 | |
| (+) Non-Senior Appraised Value: | + | $567,027 | |
| | | -------------------------- | |
| (=) Total Appraised Value: | = | $567,027 | |
| (–) Senior Exemption Loss: | – | $0 | |
| (–) Exemption Loss: | – | $0 | |
| | | -------------------------- | |
| (=) Taxable Value: | = | $567,027 | |
Taxing Jurisdiction
| Owner: | WEINER, JEFFREY | | |
| % Ownership: | 100.0000000000% | | |
| Total Value: | $567,027 | | |
| Tax Area: | 710 - APPRAISER-S Whid Schl Dist, outside Langley, improved & 1 acre or less |
| CF | Conservation Futures | 0.0316035091 | $567,027 | $567,027 | $17.92 | | |
| FIRE3 | Fire & Rescue Dist #3 S Whidbey GEN | 1.2004855531 | $567,027 | $567,027 | $680.71 | | |
| HOBOND | Hospital BOND | 0.1910887512 | $567,027 | $567,027 | $108.35 | | |
| HOGEN | Hospital GEN | 0.3902502903 | $567,027 | $567,027 | $221.28 | | |
| CE | County Current Expense | 0.3708482477 | $567,027 | $567,027 | $210.28 | | |
| CR | County Roads | 0.4584763726 | $567,027 | $567,027 | $259.97 | | |
| ISLANDEMS | Hospital GEN (EMS) | 0.5000000000 | $567,027 | $567,027 | $283.51 | | |
| LIB | Library Sno-Isle GEN | 0.3153421757 | $567,027 | $567,027 | $178.81 | | |
| PORTWHID | Port of S Whidbey GEN | 0.1094540357 | $567,027 | $567,027 | $62.06 | | |
| SCH206BOND | School 206 BOND | 0.3161759235 | $567,027 | $567,027 | $179.28 | | |
| SCH206MO | School 206 Enrichment | 0.4547169547 | $567,027 | $567,027 | $257.84 | | |
| ST | State School | 1.3035497053 | $567,027 | $567,027 | $739.15 | | |
| ST2 | State School Part 2 | 0.8169543533 | $567,027 | $567,027 | $463.24 | | |
| SWHIDPRBD | P & R S Whidbey BOND | 0.0152817568 | $567,027 | $567,027 | $8.67 | | |
| SWHIDPRBD2 | P & R S Whidbey BOND2 | 0.0138911264 | $567,027 | $567,027 | $7.88 | | |
| SWHIDPRMT | P & R S Whidbey GEN | 0.2053334452 | $567,027 | $567,027 | $116.43 | | |
| | Total Tax Rate: | 6.6934522006 | | | | | |
| | | | | Taxes w/Current Exemptions: | $3,795.38 | | |
| | | | | Taxes w/o Exemptions: | $3,795.38 | | |
Improvement / Building
| Improvement #1: | RESIDENTIAL | State Code: | Y | 1248.0 sqft | Value: | $197,027 |
| Bathrooms: | 1.5 | Bedrooms: | 1 | | Ceiling: | TONGUE & GROOVE | Exterior Wall/Cover: | WOOD SIDING | | Floor Covering: | CARPET/VINYL 60-40 | Floor Structure: | WOOD W/SUBFLOOR | | Foundation: | CONCRETE | Heating: | WALL HEAT ELECTRIC | | Interior Finish: | DRYWALL PAINT | Plumbing Fixture Cnt: | 8 | | Roof Slope: | 4" IN 12" | Roof Structure/Cover: | BEAM ASPHALT |
|
| | Type | Description | Class CD | Sub Class CD | Year Built | Area |
| | BAS | BASE/MAIN FLOOR | 3 | 0 | 1976 | 624.0 |
| | OWP | OPEN WOOD PORCH W/STEPS | 3 | 0 | 1976 | 336.0 |
| | OWP | OPEN WOOD PORCH W/STEPS | 3 | 0 | 1976 | 352.0 |
| | OWC | OPEN WOOD PORCH W/STEPS/ROOF/C | 3 | 0 | 1976 | 356.0 |
| | DWN | DOWNSTAIRS LIVING AREA | 3 | 0 | 1976 | 624.0 |
Sketch
| No sketches available for this property. |
Property Image
Land
| 1 | 13 | SQ (06001-08000) | 0.0000 | 0.00 | 0.00 | 0.00 | 1.00 | $370,000 | $0 |
Roll Value History
| 2026 | N/A | N/A | N/A | N/A | N/A |
| 2025 | $197,027 | $370,000 | $0 | $567,027 | $567,027 |
| 2024 | $199,579 | $360,000 | $0 | $559,579 | $559,579 |
| 2023 | $202,129 | $360,000 | $0 | $562,129 | $562,129 |
| 2022 | $154,948 | $340,000 | $0 | $494,948 | $494,948 |
| 2021 | $136,703 | $300,000 | $0 | $436,703 | $436,703 |
| 2020 | $129,657 | $270,000 | $0 | $399,657 | $399,657 |
| 2019 | $87,719 | $210,000 | $0 | $297,719 | $297,719 |
| 2018 | $88,055 | $200,000 | $0 | $288,055 | $288,055 |
| 2017 | $88,727 | $170,000 | $0 | $258,727 | $258,727 |
| 2016 | $90,072 | $145,000 | $0 | $235,072 | $235,072 |
| 2015 | $91,416 | $120,000 | $0 | $211,416 | $211,416 |
| 2014 | $88,957 | $125,800 | $0 | $214,757 | $214,757 |
| 2013 | $90,319 | $125,800 | $0 | $216,119 | $216,119 |
| 2012 | $91,683 | $125,800 | $0 | $217,483 | $217,483 |
| 2011 | $93,047 | $148,000 | $0 | $241,047 | $241,047 |
| 2010 | $98,415 | $148,000 | $0 | $246,415 | $246,415 |
| 2009 | $102,812 | $185,000 | $0 | $287,812 | $287,812 |
| 2008 | $104,215 | $215,000 | $0 | $319,215 | $319,215 |
| 2007 | $105,609 | $215,000 | $0 | $320,609 | $320,609 |
Deed and Sales History
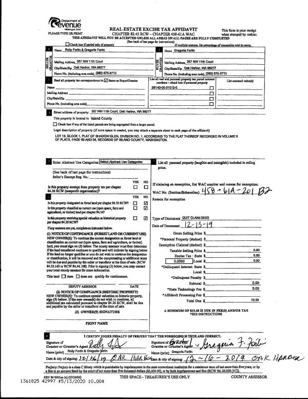
| 1 | 09/19/2019 | WD | Warranty Deed | STEVENSON, EMILY | WEINER, JEFFREY | | | $415,000.00 | 40408 | 4472015 |
| 2 | 11/14/2016 | QCD | Quit Claim Deed | STEVENSON, GREGORY W | STEVENSON, EMILY | | | $0.00 | 27336 | 4413363 |
| 3 | 09/01/1991 | QCD | Quit Claim Deed | STEVENSON, ROBERT L | STEVENSON, GREGORY W | | | $0.00 | 13306 | 91014064 |
| 4 | 05/01/1989 | QCD | Quit Claim Deed | STEVENSON, GREGORY W | STEVENSON, ROBERT L | | | $0.00 | 92003 | 89006876 |
| 5 | 08/01/1965 | EZ | Easement | BUMGARNER, ROBERT L | STEVENSON, GREGORY W | | | $0.00 | 19580 | 0 |
| 6 | 01/01/1900 | OTHER | Other - Misc. Documents | Unknown | BUMGARNER, ROBERT L | | | $0.00 | 0 | 0 |
Payout Agreement
| No payout information available.. |