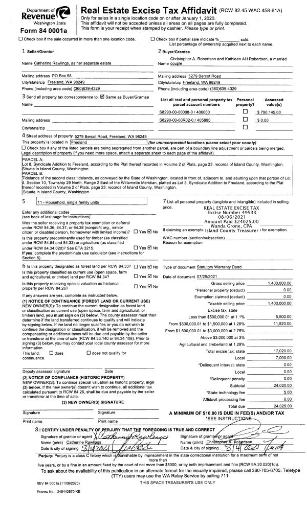
Property
Account |
| Property ID: | 367221 | Abbreviated Legal Description: | SANDY HOOK LOT 10 , 11 & 23 BLK 2 LOT COMB AF#4544191 |
| Geographic ID: | S8075-00-02011-0 | Agent Code: | |
| Type: | Real | | |
| Tax Area: | 710 - APPRAISER-S Whid Schl Dist, outside Langley, improved & 1 acre or less | Land Use Code | 11 |
| Open Space: | N | DFL | N |
| Historic Property: | N | Remodel Property: | N |
| Multi-Family Redevelopment: | N | | |
| Township: | | Section: | |
| Range: | |
Location |
| Address: | 8196 WHIDBEY DR DR CLINTON, WA 98236 | Mapsco: | |
| Neighborhood: | Cycle 4 | Map ID: | 710 |
| Neighborhood CD: | 4 |
Owner |
| Name: | CONRAD JR, DONALD H | Owner ID: | 300758 |
| Mailing Address: | MARY HELEN BEVER 8196 WHIBEY DR CLINTON, WA 98236 | % Ownership: | 100.0000000000% |
| | | Exemptions: | |
Taxes and Assessment Details
Values
| (+) Improvement Homesite Value: | + | $0 | |
| (+) Improvement Non-Homesite Value: | + | $566,711 | |
| (+) Land Homesite Value: | + | $0 | |
| (+) Land Non-Homesite Value: | + | $360,000 | |
| (+) Curr Use (HS): | + | $0 | $0 |
| (+) Curr Use (NHS): | + | $0 | $0 |
| | | -------------------------- | |
| (=) Market Value: | = | $926,711 | |
| (–) Productivity Loss: | – | $0 | |
| | | -------------------------- | |
| (=) Subtotal: | = | $926,711 | |
| (+) Senior Appraised Value: | + | $0 | |
| (+) Non-Senior Appraised Value: | + | $926,711 | |
| | | -------------------------- | |
| (=) Total Appraised Value: | = | $926,711 | |
| (–) Senior Exemption Loss: | – | $0 | |
| (–) Exemption Loss: | – | $0 | |
| | | -------------------------- | |
| (=) Taxable Value: | = | $926,711 | |
Taxing Jurisdiction
| Owner: | CONRAD JR, DONALD H | | |
| % Ownership: | 100.0000000000% | | |
| Total Value: | $926,711 | | |
| Tax Area: | 710 - APPRAISER-S Whid Schl Dist, outside Langley, improved & 1 acre or less |
| CF | Conservation Futures | 0.0316035091 | $926,711 | $926,711 | $29.29 | | |
| FIRE3 | Fire & Rescue Dist #3 S Whidbey GEN | 1.2004855531 | $926,711 | $926,711 | $1,112.50 | | |
| HOBOND | Hospital BOND | 0.1910887512 | $926,711 | $926,711 | $177.08 | | |
| HOGEN | Hospital GEN | 0.3902502903 | $926,711 | $926,711 | $361.65 | | |
| CE | County Current Expense | 0.3708482477 | $926,711 | $926,711 | $343.67 | | |
| CR | County Roads | 0.4584763726 | $926,711 | $926,711 | $424.88 | | |
| ISLANDEMS | Hospital GEN (EMS) | 0.5000000000 | $926,711 | $926,711 | $463.36 | | |
| LIB | Library Sno-Isle GEN | 0.3153421757 | $926,711 | $926,711 | $292.23 | | |
| PORTWHID | Port of S Whidbey GEN | 0.1094540357 | $926,711 | $926,711 | $101.43 | | |
| SCH206BOND | School 206 BOND | 0.3161759235 | $926,711 | $926,711 | $293.00 | | |
| SCH206MO | School 206 Enrichment | 0.4547169547 | $926,711 | $926,711 | $421.39 | | |
| ST | State School | 1.3035497053 | $926,711 | $926,711 | $1,208.01 | | |
| ST2 | State School Part 2 | 0.8169543533 | $926,711 | $926,711 | $757.08 | | |
| SWHIDPRBD | P & R S Whidbey BOND | 0.0152817568 | $926,711 | $926,711 | $14.16 | | |
| SWHIDPRBD2 | P & R S Whidbey BOND2 | 0.0138911264 | $926,711 | $926,711 | $12.87 | | |
| SWHIDPRMT | P & R S Whidbey GEN | 0.2053334452 | $926,711 | $926,711 | $190.28 | | |
| | Total Tax Rate: | 6.6934522006 | | | | | |
| | | | | Taxes w/Current Exemptions: | $6,202.88 | | |
| | | | | Taxes w/o Exemptions: | $6,202.88 | | |
Improvement / Building
| Improvement #1: | RESIDENTIAL | State Code: | Y | 3035.5 sqft | Value: | $566,711 |
| Bathrooms: | 3 | Bedrooms: | 3 | | Ceiling: | DRYWALL PAINTED | Exterior Wall/Cover: | CEMENT FIBER | | Floor Covering: | COLORED CONCRETE | Floor Structure: | SLAB ON GRADE | | Foundation: | SLAB | Heating: | RADIANT FLOOR | | Interior Finish: | DRYWALL PAINT | Plumbing Fixture Cnt: | 15 | | Roof Slope: | 3" IN 12" | Roof Structure/Cover: | BEAM ALUMINUM HEAVY |
|
| | Type | Description | Class CD | Sub Class CD | Year Built | Area |
| | BAS | BASE/MAIN FLOOR | 4 | 0 | 2024 | 1874.9 |
| | UTY | STORAGE/UTILITY | 4 | 0 | 2024 | 222.5 |
| | AGR | ATTACHED GARAGE | 4 | 0 | 2024 | 492.1 |
| | DWN | DOWNSTAIRS LIVING AREA | 4 | 0 | 2024 | 1160.6 |
| | OWP | OPEN WOOD PORCH W/STEPS | 4 | 0 | 2024 | 354.0 |
| | OP4 | OPEN PORCH W/CEILING-ROOF | 4 | 0 | 2024 | 80.0 |
| | OP1 | OPEN PORCH SLAB | 4 | 0 | 2024 | 663.0 |
| | OWC | OPEN WOOD PORCH W/STEPS/ROOF/C | 4 | 0 | 2024 | 123.0 |
Sketch
| No sketches available for this property. |
Property Image
Land
| 1 | 16 | AC (00.51-01.00) | 0.5200 | 22651.20 | 0.00 | 0.00 | 1.00 | $360,000 | $0 |
Roll Value History
| 2026 | N/A | N/A | N/A | N/A | N/A |
| 2025 | $566,711 | $360,000 | $0 | $926,711 | $926,711 |
| 2024 | $534,391 | $330,000 | $0 | $864,391 | $864,391 |
| 2023 | $33,060 | $160,000 | $0 | $193,060 | $193,060 |
| 2022 | $0 | $160,000 | $0 | $160,000 | $160,000 |
| 2021 | $0 | $150,000 | $0 | $150,000 | $150,000 |
| 2020 | $0 | $110,000 | $0 | $110,000 | $110,000 |
| 2019 | $0 | $110,000 | $0 | $110,000 | $110,000 |
| 2018 | $0 | $85,000 | $0 | $85,000 | $85,000 |
| 2017 | $0 | $85,000 | $0 | $85,000 | $85,000 |
| 2016 | $0 | $85,000 | $0 | $85,000 | $85,000 |
| 2015 | $0 | $85,000 | $0 | $85,000 | $85,000 |
| 2014 | $0 | $60,000 | $0 | $60,000 | $60,000 |
| 2013 | $0 | $60,000 | $0 | $60,000 | $60,000 |
| 2012 | $0 | $60,000 | $0 | $60,000 | $60,000 |
| 2011 | $0 | $60,000 | $0 | $60,000 | $60,000 |
| 2010 | $0 | $60,000 | $0 | $60,000 | $60,000 |
| 2009 | $0 | $75,000 | $0 | $75,000 | $75,000 |
| 2008 | $0 | $102,000 | $0 | $102,000 | $102,000 |
| 2007 | $0 | $102,000 | $0 | $102,000 | $102,000 |
Deed and Sales History
| 1 | 08/12/2021 | QCD | Quit Claim Deed | CONRAD JR, DONALD H | CONRAD JR, DONALD H | | | $0.00 | 49683 | 4527191 |
| 2 | 01/22/2021 | QCD | Quit Claim Deed | CONRAD, MARY HELEN | CONRAD JR, DONALD H | | | $0.00 | 46848 | 4510178 |
| 3 | 01/22/2021 | WD | Warranty Deed | MULCAHY, EDWARD P | CONRAD JR, DONALD H | | | $285,000.00 | 46847 | 4510177 |
| 4 | 10/11/2019 | QCD | Quit Claim Deed | MULCAHY, EDWARD P | MULCAHY, EDWARD P | | | $0.00 | 40668 | 4473238 |
| 5 | 05/15/2015 | WD | Warranty Deed | GREMMEL, DOUG | MULCAHY, EDWARD P | | | $98,000.00 | 19746 | 4379196 |
| 6 | 09/03/2013 | WD | Warranty Deed | ADAMS, HUGH | GREMMEL, DOUG | | | $95,000.00 | 12697 | 4347671 |
| 7 | 08/29/2009 | WD | Warranty Deed | VOYE, DENNIS P | ADAMS, HUGH | | | $199,000.00 | 63846 | 4180982 |
| 8 | 03/29/2006 | BLA | DNU - Boundary Line Adjustment | VOYE, DENNIS P | VOYE, DENNIS P | | | $0.00 | 70877 | 4133198 |
| 9 | 01/01/1989 | WD | Warranty Deed | SPRINT, DEAN E | VOYE, DENNIS P | | | $2,500.00 | 90195 | 89000672 |
| 10 | 01/01/1900 | OTHER | Other - Misc. Documents | Unknown | SPRINT, DEAN E | | | $0.00 | 0 | 0 |
Payout Agreement
| No payout information available.. |