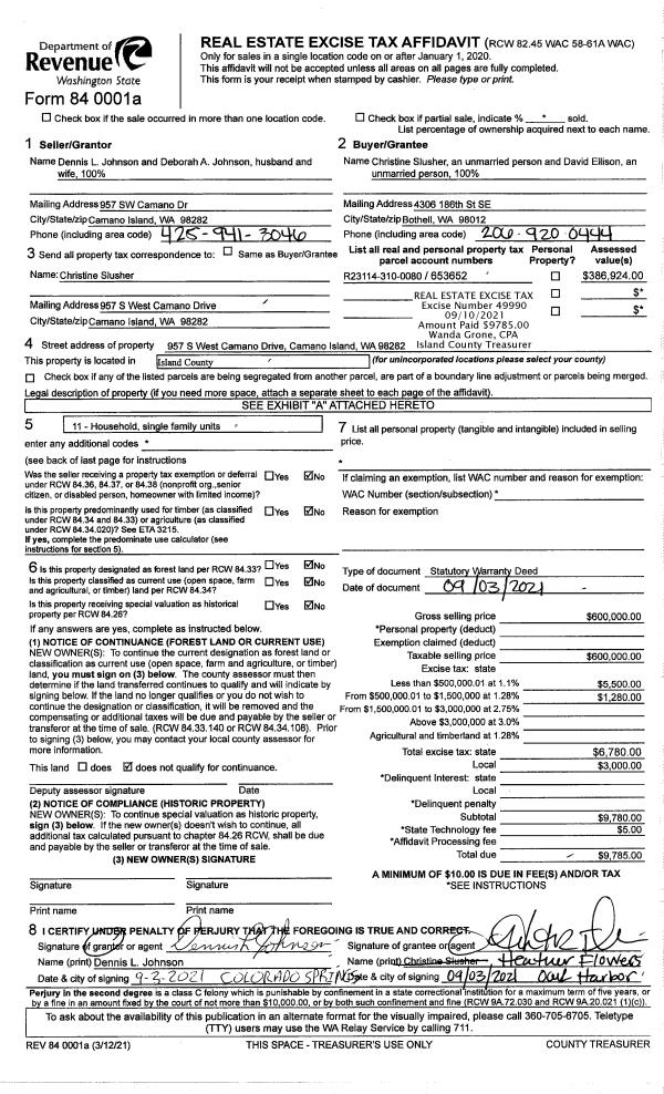
Property
Account |
| Property ID: | 367276 | Abbreviated Legal Description: | SANDY HOOK LOT 16 BLK 2 |
| Geographic ID: | S8075-00-02016-0 | Agent Code: | |
| Type: | Real | | |
| Tax Area: | 710 - APPRAISER-S Whid Schl Dist, outside Langley, improved & 1 acre or less | Land Use Code | 11 |
| Open Space: | N | DFL | N |
| Historic Property: | N | Remodel Property: | N |
| Multi-Family Redevelopment: | N | | |
| Township: | | Section: | |
| Range: | |
Location |
| Address: | 8230 WHIDBEY DR CLINTON, WA 98236 | Mapsco: | |
| Neighborhood: | Cycle 4 | Map ID: | 708 |
| Neighborhood CD: | 4 |
Owner |
| Name: | JOHNSTON JTWROS, CYNTHIA L | Owner ID: | 315215 |
| Mailing Address: | BRITTNEY R GAVINI JTWROS NAVEEN R GAVINI JTWROS 8230 WHIDBEY DR CLINTON, WA 98236 | % Ownership: | 100.0000000000% |
| | | Exemptions: | |
Taxes and Assessment Details
Values
| (+) Improvement Homesite Value: | + | $0 | |
| (+) Improvement Non-Homesite Value: | + | $226,316 | |
| (+) Land Homesite Value: | + | $0 | |
| (+) Land Non-Homesite Value: | + | $330,000 | |
| (+) Curr Use (HS): | + | $0 | $0 |
| (+) Curr Use (NHS): | + | $0 | $0 |
| | | -------------------------- | |
| (=) Market Value: | = | $556,316 | |
| (–) Productivity Loss: | – | $0 | |
| | | -------------------------- | |
| (=) Subtotal: | = | $556,316 | |
| (+) Senior Appraised Value: | + | $0 | |
| (+) Non-Senior Appraised Value: | + | $556,316 | |
| | | -------------------------- | |
| (=) Total Appraised Value: | = | $556,316 | |
| (–) Senior Exemption Loss: | – | $0 | |
| (–) Exemption Loss: | – | $0 | |
| | | -------------------------- | |
| (=) Taxable Value: | = | $556,316 | |
Taxing Jurisdiction
| Owner: | JOHNSTON JTWROS, CYNTHIA L | | |
| % Ownership: | 100.0000000000% | | |
| Total Value: | $556,316 | | |
| Tax Area: | 710 - APPRAISER-S Whid Schl Dist, outside Langley, improved & 1 acre or less |
| CF | Conservation Futures | 0.0316035091 | $556,316 | $556,316 | $17.58 | | |
| FIRE3 | Fire & Rescue Dist #3 S Whidbey GEN | 1.2004855531 | $556,316 | $556,316 | $667.85 | | |
| HOBOND | Hospital BOND | 0.1910887512 | $556,316 | $556,316 | $106.31 | | |
| HOGEN | Hospital GEN | 0.3902502903 | $556,316 | $556,316 | $217.10 | | |
| CE | County Current Expense | 0.3708482477 | $556,316 | $556,316 | $206.31 | | |
| CR | County Roads | 0.4584763726 | $556,316 | $556,316 | $255.06 | | |
| ISLANDEMS | Hospital GEN (EMS) | 0.5000000000 | $556,316 | $556,316 | $278.16 | | |
| LIB | Library Sno-Isle GEN | 0.3153421757 | $556,316 | $556,316 | $175.43 | | |
| PORTWHID | Port of S Whidbey GEN | 0.1094540357 | $556,316 | $556,316 | $60.89 | | |
| SCH206BOND | School 206 BOND | 0.3161759235 | $556,316 | $556,316 | $175.89 | | |
| SCH206MO | School 206 Enrichment | 0.4547169547 | $556,316 | $556,316 | $252.97 | | |
| ST | State School | 1.3035497053 | $556,316 | $556,316 | $725.19 | | |
| ST2 | State School Part 2 | 0.8169543533 | $556,316 | $556,316 | $454.48 | | |
| SWHIDPRBD | P & R S Whidbey BOND | 0.0152817568 | $556,316 | $556,316 | $8.50 | | |
| SWHIDPRBD2 | P & R S Whidbey BOND2 | 0.0138911264 | $556,316 | $556,316 | $7.73 | | |
| SWHIDPRMT | P & R S Whidbey GEN | 0.2053334452 | $556,316 | $556,316 | $114.23 | | |
| | Total Tax Rate: | 6.6934522006 | | | | | |
| | | | | Taxes w/Current Exemptions: | $3,723.68 | | |
| | | | | Taxes w/o Exemptions: | $3,723.68 | | |
Improvement / Building
| Improvement #1: | RESIDENTIAL | State Code: | Y | 1175.0 sqft | Value: | $226,316 |
| Bathrooms: | 2 | Bedrooms: | 3 | | Ceiling: | TONGUE & GROOVE | Cooling: | HEAT PUMP/CONV/V | | Exterior Wall/Cover: | WOOD SIDING | Floor Covering: | HARDWOOD/CARP 60-40 | | Floor Structure: | WOOD W/SUBFLOOR | Foundation: | CONCRETE | | Interior Finish: | DRYWALL PAINT | Plumbing Fixture Cnt: | 9 | | Roof Slope: | FLAT | Roof Structure/Cover: | BEAM BUILT-UP ROCK |
|
| | Type | Description | Class CD | Sub Class CD | Year Built | Area |
| | BAS | BASE/MAIN FLOOR | 3 | 0 | 1975 | 1175.0 |
| | AGR | ATTACHED GARAGE | 3 | 0 | 1975 | 462.0 |
| | OWP | OPEN WOOD PORCH W/STEPS | 3 | 0 | 1975 | 144.0 |
| | OWP | OPEN WOOD PORCH W/STEPS | 3 | 0 | 1975 | 120.0 |
Sketch
| No sketches available for this property. |
Property Image
Land
| 1 | 13 | SQ (06001-08000) | 0.0000 | 0.00 | 0.00 | 0.00 | 1.00 | $330,000 | $0 |
Roll Value History
| 2026 | N/A | N/A | N/A | N/A | N/A |
| 2025 | $226,316 | $330,000 | $0 | $556,316 | $556,316 |
| 2024 | $229,450 | $330,000 | $0 | $559,450 | $559,450 |
| 2023 | $232,581 | $320,000 | $0 | $552,581 | $552,581 |
| 2022 | $187,307 | $280,000 | $0 | $467,307 | $467,307 |
| 2021 | $165,158 | $220,000 | $0 | $385,158 | $385,158 |
| 2020 | $143,150 | $140,000 | $0 | $283,150 | $283,150 |
| 2019 | $100,488 | $180,000 | $0 | $280,488 | $280,488 |
| 2018 | $100,840 | $170,000 | $0 | $270,840 | $270,840 |
| 2017 | $101,546 | $150,000 | $0 | $251,546 | $251,546 |
| 2016 | $102,956 | $130,000 | $0 | $232,956 | $232,956 |
| 2015 | $104,367 | $120,000 | $0 | $224,367 | $224,367 |
| 2014 | $87,945 | $85,000 | $0 | $172,945 | $172,945 |
| 2013 | $89,410 | $85,000 | $0 | $174,410 | $174,410 |
| 2012 | $90,876 | $129,200 | $0 | $220,076 | $220,076 |
| 2011 | $92,342 | $152,000 | $0 | $244,342 | $244,342 |
| 2010 | $102,463 | $152,000 | $0 | $254,463 | $254,463 |
| 2009 | $105,523 | $190,000 | $0 | $295,523 | $295,523 |
| 2008 | $107,003 | $200,000 | $0 | $307,003 | $307,003 |
| 2007 | $104,884 | $203,598 | $0 | $308,482 | $308,482 |
Deed and Sales History
| 1 | 01/13/2025 | QCD | Quit Claim Deed | JOHNSTON, CYNTHIA LYNN | JOHNSTON JTWROS, CYNTHIA L | | | $0.00 | 62390 | 4581598 |
| 2 | 12/09/2024 | QCD | Quit Claim Deed | VANDER STOEP, ROBERT A. | JOHNSTON, CYNTHIA LYNN | | | $0.00 | 62389 | 4581597 |
| 3 | 10/12/2022 | WD | Warranty Deed | BRAUN-SCHWEIZER, MICHAEL | VANDER STOEP, ROBERT A. | | | $560,000.00 | 54974 | 4553036 |
| 4 | 02/02/2022 | QCD | Quit Claim Deed | BRAUN-SCHWEIZER, MICHAEL K | BRAUN-SCHWEIZER, MICHAEL | | | $0.00 | 52398 | 4542012 |
| 5 | 08/26/2006 | QCD | Quit Claim Deed | BRAUN SCHWEIZER, MICHAEL | BORA, JULIE A | | | $0.00 | 64761 | 4186219 |
| 6 | 11/17/2003 | WD | Warranty Deed | HAZEN, DONALD D | BRAUN SCHWEIZER, MICHAEL | | | $185,000.00 | 35474 | 4085112 |
| 7 | 05/01/1985 | OTHER | Other - Misc. Documents | HAZEN, DONALD D | HAZEN, DONALD D | | | $0.00 | 61161 | 0 |
| 8 | 01/01/1900 | OTHER | Other - Misc. Documents | Unknown | HAZEN, DONALD D | | | $0.00 | 0 | 0 |
Payout Agreement
| No payout information available.. |