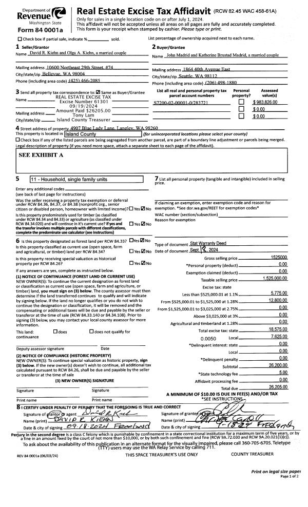
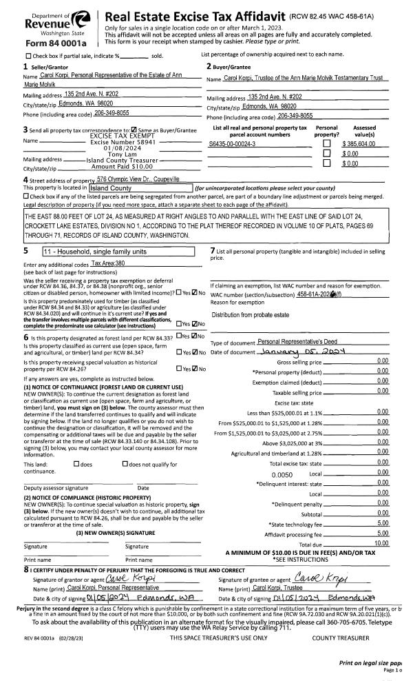
Property
Account |
| Property ID: | 367472 | Abbreviated Legal Description: | SANDY HOOK LOT 4 BLK 3 |
| Geographic ID: | S8075-00-03004-0 | Agent Code: | |
| Type: | Real | | |
| Tax Area: | 710 - APPRAISER-S Whid Schl Dist, outside Langley, improved & 1 acre or less | Land Use Code | 11 |
| Open Space: | N | DFL | N |
| Historic Property: | N | Remodel Property: | N |
| Multi-Family Redevelopment: | N | | |
| Township: | | Section: | |
| Range: | |
Location |
| Address: | 8178 CULTUS DR CLINTON, WA 98236 | Mapsco: | |
| Neighborhood: | Cycle 4 | Map ID: | 710 |
| Neighborhood CD: | 4 |
Owner |
| Name: | HYDE TTEE, OLCOTT | Owner ID: | 310009 |
| Mailing Address: | DIANE S HYDE TTEE 2516 NE 61ST AVE PORTLAND, OR 97213 | % Ownership: | 100.0000000000% |
| | | Exemptions: | |
Taxes and Assessment Details
Values
| (+) Improvement Homesite Value: | + | $0 | |
| (+) Improvement Non-Homesite Value: | + | $246,737 | |
| (+) Land Homesite Value: | + | $0 | |
| (+) Land Non-Homesite Value: | + | $330,000 | |
| (+) Curr Use (HS): | + | $0 | $0 |
| (+) Curr Use (NHS): | + | $0 | $0 |
| | | -------------------------- | |
| (=) Market Value: | = | $576,737 | |
| (–) Productivity Loss: | – | $0 | |
| | | -------------------------- | |
| (=) Subtotal: | = | $576,737 | |
| (+) Senior Appraised Value: | + | $0 | |
| (+) Non-Senior Appraised Value: | + | $576,737 | |
| | | -------------------------- | |
| (=) Total Appraised Value: | = | $576,737 | |
| (–) Senior Exemption Loss: | – | $0 | |
| (–) Exemption Loss: | – | $0 | |
| | | -------------------------- | |
| (=) Taxable Value: | = | $576,737 | |
Taxing Jurisdiction
| Owner: | HYDE TTEE, OLCOTT | | |
| % Ownership: | 100.0000000000% | | |
| Total Value: | $576,737 | | |
| Tax Area: | 710 - APPRAISER-S Whid Schl Dist, outside Langley, improved & 1 acre or less |
| CF | Conservation Futures | 0.0316035091 | $576,737 | $576,737 | $18.23 | | |
| FIRE3 | Fire & Rescue Dist #3 S Whidbey GEN | 1.2004855531 | $576,737 | $576,737 | $692.36 | | |
| HOBOND | Hospital BOND | 0.1910887512 | $576,737 | $576,737 | $110.21 | | |
| HOGEN | Hospital GEN | 0.3902502903 | $576,737 | $576,737 | $225.07 | | |
| CE | County Current Expense | 0.3708482477 | $576,737 | $576,737 | $213.88 | | |
| CR | County Roads | 0.4584763726 | $576,737 | $576,737 | $264.42 | | |
| ISLANDEMS | Hospital GEN (EMS) | 0.5000000000 | $576,737 | $576,737 | $288.37 | | |
| LIB | Library Sno-Isle GEN | 0.3153421757 | $576,737 | $576,737 | $181.87 | | |
| PORTWHID | Port of S Whidbey GEN | 0.1094540357 | $576,737 | $576,737 | $63.13 | | |
| SCH206BOND | School 206 BOND | 0.3161759235 | $576,737 | $576,737 | $182.35 | | |
| SCH206MO | School 206 Enrichment | 0.4547169547 | $576,737 | $576,737 | $262.25 | | |
| ST | State School | 1.3035497053 | $576,737 | $576,737 | $751.81 | | |
| ST2 | State School Part 2 | 0.8169543533 | $576,737 | $576,737 | $471.17 | | |
| SWHIDPRBD | P & R S Whidbey BOND | 0.0152817568 | $576,737 | $576,737 | $8.81 | | |
| SWHIDPRBD2 | P & R S Whidbey BOND2 | 0.0138911264 | $576,737 | $576,737 | $8.01 | | |
| SWHIDPRMT | P & R S Whidbey GEN | 0.2053334452 | $576,737 | $576,737 | $118.42 | | |
| | Total Tax Rate: | 6.6934522006 | | | | | |
| | | | | Taxes w/Current Exemptions: | $3,860.36 | | |
| | | | | Taxes w/o Exemptions: | $3,860.36 | | |
Improvement / Building
| Improvement #1: | RESIDENTIAL | State Code: | Y | 2080.0 sqft | Value: | $246,737 |
| Bathrooms: | 2 | Bedrooms: | 3 | | Ceiling: | DRYWALL PAINTED | Cooling: | HEAT PUMP/CONV/V | | Exterior Wall/Cover: | PLY/HARDBOARD T-111 | Floor Covering: | CARPET/VINYL 80-20 | | Floor Structure: | WOOD W/SUBFLOOR | Foundation: | CONCRETE | | Interior Finish: | DRYWALL PAINT | Plumbing Fixture Cnt: | 10 | | Roof Slope: | 4" IN 12" | Roof Structure/Cover: | CJ ASPHALT |
|
| | Type | Description | Class CD | Sub Class CD | Year Built | Area |
| | BAS | BASE/MAIN FLOOR | 3 | 0 | 1986 | 1216.0 |
| | DWN | DOWNSTAIRS LIVING AREA | 3 | 0 | 1986 | 864.0 |
| | OWP | OPEN WOOD PORCH W/STEPS | 3 | 0 | 1986 | 482.0 |
| | OWC | OPEN WOOD PORCH W/STEPS/ROOF/C | 3 | 0 | 1986 | 36.0 |
| | OP1 | OPEN PORCH SLAB | 3 | 0 | 1986 | 100.0 |
| | UB8 | BASEMENT UNFINISHED 8" | 3 | 0 | 1986 | 336.0 |
Sketch
| No sketches available for this property. |
Property Image
Land
| 1 | 13 | SQ (06001-08000) | 0.0000 | 0.00 | 0.00 | 0.00 | 1.00 | $330,000 | $0 |
Roll Value History
| 2026 | N/A | N/A | N/A | N/A | N/A |
| 2025 | $246,737 | $330,000 | $0 | $576,737 | $576,737 |
| 2024 | $250,200 | $330,000 | $0 | $580,200 | $580,200 |
| 2023 | $214,740 | $320,000 | $0 | $534,740 | $534,740 |
| 2022 | $197,216 | $280,000 | $0 | $477,216 | $477,216 |
| 2021 | $173,896 | $220,000 | $0 | $393,896 | $393,896 |
| 2020 | $157,366 | $140,000 | $0 | $297,366 | $297,366 |
| 2019 | $110,937 | $180,000 | $0 | $290,937 | $290,937 |
| 2018 | $111,337 | $170,000 | $0 | $281,337 | $281,337 |
| 2017 | $112,137 | $150,000 | $0 | $262,137 | $262,137 |
| 2016 | $113,740 | $130,000 | $0 | $243,740 | $243,740 |
| 2015 | $115,342 | $120,000 | $0 | $235,342 | $235,342 |
| 2014 | $117,326 | $100,000 | $0 | $217,326 | $217,326 |
| 2013 | $118,932 | $85,000 | $0 | $203,932 | $203,932 |
| 2012 | $120,541 | $122,400 | $0 | $242,941 | $242,941 |
| 2011 | $122,147 | $144,000 | $0 | $266,147 | $266,147 |
| 2010 | $127,762 | $144,000 | $0 | $271,762 | $271,762 |
| 2009 | $133,263 | $180,000 | $0 | $313,263 | $313,263 |
| 2008 | $135,860 | $215,000 | $0 | $350,860 | $350,860 |
| 2007 | $137,531 | $215,000 | $0 | $352,531 | $352,531 |
Deed and Sales History
| 1 | 09/05/2023 | WD | Warranty Deed | KISTNER BILLIG, MILDRED | HYDE TTEE, OLCOTT | | | $590,000.00 | 57923 | 4564477 |
| 2 | 04/19/2001 | QCD | Quit Claim Deed | BILLIG, CHARLES R | KISTNER, MILDRED | | | $0.00 | 11343 | 20030396 |
| 3 | 12/01/1980 | TRUSTEED | Trustee's Deed | DOUGLAS, DONALD E | BILLIG, CHARLES R | | | $17,000.00 | 3985 | 376865 |
| 4 | 01/01/1900 | OTHER | Other - Misc. Documents | Unknown | DOUGLAS, DONALD E | | | $0.00 | 0 | 0 |
Payout Agreement
| No payout information available.. |