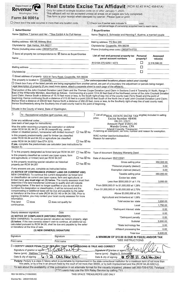
Property
Account |
| Property ID: | 367515 | Abbreviated Legal Description: | SANDY HOOK LOT 8 BLK 3 |
| Geographic ID: | S8075-00-03008-0 | Agent Code: | |
| Type: | Real | | |
| Tax Area: | 710 - APPRAISER-S Whid Schl Dist, outside Langley, improved & 1 acre or less | Land Use Code | 11 |
| Open Space: | N | DFL | N |
| Historic Property: | N | Remodel Property: | N |
| Multi-Family Redevelopment: | N | | |
| Township: | | Section: | |
| Range: | |
Location |
| Address: | 8198 CULTUS DR CLINTON, WA 98236 | Mapsco: | |
| Neighborhood: | Cycle 4 | Map ID: | 710 |
| Neighborhood CD: | 4 |
Owner |
| Name: | HOLLINGSHEAD, LUCAS W | Owner ID: | 271724 |
| Mailing Address: | LARA A BULOTA 1420 NW GILMAN BLVD ISSAQUAH, WA 98027 | % Ownership: | 100.0000000000% |
| | | Exemptions: | |
Taxes and Assessment Details
Values
| (+) Improvement Homesite Value: | + | $0 | |
| (+) Improvement Non-Homesite Value: | + | $156,529 | |
| (+) Land Homesite Value: | + | $0 | |
| (+) Land Non-Homesite Value: | + | $330,000 | |
| (+) Curr Use (HS): | + | $0 | $0 |
| (+) Curr Use (NHS): | + | $0 | $0 |
| | | -------------------------- | |
| (=) Market Value: | = | $486,529 | |
| (–) Productivity Loss: | – | $0 | |
| | | -------------------------- | |
| (=) Subtotal: | = | $486,529 | |
| (+) Senior Appraised Value: | + | $0 | |
| (+) Non-Senior Appraised Value: | + | $486,529 | |
| | | -------------------------- | |
| (=) Total Appraised Value: | = | $486,529 | |
| (–) Senior Exemption Loss: | – | $0 | |
| (–) Exemption Loss: | – | $0 | |
| | | -------------------------- | |
| (=) Taxable Value: | = | $486,529 | |
Taxing Jurisdiction
| Owner: | HOLLINGSHEAD, LUCAS W | | |
| % Ownership: | 100.0000000000% | | |
| Total Value: | $486,529 | | |
| Tax Area: | 710 - APPRAISER-S Whid Schl Dist, outside Langley, improved & 1 acre or less |
| CF | Conservation Futures | 0.0316035091 | $486,529 | $486,529 | $15.38 | | |
| FIRE3 | Fire & Rescue Dist #3 S Whidbey GEN | 1.2004855531 | $486,529 | $486,529 | $584.07 | | |
| HOBOND | Hospital BOND | 0.1910887512 | $486,529 | $486,529 | $92.97 | | |
| HOGEN | Hospital GEN | 0.3902502903 | $486,529 | $486,529 | $189.87 | | |
| CE | County Current Expense | 0.3708482477 | $486,529 | $486,529 | $180.43 | | |
| CR | County Roads | 0.4584763726 | $486,529 | $486,529 | $223.06 | | |
| ISLANDEMS | Hospital GEN (EMS) | 0.5000000000 | $486,529 | $486,529 | $243.26 | | |
| LIB | Library Sno-Isle GEN | 0.3153421757 | $486,529 | $486,529 | $153.42 | | |
| PORTWHID | Port of S Whidbey GEN | 0.1094540357 | $486,529 | $486,529 | $53.25 | | |
| SCH206BOND | School 206 BOND | 0.3161759235 | $486,529 | $486,529 | $153.83 | | |
| SCH206MO | School 206 Enrichment | 0.4547169547 | $486,529 | $486,529 | $221.23 | | |
| ST | State School | 1.3035497053 | $486,529 | $486,529 | $634.21 | | |
| ST2 | State School Part 2 | 0.8169543533 | $486,529 | $486,529 | $397.47 | | |
| SWHIDPRBD | P & R S Whidbey BOND | 0.0152817568 | $486,529 | $486,529 | $7.44 | | |
| SWHIDPRBD2 | P & R S Whidbey BOND2 | 0.0138911264 | $486,529 | $486,529 | $6.76 | | |
| SWHIDPRMT | P & R S Whidbey GEN | 0.2053334452 | $486,529 | $486,529 | $99.90 | | |
| | Total Tax Rate: | 6.6934522006 | | | | | |
| | | | | Taxes w/Current Exemptions: | $3,256.55 | | |
| | | | | Taxes w/o Exemptions: | $3,256.55 | | |
Improvement / Building
| Improvement #1: | RESIDENTIAL | State Code: | Y | 816.0 sqft | Value: | $156,529 |
| Bathrooms: | 1 | Bedrooms: | 2 | | Ceiling: | BEAM PAINTED | Exterior Wall/Cover: | PLY/HARDBOARD T-111 | | Floor Covering: | VINYL/HARDWOOD 20-80 | Floor Structure: | WOOD W/SUBFLOOR | | Foundation: | CONCRETE | Heating: | BASEBOARD ELECTRIC | | Interior Finish: | DRYWALL PAINT | Plumbing Fixture Cnt: | 6 | | Roof Slope: | 3" IN 12" | Roof Structure/Cover: | BEAM ALUMINUM HEAVY |
|
| | Type | Description | Class CD | Sub Class CD | Year Built | Area |
| | BAS | BASE/MAIN FLOOR | 3 | 0 | 1964 | 816.0 |
| | OWP | OPEN WOOD PORCH W/STEPS | 3 | 0 | 1964 | 246.0 |
| | OWP | OPEN WOOD PORCH W/STEPS | 3 | 0 | 1964 | 125.0 |
| | OWR | OPEN WOOD PORCH W/STEPS/ROOF | 3 | 0 | 1964 | 168.0 |
Sketch
| No sketches available for this property. |
Property Image
Land
| 1 | 13 | SQ (06001-08000) | 0.0000 | 0.00 | 0.00 | 0.00 | 1.00 | $330,000 | $0 |
Roll Value History
| 2026 | N/A | N/A | N/A | N/A | N/A |
| 2025 | $156,529 | $330,000 | $0 | $486,529 | $486,529 |
| 2024 | $154,789 | $330,000 | $0 | $484,789 | $484,789 |
| 2023 | $156,820 | $320,000 | $0 | $476,820 | $476,820 |
| 2022 | $143,841 | $280,000 | $0 | $423,841 | $423,841 |
| 2021 | $126,676 | $220,000 | $0 | $346,676 | $346,676 |
| 2020 | $118,256 | $180,000 | $0 | $298,256 | $298,256 |
| 2019 | $82,975 | $210,000 | $0 | $292,975 | $292,975 |
| 2018 | $83,237 | $170,000 | $0 | $253,237 | $253,237 |
| 2017 | $83,758 | $150,000 | $0 | $233,758 | $233,758 |
| 2016 | $84,805 | $130,000 | $0 | $214,805 | $214,805 |
| 2015 | $85,852 | $120,000 | $0 | $205,852 | $205,852 |
| 2014 | $55,490 | $100,000 | $0 | $155,490 | $155,490 |
| 2013 | $57,056 | $85,000 | $0 | $142,056 | $142,056 |
| 2012 | $58,102 | $122,400 | $0 | $180,502 | $180,502 |
| 2011 | $59,149 | $144,000 | $0 | $203,149 | $203,149 |
| 2010 | $64,956 | $144,000 | $0 | $208,956 | $208,956 |
| 2009 | $67,927 | $180,000 | $0 | $247,927 | $247,927 |
| 2008 | $68,981 | $200,000 | $0 | $268,981 | $268,981 |
| 2007 | $70,045 | $200,000 | $0 | $270,045 | $270,045 |
Deed and Sales History
| 1 | 08/10/2015 | WD | Warranty Deed | MIZUMORI, SHERI J | HOLLINGSHEAD, LUCAS W | | | $210,000.00 | 20870 | 4383914 |
| 2 | 11/26/2007 | WD | Warranty Deed | MIZUMORI PR, STACY E | MIZUMORI, SHERI J | | | $273,000.00 | 73908 | 4217111 |
| 3 | 11/21/2007 | WD | Warranty Deed | KENNEDY, MARY E | MIZUMORI PR, STACY E | | | $0.00 | 73843 | 4216819 |
| 4 | 04/01/1993 | OTHER | Other - Misc. Documents | KENNEDY, RAUL F | KENNEDY, MARY E | | | $0.00 | 65328 | 0 |
| 5 | 12/01/1984 | WD | Warranty Deed | WALTON, FRANK G | KENNEDY, RAUL F | | | $50,000.00 | 50060 | 85000228 |
| 6 | 09/01/1982 | CD | DNU - Correction Deed | WALTON, FRANK G | WALTON, FRANK G | | | $0.00 | 22160 | 400439 |
| 7 | 01/01/1900 | OTHER | Other - Misc. Documents | Unknown | WALTON, FRANK G | | | $0.00 | 0 | 0 |
Payout Agreement
| No payout information available.. |