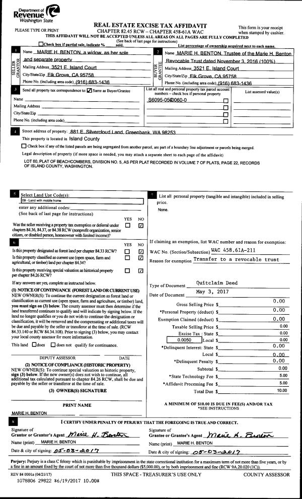
Property
Account |
| Property ID: | 367819 | Abbreviated Legal Description: | SANDY HOOK LOT 13 BLK 4 |
| Geographic ID: | S8075-00-04013-0 | Agent Code: | |
| Type: | Real | | |
| Tax Area: | 710 - APPRAISER-S Whid Schl Dist, outside Langley, improved & 1 acre or less | Land Use Code | 11 |
| Open Space: | N | DFL | N |
| Historic Property: | N | Remodel Property: | N |
| Multi-Family Redevelopment: | N | | |
| Township: | | Section: | |
| Range: | |
Location |
| Address: | 4119 SCATCHET VIEW DR CLINTON, WA 98236 | Mapsco: | |
| Neighborhood: | Cycle 4 | Map ID: | 708 |
| Neighborhood CD: | 4 |
Owner |
| Name: | MITCHELL, RICHARD | Owner ID: | 281453 |
| Mailing Address: | 4119 SCATCHET VIEW DR CLINTON, WA 98236 | % Ownership: | 100.0000000000% |
| | | Exemptions: | |
Taxes and Assessment Details
Values
| (+) Improvement Homesite Value: | + | $0 | |
| (+) Improvement Non-Homesite Value: | + | $192,830 | |
| (+) Land Homesite Value: | + | $0 | |
| (+) Land Non-Homesite Value: | + | $330,000 | |
| (+) Curr Use (HS): | + | $0 | $0 |
| (+) Curr Use (NHS): | + | $0 | $0 |
| | | -------------------------- | |
| (=) Market Value: | = | $522,830 | |
| (–) Productivity Loss: | – | $0 | |
| | | -------------------------- | |
| (=) Subtotal: | = | $522,830 | |
| (+) Senior Appraised Value: | + | $0 | |
| (+) Non-Senior Appraised Value: | + | $522,830 | |
| | | -------------------------- | |
| (=) Total Appraised Value: | = | $522,830 | |
| (–) Senior Exemption Loss: | – | $0 | |
| (–) Exemption Loss: | – | $0 | |
| | | -------------------------- | |
| (=) Taxable Value: | = | $522,830 | |
Taxing Jurisdiction
| Owner: | MITCHELL, RICHARD | | |
| % Ownership: | 100.0000000000% | | |
| Total Value: | $522,830 | | |
| Tax Area: | 710 - APPRAISER-S Whid Schl Dist, outside Langley, improved & 1 acre or less |
| CF | Conservation Futures | 0.0316035091 | $522,830 | $522,830 | $16.52 | | |
| FIRE3 | Fire & Rescue Dist #3 S Whidbey GEN | 1.2004855531 | $522,830 | $522,830 | $627.65 | | |
| HOBOND | Hospital BOND | 0.1910887512 | $522,830 | $522,830 | $99.91 | | |
| HOGEN | Hospital GEN | 0.3902502903 | $522,830 | $522,830 | $204.03 | | |
| CE | County Current Expense | 0.3708482477 | $522,830 | $522,830 | $193.89 | | |
| CR | County Roads | 0.4584763726 | $522,830 | $522,830 | $239.71 | | |
| ISLANDEMS | Hospital GEN (EMS) | 0.5000000000 | $522,830 | $522,830 | $261.42 | | |
| LIB | Library Sno-Isle GEN | 0.3153421757 | $522,830 | $522,830 | $164.87 | | |
| PORTWHID | Port of S Whidbey GEN | 0.1094540357 | $522,830 | $522,830 | $57.23 | | |
| SCH206BOND | School 206 BOND | 0.3161759235 | $522,830 | $522,830 | $165.31 | | |
| SCH206MO | School 206 Enrichment | 0.4547169547 | $522,830 | $522,830 | $237.74 | | |
| ST | State School | 1.3035497053 | $522,830 | $522,830 | $681.53 | | |
| ST2 | State School Part 2 | 0.8169543533 | $522,830 | $522,830 | $427.13 | | |
| SWHIDPRBD | P & R S Whidbey BOND | 0.0152817568 | $522,830 | $522,830 | $7.99 | | |
| SWHIDPRBD2 | P & R S Whidbey BOND2 | 0.0138911264 | $522,830 | $522,830 | $7.26 | | |
| SWHIDPRMT | P & R S Whidbey GEN | 0.2053334452 | $522,830 | $522,830 | $107.35 | | |
| | Total Tax Rate: | 6.6934522006 | | | | | |
| | | | | Taxes w/Current Exemptions: | $3,499.54 | | |
| | | | | Taxes w/o Exemptions: | $3,499.54 | | |
Improvement / Building
| Improvement #1: | RESIDENTIAL | State Code: | Y | 747.0 sqft | Value: | $192,830 |
| Bathrooms: | 1 | Bedrooms: | 2 | | Ceiling: | BEAM PAINTED | Cooling: | HEAT PUMP/CONV/V | | Exterior Wall/Cover: | LOG TO 10" | Floor Covering: | CARPET/VINYL 80-20 | | Floor Structure: | WOOD W/SUBFLOOR | Foundation: | CONCRETE | | Interior Finish: | DRYWALL PAINT | Plumbing Fixture Cnt: | 6 | | Roof Slope: | 3" IN 12" | Roof Structure/Cover: | CJ ASPHALT |
|
| | Type | Description | Class CD | Sub Class CD | Year Built | Area |
| | BAS | BASE/MAIN FLOOR | 3 | 0 | 1970 | 747.0 |
| | OWP | OPEN WOOD PORCH W/STEPS | 3 | 0 | 1970 | 978.0 |
| | UTY | STORAGE/UTILITY | 3 | 0 | 1970 | 336.0 |
Sketch
| No sketches available for this property. |
Property Image
Land
| 1 | 13 | SQ (06001-08000) | 0.0000 | 0.00 | 0.00 | 0.00 | 1.00 | $330,000 | $0 |
Roll Value History
| 2026 | N/A | N/A | N/A | N/A | N/A |
| 2025 | $192,830 | $330,000 | $0 | $522,830 | $522,830 |
| 2024 | $193,258 | $330,000 | $0 | $523,258 | $523,258 |
| 2023 | $195,761 | $320,000 | $0 | $515,761 | $515,761 |
| 2022 | $179,532 | $280,000 | $0 | $459,532 | $459,532 |
| 2021 | $158,078 | $220,000 | $0 | $378,078 | $378,078 |
| 2020 | $140,516 | $180,000 | $0 | $320,516 | $320,516 |
| 2019 | $98,696 | $210,000 | $0 | $308,696 | $308,696 |
| 2018 | $97,387 | $200,000 | $0 | $297,387 | $297,387 |
| 2017 | $75,946 | $170,000 | $0 | $245,946 | $245,946 |
| 2016 | $76,987 | $145,000 | $0 | $221,987 | $221,987 |
| 2015 | $78,026 | $140,000 | $0 | $218,026 | $218,026 |
| 2014 | $85,678 | $85,000 | $0 | $170,678 | $170,678 |
| 2013 | $86,857 | $85,000 | $0 | $171,857 | $171,857 |
| 2012 | $88,037 | $129,200 | $0 | $217,237 | $217,237 |
| 2011 | $89,216 | $152,000 | $0 | $241,216 | $241,216 |
| 2010 | $94,244 | $152,000 | $0 | $246,244 | $246,244 |
| 2009 | $97,108 | $190,000 | $0 | $287,108 | $287,108 |
| 2008 | $98,384 | $215,000 | $0 | $313,384 | $313,384 |
| 2007 | $99,662 | $215,000 | $0 | $314,662 | $314,662 |
Deed and Sales History
| 1 | 08/14/2017 | WD | Warranty Deed | WARREN, DAVID | MITCHELL, RICHARD | | | $320,000.00 | 30660 | 4428255 |
| 2 | 08/28/2003 | WD | Warranty Deed | EDELMAN, HELEN M | WARREN, DAVID | | | $175,000.00 | 33821 | 4072979 |
| 3 | 09/28/1998 | WD | Warranty Deed | STARR, DOROTHY A | EDELMAN, HELEN M | | | $132,500.00 | 83879 | 98020930 |
| 4 | 11/01/1989 | PRD | Personal Representatives Deed | STARR, MERLE & | STARR, DOROTHY A | | | $0.00 | 95029 | 89016254 |
| 5 | 09/01/1987 | QCD | Quit Claim Deed | STARR, MERLE & | STARR, MERLE & | | | $0.00 | 73376 | 87014813 |
| 6 | 07/01/1987 | WD | Warranty Deed | PETERSON, GEORGE G | STARR, MERLE & | | | $52,500.00 | 72275 | 87010312 |
| 7 | 01/01/1900 | OTHER | Other - Misc. Documents | Unknown | PETERSON, GEORGE G | | | $0.00 | 0 | 0 |
Payout Agreement
| No payout information available.. |