Property
Account |
| Property ID: | 367908 | Abbreviated Legal Description: | SANDY HOOK LOT 22 BLK 4 TGW PT LOT 21 BLK 4 DESC: BG SECR OF LOT 21 S89*W ALG SLN LOT 21 27.65' TPB N1*E3.64' N88*W30.64' S34*W5.95' TP ON SLN LOT 21 N89*E ALG SD SLN 33.91' TPB |
| Geographic ID: | S8075-00-04022-0 | Agent Code: | |
| Type: | Real | | |
| Tax Area: | 710 - APPRAISER-S Whid Schl Dist, outside Langley, improved & 1 acre or less | Land Use Code | 11 |
| Open Space: | N | DFL | N |
| Historic Property: | N | Remodel Property: | N |
| Multi-Family Redevelopment: | N | | |
| Township: | | Section: | |
| Range: | |
Location |
| Address: | 8212 OLYMPIC VIEW LN CLINTON, WA 98236 | Mapsco: | |
| Neighborhood: | Cycle 4 | Map ID: | 708 |
| Neighborhood CD: | 4 |
Owner |
| Name: | BLADES TRUSTEE, JACK MARTIN | Owner ID: | 280244 |
| Mailing Address: | MOLLIE M M BLADES 8212 OLYMPIC VIEW LN CLINTON, WA 98236 | % Ownership: | 100.0000000000% |
| | | Exemptions: | |
Taxes and Assessment Details
Values
| (+) Improvement Homesite Value: | + | $0 | |
| (+) Improvement Non-Homesite Value: | + | $228,698 | |
| (+) Land Homesite Value: | + | $0 | |
| (+) Land Non-Homesite Value: | + | $360,000 | |
| (+) Curr Use (HS): | + | $0 | $0 |
| (+) Curr Use (NHS): | + | $0 | $0 |
| | | -------------------------- | |
| (=) Market Value: | = | $588,698 | |
| (–) Productivity Loss: | – | $0 | |
| | | -------------------------- | |
| (=) Subtotal: | = | $588,698 | |
| (+) Senior Appraised Value: | + | $0 | |
| (+) Non-Senior Appraised Value: | + | $588,698 | |
| | | -------------------------- | |
| (=) Total Appraised Value: | = | $588,698 | |
| (–) Senior Exemption Loss: | – | $0 | |
| (–) Exemption Loss: | – | $0 | |
| | | -------------------------- | |
| (=) Taxable Value: | = | $588,698 | |
Taxing Jurisdiction
| Owner: | BLADES TRUSTEE, JACK MARTIN | | |
| % Ownership: | 100.0000000000% | | |
| Total Value: | $588,698 | | |
| Tax Area: | 710 - APPRAISER-S Whid Schl Dist, outside Langley, improved & 1 acre or less |
| CF | Conservation Futures | 0.0316035091 | $588,698 | $588,698 | $18.60 | | |
| FIRE3 | Fire & Rescue Dist #3 S Whidbey GEN | 1.2004855531 | $588,698 | $588,698 | $706.72 | | |
| HOBOND | Hospital BOND | 0.1910887512 | $588,698 | $588,698 | $112.49 | | |
| HOGEN | Hospital GEN | 0.3902502903 | $588,698 | $588,698 | $229.74 | | |
| CE | County Current Expense | 0.3708482477 | $588,698 | $588,698 | $218.32 | | |
| CR | County Roads | 0.4584763726 | $588,698 | $588,698 | $269.90 | | |
| ISLANDEMS | Hospital GEN (EMS) | 0.5000000000 | $588,698 | $588,698 | $294.35 | | |
| LIB | Library Sno-Isle GEN | 0.3153421757 | $588,698 | $588,698 | $185.64 | | |
| PORTWHID | Port of S Whidbey GEN | 0.1094540357 | $588,698 | $588,698 | $64.44 | | |
| SCH206BOND | School 206 BOND | 0.3161759235 | $588,698 | $588,698 | $186.13 | | |
| SCH206MO | School 206 Enrichment | 0.4547169547 | $588,698 | $588,698 | $267.69 | | |
| ST | State School | 1.3035497053 | $588,698 | $588,698 | $767.40 | | |
| ST2 | State School Part 2 | 0.8169543533 | $588,698 | $588,698 | $480.94 | | |
| SWHIDPRBD | P & R S Whidbey BOND | 0.0152817568 | $588,698 | $588,698 | $9.00 | | |
| SWHIDPRBD2 | P & R S Whidbey BOND2 | 0.0138911264 | $588,698 | $588,698 | $8.18 | | |
| SWHIDPRMT | P & R S Whidbey GEN | 0.2053334452 | $588,698 | $588,698 | $120.88 | | |
| | Total Tax Rate: | 6.6934522006 | | | | | |
| | | | | Taxes w/Current Exemptions: | $3,940.42 | | |
| | | | | Taxes w/o Exemptions: | $3,940.42 | | |
Improvement / Building
| Improvement #1: | RESIDENTIAL | State Code: | Y | 1714.0 sqft | Value: | $228,698 |
| Bathrooms: | 2 | Bedrooms: | 2 | | Ceiling: | BEAM PAINTED | Exterior Wall/Cover: | WOOD SIDING | | Floor Covering: | CARPET/VINYL 80-20 | Floor Structure: | WOOD W/SUBFLOOR | | Foundation: | CONCRETE | Heating: | B/B HOT WATER-OIL | | Interior Finish: | DRYWALL PAINT | Plumbing Fixture Cnt: | 9 | | Roof Slope: | 3" IN 12" | Roof Structure/Cover: | BEAM ROLL COMPOSITION |
|
| | Type | Description | Class CD | Sub Class CD | Year Built | Area |
| | BAS | BASE/MAIN FLOOR | 3 | 0 | 1961 | 1714.0 |
| | AGR | ATTACHED GARAGE | 3 | 0 | 1961 | 525.0 |
| | OCP | OPEN CARPORT | 3 | 0 | 1961 | 200.0 |
| | UTY | STORAGE/UTILITY | 3 | 0 | 1961 | 140.0 |
| | OWP | OPEN WOOD PORCH W/STEPS | 3 | 0 | 1961 | 239.2 |
Sketch
| No sketches available for this property. |
Property Image
Land
| 1 | 14 | SQ (08001-12000) | 0.0000 | 0.00 | 0.00 | 0.00 | 1.00 | $360,000 | $0 |
Roll Value History
| 2026 | N/A | N/A | N/A | N/A | N/A |
| 2025 | $228,698 | $360,000 | $0 | $588,698 | $588,698 |
| 2024 | $227,437 | $330,000 | $0 | $557,437 | $557,437 |
| 2023 | $230,870 | $320,000 | $0 | $550,870 | $550,870 |
| 2022 | $212,154 | $280,000 | $0 | $492,154 | $492,154 |
| 2021 | $187,190 | $220,000 | $0 | $407,190 | $407,190 |
| 2020 | $187,832 | $180,000 | $0 | $367,832 | $367,832 |
| 2019 | $139,306 | $210,000 | $0 | $349,306 | $349,306 |
| 2018 | $139,831 | $200,000 | $0 | $339,831 | $339,831 |
| 2017 | $140,882 | $170,000 | $0 | $310,882 | $310,882 |
| 2016 | $142,985 | $145,000 | $0 | $287,985 | $287,985 |
| 2015 | $145,088 | $120,000 | $0 | $265,088 | $265,088 |
| 2014 | $122,052 | $100,000 | $0 | $222,052 | $222,052 |
| 2013 | $124,194 | $85,000 | $0 | $209,194 | $209,194 |
| 2012 | $126,335 | $122,400 | $0 | $248,735 | $248,735 |
| 2011 | $128,478 | $144,000 | $0 | $272,478 | $272,478 |
| 2010 | $142,580 | $144,000 | $0 | $286,580 | $286,580 |
| 2009 | $149,080 | $180,000 | $0 | $329,080 | $329,080 |
| 2008 | $151,274 | $206,000 | $0 | $357,274 | $357,274 |
| 2007 | $153,467 | $200,000 | $0 | $353,467 | $353,467 |
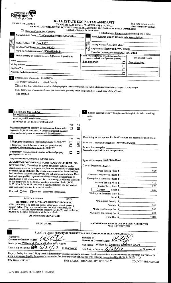
Deed and Sales History
| 1 | 05/31/2017 | QCD | Quit Claim Deed | BLADES TRUSTEE, JACK M | BLADES TRUSTEE, JACK MARTIN | | | $0.00 | 29604 | 4423787 |
| 2 | 12/29/2009 | QCD | Quit Claim Deed | BLADES, DOROTHY P | BLADES TRUSTEE, JACK M | | | $0.00 | 247 | 4268152 |
| 3 | 02/17/2004 | BLA | DNU - Boundary Line Adjustment | BLADES, DOROTHY P | BLADES, DOROTHY P | | | $0.00 | 70169 | 4048069 |
| 4 | 01/20/2004 | ESTSEPPROP | Establish Separate Property | BLADES, DOROTHY P | BLADES, DOROTHY P | | | $0.00 | 40425 | 4090364 |
| 5 | 11/01/1992 | QCD | Quit Claim Deed | BLADES, DOROTHY P | BLADES, DOROTHY P | | | $0.00 | 24479 | 92021939 |
| 6 | 11/01/1992 | QCD | Quit Claim Deed | BLADES, DOROTHY P | BLADES, DOROTHY P | | | $0.00 | 24531 | 92022175 |
| 7 | 04/01/1988 | WD | Warranty Deed | BLADES, EDWARD R | BLADES, DOROTHY P | | | $0.00 | 82231 | 88008262 |
| 8 | 10/01/1983 | WD | Warranty Deed | LUNDELL, F & | BLADES, EDWARD R | | | $48,700.00 | 33028 | 416203 |
| 9 | 11/01/1979 | EXECUTORD | Executor Deed | PENDARVIS, PAUL P | LUNDELL, F & | | | $53,000.00 | 95652 | 362290 |
| 10 | 01/01/1900 | OTHER | Other - Misc. Documents | Unknown | PENDARVIS, PAUL P | | | $0.00 | 0 | 0 |
Payout Agreement
| No payout information available.. |