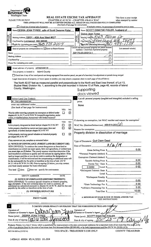
Property
Account |
| Property ID: | 368060 | Abbreviated Legal Description: | SANDY HOOK LOT 8 BLK 5 |
| Geographic ID: | S8075-00-05008-0 | Agent Code: | |
| Type: | Real | | |
| Tax Area: | 710 - APPRAISER-S Whid Schl Dist, outside Langley, improved & 1 acre or less | Land Use Code | 11 |
| Open Space: | N | DFL | N |
| Historic Property: | N | Remodel Property: | N |
| Multi-Family Redevelopment: | N | | |
| Township: | | Section: | |
| Range: | |
Location |
| Address: | 4150 SCATCHET VIEW DR CLINTON, WA 98236 | Mapsco: | |
| Neighborhood: | Cycle 4 | Map ID: | 708 |
| Neighborhood CD: | 4 |
Owner |
| Name: | HOLSTAD, WALLACE A | Owner ID: | 23184 |
| Mailing Address: | KRISTEN J HOLSTAD 4150 SCATCHET VIEW DR CLINTON, WA 98236-8915 | % Ownership: | 100.0000000000% |
| | | Exemptions: | |
Taxes and Assessment Details
Values
| (+) Improvement Homesite Value: | + | $0 | |
| (+) Improvement Non-Homesite Value: | + | $388,091 | |
| (+) Land Homesite Value: | + | $0 | |
| (+) Land Non-Homesite Value: | + | $330,000 | |
| (+) Curr Use (HS): | + | $0 | $0 |
| (+) Curr Use (NHS): | + | $0 | $0 |
| | | -------------------------- | |
| (=) Market Value: | = | $718,091 | |
| (–) Productivity Loss: | – | $0 | |
| | | -------------------------- | |
| (=) Subtotal: | = | $718,091 | |
| (+) Senior Appraised Value: | + | $0 | |
| (+) Non-Senior Appraised Value: | + | $718,091 | |
| | | -------------------------- | |
| (=) Total Appraised Value: | = | $718,091 | |
| (–) Senior Exemption Loss: | – | $0 | |
| (–) Exemption Loss: | – | $0 | |
| | | -------------------------- | |
| (=) Taxable Value: | = | $718,091 | |
Taxing Jurisdiction
| Owner: | HOLSTAD, WALLACE A | | |
| % Ownership: | 100.0000000000% | | |
| Total Value: | $718,091 | | |
| Tax Area: | 710 - APPRAISER-S Whid Schl Dist, outside Langley, improved & 1 acre or less |
| CF | Conservation Futures | 0.0316035091 | $718,091 | $718,091 | $22.69 | | |
| FIRE3 | Fire & Rescue Dist #3 S Whidbey GEN | 1.2004855531 | $718,091 | $718,091 | $862.06 | | |
| HOBOND | Hospital BOND | 0.1910887512 | $718,091 | $718,091 | $137.22 | | |
| HOGEN | Hospital GEN | 0.3902502903 | $718,091 | $718,091 | $280.24 | | |
| CE | County Current Expense | 0.3708482477 | $718,091 | $718,091 | $266.30 | | |
| CR | County Roads | 0.4584763726 | $718,091 | $718,091 | $329.23 | | |
| ISLANDEMS | Hospital GEN (EMS) | 0.5000000000 | $718,091 | $718,091 | $359.05 | | |
| LIB | Library Sno-Isle GEN | 0.3153421757 | $718,091 | $718,091 | $226.44 | | |
| PORTWHID | Port of S Whidbey GEN | 0.1094540357 | $718,091 | $718,091 | $78.60 | | |
| SCH206BOND | School 206 BOND | 0.3161759235 | $718,091 | $718,091 | $227.04 | | |
| SCH206MO | School 206 Enrichment | 0.4547169547 | $718,091 | $718,091 | $326.53 | | |
| ST | State School | 1.3035497053 | $718,091 | $718,091 | $936.07 | | |
| ST2 | State School Part 2 | 0.8169543533 | $718,091 | $718,091 | $586.65 | | |
| SWHIDPRBD | P & R S Whidbey BOND | 0.0152817568 | $718,091 | $718,091 | $10.97 | | |
| SWHIDPRBD2 | P & R S Whidbey BOND2 | 0.0138911264 | $718,091 | $718,091 | $9.98 | | |
| SWHIDPRMT | P & R S Whidbey GEN | 0.2053334452 | $718,091 | $718,091 | $147.45 | | |
| | Total Tax Rate: | 6.6934522006 | | | | | |
| | | | | Taxes w/Current Exemptions: | $4,806.52 | | |
| | | | | Taxes w/o Exemptions: | $4,806.52 | | |
Improvement / Building
| Improvement #1: | RESIDENTIAL | State Code: | Y | 2190.0 sqft | Value: | $388,091 |
| Bathrooms: | 2.5 | Bedrooms: | 2 | | Ceiling: | BEAM PAINTED | Cooling: | HEAT PUMP/CONV/V | | Exterior Wall/Cover: | WOOD SIDING | Floor Covering: | CARPET/VINYL 80-20 | | Floor Structure: | WOOD W/SUBFLOOR | Foundation: | CONCRETE | | Interior Finish: | DRYWALL PAINT | Plumbing Fixture Cnt: | 11 | | Roof Slope: | 4" IN 12" | Roof Structure/Cover: | BEAM ALUMINUM HEAVY |
|
| | Type | Description | Class CD | Sub Class CD | Year Built | Area |
| | BAS | BASE/MAIN FLOOR | 4 | 0 | 1981 | 1568.0 |
| | UB8 | BASEMENT UNFINISHED 8" | 4 | 0 | 1981 | 256.0 |
| | DWN | DOWNSTAIRS LIVING AREA | 4 | 0 | 1981 | 622.0 |
| | BGR | BASEMENT GARAGE | 4 | 0 | 1981 | 660.0 |
| | OWP | OPEN WOOD PORCH W/STEPS | 4 | 0 | 1981 | 500.5 |
| | OWR | OPEN WOOD PORCH W/STEPS/ROOF | 4 | 0 | 1981 | 72.0 |
Sketch
| No sketches available for this property. |
Property Image
Land
| 1 | 13 | SQ (06001-08000) | 0.0000 | 0.00 | 0.00 | 0.00 | 1.00 | $330,000 | $0 |
Roll Value History
| 2026 | N/A | N/A | N/A | N/A | N/A |
| 2025 | $388,091 | $330,000 | $0 | $718,091 | $718,091 |
| 2024 | $378,815 | $330,000 | $0 | $708,815 | $708,815 |
| 2023 | $383,849 | $320,000 | $0 | $703,849 | $703,849 |
| 2022 | $352,141 | $280,000 | $0 | $632,141 | $632,141 |
| 2021 | $314,350 | $220,000 | $0 | $534,350 | $534,350 |
| 2020 | $296,980 | $180,000 | $0 | $476,980 | $476,980 |
| 2019 | $214,693 | $210,000 | $0 | $424,693 | $424,693 |
| 2018 | $215,397 | $200,000 | $0 | $415,397 | $415,397 |
| 2017 | $216,805 | $170,000 | $0 | $386,805 | $386,805 |
| 2016 | $219,622 | $145,000 | $0 | $364,622 | $364,622 |
| 2015 | $222,438 | $140,000 | $0 | $362,438 | $362,438 |
| 2014 | $216,796 | $85,000 | $0 | $301,796 | $301,796 |
| 2013 | $220,865 | $85,000 | $0 | $305,865 | $305,865 |
| 2012 | $223,771 | $129,200 | $0 | $352,971 | $352,971 |
| 2011 | $226,678 | $152,000 | $0 | $378,678 | $378,678 |
| 2010 | $234,993 | $152,000 | $0 | $386,993 | $386,993 |
| 2009 | $245,164 | $190,000 | $0 | $435,164 | $435,164 |
| 2008 | $255,831 | $215,000 | $0 | $470,831 | $470,831 |
| 2007 | $258,865 | $215,000 | $0 | $473,865 | $473,865 |
Deed and Sales History
| 1 | 09/25/2006 | WD | Warranty Deed | EVANOFF, ELAINE | HOLSTAD, WALLACE A | | | $515,000.00 | 64185 | 4182962 |
| 2 | 06/08/1999 | WD | Warranty Deed | PHILLIPS, HARRY C | EVANOFF, ELAINE | | | $222,000.00 | 92229 | 99013854 |
| 3 | 07/01/1980 | TRUSTEED | Trustee's Deed | ANDERSON, DONALD A | PHILLIPS, HARRY C | | | $20,000.00 | 2663 | 372231 |
| 4 | 01/01/1900 | OTHER | Other - Misc. Documents | Unknown | ANDERSON, DONALD A | | | $0.00 | 0 | 0 |
Payout Agreement
| No payout information available.. |