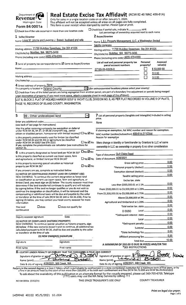
Property
Account |
| Property ID: | 368104 | Abbreviated Legal Description: | SANDY HOOK LOT 12 BLK 5 |
| Geographic ID: | S8075-00-05012-0 | Agent Code: | |
| Type: | Real | | |
| Tax Area: | 710 - APPRAISER-S Whid Schl Dist, outside Langley, improved & 1 acre or less | Land Use Code | 11 |
| Open Space: | N | DFL | N |
| Historic Property: | N | Remodel Property: | N |
| Multi-Family Redevelopment: | N | | |
| Township: | | Section: | |
| Range: | |
Location |
| Address: | 4128 SCATCHET VIEW DR CLINTON, WA 98236 | Mapsco: | |
| Neighborhood: | Cycle 4 | Map ID: | 708 |
| Neighborhood CD: | 4 |
Owner |
| Name: | TUFAROLO, MARCIA | Owner ID: | 181381 |
| Mailing Address: | 4128 SCATCHET VIEW DR CLINTON, WA 98236-8915 | % Ownership: | 100.0000000000% |
| | | Exemptions: | |
Taxes and Assessment Details
Values
| (+) Improvement Homesite Value: | + | $0 | |
| (+) Improvement Non-Homesite Value: | + | $181,249 | |
| (+) Land Homesite Value: | + | $0 | |
| (+) Land Non-Homesite Value: | + | $330,000 | |
| (+) Curr Use (HS): | + | $0 | $0 |
| (+) Curr Use (NHS): | + | $0 | $0 |
| | | -------------------------- | |
| (=) Market Value: | = | $511,249 | |
| (–) Productivity Loss: | – | $0 | |
| | | -------------------------- | |
| (=) Subtotal: | = | $511,249 | |
| (+) Senior Appraised Value: | + | $0 | |
| (+) Non-Senior Appraised Value: | + | $511,249 | |
| | | -------------------------- | |
| (=) Total Appraised Value: | = | $511,249 | |
| (–) Senior Exemption Loss: | – | $0 | |
| (–) Exemption Loss: | – | $0 | |
| | | -------------------------- | |
| (=) Taxable Value: | = | $511,249 | |
Taxing Jurisdiction
| Owner: | TUFAROLO, MARCIA | | |
| % Ownership: | 100.0000000000% | | |
| Total Value: | $511,249 | | |
| Tax Area: | 710 - APPRAISER-S Whid Schl Dist, outside Langley, improved & 1 acre or less |
| CF | Conservation Futures | 0.0316035091 | $511,249 | $511,249 | $16.16 | | |
| FIRE3 | Fire & Rescue Dist #3 S Whidbey GEN | 1.2004855531 | $511,249 | $511,249 | $613.75 | | |
| HOBOND | Hospital BOND | 0.1910887512 | $511,249 | $511,249 | $97.69 | | |
| HOGEN | Hospital GEN | 0.3902502903 | $511,249 | $511,249 | $199.52 | | |
| CE | County Current Expense | 0.3708482477 | $511,249 | $511,249 | $189.60 | | |
| CR | County Roads | 0.4584763726 | $511,249 | $511,249 | $234.40 | | |
| ISLANDEMS | Hospital GEN (EMS) | 0.5000000000 | $511,249 | $511,249 | $255.62 | | |
| LIB | Library Sno-Isle GEN | 0.3153421757 | $511,249 | $511,249 | $161.22 | | |
| PORTWHID | Port of S Whidbey GEN | 0.1094540357 | $511,249 | $511,249 | $55.96 | | |
| SCH206BOND | School 206 BOND | 0.3161759235 | $511,249 | $511,249 | $161.64 | | |
| SCH206MO | School 206 Enrichment | 0.4547169547 | $511,249 | $511,249 | $232.47 | | |
| ST | State School | 1.3035497053 | $511,249 | $511,249 | $666.44 | | |
| ST2 | State School Part 2 | 0.8169543533 | $511,249 | $511,249 | $417.67 | | |
| SWHIDPRBD | P & R S Whidbey BOND | 0.0152817568 | $511,249 | $511,249 | $7.81 | | |
| SWHIDPRBD2 | P & R S Whidbey BOND2 | 0.0138911264 | $511,249 | $511,249 | $7.10 | | |
| SWHIDPRMT | P & R S Whidbey GEN | 0.2053334452 | $511,249 | $511,249 | $104.98 | | |
| | Total Tax Rate: | 6.6934522006 | | | | | |
| | | | | Taxes w/Current Exemptions: | $3,422.03 | | |
| | | | | Taxes w/o Exemptions: | $3,422.03 | | |
Improvement / Building
| Improvement #1: | RESIDENTIAL | State Code: | Y | 856.0 sqft | Value: | $181,249 |
| Bathrooms: | 1 | Bedrooms: | 2 | | Ceiling: | BEAM PAINTED | Exterior Wall/Cover: | LOG TO 10" | | Floor Covering: | CARPET/VINYL 80-20 | Floor Structure: | WOOD W/SUBFLOOR | | Foundation: | CONCRETE | Heating: | BASEBOARD ELECTRIC | | Interior Finish: | DRYWALL PAINT | Plumbing Fixture Cnt: | 6 | | Roof Slope: | 4" IN 12" | Roof Structure/Cover: | BEAM ASPHALT |
|
| | Type | Description | Class CD | Sub Class CD | Year Built | Area |
| | BAS | BASE/MAIN FLOOR | 3 | 0 | 1970 | 856.0 |
| | OWP | OPEN WOOD PORCH W/STEPS | 3 | 0 | 1970 | 799.0 |
| | OWP | OPEN WOOD PORCH W/STEPS | 3 | 0 | 1970 | 100.0 |
| | DGR | DETACHED GARAGE | 3 | 0 | 1970 | 294.0 |
| | UTY | STORAGE/UTILITY | 3 | 0 | 1970 | 126.0 |
Sketch
| No sketches available for this property. |
Property Image
Land
| 1 | 13 | SQ (06001-08000) | 0.0000 | 0.00 | 0.00 | 0.00 | 1.00 | $330,000 | $0 |
Roll Value History
| 2026 | N/A | N/A | N/A | N/A | N/A |
| 2025 | $181,249 | $330,000 | $0 | $511,249 | $511,249 |
| 2024 | $185,289 | $330,000 | $0 | $515,289 | $515,289 |
| 2023 | $188,044 | $320,000 | $0 | $508,044 | $508,044 |
| 2022 | $172,772 | $280,000 | $0 | $452,772 | $452,772 |
| 2021 | $152,405 | $220,000 | $0 | $372,405 | $372,405 |
| 2020 | $117,149 | $140,000 | $0 | $257,149 | $257,149 |
| 2019 | $82,345 | $180,000 | $0 | $262,345 | $262,345 |
| 2018 | $82,641 | $170,000 | $0 | $252,641 | $252,641 |
| 2017 | $83,236 | $150,000 | $0 | $233,236 | $233,236 |
| 2016 | $84,424 | $130,000 | $0 | $214,424 | $214,424 |
| 2015 | $85,613 | $120,000 | $0 | $205,613 | $205,613 |
| 2014 | $74,197 | $125,800 | $0 | $199,997 | $199,997 |
| 2013 | $76,169 | $125,800 | $0 | $201,969 | $201,969 |
| 2012 | $77,321 | $125,800 | $0 | $203,121 | $203,121 |
| 2011 | $78,473 | $148,000 | $0 | $226,473 | $226,473 |
| 2010 | $82,926 | $148,000 | $0 | $230,926 | $230,926 |
| 2009 | $86,474 | $185,000 | $0 | $271,474 | $271,474 |
| 2008 | $87,754 | $215,000 | $0 | $302,754 | $302,754 |
| 2007 | $87,901 | $215,000 | $0 | $302,901 | $302,901 |
Deed and Sales History
| 1 | 08/12/1999 | WD | Warranty Deed | SAUTER, MICHAEL J/CAROL G | TUFAROLO, MARCIA | | | $125,000.00 | 93444 | 99019809 |
| 2 | 04/23/1998 | WD | Warranty Deed | OWEN, MARGARET J | SAUTER, MICHAEL J/CAROL G | | | $119,000.00 | 81625 | 98008658 |
| 3 | 09/01/1983 | WD | Warranty Deed | BRADLEY, OSCAR | OWEN, MARGARET J | | | $80,000.00 | 32895 | 415742 |
| 4 | 01/01/1900 | OTHER | Other - Misc. Documents | Unknown | BRADLEY, OSCAR | | | $0.00 | 0 | 0 |
Payout Agreement
| No payout information available.. |