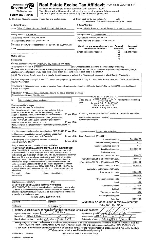
Property
Account |
| Property ID: | 368140 | Abbreviated Legal Description: | SANDY HOOK LOTS 15 & 16 BLK 5 |
| Geographic ID: | S8075-00-05016-0 | Agent Code: | |
| Type: | Real | | |
| Tax Area: | 710 - APPRAISER-S Whid Schl Dist, outside Langley, improved & 1 acre or less | Land Use Code | 11 |
| Open Space: | N | DFL | N |
| Historic Property: | N | Remodel Property: | N |
| Multi-Family Redevelopment: | N | | |
| Township: | | Section: | |
| Range: | |
Location |
| Address: | 4104 SCATCHET VIEW DR CLINTON, WA 98236 | Mapsco: | |
| Neighborhood: | Cycle 4 | Map ID: | 708 |
| Neighborhood CD: | 4 |
Owner |
| Name: | YARDY, KATHLEEN F | Owner ID: | 314406 |
| Mailing Address: | 4104 SCATCHET VIEW DR CLINTON, WA 98236 | % Ownership: | 100.0000000000% |
| | | Exemptions: | |
Taxes and Assessment Details
Values
| (+) Improvement Homesite Value: | + | $0 | |
| (+) Improvement Non-Homesite Value: | + | $394,278 | |
| (+) Land Homesite Value: | + | $0 | |
| (+) Land Non-Homesite Value: | + | $360,000 | |
| (+) Curr Use (HS): | + | $0 | $0 |
| (+) Curr Use (NHS): | + | $0 | $0 |
| | | -------------------------- | |
| (=) Market Value: | = | $754,278 | |
| (–) Productivity Loss: | – | $0 | |
| | | -------------------------- | |
| (=) Subtotal: | = | $754,278 | |
| (+) Senior Appraised Value: | + | $0 | |
| (+) Non-Senior Appraised Value: | + | $754,278 | |
| | | -------------------------- | |
| (=) Total Appraised Value: | = | $754,278 | |
| (–) Senior Exemption Loss: | – | $0 | |
| (–) Exemption Loss: | – | $0 | |
| | | -------------------------- | |
| (=) Taxable Value: | = | $754,278 | |
Taxing Jurisdiction
| Owner: | YARDY, KATHLEEN F | | |
| % Ownership: | 100.0000000000% | | |
| Total Value: | $754,278 | | |
| Tax Area: | 710 - APPRAISER-S Whid Schl Dist, outside Langley, improved & 1 acre or less |
| CF | Conservation Futures | 0.0316035091 | $754,278 | $754,278 | $23.84 | | |
| FIRE3 | Fire & Rescue Dist #3 S Whidbey GEN | 1.2004855531 | $754,278 | $754,278 | $905.50 | | |
| HOBOND | Hospital BOND | 0.1910887512 | $754,278 | $754,278 | $144.13 | | |
| HOGEN | Hospital GEN | 0.3902502903 | $754,278 | $754,278 | $294.36 | | |
| CE | County Current Expense | 0.3708482477 | $754,278 | $754,278 | $279.72 | | |
| CR | County Roads | 0.4584763726 | $754,278 | $754,278 | $345.82 | | |
| ISLANDEMS | Hospital GEN (EMS) | 0.5000000000 | $754,278 | $754,278 | $377.14 | | |
| LIB | Library Sno-Isle GEN | 0.3153421757 | $754,278 | $754,278 | $237.86 | | |
| PORTWHID | Port of S Whidbey GEN | 0.1094540357 | $754,278 | $754,278 | $82.56 | | |
| SCH206BOND | School 206 BOND | 0.3161759235 | $754,278 | $754,278 | $238.48 | | |
| SCH206MO | School 206 Enrichment | 0.4547169547 | $754,278 | $754,278 | $342.98 | | |
| ST | State School | 1.3035497053 | $754,278 | $754,278 | $983.24 | | |
| ST2 | State School Part 2 | 0.8169543533 | $754,278 | $754,278 | $616.21 | | |
| SWHIDPRBD | P & R S Whidbey BOND | 0.0152817568 | $754,278 | $754,278 | $11.53 | | |
| SWHIDPRBD2 | P & R S Whidbey BOND2 | 0.0138911264 | $754,278 | $754,278 | $10.48 | | |
| SWHIDPRMT | P & R S Whidbey GEN | 0.2053334452 | $754,278 | $754,278 | $154.88 | | |
| | Total Tax Rate: | 6.6934522006 | | | | | |
| | | | | Taxes w/Current Exemptions: | $5,048.73 | | |
| | | | | Taxes w/o Exemptions: | $5,048.73 | | |
Improvement / Building
| Improvement #1: | RESIDENTIAL | State Code: | Y | 1878.2 sqft | Value: | $394,278 |
| Bathrooms: | 2 | Bedrooms: | 2 | | Ceiling: | DRYWALL PAINTED | Cooling: | HEAT PUMP/CONV/V | | Exterior Wall/Cover: | CEMENT FIBER | Floor Covering: | HARDWOOD/CARP 80-20 | | Floor Structure: | WOOD W/SUBFLOOR | Foundation: | CONCRETE | | Interior Finish: | DRYWALL PAINT | Plumbing Fixture Cnt: | 9 | | Roof Slope: | 3" IN 12" | Roof Structure/Cover: | CJ ASPHALT |
|
| | Type | Description | Class CD | Sub Class CD | Year Built | Area |
| | BAS | BASE/MAIN FLOOR | 3 | 0 | 1995 | 1878.2 |
| | DGR | DETACHED GARAGE | 3 | 0 | 1995 | 609.0 |
| | OWP | OPEN WOOD PORCH W/STEPS | 3 | 0 | 1995 | 561.8 |
| | OWP | OPEN WOOD PORCH W/STEPS | 3 | 0 | 1995 | 80.9 |
| | OP4 | OPEN PORCH W/CEILING-ROOF | 3 | 0 | 1995 | 40.0 |
| | UTY | STORAGE/UTILITY | 3 | 0 | 1995 | 936.0 |
Sketch
| No sketches available for this property. |
Property Image
Land
| 1 | 15 | SQ (12001-21780) | 0.4500 | 19602.00 | 0.00 | 0.00 | 1.00 | $360,000 | $0 |
Roll Value History
| 2026 | N/A | N/A | N/A | N/A | N/A |
| 2025 | $394,278 | $360,000 | $0 | $754,278 | $754,278 |
| 2024 | $399,014 | $330,000 | $0 | $729,014 | $729,014 |
| 2023 | $403,749 | $320,000 | $0 | $723,749 | $723,749 |
| 2022 | $369,893 | $280,000 | $0 | $649,893 | $649,893 |
| 2021 | $325,377 | $220,000 | $0 | $545,377 | $545,377 |
| 2020 | $305,288 | $180,000 | $0 | $485,288 | $485,288 |
| 2019 | $210,369 | $210,000 | $0 | $420,369 | $420,369 |
| 2018 | $210,972 | $215,000 | $0 | $425,972 | $425,972 |
| 2017 | $212,180 | $170,000 | $0 | $382,180 | $382,180 |
| 2016 | $214,592 | $145,000 | $0 | $359,592 | $359,592 |
| 2015 | $217,007 | $140,000 | $0 | $357,007 | $357,007 |
| 2014 | $181,274 | $85,000 | $0 | $266,274 | $266,274 |
| 2013 | $187,183 | $85,000 | $0 | $272,183 | $272,183 |
| 2012 | $189,433 | $129,200 | $0 | $318,633 | $318,633 |
| 2011 | $191,682 | $152,000 | $0 | $343,682 | $343,682 |
| 2010 | $200,978 | $152,000 | $0 | $352,978 | $352,978 |
| 2009 | $209,901 | $190,000 | $0 | $399,901 | $399,901 |
| 2008 | $216,639 | $255,000 | $0 | $471,639 | $471,639 |
| 2007 | $219,598 | $250,000 | $0 | $469,598 | $469,598 |
Deed and Sales History
| 1 | 10/25/2024 | QCD | Quit Claim Deed | ESTATE OF CRAIG A YARDY | YARDY, KATHLEEN F | | | $0.00 | 61714 | 4578824 |
| 2 | 05/19/2010 | WD | Warranty Deed | MIKKELSEN, KAARE & | YARDY, CRAIG A | | | $411,811.00 | 1210 | 4274197 |
| 3 | 10/01/1993 | WD | Warranty Deed | ROSS, JOHN W | MIKKELSEN, KAARE & | | | $60,000.00 | 34186 | 93021865 |
| 4 | 11/01/1988 | WD | Warranty Deed | PETERSON, GEORGE G | ROSS, JOHN W | | | $29,900.00 | 83840 | 88014356 |
| 5 | 01/01/1900 | OTHER | Other - Misc. Documents | Unknown | PETERSON, GEORGE G | | | $0.00 | 0 | 0 |
Payout Agreement
| No payout information available.. |