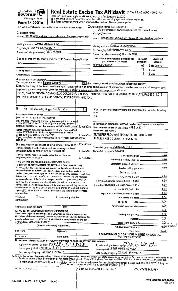
Property
Account |
| Property ID: | 368444 | Abbreviated Legal Description: | SANDY HOOK LOT 4 BLK 8 |
| Geographic ID: | S8075-00-08004-0 | Agent Code: | |
| Type: | Real | | |
| Tax Area: | 710 - APPRAISER-S Whid Schl Dist, outside Langley, improved & 1 acre or less | Land Use Code | 11 |
| Open Space: | N | DFL | N |
| Historic Property: | N | Remodel Property: | N |
| Multi-Family Redevelopment: | N | | |
| Township: | | Section: | |
| Range: | |
Location |
| Address: | 8122 AUTUMN LN CLINTON, WA 98236 | Mapsco: | |
| Neighborhood: | Cycle 4 | Map ID: | 710 |
| Neighborhood CD: | 4 |
Owner |
| Name: | ROSS, WILLIAM S | Owner ID: | 268103 |
| Mailing Address: | 8122 AUTUMN LN CLINTON, WA 98236 | % Ownership: | 100.0000000000% |
| | | Exemptions: | |
Taxes and Assessment Details
Values
| (+) Improvement Homesite Value: | + | $0 | |
| (+) Improvement Non-Homesite Value: | + | $347,469 | |
| (+) Land Homesite Value: | + | $0 | |
| (+) Land Non-Homesite Value: | + | $425,000 | |
| (+) Curr Use (HS): | + | $0 | $0 |
| (+) Curr Use (NHS): | + | $0 | $0 |
| | | -------------------------- | |
| (=) Market Value: | = | $772,469 | |
| (–) Productivity Loss: | – | $0 | |
| | | -------------------------- | |
| (=) Subtotal: | = | $772,469 | |
| (+) Senior Appraised Value: | + | $0 | |
| (+) Non-Senior Appraised Value: | + | $772,469 | |
| | | -------------------------- | |
| (=) Total Appraised Value: | = | $772,469 | |
| (–) Senior Exemption Loss: | – | $0 | |
| (–) Exemption Loss: | – | $0 | |
| | | -------------------------- | |
| (=) Taxable Value: | = | $772,469 | |
Taxing Jurisdiction
| Owner: | ROSS, WILLIAM S | | |
| % Ownership: | 100.0000000000% | | |
| Total Value: | $772,469 | | |
| Tax Area: | 710 - APPRAISER-S Whid Schl Dist, outside Langley, improved & 1 acre or less |
| CF | Conservation Futures | 0.0316035091 | $772,469 | $772,469 | $24.41 | | |
| FIRE3 | Fire & Rescue Dist #3 S Whidbey GEN | 1.2004855531 | $772,469 | $772,469 | $927.34 | | |
| HOBOND | Hospital BOND | 0.1910887512 | $772,469 | $772,469 | $147.61 | | |
| HOGEN | Hospital GEN | 0.3902502903 | $772,469 | $772,469 | $301.46 | | |
| CE | County Current Expense | 0.3708482477 | $772,469 | $772,469 | $286.47 | | |
| CR | County Roads | 0.4584763726 | $772,469 | $772,469 | $354.16 | | |
| ISLANDEMS | Hospital GEN (EMS) | 0.5000000000 | $772,469 | $772,469 | $386.23 | | |
| LIB | Library Sno-Isle GEN | 0.3153421757 | $772,469 | $772,469 | $243.59 | | |
| PORTWHID | Port of S Whidbey GEN | 0.1094540357 | $772,469 | $772,469 | $84.55 | | |
| SCH206BOND | School 206 BOND | 0.3161759235 | $772,469 | $772,469 | $244.24 | | |
| SCH206MO | School 206 Enrichment | 0.4547169547 | $772,469 | $772,469 | $351.25 | | |
| ST | State School | 1.3035497053 | $772,469 | $772,469 | $1,006.95 | | |
| ST2 | State School Part 2 | 0.8169543533 | $772,469 | $772,469 | $631.07 | | |
| SWHIDPRBD | P & R S Whidbey BOND | 0.0152817568 | $772,469 | $772,469 | $11.80 | | |
| SWHIDPRBD2 | P & R S Whidbey BOND2 | 0.0138911264 | $772,469 | $772,469 | $10.73 | | |
| SWHIDPRMT | P & R S Whidbey GEN | 0.2053334452 | $772,469 | $772,469 | $158.61 | | |
| | Total Tax Rate: | 6.6934522006 | | | | | |
| | | | | Taxes w/Current Exemptions: | $5,170.47 | | |
| | | | | Taxes w/o Exemptions: | $5,170.47 | | |
Improvement / Building
| Improvement #1: | RESIDENTIAL | State Code: | Y | 1940.0 sqft | Value: | $347,469 |
| Bathrooms: | 2.5 | Bedrooms: | 3 | | Ceiling: | BEAM PAINTED | Cooling: | HEAT PUMP/CONV/V | | Exterior Wall/Cover: | PLY/HARDBOARD T-111 | Floor Covering: | HARDWOOD 100% | | Floor Structure: | WOOD W/SUBFLOOR | Foundation: | CONCRETE | | Interior Finish: | DRYWALL PAINT | Plumbing Fixture Cnt: | 12 | | Roof Slope: | 4" IN 12" | Roof Structure/Cover: | CJ ALUMINIUM HEAVY |
|
| | Type | Description | Class CD | Sub Class CD | Year Built | Area |
| | BAS | BASE/MAIN FLOOR | 3 | 0 | 1978 | 960.0 |
| | OCP | OPEN CARPORT | 3 | 0 | 1978 | 528.0 |
| | UTY | STORAGE/UTILITY | 3 | 0 | 1978 | 300.0 |
| | OWP | OPEN WOOD PORCH W/STEPS | 3 | 0 | 1978 | 256.0 |
| | LOF | LOFT | 3 | 0 | 1978 | 320.0 |
| | DWN | DOWNSTAIRS LIVING AREA | 3 | 0 | 1978 | 660.0 |
| | oPRS | PIER RESDK | 3 | 0 | 1978 | 640.0 |
| | oRAF | RAMP/FLOAT | 3 | 0 | 1978 | 0.0 |
| | OWP | OPEN WOOD PORCH W/STEPS | 3 | 0 | 1978 | 264.0 |
| | oFLT | FLOAT/DECK/PILING | 3 | 0 | 1978 | 0.0 |
Sketch
Property Image
Land
| 1 | LB | LOW BANK | 0.0000 | 0.00 | 60.00 | 0.00 | 1.00 | $425,000 | $0 |
Roll Value History
| 2026 | N/A | N/A | N/A | N/A | N/A |
| 2025 | $347,469 | $425,000 | $0 | $772,469 | $772,469 |
| 2024 | $346,375 | $375,000 | $0 | $721,375 | $721,375 |
| 2023 | $350,303 | $375,000 | $0 | $725,303 | $725,303 |
| 2022 | $324,075 | $300,000 | $0 | $624,075 | $624,075 |
| 2021 | $289,473 | $240,000 | $0 | $529,473 | $529,473 |
| 2020 | $238,083 | $240,000 | $0 | $478,083 | $478,083 |
| 2019 | $181,988 | $275,000 | $0 | $456,988 | $456,988 |
| 2018 | $182,531 | $200,000 | $0 | $382,531 | $382,531 |
| 2017 | $183,617 | $175,000 | $0 | $358,617 | $358,617 |
| 2016 | $185,789 | $175,000 | $0 | $360,789 | $360,789 |
| 2015 | $185,781 | $175,000 | $0 | $360,781 | $360,781 |
| 2014 | $140,219 | $125,000 | $0 | $265,219 | $265,219 |
| 2013 | $143,657 | $125,000 | $0 | $268,657 | $268,657 |
| 2012 | $145,454 | $185,400 | $0 | $330,854 | $330,854 |
| 2011 | $131,091 | $185,400 | $0 | $316,491 | $316,491 |
| 2010 | $140,426 | $185,400 | $0 | $325,826 | $325,826 |
| 2009 | $143,738 | $247,200 | $0 | $390,938 | $390,938 |
| 2008 | $146,245 | $426,420 | $0 | $572,665 | $572,665 |
| 2007 | $148,219 | $342,990 | $0 | $491,209 | $491,209 |
Deed and Sales History
| 1 | 10/07/2014 | WD | Warranty Deed | METHENY, DAVID M | ROSS, WILLIAM S | | | $349,900.00 | 17245 | 4367219 |
| 2 | 06/01/1989 | WD | Warranty Deed | ERICKSON, BRUCE E | METHENY, DAVID M | | | $129,500.00 | 92256 | 89007714 |
| 3 | 01/01/1900 | OTHER | Other - Misc. Documents | Unknown | ERICKSON, BRUCE E | | | $0.00 | 0 | 0 |
Payout Agreement
| No payout information available.. |