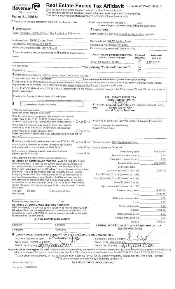
Property
Account |
| Property ID: | 368514 | Abbreviated Legal Description: | SANDY HOOK LOT 11 BLK 8 |
| Geographic ID: | S8075-00-08011-0 | Agent Code: | |
| Type: | Real | | |
| Tax Area: | 710 - APPRAISER-S Whid Schl Dist, outside Langley, improved & 1 acre or less | Land Use Code | 11 |
| Open Space: | N | DFL | N |
| Historic Property: | N | Remodel Property: | N |
| Multi-Family Redevelopment: | N | | |
| Township: | | Section: | |
| Range: | |
Location |
| Address: | 8148 AUTUMN LN CLINTON, WA 98236 | Mapsco: | |
| Neighborhood: | Cycle 4 | Map ID: | 710 |
| Neighborhood CD: | 4 |
Owner |
| Name: | SIMMONS TTEE, ELKE H | Owner ID: | 308205 |
| Mailing Address: | DALE WOODARD TTEE 562 ADAMS RD FREELAND, WA 98249 | % Ownership: | 100.0000000000% |
| | | Exemptions: | |
Taxes and Assessment Details
Values
| (+) Improvement Homesite Value: | + | $0 | |
| (+) Improvement Non-Homesite Value: | + | $74,000 | |
| (+) Land Homesite Value: | + | $0 | |
| (+) Land Non-Homesite Value: | + | $225,000 | |
| (+) Curr Use (HS): | + | $0 | $0 |
| (+) Curr Use (NHS): | + | $0 | $0 |
| | | -------------------------- | |
| (=) Market Value: | = | $299,000 | |
| (–) Productivity Loss: | – | $0 | |
| | | -------------------------- | |
| (=) Subtotal: | = | $299,000 | |
| (+) Senior Appraised Value: | + | $0 | |
| (+) Non-Senior Appraised Value: | + | $299,000 | |
| | | -------------------------- | |
| (=) Total Appraised Value: | = | $299,000 | |
| (–) Senior Exemption Loss: | – | $0 | |
| (–) Exemption Loss: | – | $0 | |
| | | -------------------------- | |
| (=) Taxable Value: | = | $299,000 | |
Taxing Jurisdiction
| Owner: | SIMMONS TTEE, ELKE H | | |
| % Ownership: | 100.0000000000% | | |
| Total Value: | $299,000 | | |
| Tax Area: | 710 - APPRAISER-S Whid Schl Dist, outside Langley, improved & 1 acre or less |
| CF | Conservation Futures | 0.0316035091 | $299,000 | $299,000 | $9.45 | | |
| FIRE3 | Fire & Rescue Dist #3 S Whidbey GEN | 1.2004855531 | $299,000 | $299,000 | $358.95 | | |
| HOBOND | Hospital BOND | 0.1910887512 | $299,000 | $299,000 | $57.14 | | |
| HOGEN | Hospital GEN | 0.3902502903 | $299,000 | $299,000 | $116.68 | | |
| CE | County Current Expense | 0.3708482477 | $299,000 | $299,000 | $110.88 | | |
| CR | County Roads | 0.4584763726 | $299,000 | $299,000 | $137.08 | | |
| ISLANDEMS | Hospital GEN (EMS) | 0.5000000000 | $299,000 | $299,000 | $149.50 | | |
| LIB | Library Sno-Isle GEN | 0.3153421757 | $299,000 | $299,000 | $94.29 | | |
| PORTWHID | Port of S Whidbey GEN | 0.1094540357 | $299,000 | $299,000 | $32.73 | | |
| SCH206BOND | School 206 BOND | 0.3161759235 | $299,000 | $299,000 | $94.54 | | |
| SCH206MO | School 206 Enrichment | 0.4547169547 | $299,000 | $299,000 | $135.96 | | |
| ST | State School | 1.3035497053 | $299,000 | $299,000 | $389.76 | | |
| ST2 | State School Part 2 | 0.8169543533 | $299,000 | $299,000 | $244.27 | | |
| SWHIDPRBD | P & R S Whidbey BOND | 0.0152817568 | $299,000 | $299,000 | $4.57 | | |
| SWHIDPRBD2 | P & R S Whidbey BOND2 | 0.0138911264 | $299,000 | $299,000 | $4.15 | | |
| SWHIDPRMT | P & R S Whidbey GEN | 0.2053334452 | $299,000 | $299,000 | $61.39 | | |
| | Total Tax Rate: | 6.6934522006 | | | | | |
| | | | | Taxes w/Current Exemptions: | $2,001.34 | | |
| | | | | Taxes w/o Exemptions: | $2,001.34 | | |
Improvement / Building
| Improvement #1: | RESIDENTIAL | State Code: | Y | 0.0 sqft | Value: | $74,000 |
| | Type | Description | Class CD | Sub Class CD | Year Built | Area |
| | oPRS | PIER RESDK | 1 | 0 | 1900 | 288.0 |
| | oRAF | RAMP/FLOAT | 1 | 0 | 1900 | 105.0 |
| | oFLT | FLOAT/DECK/PILING | 1 | 0 | 1900 | 512.0 |
| | OCP | OPEN CARPORT | 1 | 0 | 1900 | 1152.0 |
Sketch
| No sketches available for this property. |
Property Image
Land
| 1 | LB | LOW BANK | 0.0000 | 0.00 | 61.00 | 0.00 | 1.00 | $225,000 | $0 |
Roll Value History
| 2026 | N/A | N/A | N/A | N/A | N/A |
| 2025 | $74,000 | $225,000 | $0 | $299,000 | $299,000 |
| 2024 | $74,000 | $200,000 | $0 | $274,000 | $274,000 |
| 2023 | $74,000 | $200,000 | $0 | $274,000 | $274,000 |
| 2022 | $74,000 | $180,000 | $0 | $254,000 | $254,000 |
| 2021 | $74,000 | $175,000 | $0 | $249,000 | $249,000 |
| 2020 | $35,825 | $170,000 | $0 | $205,825 | $205,825 |
| 2019 | $35,825 | $175,000 | $0 | $210,825 | $210,825 |
| 2018 | $35,825 | $175,000 | $0 | $210,825 | $210,825 |
| 2017 | $35,825 | $175,000 | $0 | $210,825 | $210,825 |
| 2016 | $35,825 | $175,000 | $0 | $210,825 | $210,825 |
| 2015 | $35,825 | $175,000 | $0 | $210,825 | $210,825 |
| 2014 | $35,825 | $125,000 | $0 | $160,825 | $160,825 |
| 2013 | $35,825 | $125,000 | $0 | $160,825 | $160,825 |
| 2012 | $35,825 | $188,490 | $0 | $224,315 | $224,315 |
| 2011 | $35,825 | $188,490 | $0 | $224,315 | $224,315 |
| 2010 | $35,825 | $188,490 | $0 | $224,315 | $224,315 |
| 2009 | $36,205 | $251,320 | $0 | $287,525 | $287,525 |
| 2008 | $37,716 | $311,009 | $0 | $348,725 | $348,725 |
| 2007 | $2,499 | $247,440 | $0 | $249,939 | $249,939 |
Deed and Sales History
| 1 | 04/04/2023 | PRD | Personal Representatives Deed | SIMMONS, PHILIP M | SIMMONS TTEE, ELKE H | | | $0.00 | 56316 | 4558451 |
| 2 | 02/02/2006 | WD | Warranty Deed | LEIDHOLM, RALPH A | SIMMONS, PHILIP M | | | $127,500.00 | 60533 | 4161881 |
| 3 | 01/01/1900 | OTHER | Other - Misc. Documents | Unknown | LEIDHOLM, RALPH A | | | $0.00 | 0 | 0 |
Payout Agreement
| No payout information available.. |