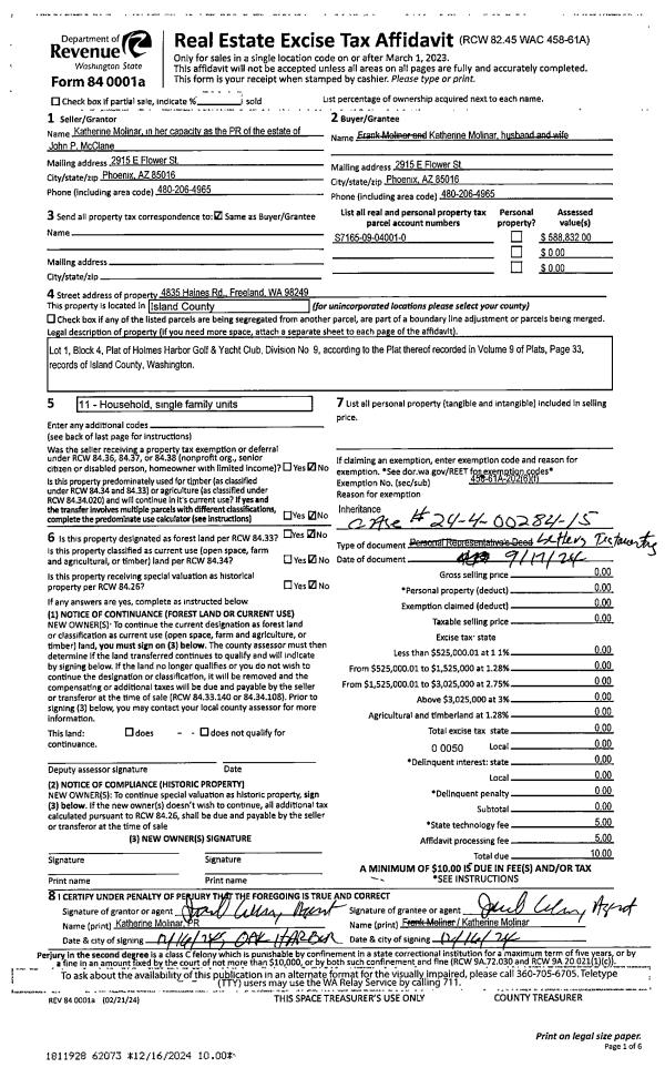
Property
Account |
| Property ID: | 368667 | Abbreviated Legal Description: | SANDY HOOK LOT 26 BLK 8 |
| Geographic ID: | S8075-00-08026-0 | Agent Code: | |
| Type: | Real | | |
| Tax Area: | 710 - APPRAISER-S Whid Schl Dist, outside Langley, improved & 1 acre or less | Land Use Code | 11 |
| Open Space: | N | DFL | N |
| Historic Property: | N | Remodel Property: | N |
| Multi-Family Redevelopment: | N | | |
| Township: | | Section: | |
| Range: | |
Location |
| Address: | 8273 SANDY HOOK DR CLINTON, WA 98236 | Mapsco: | |
| Neighborhood: | Cycle 4 | Map ID: | 708 |
| Neighborhood CD: | 4 |
Owner |
| Name: | O'BRIEN TTEE, DIANNE D | Owner ID: | 312765 |
| Mailing Address: | 8171 SANDY HOOD DR CLINTON, WA 98236 | % Ownership: | 100.0000000000% |
| | | Exemptions: | |
Taxes and Assessment Details
Values
| (+) Improvement Homesite Value: | + | $0 | |
| (+) Improvement Non-Homesite Value: | + | $417,721 | |
| (+) Land Homesite Value: | + | $0 | |
| (+) Land Non-Homesite Value: | + | $475,000 | |
| (+) Curr Use (HS): | + | $0 | $0 |
| (+) Curr Use (NHS): | + | $0 | $0 |
| | | -------------------------- | |
| (=) Market Value: | = | $892,721 | |
| (–) Productivity Loss: | – | $0 | |
| | | -------------------------- | |
| (=) Subtotal: | = | $892,721 | |
| (+) Senior Appraised Value: | + | $0 | |
| (+) Non-Senior Appraised Value: | + | $892,721 | |
| | | -------------------------- | |
| (=) Total Appraised Value: | = | $892,721 | |
| (–) Senior Exemption Loss: | – | $0 | |
| (–) Exemption Loss: | – | $0 | |
| | | -------------------------- | |
| (=) Taxable Value: | = | $892,721 | |
Taxing Jurisdiction
| Owner: | O'BRIEN TTEE, DIANNE D | | |
| % Ownership: | 100.0000000000% | | |
| Total Value: | $892,721 | | |
| Tax Area: | 710 - APPRAISER-S Whid Schl Dist, outside Langley, improved & 1 acre or less |
| CF | Conservation Futures | 0.0316035091 | $892,721 | $892,721 | $28.21 | | |
| FIRE3 | Fire & Rescue Dist #3 S Whidbey GEN | 1.2004855531 | $892,721 | $892,721 | $1,071.70 | | |
| HOBOND | Hospital BOND | 0.1910887512 | $892,721 | $892,721 | $170.59 | | |
| HOGEN | Hospital GEN | 0.3902502903 | $892,721 | $892,721 | $348.38 | | |
| CE | County Current Expense | 0.3708482477 | $892,721 | $892,721 | $331.06 | | |
| CR | County Roads | 0.4584763726 | $892,721 | $892,721 | $409.29 | | |
| ISLANDEMS | Hospital GEN (EMS) | 0.5000000000 | $892,721 | $892,721 | $446.36 | | |
| LIB | Library Sno-Isle GEN | 0.3153421757 | $892,721 | $892,721 | $281.51 | | |
| PORTWHID | Port of S Whidbey GEN | 0.1094540357 | $892,721 | $892,721 | $97.71 | | |
| SCH206BOND | School 206 BOND | 0.3161759235 | $892,721 | $892,721 | $282.26 | | |
| SCH206MO | School 206 Enrichment | 0.4547169547 | $892,721 | $892,721 | $405.94 | | |
| ST | State School | 1.3035497053 | $892,721 | $892,721 | $1,163.71 | | |
| ST2 | State School Part 2 | 0.8169543533 | $892,721 | $892,721 | $729.31 | | |
| SWHIDPRBD | P & R S Whidbey BOND | 0.0152817568 | $892,721 | $892,721 | $13.64 | | |
| SWHIDPRBD2 | P & R S Whidbey BOND2 | 0.0138911264 | $892,721 | $892,721 | $12.40 | | |
| SWHIDPRMT | P & R S Whidbey GEN | 0.2053334452 | $892,721 | $892,721 | $183.31 | | |
| | Total Tax Rate: | 6.6934522006 | | | | | |
| | | | | Taxes w/Current Exemptions: | $5,975.38 | | |
| | | | | Taxes w/o Exemptions: | $5,975.38 | | |
Improvement / Building
| Improvement #1: | RESIDENTIAL | State Code: | Y | 2160.0 sqft | Value: | $417,721 |
| Bathrooms: | 2 | Bedrooms: | 1 | | Ceiling: | BEAM PAINTED | Exterior Wall/Cover: | SHINGLE | | Floor Covering: | HARDWOOD/CARP 20-80 | Floor Structure: | WOOD W/SUBFLOOR | | Foundation: | CONCRETE | Heating: | FHA ELECTRIC | | Interior Finish: | DRYWALL PAINT | Plumbing Fixture Cnt: | 10 | | Roof Slope: | 3" IN 12" | Roof Structure/Cover: | BEAM ALUMINUM HEAVY |
|
| | Type | Description | Class CD | Sub Class CD | Year Built | Area |
| | BAS | BASE/MAIN FLOOR | 4 | 0 | 1996 | 1080.0 |
| | OWP | OPEN WOOD PORCH W/STEPS | 4 | 0 | 1996 | 308.0 |
| | OWC | OPEN WOOD PORCH W/STEPS/ROOF/C | 4 | 0 | 1996 | 48.0 |
| | OWC | OPEN WOOD PORCH W/STEPS/ROOF/C | 4 | 0 | 1996 | 72.0 |
| | CPD | OPEN CARPORT DIRT FLOOR | 4 | 0 | 1996 | 240.0 |
| | DWN | DOWNSTAIRS LIVING AREA | 4 | 0 | 1996 | 1080.0 |
| | oRAF | RAMP/FLOAT | 4 | 0 | 1996 | 140.0 |
| | oFLT | FLOAT/DECK/PILING | 4 | 0 | 1996 | 480.0 |
Sketch
| No sketches available for this property. |
Property Image
Land
| 1 | LB | LOW BANK | 0.0000 | 0.00 | 62.00 | 0.00 | 1.00 | $475,000 | $0 |
Roll Value History
| 2026 | N/A | N/A | N/A | N/A | N/A |
| 2025 | $417,721 | $475,000 | $0 | $892,721 | $892,721 |
| 2024 | $416,447 | $425,000 | $0 | $841,447 | $841,447 |
| 2023 | $421,000 | $425,000 | $0 | $846,000 | $846,000 |
| 2022 | $389,312 | $350,000 | $0 | $739,312 | $739,312 |
| 2021 | $347,588 | $320,000 | $0 | $667,588 | $667,588 |
| 2020 | $280,210 | $290,000 | $0 | $570,210 | $570,210 |
| 2019 | $219,645 | $325,000 | $0 | $544,645 | $544,645 |
| 2018 | $220,261 | $230,000 | $0 | $450,261 | $450,261 |
| 2017 | $221,491 | $175,000 | $0 | $396,491 | $396,491 |
| 2016 | $223,953 | $175,000 | $0 | $398,953 | $398,953 |
| 2015 | $226,414 | $175,000 | $0 | $401,414 | $401,414 |
| 2014 | $223,953 | $125,000 | $0 | $348,953 | $348,953 |
| 2013 | $226,414 | $125,000 | $0 | $351,414 | $351,414 |
| 2012 | $228,876 | $191,580 | $0 | $420,456 | $420,456 |
| 2011 | $231,339 | $191,580 | $0 | $422,919 | $422,919 |
| 2010 | $238,089 | $191,580 | $0 | $429,669 | $429,669 |
| 2009 | $249,245 | $255,440 | $0 | $504,685 | $504,685 |
| 2008 | $224,634 | $440,634 | $0 | $665,268 | $665,268 |
| 2007 | $227,315 | $354,423 | $0 | $581,738 | $581,738 |
Deed and Sales History
| 1 | 06/13/2024 | WD | Warranty Deed | LILLY TTEE, KECIA A | O'BRIEN TTEE, DIANNE D | | | $1,262,500.00 | 60347 | 4573541 |
| 2 | 12/08/2020 | WD | Warranty Deed | LILLY TTEE, MARC S | LILLY TTEE, KECIA A | | | $0.00 | 46996 | 4511327 |
| 3 | 04/23/2019 | WD | Warranty Deed | PIPER, GARY A | LILLY TTEE, MARC S | | | $825,000.00 | 38135 | 4461663 |
| 4 | 09/27/2005 | QCD | Quit Claim Deed | PIPER, GARY A | PIPER, GARTH | | | $0.00 | 60560 | 4162045 |
| 5 | 10/01/1992 | DECREE | Divorce Decree/Legal Separation | PIPER, GARY A | PIPER, GARY A | | | $0.00 | 24358 | 92021324 |
| 6 | 11/01/1990 | WD | Warranty Deed | PERSON, EARL K | PIPER, GARY A | | | $63,000.00 | 6307 | 90021788 |
| 7 | 01/01/1900 | OTHER | Other - Misc. Documents | Unknown | PERSON, EARL K | | | $0.00 | 0 | 0 |
Payout Agreement
| No payout information available.. |