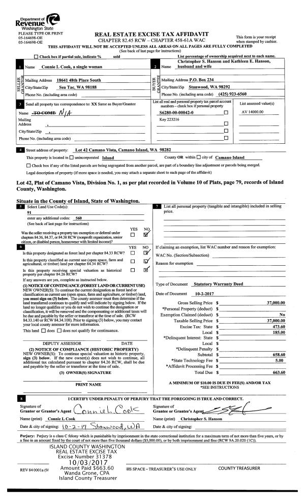
Property
Account |
| Property ID: | 368685 | Abbreviated Legal Description: | SANDY HOOK LOT 28 BLK 8 |
| Geographic ID: | S8075-00-08028-0 | Agent Code: | |
| Type: | Real | | |
| Tax Area: | 710 - APPRAISER-S Whid Schl Dist, outside Langley, improved & 1 acre or less | Land Use Code | 11 |
| Open Space: | N | DFL | N |
| Historic Property: | N | Remodel Property: | N |
| Multi-Family Redevelopment: | N | | |
| Township: | | Section: | |
| Range: | |
Location |
| Address: | 8212 SANDY HOOK DR CLINTON, WA 98236 | Mapsco: | |
| Neighborhood: | Cycle 4 | Map ID: | 708 |
| Neighborhood CD: | 4 |
Owner |
| Name: | AMUNDSON, RYAN | Owner ID: | 284641 |
| Mailing Address: | CHRISTINE AMUNDSON 8209 SANDY HOOK DR CLINTON, WA 98236 | % Ownership: | 100.0000000000% |
| | | Exemptions: | |
Taxes and Assessment Details
Values
| (+) Improvement Homesite Value: | + | $0 | |
| (+) Improvement Non-Homesite Value: | + | $58,520 | |
| (+) Land Homesite Value: | + | $0 | |
| (+) Land Non-Homesite Value: | + | $225,000 | |
| (+) Curr Use (HS): | + | $0 | $0 |
| (+) Curr Use (NHS): | + | $0 | $0 |
| | | -------------------------- | |
| (=) Market Value: | = | $283,520 | |
| (–) Productivity Loss: | – | $0 | |
| | | -------------------------- | |
| (=) Subtotal: | = | $283,520 | |
| (+) Senior Appraised Value: | + | $0 | |
| (+) Non-Senior Appraised Value: | + | $283,520 | |
| | | -------------------------- | |
| (=) Total Appraised Value: | = | $283,520 | |
| (–) Senior Exemption Loss: | – | $0 | |
| (–) Exemption Loss: | – | $0 | |
| | | -------------------------- | |
| (=) Taxable Value: | = | $283,520 | |
Taxing Jurisdiction
| Owner: | AMUNDSON, RYAN | | |
| % Ownership: | 100.0000000000% | | |
| Total Value: | $283,520 | | |
| Tax Area: | 710 - APPRAISER-S Whid Schl Dist, outside Langley, improved & 1 acre or less |
| CF | Conservation Futures | 0.0316035091 | $283,520 | $283,520 | $8.96 | | |
| FIRE3 | Fire & Rescue Dist #3 S Whidbey GEN | 1.2004855531 | $283,520 | $283,520 | $340.36 | | |
| HOBOND | Hospital BOND | 0.1910887512 | $283,520 | $283,520 | $54.18 | | |
| HOGEN | Hospital GEN | 0.3902502903 | $283,520 | $283,520 | $110.64 | | |
| CE | County Current Expense | 0.3708482477 | $283,520 | $283,520 | $105.14 | | |
| CR | County Roads | 0.4584763726 | $283,520 | $283,520 | $129.99 | | |
| ISLANDEMS | Hospital GEN (EMS) | 0.5000000000 | $283,520 | $283,520 | $141.76 | | |
| LIB | Library Sno-Isle GEN | 0.3153421757 | $283,520 | $283,520 | $89.41 | | |
| PORTWHID | Port of S Whidbey GEN | 0.1094540357 | $283,520 | $283,520 | $31.03 | | |
| SCH206BOND | School 206 BOND | 0.3161759235 | $283,520 | $283,520 | $89.64 | | |
| SCH206MO | School 206 Enrichment | 0.4547169547 | $283,520 | $283,520 | $128.92 | | |
| ST | State School | 1.3035497053 | $283,520 | $283,520 | $369.58 | | |
| ST2 | State School Part 2 | 0.8169543533 | $283,520 | $283,520 | $231.62 | | |
| SWHIDPRBD | P & R S Whidbey BOND | 0.0152817568 | $283,520 | $283,520 | $4.33 | | |
| SWHIDPRBD2 | P & R S Whidbey BOND2 | 0.0138911264 | $283,520 | $283,520 | $3.94 | | |
| SWHIDPRMT | P & R S Whidbey GEN | 0.2053334452 | $283,520 | $283,520 | $58.22 | | |
| | Total Tax Rate: | 6.6934522006 | | | | | |
| | | | | Taxes w/Current Exemptions: | $1,897.72 | | |
| | | | | Taxes w/o Exemptions: | $1,897.72 | | |
Improvement / Building
| Improvement #1: | RESIDENTIAL | State Code: | Y | 0.0 sqft | Value: | $58,520 |
| | Type | Description | Class CD | Sub Class CD | Year Built | Area |
| | oRAF | RAMP/FLOAT | 1 | 0 | 1900 | 96.0 |
| | oFLT | FLOAT/DECK/PILING | 1 | 0 | 1900 | 924.0 |
| | OCP | OPEN CARPORT | 1 | 0 | 1900 | 924.0 |
| | oPRS | PIER RESDK | 1 | 0 | 1900 | 160.0 |
Sketch
| No sketches available for this property. |
Property Image
Land
| 1 | LB | LOW BANK | 0.0000 | 0.00 | 68.00 | 0.00 | 1.00 | $225,000 | $0 |
Roll Value History
| 2026 | N/A | N/A | N/A | N/A | N/A |
| 2025 | $58,520 | $225,000 | $0 | $283,520 | $283,520 |
| 2024 | $58,520 | $200,000 | $0 | $258,520 | $258,520 |
| 2023 | $58,520 | $200,000 | $0 | $258,520 | $258,520 |
| 2022 | $58,520 | $180,000 | $0 | $238,520 | $238,520 |
| 2021 | $58,520 | $175,000 | $0 | $233,520 | $233,520 |
| 2020 | $78,582 | $170,000 | $0 | $248,582 | $248,582 |
| 2019 | $78,582 | $175,000 | $0 | $253,582 | $253,582 |
| 2018 | $31,513 | $65,000 | $0 | $96,513 | $96,513 |
| 2017 | $31,513 | $65,000 | $0 | $96,513 | $96,513 |
| 2016 | $31,513 | $65,000 | $0 | $96,513 | $96,513 |
| 2015 | $31,513 | $65,000 | $0 | $96,513 | $96,513 |
| 2014 | $31,513 | $65,000 | $0 | $96,513 | $96,513 |
| 2013 | $32,566 | $65,000 | $0 | $97,566 | $97,566 |
| 2012 | $32,566 | $65,000 | $0 | $97,566 | $97,566 |
| 2011 | $32,566 | $137,278 | $0 | $169,844 | $169,844 |
| 2010 | $32,566 | $137,278 | $0 | $169,844 | $169,844 |
| 2009 | $34,456 | $128,698 | $0 | $163,154 | $163,154 |
| 2008 | $36,002 | $169,882 | $0 | $205,884 | $205,884 |
| 2007 | $37,881 | $144,142 | $0 | $182,023 | $182,023 |
Deed and Sales History
| 1 | 04/13/2018 | WD | Warranty Deed | SISTERS III LLC | AMUNDSON, RYAN | | | $125,000.00 | 33718 | 4442794 |
| 2 | 04/17/2009 | QCD | Quit Claim Deed | MURPHY, JOSEPH M | SISTERS III LLC, | | | $0.00 | 90860 | 4249438 |
| 3 | 07/01/1995 | WD | Warranty Deed | MURPHY, JOSEPH M | MURPHY, JOSEPH M | | | $30,000.00 | 52469 | 95011408 |
| 4 | 07/01/1995 | WD | Warranty Deed | MAUNE, BUELL R | MURPHY, JOSEPH M | | | $0.00 | 64212 | 96020529 |
| 5 | 01/01/1900 | OTHER | Other - Misc. Documents | Unknown | MAUNE, BUELL R | | | $0.00 | 0 | 0 |
Payout Agreement
| No payout information available.. |