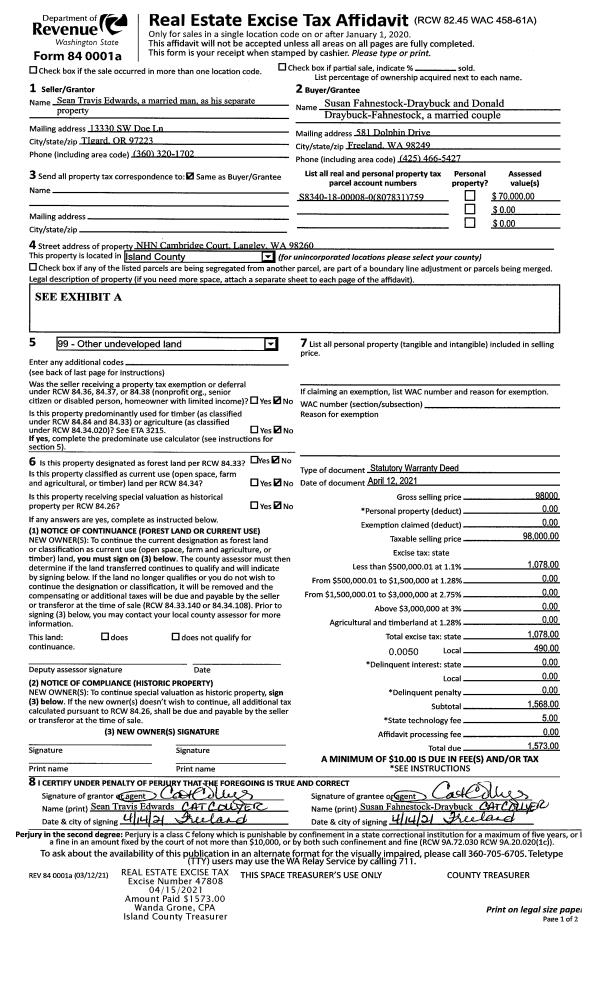
Property
Account |
| Property ID: | 368729 | Abbreviated Legal Description: | SANDY HOOK LOT 32 BLK 8 |
| Geographic ID: | S8075-00-08032-0 | Agent Code: | |
| Type: | Real | | |
| Tax Area: | 710 - APPRAISER-S Whid Schl Dist, outside Langley, improved & 1 acre or less | Land Use Code | 11 |
| Open Space: | N | DFL | N |
| Historic Property: | N | Remodel Property: | N |
| Multi-Family Redevelopment: | N | | |
| Township: | | Section: | |
| Range: | |
Location |
| Address: | 8245 SANDY HOOK DR CLINTON, WA 98236 | Mapsco: | |
| Neighborhood: | Cycle 4 | Map ID: | 708 |
| Neighborhood CD: | 4 |
Owner |
| Name: | BARTLETT, BRIAN R | Owner ID: | 23247 |
| Mailing Address: | 8245 SANDY HOOK DR CLINTON, WA 98236-8938 | % Ownership: | 100.0000000000% |
| | | Exemptions: | |
Taxes and Assessment Details
Values
| (+) Improvement Homesite Value: | + | $0 | |
| (+) Improvement Non-Homesite Value: | + | $451,423 | |
| (+) Land Homesite Value: | + | $0 | |
| (+) Land Non-Homesite Value: | + | $425,000 | |
| (+) Curr Use (HS): | + | $0 | $0 |
| (+) Curr Use (NHS): | + | $0 | $0 |
| | | -------------------------- | |
| (=) Market Value: | = | $876,423 | |
| (–) Productivity Loss: | – | $0 | |
| | | -------------------------- | |
| (=) Subtotal: | = | $876,423 | |
| (+) Senior Appraised Value: | + | $0 | |
| (+) Non-Senior Appraised Value: | + | $876,423 | |
| | | -------------------------- | |
| (=) Total Appraised Value: | = | $876,423 | |
| (–) Senior Exemption Loss: | – | $0 | |
| (–) Exemption Loss: | – | $0 | |
| | | -------------------------- | |
| (=) Taxable Value: | = | $876,423 | |
Taxing Jurisdiction
| Owner: | BARTLETT, BRIAN R | | |
| % Ownership: | 100.0000000000% | | |
| Total Value: | $876,423 | | |
| Tax Area: | 710 - APPRAISER-S Whid Schl Dist, outside Langley, improved & 1 acre or less |
| CF | Conservation Futures | 0.0316035091 | $876,423 | $876,423 | $27.70 | | |
| FIRE3 | Fire & Rescue Dist #3 S Whidbey GEN | 1.2004855531 | $876,423 | $876,423 | $1,052.13 | | |
| HOBOND | Hospital BOND | 0.1910887512 | $876,423 | $876,423 | $167.47 | | |
| HOGEN | Hospital GEN | 0.3902502903 | $876,423 | $876,423 | $342.02 | | |
| CE | County Current Expense | 0.3708482477 | $876,423 | $876,423 | $325.02 | | |
| CR | County Roads | 0.4584763726 | $876,423 | $876,423 | $401.82 | | |
| ISLANDEMS | Hospital GEN (EMS) | 0.5000000000 | $876,423 | $876,423 | $438.21 | | |
| LIB | Library Sno-Isle GEN | 0.3153421757 | $876,423 | $876,423 | $276.37 | | |
| PORTWHID | Port of S Whidbey GEN | 0.1094540357 | $876,423 | $876,423 | $95.93 | | |
| SCH206BOND | School 206 BOND | 0.3161759235 | $876,423 | $876,423 | $277.10 | | |
| SCH206MO | School 206 Enrichment | 0.4547169547 | $876,423 | $876,423 | $398.52 | | |
| ST | State School | 1.3035497053 | $876,423 | $876,423 | $1,142.46 | | |
| ST2 | State School Part 2 | 0.8169543533 | $876,423 | $876,423 | $716.00 | | |
| SWHIDPRBD | P & R S Whidbey BOND | 0.0152817568 | $876,423 | $876,423 | $13.39 | | |
| SWHIDPRBD2 | P & R S Whidbey BOND2 | 0.0138911264 | $876,423 | $876,423 | $12.17 | | |
| SWHIDPRMT | P & R S Whidbey GEN | 0.2053334452 | $876,423 | $876,423 | $179.96 | | |
| | Total Tax Rate: | 6.6934522006 | | | | | |
| | | | | Taxes w/Current Exemptions: | $5,866.27 | | |
| | | | | Taxes w/o Exemptions: | $5,866.27 | | |
Improvement / Building
| Improvement #1: | RESIDENTIAL | State Code: | Y | 2664.3 sqft | Value: | $451,423 |
| Bathrooms: | 3 | Bedrooms: | 2 | | Ceiling: | DRYWALL PAINTED | Cooling: | HEAT PUMP/CONV/V | | Exterior Wall/Cover: | CEMENT FIBER | Floor Covering: | CARPET/VINYL 80-20 | | Floor Structure: | WOOD W/SUBFLOOR | Foundation: | CONCRETE | | Interior Finish: | DRYWALL PAINT | Plumbing Fixture Cnt: | 14 | | Roof Slope: | FLAT | Roof Structure/Cover: | CJ COMP ROLL |
|
| | Type | Description | Class CD | Sub Class CD | Year Built | Area |
| | BAS | BASE/MAIN FLOOR | 4 | 0 | 1991 | 1595.7 |
| | DWN | DOWNSTAIRS LIVING AREA | 4 | 0 | 1991 | 1068.6 |
| | AGR | ATTACHED GARAGE | 4 | 0 | 1991 | 482.0 |
| | OWP | OPEN WOOD PORCH W/STEPS | 4 | 0 | 1991 | 663.5 |
| | OWC | OPEN WOOD PORCH W/STEPS/ROOF/C | 4 | 0 | 1991 | 87.5 |
| | oRAF | RAMP/FLOAT | 4 | 0 | 1991 | 54.0 |
| | oFLT | FLOAT/DECK/PILING | 4 | 0 | 1991 | 252.0 |
| | UB8 | BASEMENT UNFINISHED 8" | 4 | 0 | 1991 | 427.3 |
Sketch
| No sketches available for this property. |
Property Image
Land
| 1 | LB | LOW BANK | 0.0000 | 0.00 | 40.00 | 0.00 | 1.00 | $425,000 | $0 |
Roll Value History
| 2026 | N/A | N/A | N/A | N/A | N/A |
| 2025 | $451,423 | $425,000 | $0 | $876,423 | $876,423 |
| 2024 | $457,013 | $375,000 | $0 | $832,013 | $832,013 |
| 2023 | $462,597 | $375,000 | $0 | $837,597 | $837,597 |
| 2022 | $424,238 | $300,000 | $0 | $724,238 | $724,238 |
| 2021 | $373,708 | $240,000 | $0 | $613,708 | $613,708 |
| 2020 | $310,169 | $240,000 | $0 | $550,169 | $550,169 |
| 2019 | $220,701 | $275,000 | $0 | $495,701 | $495,701 |
| 2018 | $221,444 | $200,000 | $0 | $421,444 | $421,444 |
| 2017 | $211,162 | $175,000 | $0 | $386,162 | $386,162 |
| 2016 | $213,977 | $175,000 | $0 | $388,977 | $388,977 |
| 2015 | $216,792 | $175,000 | $0 | $391,792 | $391,792 |
| 2014 | $220,980 | $125,000 | $0 | $345,980 | $345,980 |
| 2013 | $224,883 | $125,000 | $0 | $349,883 | $349,883 |
| 2012 | $227,802 | $132,252 | $0 | $360,054 | $360,054 |
| 2011 | $230,721 | $132,252 | $0 | $362,973 | $362,973 |
| 2010 | $240,719 | $132,252 | $0 | $372,971 | $372,971 |
| 2009 | $251,007 | $176,336 | $0 | $427,343 | $427,343 |
| 2008 | $266,385 | $304,180 | $0 | $570,565 | $570,565 |
| 2007 | $269,532 | $244,666 | $0 | $514,198 | $514,198 |
Deed and Sales History
| 1 | 07/01/1985 | REC | Real Estate Contract | MILBY, F M | BARTLETT, BRIAN R | | | $39,950.00 | 52011 | 85007926 |
| 2 | 01/01/1900 | OTHER | Other - Misc. Documents | Unknown | MILBY, F M | | | $0.00 | 0 | 0 |
Payout Agreement
| No payout information available.. |