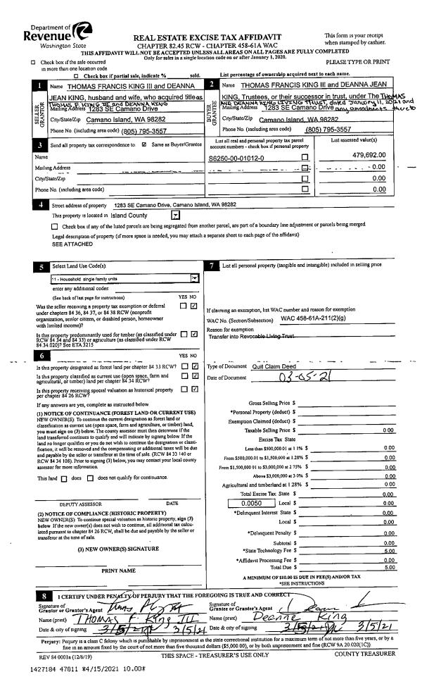
Property
Account |
| Property ID: | 368765 | Abbreviated Legal Description: | SANDY HOOK LOT 36 BLK 8 TGW & SUB EZ AF#86006616 |
| Geographic ID: | S8075-00-08036-0 | Agent Code: | |
| Type: | Real | | |
| Tax Area: | 710 - APPRAISER-S Whid Schl Dist, outside Langley, improved & 1 acre or less | Land Use Code | 11 |
| Open Space: | N | DFL | N |
| Historic Property: | N | Remodel Property: | N |
| Multi-Family Redevelopment: | N | | |
| Township: | | Section: | |
| Range: | |
Location |
| Address: | 8227 SANDY HOOK DR CLINTON, WA 98236 | Mapsco: | |
| Neighborhood: | Cycle 4 | Map ID: | 708 |
| Neighborhood CD: | 4 |
Owner |
| Name: | CANTRELL TTEE, COLIN M | Owner ID: | 303449 |
| Mailing Address: | NINA M CANTRELL TTEE 630 9TH AVE KIRKLAND, WA 98033 | % Ownership: | 100.0000000000% |
| | | Exemptions: | |
Taxes and Assessment Details
Values
| (+) Improvement Homesite Value: | + | $0 | |
| (+) Improvement Non-Homesite Value: | + | $499,309 | |
| (+) Land Homesite Value: | + | $0 | |
| (+) Land Non-Homesite Value: | + | $425,000 | |
| (+) Curr Use (HS): | + | $0 | $0 |
| (+) Curr Use (NHS): | + | $0 | $0 |
| | | -------------------------- | |
| (=) Market Value: | = | $924,309 | |
| (–) Productivity Loss: | – | $0 | |
| | | -------------------------- | |
| (=) Subtotal: | = | $924,309 | |
| (+) Senior Appraised Value: | + | $0 | |
| (+) Non-Senior Appraised Value: | + | $924,309 | |
| | | -------------------------- | |
| (=) Total Appraised Value: | = | $924,309 | |
| (–) Senior Exemption Loss: | – | $0 | |
| (–) Exemption Loss: | – | $0 | |
| | | -------------------------- | |
| (=) Taxable Value: | = | $924,309 | |
Taxing Jurisdiction
| Owner: | CANTRELL TTEE, COLIN M | | |
| % Ownership: | 100.0000000000% | | |
| Total Value: | $924,309 | | |
| Tax Area: | 710 - APPRAISER-S Whid Schl Dist, outside Langley, improved & 1 acre or less |
| CF | Conservation Futures | 0.0316035091 | $924,309 | $924,309 | $29.21 | | |
| FIRE3 | Fire & Rescue Dist #3 S Whidbey GEN | 1.2004855531 | $924,309 | $924,309 | $1,109.62 | | |
| HOBOND | Hospital BOND | 0.1910887512 | $924,309 | $924,309 | $176.63 | | |
| HOGEN | Hospital GEN | 0.3902502903 | $924,309 | $924,309 | $360.71 | | |
| CE | County Current Expense | 0.3708482477 | $924,309 | $924,309 | $342.78 | | |
| CR | County Roads | 0.4584763726 | $924,309 | $924,309 | $423.77 | | |
| ISLANDEMS | Hospital GEN (EMS) | 0.5000000000 | $924,309 | $924,309 | $462.15 | | |
| LIB | Library Sno-Isle GEN | 0.3153421757 | $924,309 | $924,309 | $291.47 | | |
| PORTWHID | Port of S Whidbey GEN | 0.1094540357 | $924,309 | $924,309 | $101.17 | | |
| SCH206BOND | School 206 BOND | 0.3161759235 | $924,309 | $924,309 | $292.24 | | |
| SCH206MO | School 206 Enrichment | 0.4547169547 | $924,309 | $924,309 | $420.30 | | |
| ST | State School | 1.3035497053 | $924,309 | $924,309 | $1,204.88 | | |
| ST2 | State School Part 2 | 0.8169543533 | $924,309 | $924,309 | $755.12 | | |
| SWHIDPRBD | P & R S Whidbey BOND | 0.0152817568 | $924,309 | $924,309 | $14.13 | | |
| SWHIDPRBD2 | P & R S Whidbey BOND2 | 0.0138911264 | $924,309 | $924,309 | $12.84 | | |
| SWHIDPRMT | P & R S Whidbey GEN | 0.2053334452 | $924,309 | $924,309 | $189.79 | | |
| | Total Tax Rate: | 6.6934522006 | | | | | |
| | | | | Taxes w/Current Exemptions: | $6,186.81 | | |
| | | | | Taxes w/o Exemptions: | $6,186.81 | | |
Improvement / Building
| Improvement #1: | RESIDENTIAL | State Code: | Y | 2669.0 sqft | Value: | $499,309 |
| Bathrooms: | 2 | Bedrooms: | 3 | | Ceiling: | DRYWALL PAINTED | Exterior Wall/Cover: | PLY/HARDBOARD T-111 | | Floor Covering: | CARPET/VINYL 60-40 | Floor Structure: | WOOD W/SUBFLOOR | | Foundation: | CONCRETE | Heating: | FHA GAS | | Interior Finish: | DRYWALL PAINT | Plumbing Fixture Cnt: | 9 | | Roof Slope: | FLAT | Roof Structure/Cover: | CJ BUILT-UP ROCK |
|
| | Type | Description | Class CD | Sub Class CD | Year Built | Area |
| | BAS | BASE/MAIN FLOOR | 4 | 0 | 1969 | 1661.0 |
| | AGR | ATTACHED GARAGE | 4 | 0 | 1969 | 626.0 |
| | UPS | UPPER STORY | 4 | 0 | 1969 | 1008.0 |
| | OP4 | OPEN PORCH W/CEILING-ROOF | 4 | 0 | 1969 | 486.0 |
| | UTY | STORAGE/UTILITY | 4 | 0 | 1969 | 384.0 |
| | OWP | OPEN WOOD PORCH W/STEPS | 4 | 0 | 1969 | 1441.3 |
| | OP1 | OPEN PORCH SLAB | 4 | 0 | 1969 | 189.0 |
| | oRAF | RAMP/FLOAT | 4 | 0 | 1969 | 66.0 |
| | oFLT | FLOAT/DECK/PILING | 4 | 0 | 1969 | 156.0 |
Sketch
| No sketches available for this property. |
Property Image
Land
| 1 | LB | LOW BANK | 0.0000 | 0.00 | 40.00 | 0.00 | 1.00 | $425,000 | $0 |
Roll Value History
| 2026 | N/A | N/A | N/A | N/A | N/A |
| 2025 | $499,309 | $425,000 | $0 | $924,309 | $924,309 |
| 2024 | $505,141 | $375,000 | $0 | $880,141 | $880,141 |
| 2023 | $510,970 | $375,000 | $0 | $885,970 | $885,970 |
| 2022 | $468,715 | $300,000 | $0 | $768,715 | $768,715 |
| 2021 | $413,240 | $240,000 | $0 | $653,240 | $653,240 |
| 2020 | $352,888 | $240,000 | $0 | $592,888 | $592,888 |
| 2019 | $264,718 | $275,000 | $0 | $539,718 | $539,718 |
| 2018 | $265,450 | $200,000 | $0 | $465,450 | $465,450 |
| 2017 | $266,872 | $175,000 | $0 | $441,872 | $441,872 |
| 2016 | $201,700 | $175,000 | $0 | $376,700 | $376,700 |
| 2015 | $204,373 | $175,000 | $0 | $379,373 | $379,373 |
| 2014 | $185,669 | $125,000 | $0 | $310,669 | $310,669 |
| 2013 | $189,662 | $125,000 | $0 | $314,662 | $314,662 |
| 2012 | $192,341 | $132,252 | $0 | $324,593 | $324,593 |
| 2011 | $195,022 | $132,252 | $0 | $327,274 | $327,274 |
| 2010 | $208,727 | $132,252 | $0 | $340,979 | $340,979 |
| 2009 | $217,953 | $176,336 | $0 | $394,289 | $394,289 |
| 2008 | $214,220 | $304,180 | $0 | $518,400 | $518,400 |
| 2007 | $217,563 | $244,666 | $0 | $462,229 | $462,229 |
Deed and Sales History
| 1 | 02/22/2022 | WD | Warranty Deed | CANTRELL, COLIN M | CANTRELL TTEE, COLIN M | | | $0.00 | 52306 | 4541561 |
| 2 | 06/27/2016 | WD | Warranty Deed | KENT, JOHN P | CANTRELL, COLIN M | | | $467,984.00 | 24987 | 4402108 |
| 3 | 10/21/2003 | WD | Warranty Deed | GUDGEL, CATHERINE L | KENT, JOHN P | | | $299,950.00 | 34801 | 4080332 |
| 4 | 10/11/2001 | WD | Warranty Deed | NELSON, THOMAS W | GUDGEL, CATHERINE L | | | $262,500.00 | 14036 | 4000357 |
| 5 | 09/01/1991 | WD | Warranty Deed | BIRNEY, CHARLES W | NELSON, THOMAS W | | | $280,000.00 | 13273 | 91013931 |
| 6 | 12/01/1983 | QCD | Quit Claim Deed | BIRNEY, CHARLES W | BIRNEY, CHARLES W | | | $0.00 | 33704 | 418978 |
| 7 | 09/01/1981 | CD | DNU - Correction Deed | HEYWORTH, RICHARD D | BIRNEY, CHARLES W | | | $1.00 | 13058 | 388519 |
| 8 | 09/01/1980 | CD | DNU - Correction Deed | HEYWORTH, RICHARD D | HEYWORTH, RICHARD D | | | $0.00 | 3778 | 0 |
Payout Agreement
| No payout information available.. |