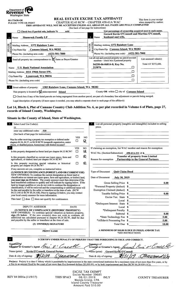
Property
Account |
| Property ID: | 369121 | Abbreviated Legal Description: | SANDY HOOK LOT 72 BLK 8 |
| Geographic ID: | S8075-00-08072-0 | Agent Code: | |
| Type: | Real | | |
| Tax Area: | 710 - APPRAISER-S Whid Schl Dist, outside Langley, improved & 1 acre or less | Land Use Code | 11 |
| Open Space: | N | DFL | N |
| Historic Property: | N | Remodel Property: | N |
| Multi-Family Redevelopment: | N | | |
| Township: | | Section: | |
| Range: | |
Location |
| Address: | 8071 SANDY HOOK DR CLINTON, WA 98236 | Mapsco: | |
| Neighborhood: | Cycle 4 | Map ID: | 710 |
| Neighborhood CD: | 4 |
Owner |
| Name: | HEDLUND, EDWIN C | Owner ID: | 291486 |
| Mailing Address: | LINDA Z HEDLUND 12025 7TH AVE NW SEATTLE, WA 98177 | % Ownership: | 100.0000000000% |
| | | Exemptions: | |
Taxes and Assessment Details
Values
| (+) Improvement Homesite Value: | + | $0 | |
| (+) Improvement Non-Homesite Value: | + | $556,627 | |
| (+) Land Homesite Value: | + | $0 | |
| (+) Land Non-Homesite Value: | + | $425,000 | |
| (+) Curr Use (HS): | + | $0 | $0 |
| (+) Curr Use (NHS): | + | $0 | $0 |
| | | -------------------------- | |
| (=) Market Value: | = | $981,627 | |
| (–) Productivity Loss: | – | $0 | |
| | | -------------------------- | |
| (=) Subtotal: | = | $981,627 | |
| (+) Senior Appraised Value: | + | $0 | |
| (+) Non-Senior Appraised Value: | + | $981,627 | |
| | | -------------------------- | |
| (=) Total Appraised Value: | = | $981,627 | |
| (–) Senior Exemption Loss: | – | $0 | |
| (–) Exemption Loss: | – | $0 | |
| | | -------------------------- | |
| (=) Taxable Value: | = | $981,627 | |
Taxing Jurisdiction
| Owner: | HEDLUND, EDWIN C | | |
| % Ownership: | 100.0000000000% | | |
| Total Value: | $981,627 | | |
| Tax Area: | 710 - APPRAISER-S Whid Schl Dist, outside Langley, improved & 1 acre or less |
| CF | Conservation Futures | 0.0316035091 | $981,627 | $981,627 | $31.02 | | |
| FIRE3 | Fire & Rescue Dist #3 S Whidbey GEN | 1.2004855531 | $981,627 | $981,627 | $1,178.43 | | |
| HOBOND | Hospital BOND | 0.1910887512 | $981,627 | $981,627 | $187.58 | | |
| HOGEN | Hospital GEN | 0.3902502903 | $981,627 | $981,627 | $383.08 | | |
| CE | County Current Expense | 0.3708482477 | $981,627 | $981,627 | $364.03 | | |
| CR | County Roads | 0.4584763726 | $981,627 | $981,627 | $450.05 | | |
| ISLANDEMS | Hospital GEN (EMS) | 0.5000000000 | $981,627 | $981,627 | $490.81 | | |
| LIB | Library Sno-Isle GEN | 0.3153421757 | $981,627 | $981,627 | $309.55 | | |
| PORTWHID | Port of S Whidbey GEN | 0.1094540357 | $981,627 | $981,627 | $107.44 | | |
| SCH206BOND | School 206 BOND | 0.3161759235 | $981,627 | $981,627 | $310.37 | | |
| SCH206MO | School 206 Enrichment | 0.4547169547 | $981,627 | $981,627 | $446.36 | | |
| ST | State School | 1.3035497053 | $981,627 | $981,627 | $1,279.60 | | |
| ST2 | State School Part 2 | 0.8169543533 | $981,627 | $981,627 | $801.94 | | |
| SWHIDPRBD | P & R S Whidbey BOND | 0.0152817568 | $981,627 | $981,627 | $15.00 | | |
| SWHIDPRBD2 | P & R S Whidbey BOND2 | 0.0138911264 | $981,627 | $981,627 | $13.64 | | |
| SWHIDPRMT | P & R S Whidbey GEN | 0.2053334452 | $981,627 | $981,627 | $201.56 | | |
| | Total Tax Rate: | 6.6934522006 | | | | | |
| | | | | Taxes w/Current Exemptions: | $6,570.46 | | |
| | | | | Taxes w/o Exemptions: | $6,570.46 | | |
Improvement / Building
| Improvement #1: | RESIDENTIAL | State Code: | Y | 2792.0 sqft | Value: | $556,627 |
| Bathrooms: | 3 | Bedrooms: | 2 | | Ceiling: | BEAM PAINTED | Exterior Wall/Cover: | WOOD SIDING | | Floor Covering: | CERAMIC TILE/HWD 40/60 | Floor Structure: | WOOD W/SUBFLOOR | | Foundation: | CONCRETE | Heating: | FHA ELECTRIC | | Interior Finish: | DRYWALL PAINT | Plumbing Fixture Cnt: | 13 | | Roof Slope: | 6" IN 12" | Roof Structure/Cover: | BEAM ASPHALT |
|
| | Type | Description | Class CD | Sub Class CD | Year Built | Area |
| | BAS | BASE/MAIN FLOOR | 4 | 0 | 1979 | 1954.9 |
| | BIG | BUILT IN GARAGE | 4 | 0 | 1979 | 577.7 |
| | UTY | STORAGE/UTILITY | 4 | 0 | 1979 | 132.6 |
| | OWP | OPEN WOOD PORCH W/STEPS | 4 | 0 | 1979 | 134.9 |
| | OWP | OPEN WOOD PORCH W/STEPS | 4 | 0 | 1979 | 480.7 |
| | DWN | DOWNSTAIRS LIVING AREA | 4 | 0 | 1979 | 837.1 |
| | oPRS | PIER RESDK | 4 | 0 | 1979 | 432.0 |
| | oRAF | RAMP/FLOAT | 4 | 0 | 1979 | 216.0 |
| | oFLT | FLOAT/DECK/PILING | 4 | 0 | 1979 | 703.0 |
| | OP1 | OPEN PORCH SLAB | 4 | 0 | 1979 | 256.0 |
| | OP4 | OPEN PORCH W/CEILING-ROOF | 4 | 0 | 1979 | 157.3 |
Sketch
| No sketches available for this property. |
Property Image
Land
| 1 | LB | LOW BANK | 0.0000 | 0.00 | 62.00 | 0.00 | 1.00 | $425,000 | $0 |
Roll Value History
| 2026 | N/A | N/A | N/A | N/A | N/A |
| 2025 | $556,627 | $425,000 | $0 | $981,627 | $981,627 |
| 2024 | $557,909 | $375,000 | $0 | $932,909 | $932,909 |
| 2023 | $564,211 | $375,000 | $0 | $939,211 | $939,211 |
| 2022 | $523,945 | $300,000 | $0 | $823,945 | $823,945 |
| 2021 | $470,667 | $240,000 | $0 | $710,667 | $710,667 |
| 2020 | $368,691 | $240,000 | $0 | $608,691 | $608,691 |
| 2019 | $203,677 | $275,000 | $0 | $478,677 | $478,677 |
| 2018 | $204,342 | $200,000 | $0 | $404,342 | $404,342 |
| 2017 | $205,501 | $175,000 | $0 | $380,501 | $380,501 |
| 2016 | $208,161 | $175,000 | $0 | $383,161 | $383,161 |
| 2015 | $210,818 | $175,000 | $0 | $385,818 | $385,818 |
| 2014 | $189,514 | $125,000 | $0 | $314,514 | $314,514 |
| 2013 | $194,687 | $125,000 | $0 | $319,687 | $319,687 |
| 2012 | $197,446 | $191,580 | $0 | $389,026 | $389,026 |
| 2011 | $200,208 | $191,580 | $0 | $391,788 | $391,788 |
| 2010 | $215,277 | $191,580 | $0 | $406,857 | $406,857 |
| 2009 | $225,039 | $255,440 | $0 | $480,479 | $480,479 |
| 2008 | $215,989 | $440,634 | $0 | $656,623 | $656,623 |
| 2007 | $218,778 | $354,423 | $0 | $573,201 | $573,201 |
Deed and Sales History
| 1 | 08/19/2019 | WD | Warranty Deed | DYMENT, JAMES P | HEDLUND, EDWIN C | | | $720,000.00 | 39977 | 4469991 |
| 2 | 12/09/1998 | WD | Warranty Deed | HILL, H E | DYMENT, JAMES P | | | $287,000.00 | 84875 | 98026873 |
| 3 | 07/01/1978 | OTHER | Other - Misc. Documents | Unknown | HILL, H E | | | $32,500.00 | 83182 | 335725 |
Payout Agreement
| No payout information available.. |