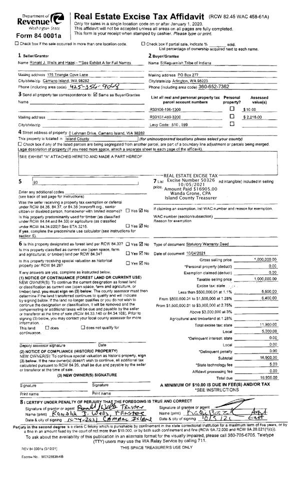
Property
Account |
| Property ID: | 369201 | Abbreviated Legal Description: | SANDY HOOK LOT 80 BLK 8 |
| Geographic ID: | S8075-00-08080-0 | Agent Code: | |
| Type: | Real | | |
| Tax Area: | 710 - APPRAISER-S Whid Schl Dist, outside Langley, improved & 1 acre or less | Land Use Code | 11 |
| Open Space: | N | DFL | N |
| Historic Property: | N | Remodel Property: | N |
| Multi-Family Redevelopment: | N | | |
| Township: | | Section: | |
| Range: | |
Location |
| Address: | 8054 SANDY HOOK DR CLINTON, WA 98236 | Mapsco: | |
| Neighborhood: | Cycle 4 | Map ID: | 710 |
| Neighborhood CD: | 4 |
Owner |
| Name: | ANDERSON TTEE, MARK T | Owner ID: | 291784 |
| Mailing Address: | LISA ANN GIANELLI 3028 154TH ST SE MILL CREEK, WA 98012 | % Ownership: | 100.0000000000% |
| | | Exemptions: | |
Taxes and Assessment Details
Values
| (+) Improvement Homesite Value: | + | $0 | |
| (+) Improvement Non-Homesite Value: | + | $647,974 | |
| (+) Land Homesite Value: | + | $0 | |
| (+) Land Non-Homesite Value: | + | $950,000 | |
| (+) Curr Use (HS): | + | $0 | $0 |
| (+) Curr Use (NHS): | + | $0 | $0 |
| | | -------------------------- | |
| (=) Market Value: | = | $1,597,974 | |
| (–) Productivity Loss: | – | $0 | |
| | | -------------------------- | |
| (=) Subtotal: | = | $1,597,974 | |
| (+) Senior Appraised Value: | + | $0 | |
| (+) Non-Senior Appraised Value: | + | $1,597,974 | |
| | | -------------------------- | |
| (=) Total Appraised Value: | = | $1,597,974 | |
| (–) Senior Exemption Loss: | – | $0 | |
| (–) Exemption Loss: | – | $0 | |
| | | -------------------------- | |
| (=) Taxable Value: | = | $1,597,974 | |
Taxing Jurisdiction
| Owner: | ANDERSON TTEE, MARK T | | |
| % Ownership: | 100.0000000000% | | |
| Total Value: | $1,597,974 | | |
| Tax Area: | 710 - APPRAISER-S Whid Schl Dist, outside Langley, improved & 1 acre or less |
| CF | Conservation Futures | 0.0316035091 | $1,597,974 | $1,597,974 | $50.50 | | |
| FIRE3 | Fire & Rescue Dist #3 S Whidbey GEN | 1.2004855531 | $1,597,974 | $1,597,974 | $1,918.34 | | |
| HOBOND | Hospital BOND | 0.1910887512 | $1,597,974 | $1,597,974 | $305.35 | | |
| HOGEN | Hospital GEN | 0.3902502903 | $1,597,974 | $1,597,974 | $623.61 | | |
| CE | County Current Expense | 0.3708482477 | $1,597,974 | $1,597,974 | $592.61 | | |
| CR | County Roads | 0.4584763726 | $1,597,974 | $1,597,974 | $732.63 | | |
| ISLANDEMS | Hospital GEN (EMS) | 0.5000000000 | $1,597,974 | $1,597,974 | $798.99 | | |
| LIB | Library Sno-Isle GEN | 0.3153421757 | $1,597,974 | $1,597,974 | $503.91 | | |
| PORTWHID | Port of S Whidbey GEN | 0.1094540357 | $1,597,974 | $1,597,974 | $174.90 | | |
| SCH206BOND | School 206 BOND | 0.3161759235 | $1,597,974 | $1,597,974 | $505.24 | | |
| SCH206MO | School 206 Enrichment | 0.4547169547 | $1,597,974 | $1,597,974 | $726.63 | | |
| ST | State School | 1.3035497053 | $1,597,974 | $1,597,974 | $2,083.04 | | |
| ST2 | State School Part 2 | 0.8169543533 | $1,597,974 | $1,597,974 | $1,305.47 | | |
| SWHIDPRBD | P & R S Whidbey BOND | 0.0152817568 | $1,597,974 | $1,597,974 | $24.42 | | |
| SWHIDPRBD2 | P & R S Whidbey BOND2 | 0.0138911264 | $1,597,974 | $1,597,974 | $22.20 | | |
| SWHIDPRMT | P & R S Whidbey GEN | 0.2053334452 | $1,597,974 | $1,597,974 | $328.12 | | |
| | Total Tax Rate: | 6.6934522006 | | | | | |
| | | | | Taxes w/Current Exemptions: | $10,695.96 | | |
| | | | | Taxes w/o Exemptions: | $10,695.96 | | |
Improvement / Building
| Improvement #1: | RESIDENTIAL | State Code: | Y | 2772.5 sqft | Value: | $647,974 |
| Bathrooms: | 3 | Bedrooms: | 2 | | Ceiling: | DRYWALL PAINTED | Cooling: | HEAT PUMP/CONV/V | | Exterior Wall/Cover: | SHINGLE | Floor Covering: | VINYL TILE/CARP 20-80 | | Floor Structure: | WOOD W/SUBFLOOR | Foundation: | CONCRETE | | Interior Finish: | DRYWALL PAINT | Plumbing Fixture Cnt: | 15 | | Roof Slope: | 4" IN 12" | Roof Structure/Cover: | CJ ASPHALT |
|
| | Type | Description | Class CD | Sub Class CD | Year Built | Area |
| | BAS | BASE/MAIN FLOOR | 5 | 0 | 1990 | 1519.5 |
| | OP1 | OPEN PORCH SLAB | 5 | 0 | 1990 | 107.0 |
| | OP4 | OPEN PORCH W/CEILING-ROOF | 5 | 0 | 1990 | 49.0 |
| | AGR | ATTACHED GARAGE | 5 | 0 | 1990 | 344.0 |
| | UPS | UPPER STORY | 5 | 0 | 1990 | 1253.0 |
| | BAW | BALCONY WOOD RAIL | 5 | 0 | 1990 | 140.0 |
| | ATU | ATTIC UNFINISHED | 5 | 0 | 1990 | 144.0 |
| | OWP | OPEN WOOD PORCH W/STEPS | 5 | 0 | 1990 | 1449.6 |
Sketch
Property Image
Land
| 1 | LB | LOW BANK | 0.0000 | 0.00 | 60.00 | 0.00 | 1.00 | $950,000 | $0 |
Roll Value History
| 2026 | N/A | N/A | N/A | N/A | N/A |
| 2025 | $647,974 | $950,000 | $0 | $1,597,974 | $1,597,974 |
| 2024 | $656,149 | $900,000 | $0 | $1,556,149 | $1,556,149 |
| 2023 | $664,326 | $850,000 | $0 | $1,514,326 | $1,514,326 |
| 2022 | $608,957 | $700,000 | $0 | $1,308,957 | $1,308,957 |
| 2021 | $535,977 | $650,000 | $0 | $1,185,977 | $1,185,977 |
| 2020 | $493,547 | $650,000 | $0 | $1,143,547 | $1,143,547 |
| 2019 | $402,466 | $700,000 | $0 | $1,102,466 | $1,102,466 |
| 2018 | $403,720 | $600,000 | $0 | $1,003,720 | $1,003,720 |
| 2017 | $406,186 | $500,000 | $0 | $906,186 | $906,186 |
| 2016 | $411,201 | $500,000 | $0 | $911,201 | $911,201 |
| 2015 | $416,215 | $500,000 | $0 | $916,215 | $916,215 |
| 2014 | $399,915 | $500,000 | $0 | $899,915 | $899,915 |
| 2013 | $406,373 | $482,040 | $0 | $888,413 | $888,413 |
| 2012 | $411,715 | $482,040 | $0 | $893,755 | $893,755 |
| 2011 | $417,056 | $482,040 | $0 | $899,096 | $899,096 |
| 2010 | $430,745 | $482,040 | $0 | $912,785 | $912,785 |
| 2009 | $449,255 | $602,550 | $0 | $1,051,805 | $1,051,805 |
| 2008 | $470,379 | $630,360 | $0 | $1,100,739 | $1,100,739 |
| 2007 | $475,845 | $630,360 | $0 | $1,106,205 | $1,106,205 |
Deed and Sales History
| 1 | 08/13/2019 | QCD | Quit Claim Deed | ANDERSON, MARK T | ANDERSON TTEE, MARK T | | | $0.00 | 40285 | 4471465 |
| 2 | 11/01/1991 | QCD | Quit Claim Deed | ANDERSON, MARK T | ANDERSON, MARK T | | | $0.00 | 14177 | 91018139 |
| 3 | 05/01/1990 | QCD | Quit Claim Deed | ANDERSON, RUSSELL N | ANDERSON, MARK T | | | $36,000.00 | 3215 | 90010391 |
| 4 | 01/01/1989 | QCD | Quit Claim Deed | ANDERSON, RUSSELL N | ANDERSON, RUSSELL N | | | $0.00 | 90410 | 89001407 |
| 5 | 12/01/1988 | QCD | Quit Claim Deed | ANDERSON, RUSSELL N | ANDERSON, RUSSELL N | | | $0.00 | 84425 | 88016426 |
| 6 | 03/01/1984 | OTHER | Other - Misc. Documents | ANDERSON, RUSSELL N | ANDERSON, RUSSELL N | | | $0.00 | 60443 | 0 |
| 7 | 01/01/1900 | OTHER | Other - Misc. Documents | Unknown | ANDERSON, RUSSELL N | | | $0.00 | 0 | 0 |
Payout Agreement
| No payout information available.. |