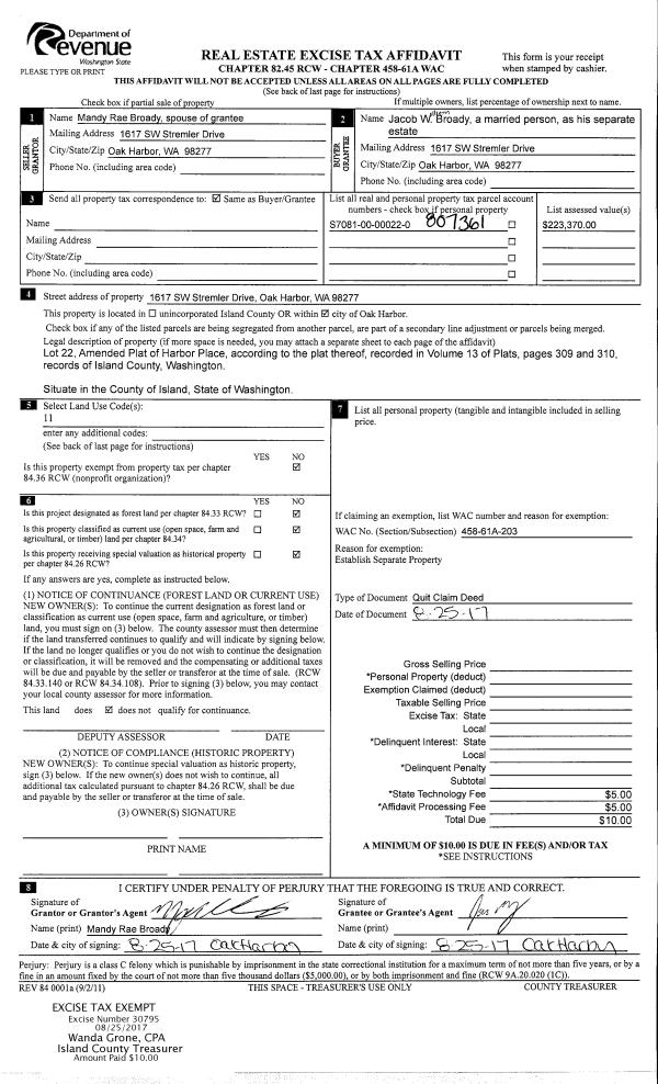
Property
Account |
| Property ID: | 369247 | Abbreviated Legal Description: | SANDY HOOK LOT 84 BLK 8 |
| Geographic ID: | S8075-00-08084-0 | Agent Code: | |
| Type: | Real | | |
| Tax Area: | 710 - APPRAISER-S Whid Schl Dist, outside Langley, improved & 1 acre or less | Land Use Code | 11 |
| Open Space: | N | DFL | N |
| Historic Property: | N | Remodel Property: | N |
| Multi-Family Redevelopment: | N | | |
| Township: | | Section: | |
| Range: | |
Location |
| Address: | 8066 SANDY HOOK DR CLINTON, WA 98236 | Mapsco: | |
| Neighborhood: | Cycle 4 | Map ID: | 710 |
| Neighborhood CD: | 4 |
Owner |
| Name: | DOOLITTLE FAMILY LLC | Owner ID: | 287281 |
| Mailing Address: | 32750 SE 46 LANE FALL CITY, WA 98024 | % Ownership: | 100.0000000000% |
| | | Exemptions: | |
Taxes and Assessment Details
Values
| (+) Improvement Homesite Value: | + | $0 | |
| (+) Improvement Non-Homesite Value: | + | $269,652 | |
| (+) Land Homesite Value: | + | $0 | |
| (+) Land Non-Homesite Value: | + | $950,000 | |
| (+) Curr Use (HS): | + | $0 | $0 |
| (+) Curr Use (NHS): | + | $0 | $0 |
| | | -------------------------- | |
| (=) Market Value: | = | $1,219,652 | |
| (–) Productivity Loss: | – | $0 | |
| | | -------------------------- | |
| (=) Subtotal: | = | $1,219,652 | |
| (+) Senior Appraised Value: | + | $0 | |
| (+) Non-Senior Appraised Value: | + | $1,219,652 | |
| | | -------------------------- | |
| (=) Total Appraised Value: | = | $1,219,652 | |
| (–) Senior Exemption Loss: | – | $0 | |
| (–) Exemption Loss: | – | $0 | |
| | | -------------------------- | |
| (=) Taxable Value: | = | $1,219,652 | |
Taxing Jurisdiction
| Owner: | DOOLITTLE FAMILY LLC | | |
| % Ownership: | 100.0000000000% | | |
| Total Value: | $1,219,652 | | |
| Tax Area: | 710 - APPRAISER-S Whid Schl Dist, outside Langley, improved & 1 acre or less |
| CF | Conservation Futures | 0.0316035091 | $1,219,652 | $1,219,652 | $38.55 | | |
| FIRE3 | Fire & Rescue Dist #3 S Whidbey GEN | 1.2004855531 | $1,219,652 | $1,219,652 | $1,464.17 | | |
| HOBOND | Hospital BOND | 0.1910887512 | $1,219,652 | $1,219,652 | $233.06 | | |
| HOGEN | Hospital GEN | 0.3902502903 | $1,219,652 | $1,219,652 | $475.97 | | |
| CE | County Current Expense | 0.3708482477 | $1,219,652 | $1,219,652 | $452.31 | | |
| CR | County Roads | 0.4584763726 | $1,219,652 | $1,219,652 | $559.18 | | |
| ISLANDEMS | Hospital GEN (EMS) | 0.5000000000 | $1,219,652 | $1,219,652 | $609.83 | | |
| LIB | Library Sno-Isle GEN | 0.3153421757 | $1,219,652 | $1,219,652 | $384.61 | | |
| PORTWHID | Port of S Whidbey GEN | 0.1094540357 | $1,219,652 | $1,219,652 | $133.50 | | |
| SCH206BOND | School 206 BOND | 0.3161759235 | $1,219,652 | $1,219,652 | $385.62 | | |
| SCH206MO | School 206 Enrichment | 0.4547169547 | $1,219,652 | $1,219,652 | $554.60 | | |
| ST | State School | 1.3035497053 | $1,219,652 | $1,219,652 | $1,589.88 | | |
| ST2 | State School Part 2 | 0.8169543533 | $1,219,652 | $1,219,652 | $996.40 | | |
| SWHIDPRBD | P & R S Whidbey BOND | 0.0152817568 | $1,219,652 | $1,219,652 | $18.64 | | |
| SWHIDPRBD2 | P & R S Whidbey BOND2 | 0.0138911264 | $1,219,652 | $1,219,652 | $16.94 | | |
| SWHIDPRMT | P & R S Whidbey GEN | 0.2053334452 | $1,219,652 | $1,219,652 | $250.44 | | |
| | Total Tax Rate: | 6.6934522006 | | | | | |
| | | | | Taxes w/Current Exemptions: | $8,163.70 | | |
| | | | | Taxes w/o Exemptions: | $8,163.70 | | |
Improvement / Building
| Improvement #1: | RESIDENTIAL | State Code: | Y | 1125.3 sqft | Value: | $269,652 |
| Bathrooms: | 1.5 | Bedrooms: | 2 | | Ceiling: | DRYWALL PAINTED | Cooling: | HEAT PUMP/CONV/V | | Exterior Wall/Cover: | CEMENT FIBER | Floor Covering: | VINYL TILE | | Floor Structure: | WOOD W/SUBFLOOR | Foundation: | CONCRETE | | Interior Finish: | DRYWALL PAINT | Plumbing Fixture Cnt: | 8 | | Roof Slope: | 4" IN 12" | Roof Structure/Cover: | CJ ASPHALT |
|
| | Type | Description | Class CD | Sub Class CD | Year Built | Area |
| | BAS | BASE/MAIN FLOOR | 3 | 0 | 2023 | 1125.3 |
| | ATF | ATTIC FINISHED | 3 | 0 | 2023 | 180.0 |
| | OWP | OPEN WOOD PORCH W/STEPS | 3 | 0 | 2023 | 92.5 |
| | OWP | OPEN WOOD PORCH W/STEPS | 3 | 0 | 2023 | 412.8 |
Sketch
| No sketches available for this property. |
Property Image
Land
| 1 | LB | LOW BANK | 0.0000 | 0.00 | 60.00 | 0.00 | 1.00 | $950,000 | $0 |
Roll Value History
| 2026 | N/A | N/A | N/A | N/A | N/A |
| 2025 | $269,652 | $950,000 | $0 | $1,219,652 | $1,219,652 |
| 2024 | $274,671 | $900,000 | $0 | $1,174,671 | $1,174,671 |
| 2023 | $280,276 | $850,000 | $0 | $1,130,276 | $1,130,276 |
| 2022 | $22,500 | $700,000 | $0 | $722,500 | $722,500 |
| 2021 | $95,512 | $650,000 | $0 | $745,512 | $745,512 |
| 2020 | $81,032 | $650,000 | $0 | $731,032 | $731,032 |
| 2019 | $58,770 | $700,000 | $0 | $758,770 | $758,770 |
| 2018 | $58,986 | $600,000 | $0 | $658,986 | $658,986 |
| 2017 | $59,416 | $500,000 | $0 | $559,416 | $223,766 |
| 2016 | $60,274 | $500,000 | $0 | $560,274 | $490,274 |
| 2015 | $61,134 | $500,000 | $0 | $561,134 | $561,134 |
| 2014 | $56,211 | $500,000 | $0 | $556,211 | $556,211 |
| 2013 | $57,165 | $482,040 | $0 | $539,205 | $539,205 |
| 2012 | $58,119 | $482,040 | $0 | $540,159 | $540,159 |
| 2011 | $59,072 | $482,040 | $0 | $541,112 | $541,112 |
| 2010 | $63,601 | $482,040 | $0 | $545,641 | $545,641 |
| 2009 | $66,544 | $602,550 | $0 | $669,094 | $669,094 |
| 2008 | $67,282 | $630,360 | $0 | $697,642 | $697,642 |
| 2007 | $68,315 | $630,360 | $0 | $698,675 | $698,675 |
Deed and Sales History
| 1 | 09/28/2018 | BARGSLD | Bargain And Sale Deed | POSZ TRUSTEE, RAY C | DOOLITTLE FAMILY LLC | | | $630,000.00 | 36136 | 4452721 |
| 2 | 06/09/2017 | BARGSLD | Bargain And Sale Deed | POSZ TRUSTEE, RAY C | POSZ TRUSTEE, RAY C | | | $0.00 | 29679 | 4424009 |
| 3 | 09/19/2012 | WD | Warranty Deed | POSZ TRUSTEE, RAY C | POSZ TRUSTEE, RAY C | | | $0.00 | 9060 | 4324401 |
| 4 | 09/19/2012 | WD | Warranty Deed | POSZ, RAY C | POSZ TRUSTEE, RAY C | | | $0.00 | 8932 | 4323524 |
Payout Agreement
| No payout information available.. |