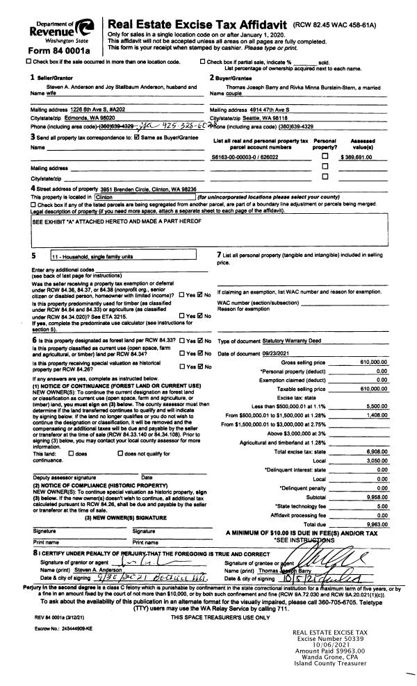
Property
Account |
| Property ID: | 369372 | Abbreviated Legal Description: | SANDY HOOK LOT 97 BLK 8 |
| Geographic ID: | S8075-00-08097-0 | Agent Code: | |
| Type: | Real | | |
| Tax Area: | 710 - APPRAISER-S Whid Schl Dist, outside Langley, improved & 1 acre or less | Land Use Code | 11 |
| Open Space: | N | DFL | N |
| Historic Property: | N | Remodel Property: | N |
| Multi-Family Redevelopment: | N | | |
| Township: | | Section: | |
| Range: | |
Location |
| Address: | 8118 SANDY HOOK DR CLINTON, WA 98236 | Mapsco: | |
| Neighborhood: | Cycle 4 | Map ID: | 710 |
| Neighborhood CD: | 4 |
Owner |
| Name: | SANDY HOOK DRIVE, LLC | Owner ID: | 200913 |
| Mailing Address: | 11729 NE 118TH ST UNIT#535 KIRKLAND, WA 98034 | % Ownership: | 100.0000000000% |
| | | Exemptions: | |
Taxes and Assessment Details
Values
| (+) Improvement Homesite Value: | + | $0 | |
| (+) Improvement Non-Homesite Value: | + | $435,520 | |
| (+) Land Homesite Value: | + | $0 | |
| (+) Land Non-Homesite Value: | + | $950,000 | |
| (+) Curr Use (HS): | + | $0 | $0 |
| (+) Curr Use (NHS): | + | $0 | $0 |
| | | -------------------------- | |
| (=) Market Value: | = | $1,385,520 | |
| (–) Productivity Loss: | – | $0 | |
| | | -------------------------- | |
| (=) Subtotal: | = | $1,385,520 | |
| (+) Senior Appraised Value: | + | $0 | |
| (+) Non-Senior Appraised Value: | + | $1,385,520 | |
| | | -------------------------- | |
| (=) Total Appraised Value: | = | $1,385,520 | |
| (–) Senior Exemption Loss: | – | $0 | |
| (–) Exemption Loss: | – | $0 | |
| | | -------------------------- | |
| (=) Taxable Value: | = | $1,385,520 | |
Taxing Jurisdiction
| Owner: | SANDY HOOK DRIVE, LLC | | |
| % Ownership: | 100.0000000000% | | |
| Total Value: | $1,385,520 | | |
| Tax Area: | 710 - APPRAISER-S Whid Schl Dist, outside Langley, improved & 1 acre or less |
| CF | Conservation Futures | 0.0316035091 | $1,385,520 | $1,385,520 | $43.79 | | |
| FIRE3 | Fire & Rescue Dist #3 S Whidbey GEN | 1.2004855531 | $1,385,520 | $1,385,520 | $1,663.30 | | |
| HOBOND | Hospital BOND | 0.1910887512 | $1,385,520 | $1,385,520 | $264.76 | | |
| HOGEN | Hospital GEN | 0.3902502903 | $1,385,520 | $1,385,520 | $540.70 | | |
| CE | County Current Expense | 0.3708482477 | $1,385,520 | $1,385,520 | $513.82 | | |
| CR | County Roads | 0.4584763726 | $1,385,520 | $1,385,520 | $635.23 | | |
| ISLANDEMS | Hospital GEN (EMS) | 0.5000000000 | $1,385,520 | $1,385,520 | $692.76 | | |
| LIB | Library Sno-Isle GEN | 0.3153421757 | $1,385,520 | $1,385,520 | $436.91 | | |
| PORTWHID | Port of S Whidbey GEN | 0.1094540357 | $1,385,520 | $1,385,520 | $151.65 | | |
| SCH206BOND | School 206 BOND | 0.3161759235 | $1,385,520 | $1,385,520 | $438.07 | | |
| SCH206MO | School 206 Enrichment | 0.4547169547 | $1,385,520 | $1,385,520 | $630.02 | | |
| ST | State School | 1.3035497053 | $1,385,520 | $1,385,520 | $1,806.09 | | |
| ST2 | State School Part 2 | 0.8169543533 | $1,385,520 | $1,385,520 | $1,131.91 | | |
| SWHIDPRBD | P & R S Whidbey BOND | 0.0152817568 | $1,385,520 | $1,385,520 | $21.17 | | |
| SWHIDPRBD2 | P & R S Whidbey BOND2 | 0.0138911264 | $1,385,520 | $1,385,520 | $19.25 | | |
| SWHIDPRMT | P & R S Whidbey GEN | 0.2053334452 | $1,385,520 | $1,385,520 | $284.49 | | |
| | Total Tax Rate: | 6.6934522006 | | | | | |
| | | | | Taxes w/Current Exemptions: | $9,273.92 | | |
| | | | | Taxes w/o Exemptions: | $9,273.92 | | |
Improvement / Building
| Improvement #1: | RESIDENTIAL | State Code: | Y | 3015.6 sqft | Value: | $435,520 |
| Bathrooms: | 3 | Bedrooms: | 3 | | Ceiling: | DRYWALL PAINTED | Exterior Wall/Cover: | WOOD SIDING | | Floor Covering: | CARPET 100% | Floor Structure: | WOOD W/SUBFLOOR | | Foundation: | CONCRETE | Heating: | FHA OIL | | Interior Finish: | DRYWALL PAINT | Plumbing Fixture Cnt: | 12 | | Roof Slope: | FLAT | Roof Structure/Cover: | CJ BUILT-UP ROCK |
|
| | Type | Description | Class CD | Sub Class CD | Year Built | Area |
| | BAS | BASE/MAIN FLOOR | 4 | 0 | 1965 | 2184.0 |
| | OWR | OPEN WOOD PORCH W/STEPS/ROOF | 4 | 0 | 1965 | 630.9 |
| | OP4 | OPEN PORCH W/CEILING-ROOF | 4 | 0 | 1965 | 73.1 |
| | AGR | ATTACHED GARAGE | 4 | 0 | 1965 | 456.0 |
| | UPS | UPPER STORY | 4 | 0 | 1965 | 831.6 |
| | OWP | OPEN WOOD PORCH W/STEPS | 4 | 0 | 1965 | 192.0 |
| | OP2 | OPEN PORCH W/STEPS | 4 | 0 | 1965 | 240.0 |
| | OP4 | OPEN PORCH W/CEILING-ROOF | 4 | 0 | 1965 | 42.0 |
Sketch
| No sketches available for this property. |
Property Image
Land
| 1 | LB | LOW BANK | 0.0000 | 0.00 | 60.00 | 0.00 | 1.00 | $950,000 | $0 |
Roll Value History
| 2026 | N/A | N/A | N/A | N/A | N/A |
| 2025 | $435,520 | $950,000 | $0 | $1,385,520 | $1,385,520 |
| 2024 | $422,685 | $900,000 | $0 | $1,322,685 | $1,322,685 |
| 2023 | $428,380 | $850,000 | $0 | $1,278,380 | $1,278,380 |
| 2022 | $393,055 | $700,000 | $0 | $1,093,055 | $1,093,055 |
| 2021 | $346,262 | $650,000 | $0 | $996,262 | $996,262 |
| 2020 | $300,786 | $650,000 | $0 | $950,786 | $950,786 |
| 2019 | $235,760 | $700,000 | $0 | $935,760 | $935,760 |
| 2018 | $236,587 | $600,000 | $0 | $836,587 | $836,587 |
| 2017 | $238,178 | $500,000 | $0 | $738,178 | $738,178 |
| 2016 | $241,486 | $500,000 | $0 | $741,486 | $741,486 |
| 2015 | $244,795 | $500,000 | $0 | $744,795 | $744,795 |
| 2014 | $206,199 | $500,000 | $0 | $706,199 | $706,199 |
| 2013 | $210,402 | $482,040 | $0 | $692,442 | $692,442 |
| 2012 | $213,837 | $482,040 | $0 | $695,877 | $695,877 |
| 2011 | $217,275 | $482,040 | $0 | $699,315 | $699,315 |
| 2010 | $239,018 | $482,040 | $0 | $721,058 | $721,058 |
| 2009 | $246,229 | $602,550 | $0 | $848,779 | $848,779 |
| 2008 | $221,948 | $630,360 | $0 | $852,308 | $852,308 |
| 2007 | $225,447 | $630,360 | $0 | $855,807 | $855,807 |
Deed and Sales History
| 1 | 12/29/2008 | QCD | Quit Claim Deed | LOSCHER, WILLIAM R | SANDY HOOK DRIVE, LLC, | | | $0.00 | 90024 | 42452287 |
| 2 | 02/04/2000 | OTHER | Other - Misc. Documents | LOSCHER, MARY L | LOSCHER, WILLIAM R | | | $0.00 | 68573 | 98011426 |
| 3 | 07/01/1989 | PRD | Personal Representatives Deed | BORTON, IVA | LOSCHER, MARY L | | | $0.00 | 93313 | 89011142 |
| 4 | 07/01/1989 | QCD | Quit Claim Deed | LOSCHER, MARY L | LOSCHER, MARY L | | | $0.00 | 93314 | 89011143 |
| 5 | 06/01/1980 | EZ | Easement | ODLE, LAWRENCE L | BORTON, IVA | | | $200,000.00 | 1985 | 369883 |
| 6 | 01/01/1900 | OTHER | Other - Misc. Documents | Unknown | ODLE, LAWRENCE L | | | $0.00 | 0 | 0 |
Payout Agreement
| No payout information available.. |