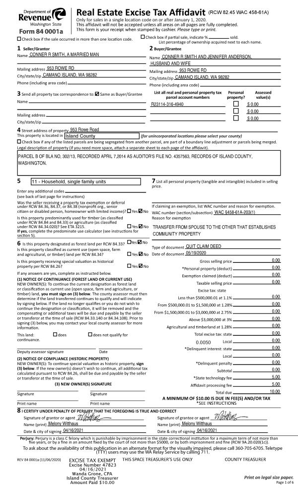
Property
Account |
| Property ID: | 369498 | Abbreviated Legal Description: | SANDY HOOK LOT 109 BLK 8 |
| Geographic ID: | S8075-00-08109-0 | Agent Code: | |
| Type: | Real | | |
| Tax Area: | 710 - APPRAISER-S Whid Schl Dist, outside Langley, improved & 1 acre or less | Land Use Code | 11 |
| Open Space: | N | DFL | N |
| Historic Property: | N | Remodel Property: | N |
| Multi-Family Redevelopment: | N | | |
| Township: | | Section: | |
| Range: | |
Location |
| Address: | 8170 SANDY HOOK DR CLINTON, WA 98236 | Mapsco: | |
| Neighborhood: | Cycle 4 | Map ID: | 710 |
| Neighborhood CD: | 4 |
Owner |
| Name: | PAIGE, KEITH T | Owner ID: | 100023 |
| Mailing Address: | CECILIA F PAIGE 6353 84TH AVE SE MERCER ISLAND, WA 98040-4940 | % Ownership: | 100.0000000000% |
| | | Exemptions: | |
Taxes and Assessment Details
Values
| (+) Improvement Homesite Value: | + | $0 | |
| (+) Improvement Non-Homesite Value: | + | $224,517 | |
| (+) Land Homesite Value: | + | $0 | |
| (+) Land Non-Homesite Value: | + | $950,000 | |
| (+) Curr Use (HS): | + | $0 | $0 |
| (+) Curr Use (NHS): | + | $0 | $0 |
| | | -------------------------- | |
| (=) Market Value: | = | $1,174,517 | |
| (–) Productivity Loss: | – | $0 | |
| | | -------------------------- | |
| (=) Subtotal: | = | $1,174,517 | |
| (+) Senior Appraised Value: | + | $0 | |
| (+) Non-Senior Appraised Value: | + | $1,174,517 | |
| | | -------------------------- | |
| (=) Total Appraised Value: | = | $1,174,517 | |
| (–) Senior Exemption Loss: | – | $0 | |
| (–) Exemption Loss: | – | $0 | |
| | | -------------------------- | |
| (=) Taxable Value: | = | $1,174,517 | |
Taxing Jurisdiction
| Owner: | PAIGE, KEITH T | | |
| % Ownership: | 100.0000000000% | | |
| Total Value: | $1,174,517 | | |
| Tax Area: | 710 - APPRAISER-S Whid Schl Dist, outside Langley, improved & 1 acre or less |
| CF | Conservation Futures | 0.0316035091 | $1,174,517 | $1,174,517 | $37.12 | | |
| FIRE3 | Fire & Rescue Dist #3 S Whidbey GEN | 1.2004855531 | $1,174,517 | $1,174,517 | $1,409.99 | | |
| HOBOND | Hospital BOND | 0.1910887512 | $1,174,517 | $1,174,517 | $224.44 | | |
| HOGEN | Hospital GEN | 0.3902502903 | $1,174,517 | $1,174,517 | $458.36 | | |
| CE | County Current Expense | 0.3708482477 | $1,174,517 | $1,174,517 | $435.57 | | |
| CR | County Roads | 0.4584763726 | $1,174,517 | $1,174,517 | $538.49 | | |
| ISLANDEMS | Hospital GEN (EMS) | 0.5000000000 | $1,174,517 | $1,174,517 | $587.26 | | |
| LIB | Library Sno-Isle GEN | 0.3153421757 | $1,174,517 | $1,174,517 | $370.37 | | |
| PORTWHID | Port of S Whidbey GEN | 0.1094540357 | $1,174,517 | $1,174,517 | $128.56 | | |
| SCH206BOND | School 206 BOND | 0.3161759235 | $1,174,517 | $1,174,517 | $371.35 | | |
| SCH206MO | School 206 Enrichment | 0.4547169547 | $1,174,517 | $1,174,517 | $534.07 | | |
| ST | State School | 1.3035497053 | $1,174,517 | $1,174,517 | $1,531.04 | | |
| ST2 | State School Part 2 | 0.8169543533 | $1,174,517 | $1,174,517 | $959.53 | | |
| SWHIDPRBD | P & R S Whidbey BOND | 0.0152817568 | $1,174,517 | $1,174,517 | $17.95 | | |
| SWHIDPRBD2 | P & R S Whidbey BOND2 | 0.0138911264 | $1,174,517 | $1,174,517 | $16.32 | | |
| SWHIDPRMT | P & R S Whidbey GEN | 0.2053334452 | $1,174,517 | $1,174,517 | $241.17 | | |
| | Total Tax Rate: | 6.6934522006 | | | | | |
| | | | | Taxes w/Current Exemptions: | $7,861.59 | | |
| | | | | Taxes w/o Exemptions: | $7,861.59 | | |
Improvement / Building
| Improvement #1: | RESIDENTIAL | State Code: | Y | 1176.0 sqft | Value: | $224,517 |
| Bathrooms: | 2 | Bedrooms: | 3 | | Ceiling: | BEAM PAINTED | Exterior Wall/Cover: | WOOD SIDING | | Floor Covering: | CARPET/VINYL 80-20 | Floor Structure: | WOOD W/SUBFLOOR | | Foundation: | CONCRETE | Heating: | BASEBOARD ELECTRIC | | Interior Finish: | DRYWALL PAINT | Plumbing Fixture Cnt: | 8 | | Roof Slope: | 5" IN 12" | Roof Structure/Cover: | BEAM ALUMINUM HEAVY |
|
| | Type | Description | Class CD | Sub Class CD | Year Built | Area |
| | BAS | BASE/MAIN FLOOR | 3 | 0 | 1968 | 1176.0 |
| | AGR | ATTACHED GARAGE | 3 | 0 | 1968 | 484.0 |
| | OWR | OPEN WOOD PORCH W/STEPS/ROOF | 3 | 0 | 1968 | 318.0 |
| | OWP | OPEN WOOD PORCH W/STEPS | 3 | 0 | 1968 | 190.0 |
Sketch
Property Image
Land
| 1 | LB | LOW BANK | 0.5800 | 25264.80 | 60.00 | 0.00 | 1.00 | $950,000 | $0 |
Roll Value History
| 2026 | N/A | N/A | N/A | N/A | N/A |
| 2025 | $224,517 | $950,000 | $0 | $1,174,517 | $1,174,517 |
| 2024 | $228,246 | $900,000 | $0 | $1,128,246 | $1,128,246 |
| 2023 | $231,404 | $850,000 | $0 | $1,081,404 | $1,081,404 |
| 2022 | $212,404 | $700,000 | $0 | $912,404 | $912,404 |
| 2021 | $187,176 | $650,000 | $0 | $837,176 | $837,176 |
| 2020 | $132,621 | $650,000 | $0 | $782,621 | $782,621 |
| 2019 | $93,926 | $700,000 | $0 | $793,926 | $793,926 |
| 2018 | $94,298 | $600,000 | $0 | $694,298 | $694,298 |
| 2017 | $95,040 | $500,000 | $0 | $595,040 | $595,040 |
| 2016 | $96,526 | $500,000 | $0 | $596,526 | $596,526 |
| 2015 | $98,010 | $500,000 | $0 | $598,010 | $598,010 |
| 2014 | $98,911 | $500,000 | $0 | $598,911 | $598,911 |
| 2013 | $101,386 | $482,040 | $0 | $583,426 | $583,426 |
| 2012 | $102,847 | $482,040 | $0 | $584,887 | $584,887 |
| 2011 | $104,308 | $482,040 | $0 | $586,348 | $586,348 |
| 2010 | $112,238 | $482,040 | $0 | $594,278 | $594,278 |
| 2009 | $117,411 | $602,550 | $0 | $719,961 | $719,961 |
| 2008 | $119,269 | $630,360 | $0 | $749,629 | $749,629 |
| 2007 | $121,211 | $630,360 | $0 | $751,571 | $751,571 |
Deed and Sales History
| 1 | 10/20/2005 | WD | Warranty Deed | BORROWS, WILLIAM R | PAIGE, KEITH T | | | $700,000.00 | 55457 | 4152497 |
| 2 | 01/01/1900 | OTHER | Other - Misc. Documents | Unknown | BORROWS, WILLIAM R | | | $0.00 | 0 | 0 |
Payout Agreement
| No payout information available.. |