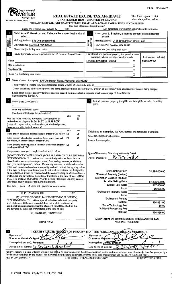
Property
Account |
| Property ID: | 369979 | Abbreviated Legal Description: | SANDY PT LOT 39 BLK 1 TGW PT ADJ VAC POTLATCH AVE TGW & SUB EZ AF#92016314 |
| Geographic ID: | S8080-00-01039-0 | Agent Code: | |
| Type: | Real | | |
| Tax Area: | 710 - APPRAISER-S Whid Schl Dist, outside Langley, improved & 1 acre or less | Land Use Code | 11 |
| Open Space: | N | DFL | N |
| Historic Property: | N | Remodel Property: | N |
| Multi-Family Redevelopment: | N | | |
| Township: | | Section: | |
| Range: | |
Location |
| Address: | 4821 POTLATCH WALK LANGLEY, WA 98260 | Mapsco: | |
| Neighborhood: | Cycle 4 | Map ID: | 722 |
| Neighborhood CD: | 4 |
Owner |
| Name: | JOHNSON, ROBERT M | Owner ID: | 282828 |
| Mailing Address: | ALEX M JOHNSON 6325 20TH AVE NE SEATTLE, WA 98115 | % Ownership: | 100.0000000000% |
| | | Exemptions: | |
Taxes and Assessment Details
Values
| (+) Improvement Homesite Value: | + | $0 | |
| (+) Improvement Non-Homesite Value: | + | $218,073 | |
| (+) Land Homesite Value: | + | $0 | |
| (+) Land Non-Homesite Value: | + | $540,000 | |
| (+) Curr Use (HS): | + | $0 | $0 |
| (+) Curr Use (NHS): | + | $0 | $0 |
| | | -------------------------- | |
| (=) Market Value: | = | $758,073 | |
| (–) Productivity Loss: | – | $0 | |
| | | -------------------------- | |
| (=) Subtotal: | = | $758,073 | |
| (+) Senior Appraised Value: | + | $0 | |
| (+) Non-Senior Appraised Value: | + | $758,073 | |
| | | -------------------------- | |
| (=) Total Appraised Value: | = | $758,073 | |
| (–) Senior Exemption Loss: | – | $0 | |
| (–) Exemption Loss: | – | $0 | |
| | | -------------------------- | |
| (=) Taxable Value: | = | $758,073 | |
Taxing Jurisdiction
| Owner: | JOHNSON, ROBERT M | | |
| % Ownership: | 100.0000000000% | | |
| Total Value: | $758,073 | | |
| Tax Area: | 710 - APPRAISER-S Whid Schl Dist, outside Langley, improved & 1 acre or less |
| CF | Conservation Futures | 0.0316035091 | $758,073 | $758,073 | $23.96 | | |
| FIRE3 | Fire & Rescue Dist #3 S Whidbey GEN | 1.2004855531 | $758,073 | $758,073 | $910.06 | | |
| HOBOND | Hospital BOND | 0.1910887512 | $758,073 | $758,073 | $144.86 | | |
| HOGEN | Hospital GEN | 0.3902502903 | $758,073 | $758,073 | $295.84 | | |
| CE | County Current Expense | 0.3708482477 | $758,073 | $758,073 | $281.13 | | |
| CR | County Roads | 0.4584763726 | $758,073 | $758,073 | $347.56 | | |
| ISLANDEMS | Hospital GEN (EMS) | 0.5000000000 | $758,073 | $758,073 | $379.04 | | |
| LIB | Library Sno-Isle GEN | 0.3153421757 | $758,073 | $758,073 | $239.05 | | |
| PORTWHID | Port of S Whidbey GEN | 0.1094540357 | $758,073 | $758,073 | $82.97 | | |
| SCH206BOND | School 206 BOND | 0.3161759235 | $758,073 | $758,073 | $239.68 | | |
| SCH206MO | School 206 Enrichment | 0.4547169547 | $758,073 | $758,073 | $344.71 | | |
| ST | State School | 1.3035497053 | $758,073 | $758,073 | $988.19 | | |
| ST2 | State School Part 2 | 0.8169543533 | $758,073 | $758,073 | $619.31 | | |
| SWHIDPRBD | P & R S Whidbey BOND | 0.0152817568 | $758,073 | $758,073 | $11.58 | | |
| SWHIDPRBD2 | P & R S Whidbey BOND2 | 0.0138911264 | $758,073 | $758,073 | $10.53 | | |
| SWHIDPRMT | P & R S Whidbey GEN | 0.2053334452 | $758,073 | $758,073 | $155.66 | | |
| | Total Tax Rate: | 6.6934522006 | | | | | |
| | | | | Taxes w/Current Exemptions: | $5,074.13 | | |
| | | | | Taxes w/o Exemptions: | $5,074.13 | | |
Improvement / Building
| Improvement #1: | RESIDENTIAL | State Code: | Y | 1420.0 sqft | Value: | $218,073 |
| Bathrooms: | 2 | Bedrooms: | 2 | | Ceiling: | ACOUSTIC FURRED | Exterior Wall/Cover: | WOOD SIDING | | Floor Covering: | HARDWOOD 100% | Floor Structure: | WOOD W/SUBFLOOR | | Foundation: | CONCRETE | Heating: | BASEBOARD ELECTRIC | | Interior Finish: | DRYWALL PAINT | Plumbing Fixture Cnt: | 9 | | Roof Slope: | 8" IN 12" | Roof Structure/Cover: | CJ ASPHALT |
|
| | Type | Description | Class CD | Sub Class CD | Year Built | Area |
| | BAS | BASE/MAIN FLOOR | 3 | 0 | 1930 | 884.0 |
| | UPS | UPPER STORY | 3 | 0 | 1930 | 536.0 |
| | OWP | OPEN WOOD PORCH W/STEPS | 3 | 0 | 1930 | 14.4 |
| | ENP | ENCLOSED PORCH | 3 | 0 | 1930 | 32.0 |
| | OWP | OPEN WOOD PORCH W/STEPS | 3 | 0 | 1930 | 387.0 |
| | OWP | OPEN WOOD PORCH W/STEPS | 3 | 0 | 1930 | 260.0 |
| | oUTI | UTILITY | 3 | 0 | 1930 | 192.0 |
Sketch
Property Image
Land
| 1 | 12 | SQ (00000-06000) | 0.0000 | 0.00 | 0.00 | 0.00 | 1.00 | $540,000 | $0 |
Roll Value History
| 2026 | N/A | N/A | N/A | N/A | N/A |
| 2025 | $218,073 | $540,000 | $0 | $758,073 | $758,073 |
| 2024 | $225,215 | $540,000 | $0 | $765,215 | $765,215 |
| 2023 | $228,220 | $540,000 | $0 | $768,220 | $768,220 |
| 2022 | $209,564 | $510,000 | $0 | $719,564 | $719,564 |
| 2021 | $184,853 | $425,000 | $0 | $609,853 | $609,853 |
| 2020 | $127,953 | $425,000 | $0 | $552,953 | $552,953 |
| 2019 | $93,143 | $450,000 | $0 | $543,143 | $543,143 |
| 2018 | $93,547 | $385,000 | $0 | $478,547 | $478,547 |
| 2017 | $94,355 | $385,000 | $0 | $479,355 | $479,355 |
| 2016 | $95,976 | $385,000 | $0 | $480,976 | $480,976 |
| 2015 | $97,595 | $385,000 | $0 | $482,595 | $193,038 |
| 2014 | $84,704 | $346,500 | $0 | $431,204 | $431,204 |
| 2013 | $86,285 | $346,500 | $0 | $432,785 | $432,785 |
| 2012 | $87,866 | $346,500 | $0 | $434,366 | $434,366 |
| 2011 | $89,447 | $385,000 | $0 | $474,447 | $474,447 |
| 2010 | $102,610 | $385,000 | $0 | $487,610 | $487,610 |
| 2009 | $105,957 | $414,000 | $0 | $519,957 | $519,957 |
| 2008 | $95,034 | $460,000 | $0 | $555,034 | $555,034 |
| 2007 | $96,605 | $460,000 | $0 | $556,605 | $556,605 |
Deed and Sales History
| 1 | 10/31/2017 | QCD | Quit Claim Deed | JOHNSON, ROBERT M | JOHNSON, ROBERT M | | | $0.00 | 31832 | 4433697 |
| 2 | 10/31/2017 | QCD | Quit Claim Deed | JOHNSON, ROBERT M | JOHNSON, ROBERT M | | | $0.00 | 31831 | 4433696 |
| 3 | 11/02/2017 | PRD | Personal Representatives Deed | JOHNSON, DAVID M | JOHNSON, ROBERT M | | | $0.00 | 31833 | 4433698 |
| 4 | 12/01/1989 | DECREE | Divorce Decree/Legal Separation | JOHNSON, DAVID M | JOHNSON, DAVID M | | | $0.00 | 1543 | 90004996 |
| 5 | 08/01/1982 | EXECUTORD | Executor Deed | FARQUHARSON, WALLACE R | JOHNSON, DAVID M | | | $61,000.00 | 21866 | 399158 |
| 6 | 01/01/1900 | OTHER | Other - Misc. Documents | Unknown | FARQUHARSON, WALLACE R | | | $0.00 | 0 | 0 |
Payout Agreement
| No payout information available.. |