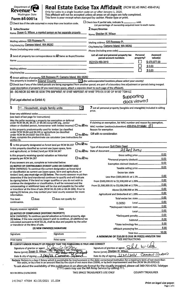
Property
Account |
| Property ID: | 370011 | Abbreviated Legal Description: | SANDY PT LOT 2 BLK 2 EX: BG SWCR SD LOT 2 BLK 2 N3*E99.41' N86*W12.05' S3*E100' TPB |
| Geographic ID: | S8080-00-02002-0 | Agent Code: | |
| Type: | Real | | |
| Tax Area: | 710 - APPRAISER-S Whid Schl Dist, outside Langley, improved & 1 acre or less | Land Use Code | 11 |
| Open Space: | N | DFL | N |
| Historic Property: | N | Remodel Property: | N |
| Multi-Family Redevelopment: | N | | |
| Township: | | Section: | |
| Range: | |
Location |
| Address: | 4276 WHALE WALK LANGLEY, WA 98260 | Mapsco: | |
| Neighborhood: | Cycle 4 | Map ID: | 722 |
| Neighborhood CD: | 4 |
Owner |
| Name: | WEGLEY, REESE | Owner ID: | 278129 |
| Mailing Address: | TRACY COMELL 4820 NE 44TH ST SEATTLE, WA 98105-5120 | % Ownership: | 100.0000000000% |
| | | Exemptions: | |
Taxes and Assessment Details
Values
| (+) Improvement Homesite Value: | + | $0 | |
| (+) Improvement Non-Homesite Value: | + | $107,406 | |
| (+) Land Homesite Value: | + | $0 | |
| (+) Land Non-Homesite Value: | + | $700,000 | |
| (+) Curr Use (HS): | + | $0 | $0 |
| (+) Curr Use (NHS): | + | $0 | $0 |
| | | -------------------------- | |
| (=) Market Value: | = | $807,406 | |
| (–) Productivity Loss: | – | $0 | |
| | | -------------------------- | |
| (=) Subtotal: | = | $807,406 | |
| (+) Senior Appraised Value: | + | $0 | |
| (+) Non-Senior Appraised Value: | + | $807,406 | |
| | | -------------------------- | |
| (=) Total Appraised Value: | = | $807,406 | |
| (–) Senior Exemption Loss: | – | $0 | |
| (–) Exemption Loss: | – | $0 | |
| | | -------------------------- | |
| (=) Taxable Value: | = | $807,406 | |
Taxing Jurisdiction
| Owner: | WEGLEY, REESE | | |
| % Ownership: | 100.0000000000% | | |
| Total Value: | $807,406 | | |
| Tax Area: | 710 - APPRAISER-S Whid Schl Dist, outside Langley, improved & 1 acre or less |
| CF | Conservation Futures | 0.0316035091 | $807,406 | $807,406 | $25.52 | | |
| FIRE3 | Fire & Rescue Dist #3 S Whidbey GEN | 1.2004855531 | $807,406 | $807,406 | $969.28 | | |
| HOBOND | Hospital BOND | 0.1910887512 | $807,406 | $807,406 | $154.29 | | |
| HOGEN | Hospital GEN | 0.3902502903 | $807,406 | $807,406 | $315.09 | | |
| CE | County Current Expense | 0.3708482477 | $807,406 | $807,406 | $299.43 | | |
| CR | County Roads | 0.4584763726 | $807,406 | $807,406 | $370.18 | | |
| ISLANDEMS | Hospital GEN (EMS) | 0.5000000000 | $807,406 | $807,406 | $403.70 | | |
| LIB | Library Sno-Isle GEN | 0.3153421757 | $807,406 | $807,406 | $254.61 | | |
| PORTWHID | Port of S Whidbey GEN | 0.1094540357 | $807,406 | $807,406 | $88.37 | | |
| SCH206BOND | School 206 BOND | 0.3161759235 | $807,406 | $807,406 | $255.28 | | |
| SCH206MO | School 206 Enrichment | 0.4547169547 | $807,406 | $807,406 | $367.14 | | |
| ST | State School | 1.3035497053 | $807,406 | $807,406 | $1,052.49 | | |
| ST2 | State School Part 2 | 0.8169543533 | $807,406 | $807,406 | $659.61 | | |
| SWHIDPRBD | P & R S Whidbey BOND | 0.0152817568 | $807,406 | $807,406 | $12.34 | | |
| SWHIDPRBD2 | P & R S Whidbey BOND2 | 0.0138911264 | $807,406 | $807,406 | $11.22 | | |
| SWHIDPRMT | P & R S Whidbey GEN | 0.2053334452 | $807,406 | $807,406 | $165.79 | | |
| | Total Tax Rate: | 6.6934522006 | | | | | |
| | | | | Taxes w/Current Exemptions: | $5,404.34 | | |
| | | | | Taxes w/o Exemptions: | $5,404.34 | | |
Improvement / Building
| Improvement #1: | RESIDENTIAL | State Code: | Y | 704.0 sqft | Value: | $107,406 |
| Bathrooms: | 1 | Bedrooms: | 2 | | Ceiling: | BEAM PAINTED | Exterior Wall/Cover: | SHINGLE | | Floor Covering: | SOFTWOOD/VINYL 80-20 | Floor Structure: | WOOD W/SUBFLOOR | | Foundation: | CONCRETE | Heating: | WALL HEAT ELECTRIC | | Interior Finish: | DRYWALL PAINT | Plumbing Fixture Cnt: | 5 | | Roof Slope: | 8" IN 12" | Roof Structure/Cover: | CJ ASPHALT |
|
| | Type | Description | Class CD | Sub Class CD | Year Built | Area |
| | BAS | BASE/MAIN FLOOR | 3 | 0 | 1918 | 704.0 |
| | OWP | OPEN WOOD PORCH W/STEPS | 3 | 0 | 1918 | 319.0 |
Sketch
Property Image
Land
| 1 | LB | LOW BANK | 0.0000 | 0.00 | 55.00 | 0.00 | 1.00 | $700,000 | $0 |
Roll Value History
| 2026 | N/A | N/A | N/A | N/A | N/A |
| 2025 | $107,406 | $700,000 | $0 | $807,406 | $807,406 |
| 2024 | $107,250 | $700,000 | $0 | $807,250 | $807,250 |
| 2023 | $108,919 | $700,000 | $0 | $808,919 | $808,919 |
| 2022 | $100,138 | $700,000 | $0 | $800,138 | $800,138 |
| 2021 | $88,391 | $650,000 | $0 | $738,391 | $738,391 |
| 2020 | $82,472 | $650,000 | $0 | $732,472 | $732,472 |
| 2019 | $58,308 | $650,000 | $0 | $708,308 | $708,308 |
| 2018 | $58,528 | $600,000 | $0 | $658,528 | $658,528 |
| 2017 | $58,968 | $600,000 | $0 | $658,968 | $658,968 |
| 2016 | $59,849 | $600,000 | $0 | $659,849 | $659,849 |
| 2015 | $60,728 | $600,000 | $0 | $660,728 | $660,728 |
| 2014 | $53,883 | $726,078 | $0 | $779,961 | $779,961 |
| 2013 | $54,739 | $726,078 | $0 | $780,817 | $780,817 |
| 2012 | $55,593 | $726,078 | $0 | $781,671 | $781,671 |
| 2011 | $56,450 | $726,078 | $0 | $782,528 | $782,528 |
| 2010 | $59,140 | $726,078 | $0 | $785,218 | $785,218 |
| 2009 | $61,786 | $772,423 | $0 | $834,209 | $834,209 |
| 2008 | $62,947 | $772,423 | $0 | $835,370 | $835,370 |
| 2007 | $91,985 | $744,246 | $0 | $836,231 | $836,231 |
Deed and Sales History
| 1 | 08/07/2025 | WD | Warranty Deed | WEGLEY, REESE | MEAD, ALETHIA | | | $795,000.00 | 64438 | 4589396 |
| 2 | 12/30/2016 | WD | Warranty Deed | ISEMAN, MARNEE P | WEGLEY, REESE | | | $625,000.00 | 27631 | 4414645 |
| 3 | 05/18/2010 | ESTSEPPROP | Establish Separate Property | ISEMAN, MARNEE P | ISEMAN, MARNEE P | | | $0.00 | 1382 | 4275071 |
| 4 | 07/27/1999 | BLA | DNU - Boundary Line Adjustment | ISEMAN, MARNEE P | ISEMAN, MARNEE P | | | $0.00 | 68382 | 99000868 |
| 5 | 09/23/1998 | DECREE | Divorce Decree/Legal Separation | ISEMAN, JOEL E | ISEMAN, MARNEE P | | | $0.00 | 84384 | 98023837 |
| 6 | 12/01/1989 | WD | Warranty Deed | DODGE, RAY W | ISEMAN, JOEL E | | | $85,000.00 | 95926 | 89019081 |
Payout Agreement
| No payout information available.. |