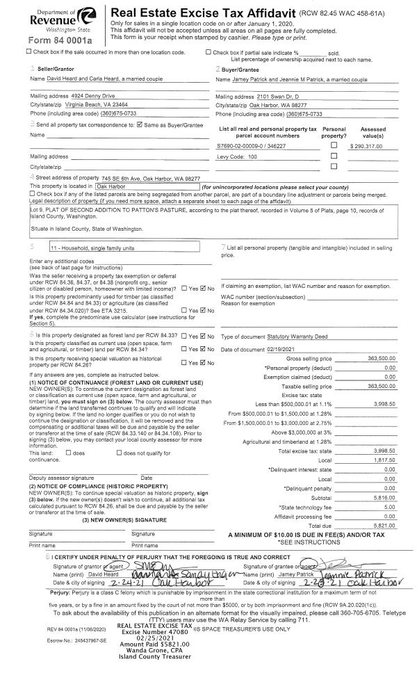
Property
Account |
| Property ID: | 370066 | Abbreviated Legal Description: | SANDY PT LOT 7 BLK 2 INCL ADJ VAC CREST AVE & BCH BLVD |
| Geographic ID: | S8080-00-02007-0 | Agent Code: | |
| Type: | Real | | |
| Tax Area: | 710 - APPRAISER-S Whid Schl Dist, outside Langley, improved & 1 acre or less | Land Use Code | 11 |
| Open Space: | N | DFL | N |
| Historic Property: | N | Remodel Property: | N |
| Multi-Family Redevelopment: | N | | |
| Township: | | Section: | |
| Range: | |
Location |
| Address: | 4296 WHALE WALK LANGLEY, WA 98260 | Mapsco: | |
| Neighborhood: | Cycle 4 | Map ID: | 722 |
| Neighborhood CD: | 4 |
Owner |
| Name: | NEWELL INVESTMENTS LLC | Owner ID: | 23378 |
| Mailing Address: | 4296 WHALE WALKE LANGLEY, WA 98260-9222 | % Ownership: | 100.0000000000% |
| | | Exemptions: | |
Taxes and Assessment Details
Values
| (+) Improvement Homesite Value: | + | $0 | |
| (+) Improvement Non-Homesite Value: | + | $278,305 | |
| (+) Land Homesite Value: | + | $0 | |
| (+) Land Non-Homesite Value: | + | $700,000 | |
| (+) Curr Use (HS): | + | $0 | $0 |
| (+) Curr Use (NHS): | + | $0 | $0 |
| | | -------------------------- | |
| (=) Market Value: | = | $978,305 | |
| (–) Productivity Loss: | – | $0 | |
| | | -------------------------- | |
| (=) Subtotal: | = | $978,305 | |
| (+) Senior Appraised Value: | + | $0 | |
| (+) Non-Senior Appraised Value: | + | $978,305 | |
| | | -------------------------- | |
| (=) Total Appraised Value: | = | $978,305 | |
| (–) Senior Exemption Loss: | – | $0 | |
| (–) Exemption Loss: | – | $0 | |
| | | -------------------------- | |
| (=) Taxable Value: | = | $978,305 | |
Taxing Jurisdiction
| Owner: | NEWELL INVESTMENTS LLC | | |
| % Ownership: | 100.0000000000% | | |
| Total Value: | $978,305 | | |
| Tax Area: | 710 - APPRAISER-S Whid Schl Dist, outside Langley, improved & 1 acre or less |
| CF | Conservation Futures | 0.0316035091 | $978,305 | $978,305 | $30.92 | | |
| FIRE3 | Fire & Rescue Dist #3 S Whidbey GEN | 1.2004855531 | $978,305 | $978,305 | $1,174.44 | | |
| HOBOND | Hospital BOND | 0.1910887512 | $978,305 | $978,305 | $186.94 | | |
| HOGEN | Hospital GEN | 0.3902502903 | $978,305 | $978,305 | $381.78 | | |
| CE | County Current Expense | 0.3708482477 | $978,305 | $978,305 | $362.80 | | |
| CR | County Roads | 0.4584763726 | $978,305 | $978,305 | $448.53 | | |
| ISLANDEMS | Hospital GEN (EMS) | 0.5000000000 | $978,305 | $978,305 | $489.15 | | |
| LIB | Library Sno-Isle GEN | 0.3153421757 | $978,305 | $978,305 | $308.50 | | |
| PORTWHID | Port of S Whidbey GEN | 0.1094540357 | $978,305 | $978,305 | $107.08 | | |
| SCH206BOND | School 206 BOND | 0.3161759235 | $978,305 | $978,305 | $309.32 | | |
| SCH206MO | School 206 Enrichment | 0.4547169547 | $978,305 | $978,305 | $444.85 | | |
| ST | State School | 1.3035497053 | $978,305 | $978,305 | $1,275.27 | | |
| ST2 | State School Part 2 | 0.8169543533 | $978,305 | $978,305 | $799.23 | | |
| SWHIDPRBD | P & R S Whidbey BOND | 0.0152817568 | $978,305 | $978,305 | $14.95 | | |
| SWHIDPRBD2 | P & R S Whidbey BOND2 | 0.0138911264 | $978,305 | $978,305 | $13.59 | | |
| SWHIDPRMT | P & R S Whidbey GEN | 0.2053334452 | $978,305 | $978,305 | $200.88 | | |
| | Total Tax Rate: | 6.6934522006 | | | | | |
| | | | | Taxes w/Current Exemptions: | $6,548.23 | | |
| | | | | Taxes w/o Exemptions: | $6,548.23 | | |
Improvement / Building
| Improvement #1: | RESIDENTIAL | State Code: | Y | 1768.0 sqft | Value: | $278,305 |
| Bathrooms: | 2 | Bedrooms: | 3 | | Ceiling: | BEAM PAINTED | Exterior Wall/Cover: | SHINGLE | | Floor Covering: | HARDWOOD/CARP 20-80 | Floor Structure: | WOOD W/SUBFLOOR | | Foundation: | WOOD BLOCKS | Heating: | BASEBOARD ELECTRIC | | Interior Finish: | DRYWALL PAINT | Plumbing Fixture Cnt: | 9 | | Roof Slope: | 4" IN 12" | Roof Structure/Cover: | BEAM WOOD SHAKES |
|
| | Type | Description | Class CD | Sub Class CD | Year Built | Area |
| | BAS | BASE/MAIN FLOOR | 4 | 0 | 1917 | 1036.0 |
| | UTY | STORAGE/UTILITY | 4 | 0 | 1917 | 216.0 |
| | UPS | UPPER STORY | 4 | 0 | 1917 | 732.0 |
| | OWP | OPEN WOOD PORCH W/STEPS | 4 | 0 | 1917 | 237.9 |
| | OWP | OPEN WOOD PORCH W/STEPS | 4 | 0 | 1917 | 276.0 |
| | OWR | OPEN WOOD PORCH W/STEPS/ROOF | 4 | 0 | 1917 | 216.0 |
| | OWC | OPEN WOOD PORCH W/STEPS/ROOF/C | 4 | 0 | 1917 | 68.0 |
| | OWP | OPEN WOOD PORCH W/STEPS | 4 | 0 | 1917 | 274.0 |
Sketch
Property Image
Land
| 1 | LB | LOW BANK | 0.0000 | 0.00 | 45.00 | 0.00 | 1.00 | $700,000 | $0 |
Roll Value History
| 2026 | N/A | N/A | N/A | N/A | N/A |
| 2025 | $278,305 | $700,000 | $0 | $978,305 | $978,305 |
| 2024 | $283,579 | $700,000 | $0 | $983,579 | $983,579 |
| 2023 | $287,859 | $700,000 | $0 | $987,859 | $987,859 |
| 2022 | $264,536 | $700,000 | $0 | $964,536 | $964,536 |
| 2021 | $233,400 | $650,000 | $0 | $883,400 | $883,400 |
| 2020 | $195,594 | $650,000 | $0 | $845,594 | $845,594 |
| 2019 | $146,299 | $650,000 | $0 | $796,299 | $796,299 |
| 2018 | $146,896 | $600,000 | $0 | $746,896 | $746,896 |
| 2017 | $148,081 | $600,000 | $0 | $748,081 | $748,081 |
| 2016 | $150,471 | $600,000 | $0 | $750,471 | $750,471 |
| 2015 | $152,857 | $600,000 | $0 | $752,857 | $752,857 |
| 2014 | $108,839 | $669,526 | $0 | $778,365 | $778,365 |
| 2013 | $111,231 | $669,526 | $0 | $780,757 | $780,757 |
| 2012 | $113,625 | $669,526 | $0 | $783,151 | $783,151 |
| 2011 | $116,019 | $669,526 | $0 | $785,545 | $785,545 |
| 2010 | $133,221 | $669,526 | $0 | $802,747 | $802,747 |
| 2009 | $139,711 | $669,526 | $0 | $809,237 | $809,237 |
| 2008 | $118,568 | $669,526 | $0 | $788,094 | $788,094 |
| 2007 | $268,678 | $521,552 | $0 | $790,230 | $790,230 |
Deed and Sales History
| 1 | 02/03/2006 | WD | Warranty Deed | NEWELL, ROBERT J | NEWELL INVESTMENTS LLC, | | | $0.00 | 60949 | 4163881 |
| 2 | 02/01/1987 | QCD | Quit Claim Deed | NEWELL, ROBERT J | NEWELL, ROBERT J | | | $0.00 | 70420 | 87002659 |
| 3 | 04/01/1979 | OTHER | Other - Misc. Documents | Unknown | NEWELL, ROBERT J | | | $75,000.00 | 92491 | 352873 |
Payout Agreement
| No payout information available.. |