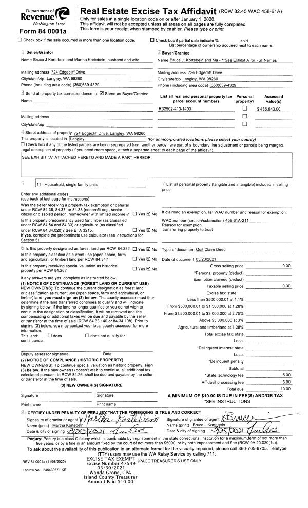
Property
Account |
| Property ID: | 370306 | Abbreviated Legal Description: | SANDY PT - LOT 27 BLK 2 & W10' LOT 29 BLK 2 & PT LT 29 LY NLY FR LN DRAWN @ R/A TO WLN SD LOT PARL/W & 5'S FR S EDGE HOUSE, E TO INTER ELN LOT 27 BLK 2 (IS CO SUP COURT CASE 4364) TGW E24' OF W34' LOT 29 BLK 2 |
| Geographic ID: | S8080-00-02027-0 | Agent Code: | |
| Type: | Real | | |
| Tax Area: | 710 - APPRAISER-S Whid Schl Dist, outside Langley, improved & 1 acre or less | Land Use Code | 11 |
| Open Space: | N | DFL | N |
| Historic Property: | N | Remodel Property: | N |
| Multi-Family Redevelopment: | N | | |
| Township: | | Section: | |
| Range: | |
Location |
| Address: | 4389 CREST AVE LANGLEY, WA 98260 | Mapsco: | |
| Neighborhood: | Cycle 4 | Map ID: | 722 |
| Neighborhood CD: | 4 |
Owner |
| Name: | FITZGERALD CAROL ELAND BARBARA MORISSEY, KATHARINE ANN, SHELIA, DAVID | Owner ID: | 136588 |
| Mailing Address: | MICHAEL G FITZGERALD 3319 E SHORE DR SEATTLE, WA 98112 | % Ownership: | 100.0000000000% |
| | | Exemptions: | |
Taxes and Assessment Details
Values
| (+) Improvement Homesite Value: | + | $0 | |
| (+) Improvement Non-Homesite Value: | + | $244,449 | |
| (+) Land Homesite Value: | + | $0 | |
| (+) Land Non-Homesite Value: | + | $540,000 | |
| (+) Curr Use (HS): | + | $0 | $0 |
| (+) Curr Use (NHS): | + | $0 | $0 |
| | | -------------------------- | |
| (=) Market Value: | = | $784,449 | |
| (–) Productivity Loss: | – | $0 | |
| | | -------------------------- | |
| (=) Subtotal: | = | $784,449 | |
| (+) Senior Appraised Value: | + | $0 | |
| (+) Non-Senior Appraised Value: | + | $784,449 | |
| | | -------------------------- | |
| (=) Total Appraised Value: | = | $784,449 | |
| (–) Senior Exemption Loss: | – | $0 | |
| (–) Exemption Loss: | – | $0 | |
| | | -------------------------- | |
| (=) Taxable Value: | = | $784,449 | |
Taxing Jurisdiction
| Owner: | FITZGERALD CAROL ELAND BARBARA MORISSEY, KATHARINE ANN, SHELIA, DAVID | | |
| % Ownership: | 100.0000000000% | | |
| Total Value: | $784,449 | | |
| Tax Area: | 710 - APPRAISER-S Whid Schl Dist, outside Langley, improved & 1 acre or less |
| CF | Conservation Futures | 0.0316035091 | $784,449 | $784,449 | $24.79 | | |
| FIRE3 | Fire & Rescue Dist #3 S Whidbey GEN | 1.2004855531 | $784,449 | $784,449 | $941.72 | | |
| HOBOND | Hospital BOND | 0.1910887512 | $784,449 | $784,449 | $149.90 | | |
| HOGEN | Hospital GEN | 0.3902502903 | $784,449 | $784,449 | $306.13 | | |
| CE | County Current Expense | 0.3708482477 | $784,449 | $784,449 | $290.91 | | |
| CR | County Roads | 0.4584763726 | $784,449 | $784,449 | $359.65 | | |
| ISLANDEMS | Hospital GEN (EMS) | 0.5000000000 | $784,449 | $784,449 | $392.22 | | |
| LIB | Library Sno-Isle GEN | 0.3153421757 | $784,449 | $784,449 | $247.37 | | |
| PORTWHID | Port of S Whidbey GEN | 0.1094540357 | $784,449 | $784,449 | $85.86 | | |
| SCH206BOND | School 206 BOND | 0.3161759235 | $784,449 | $784,449 | $248.02 | | |
| SCH206MO | School 206 Enrichment | 0.4547169547 | $784,449 | $784,449 | $356.70 | | |
| ST | State School | 1.3035497053 | $784,449 | $784,449 | $1,022.57 | | |
| ST2 | State School Part 2 | 0.8169543533 | $784,449 | $784,449 | $640.86 | | |
| SWHIDPRBD | P & R S Whidbey BOND | 0.0152817568 | $784,449 | $784,449 | $11.99 | | |
| SWHIDPRBD2 | P & R S Whidbey BOND2 | 0.0138911264 | $784,449 | $784,449 | $10.90 | | |
| SWHIDPRMT | P & R S Whidbey GEN | 0.2053334452 | $784,449 | $784,449 | $161.07 | | |
| | Total Tax Rate: | 6.6934522006 | | | | | |
| | | | | Taxes w/Current Exemptions: | $5,250.66 | | |
| | | | | Taxes w/o Exemptions: | $5,250.66 | | |
Improvement / Building
| Improvement #1: | RESIDENTIAL | State Code: | Y | 1672.0 sqft | Value: | $244,449 |
| Bathrooms: | 2 | Bedrooms: | 3 | | Ceiling: | BEAM PAINTED | Exterior Wall/Cover: | SHINGLE | | Floor Covering: | CARPET/VINYL 80-20 | Floor Structure: | WOOD W/SUBFLOOR | | Foundation: | CONCRETE | Heating: | FLOOR/WALL-OIL | | Interior Finish: | DRYWALL PAINT | Plumbing Fixture Cnt: | 10 | | Roof Slope: | 8" IN 12" | Roof Structure/Cover: | CJ ASPHALT |
|
| | Type | Description | Class CD | Sub Class CD | Year Built | Area |
| | BAS | BASE/MAIN FLOOR | 3 | 0 | 1942 | 1156.0 |
| | ATF | ATTIC FINISHED | 3 | 0 | 1942 | 240.0 |
| | UPS | UPPER STORY | 3 | 0 | 1942 | 516.0 |
| | OWP | OPEN WOOD PORCH W/STEPS | 3 | 0 | 1942 | 618.0 |
| | OWP | OPEN WOOD PORCH W/STEPS | 3 | 0 | 1942 | 216.0 |
Sketch
Property Image
Land
| 1 | 12 | SQ (00000-06000) | 0.0000 | 0.00 | 0.00 | 0.00 | 1.00 | $540,000 | $0 |
Roll Value History
| 2026 | N/A | N/A | N/A | N/A | N/A |
| 2025 | $244,449 | $540,000 | $0 | $784,449 | $784,449 |
| 2024 | $243,493 | $540,000 | $0 | $783,493 | $783,493 |
| 2023 | $246,863 | $540,000 | $0 | $786,863 | $786,863 |
| 2022 | $226,596 | $510,000 | $0 | $736,596 | $736,596 |
| 2021 | $199,691 | $425,000 | $0 | $624,691 | $624,691 |
| 2020 | $153,932 | $425,000 | $0 | $578,932 | $578,932 |
| 2019 | $113,107 | $450,000 | $0 | $563,107 | $563,107 |
| 2018 | $113,568 | $395,000 | $0 | $508,568 | $508,568 |
| 2017 | $114,492 | $395,000 | $0 | $509,492 | $509,492 |
| 2016 | $116,339 | $395,000 | $0 | $511,339 | $511,339 |
| 2015 | $118,185 | $395,000 | $0 | $513,185 | $513,185 |
| 2014 | $96,016 | $352,800 | $0 | $448,816 | $448,816 |
| 2013 | $97,905 | $352,800 | $0 | $450,705 | $450,705 |
| 2012 | $99,797 | $352,800 | $0 | $452,597 | $452,597 |
| 2011 | $101,688 | $392,000 | $0 | $493,688 | $493,688 |
| 2010 | $116,911 | $392,000 | $0 | $508,911 | $508,911 |
| 2009 | $120,356 | $425,000 | $0 | $545,356 | $545,356 |
| 2008 | $120,409 | $460,000 | $0 | $580,409 | $580,409 |
| 2007 | $122,315 | $460,000 | $0 | $582,315 | $582,315 |
Deed and Sales History
| 1 | 02/12/2010 | QCD | Quit Claim Deed | FITZGERALD CAROL ELAND BARBARA | FITZGERALD CAROL ELAND BARBARA | | | $0.00 | 1086 | 4273376 |
| 2 | 02/12/2010 | QCD | Quit Claim Deed | FITZGERALD, JOHN/MARY K | FITZGERALD CAROL ELAND BARBARA | | | $0.00 | 1085 | 4273375 |
| 3 | 01/01/1998 | QCD | Quit Claim Deed | FITZGERALD, JOHN/MARY K | FITZGERALD, JOHN/MARY K | | | $0.00 | 80405 | 98002021 |
| 4 | 01/01/1998 | QCD | Quit Claim Deed | FITZGERALD, JOHN/MARY K | FITZGERALD, JOHN/MARY K | | | $0.00 | 80406 | 98002022 |
| 5 | 01/01/1998 | QCD | Quit Claim Deed | FITZGERALD, JOHN | FITZGERALD, JOHN/MARY K | | | $0.00 | 80407 | 98002023 |
| 6 | 10/01/1962 | CD | DNU - Correction Deed | Unknown | FITZGERALD, JOHN | | | $0.00 | 59794 | 4364 |
Payout Agreement
| No payout information available.. |