Property
Account |
| Property ID: | 370324 | Abbreviated Legal Description: | SANDY PT - LOT 29 BLK 2 EX W10' & PT LOT 29 LY NLY FR LN DRAWN @ R/A TO WLN SD LOT PARL/W & 5'S FR S EDGE HOUSE, E TO INTER ELN LT 27 BLK 2 (IS CO SUP COURT CASE #4364) ALSO EX E24' OF W34' |
| Geographic ID: | S8080-00-02029-0 | Agent Code: | |
| Type: | Real | | |
| Tax Area: | 710 - APPRAISER-S Whid Schl Dist, outside Langley, improved & 1 acre or less | Land Use Code | 11 |
| Open Space: | N | DFL | N |
| Historic Property: | N | Remodel Property: | N |
| Multi-Family Redevelopment: | N | | |
| Township: | | Section: | |
| Range: | |
Location |
| Address: | 4341 WATEREDGE DR LANGLEY, WA 98260 | Mapsco: | |
| Neighborhood: | Cycle 4 | Map ID: | 722 |
| Neighborhood CD: | 4 |
Owner |
| Name: | T2SP LLC | Owner ID: | 317267 |
| Mailing Address: | 3816 41ST AVE NE SEATTLE, WA 98105 | % Ownership: | 100.0000000000% |
| | | Exemptions: | |
Taxes and Assessment Details
Values
| (+) Improvement Homesite Value: | + | $0 | |
| (+) Improvement Non-Homesite Value: | + | $204,246 | |
| (+) Land Homesite Value: | + | $0 | |
| (+) Land Non-Homesite Value: | + | $540,000 | |
| (+) Curr Use (HS): | + | $0 | $0 |
| (+) Curr Use (NHS): | + | $0 | $0 |
| | | -------------------------- | |
| (=) Market Value: | = | $744,246 | |
| (–) Productivity Loss: | – | $0 | |
| | | -------------------------- | |
| (=) Subtotal: | = | $744,246 | |
| (+) Senior Appraised Value: | + | $0 | |
| (+) Non-Senior Appraised Value: | + | $744,246 | |
| | | -------------------------- | |
| (=) Total Appraised Value: | = | $744,246 | |
| (–) Senior Exemption Loss: | – | $0 | |
| (–) Exemption Loss: | – | $0 | |
| | | -------------------------- | |
| (=) Taxable Value: | = | $744,246 | |
Taxing Jurisdiction
| Owner: | T2SP LLC | | |
| % Ownership: | 100.0000000000% | | |
| Total Value: | $744,246 | | |
| Tax Area: | 710 - APPRAISER-S Whid Schl Dist, outside Langley, improved & 1 acre or less |
| CF | Conservation Futures | 0.0316035091 | $744,246 | $744,246 | $23.52 | | |
| FIRE3 | Fire & Rescue Dist #3 S Whidbey GEN | 1.2004855531 | $744,246 | $744,246 | $893.46 | | |
| HOBOND | Hospital BOND | 0.1910887512 | $744,246 | $744,246 | $142.22 | | |
| HOGEN | Hospital GEN | 0.3902502903 | $744,246 | $744,246 | $290.44 | | |
| CE | County Current Expense | 0.3708482477 | $744,246 | $744,246 | $276.00 | | |
| CR | County Roads | 0.4584763726 | $744,246 | $744,246 | $341.22 | | |
| ISLANDEMS | Hospital GEN (EMS) | 0.5000000000 | $744,246 | $744,246 | $372.12 | | |
| LIB | Library Sno-Isle GEN | 0.3153421757 | $744,246 | $744,246 | $234.69 | | |
| PORTWHID | Port of S Whidbey GEN | 0.1094540357 | $744,246 | $744,246 | $81.46 | | |
| SCH206BOND | School 206 BOND | 0.3161759235 | $744,246 | $744,246 | $235.31 | | |
| SCH206MO | School 206 Enrichment | 0.4547169547 | $744,246 | $744,246 | $338.42 | | |
| ST | State School | 1.3035497053 | $744,246 | $744,246 | $970.16 | | |
| ST2 | State School Part 2 | 0.8169543533 | $744,246 | $744,246 | $608.02 | | |
| SWHIDPRBD | P & R S Whidbey BOND | 0.0152817568 | $744,246 | $744,246 | $11.37 | | |
| SWHIDPRBD2 | P & R S Whidbey BOND2 | 0.0138911264 | $744,246 | $744,246 | $10.34 | | |
| SWHIDPRMT | P & R S Whidbey GEN | 0.2053334452 | $744,246 | $744,246 | $152.82 | | |
| | Total Tax Rate: | 6.6934522006 | | | | | |
| | | | | Taxes w/Current Exemptions: | $4,981.57 | | |
| | | | | Taxes w/o Exemptions: | $4,981.57 | | |
Improvement / Building
| Improvement #1: | RESIDENTIAL | State Code: | Y | 1758.0 sqft | Value: | $204,246 |
| Bathrooms: | 1 | Bedrooms: | 3 | | Ceiling: | ACOUSTIC FURRED | Exterior Wall/Cover: | WOOD SIDING | | Floor Covering: | VINYL TILE/CARP 20-80 | Floor Structure: | WOOD W/SUBFLOOR | | Foundation: | CONCRETE | Heating: | BASEBOARD ELECTRIC | | Interior Finish: | DRYWALL PAINT | Plumbing Fixture Cnt: | 8 | | Roof Slope: | 6" IN 12" | Roof Structure/Cover: | CJ WOOD SHINGLE |
|
| | Type | Description | Class CD | Sub Class CD | Year Built | Area |
| | BAS | BASE/MAIN FLOOR | 3 | 0 | 1923 | 907.0 |
| | DWN | DOWNSTAIRS LIVING AREA | 3 | 0 | 1923 | 851.0 |
| | OWP | OPEN WOOD PORCH W/STEPS | 3 | 0 | 1923 | 565.0 |
Sketch
Property Image
Land
| 1 | 12 | SQ (00000-06000) | 0.0000 | 0.00 | 0.00 | 0.00 | 1.00 | $540,000 | $0 |
Roll Value History
| 2026 | N/A | N/A | N/A | N/A | N/A |
| 2025 | $204,246 | $540,000 | $0 | $744,246 | $744,246 |
| 2024 | $211,567 | $540,000 | $0 | $751,567 | $751,567 |
| 2023 | $214,578 | $540,000 | $0 | $754,578 | $754,578 |
| 2022 | $197,022 | $510,000 | $0 | $707,022 | $707,022 |
| 2021 | $182,321 | $425,000 | $0 | $607,321 | $607,321 |
| 2020 | $163,088 | $425,000 | $0 | $588,088 | $588,088 |
| 2019 | $113,757 | $450,000 | $0 | $563,757 | $563,757 |
| 2018 | $114,168 | $395,000 | $0 | $509,168 | $509,168 |
| 2017 | $114,747 | $395,000 | $0 | $509,747 | $509,747 |
| 2016 | $116,387 | $395,000 | $0 | $511,387 | $511,387 |
| 2015 | $117,284 | $395,000 | $0 | $512,284 | $512,284 |
| 2014 | $94,941 | $352,800 | $0 | $447,741 | $447,741 |
| 2013 | $96,602 | $352,800 | $0 | $449,402 | $449,402 |
| 2012 | $98,263 | $352,800 | $0 | $451,063 | $451,063 |
| 2011 | $99,923 | $392,000 | $0 | $491,923 | $491,923 |
| 2010 | $108,761 | $392,000 | $0 | $500,761 | $500,761 |
| 2009 | $113,683 | $425,000 | $0 | $538,683 | $538,683 |
| 2008 | $115,464 | $460,000 | $0 | $575,464 | $575,464 |
| 2007 | $117,116 | $460,000 | $0 | $577,116 | $577,116 |
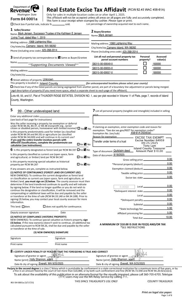
Deed and Sales History
| 1 | 06/21/2025 | WD | Warranty Deed | TURNER, HENRY E | T2SP LLC | | | $0.00 | 64053 | 4587512 |
| 2 | 06/21/2025 | WD | Warranty Deed | TURNER JR TTEE, HENRY E | TURNER, HENRY E | | | $0.00 | 64024 | 4587812 |
| 3 | 02/22/2021 | QCD | Quit Claim Deed | TURNER, HENRY E | TURNER JR TTEE, HENRY E | | | $0.00 | 47526 | 4514929 |
| 4 | 12/01/1986 | WD | Warranty Deed | PIERSON, WILLIAM E | TURNER, HENRY E | | | $80,000.00 | 63812 | 86016831 |
| 5 | 01/01/1900 | OTHER | Other - Misc. Documents | Unknown | PIERSON, WILLIAM E | | | $0.00 | 0 | 0 |
Payout Agreement
| No payout information available.. |