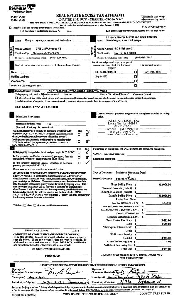
Property
Account |
| Property ID: | 370510 | Abbreviated Legal Description: | SARATOGA IN LOT 2 BLK A: BG NWCR LOT 3 BLK B SARATOGA INITIAL PT BELLS BCH WATERFRT TRS N108 .5' TPB (SWCR LOT 1 BELLS BCH) N74*W57.54' N246.19' TO ML S67*E60' ALG ML S238 .63' TPB INCL ADJ TIDES |
| Geographic ID: | S8085-00-0A002-4 | Agent Code: | |
| Type: | Real | | |
| Tax Area: | 730 - APPRAISER-S Whid Schl Dist, Special District, improved & less than 1 acre | Land Use Code | 11 |
| Open Space: | N | DFL | N |
| Historic Property: | N | Remodel Property: | N |
| Multi-Family Redevelopment: | N | | |
| Township: | | Section: | |
| Range: | |
Location |
| Address: | 3679 BELLS BEACH RD LANGLEY, WA 98260 | Mapsco: | |
| Neighborhood: | Cycle 4 | Map ID: | 880 |
| Neighborhood CD: | 4 |
Owner |
| Name: | LBBC LLC | Owner ID: | 100121 |
| Mailing Address: | 4936 CHICO WAY NW BREMERTON, WA 98312 | % Ownership: | 100.0000000000% |
| | | Exemptions: | |
Taxes and Assessment Details
Values
| (+) Improvement Homesite Value: | + | $0 | |
| (+) Improvement Non-Homesite Value: | + | $243,267 | |
| (+) Land Homesite Value: | + | $0 | |
| (+) Land Non-Homesite Value: | + | $700,550 | |
| (+) Curr Use (HS): | + | $0 | $0 |
| (+) Curr Use (NHS): | + | $0 | $0 |
| | | -------------------------- | |
| (=) Market Value: | = | $943,817 | |
| (–) Productivity Loss: | – | $0 | |
| | | -------------------------- | |
| (=) Subtotal: | = | $943,817 | |
| (+) Senior Appraised Value: | + | $0 | |
| (+) Non-Senior Appraised Value: | + | $943,817 | |
| | | -------------------------- | |
| (=) Total Appraised Value: | = | $943,817 | |
| (–) Senior Exemption Loss: | – | $0 | |
| (–) Exemption Loss: | – | $0 | |
| | | -------------------------- | |
| (=) Taxable Value: | = | $943,817 | |
Taxing Jurisdiction
| Owner: | LBBC LLC | | |
| % Ownership: | 100.0000000000% | | |
| Total Value: | $943,817 | | |
| Tax Area: | 730 - APPRAISER-S Whid Schl Dist, Special District, improved & less than 1 acre |
| CF | Conservation Futures | 0.0316035091 | $943,817 | $943,817 | $29.83 | | |
| FIRE3 | Fire & Rescue Dist #3 S Whidbey GEN | 1.2004855531 | $943,817 | $943,817 | $1,133.04 | | |
| HOBOND | Hospital BOND | 0.1910887512 | $943,817 | $943,817 | $180.35 | | |
| HOGEN | Hospital GEN | 0.3902502903 | $943,817 | $943,817 | $368.32 | | |
| CE | County Current Expense | 0.3708482477 | $943,817 | $943,817 | $350.01 | | |
| CR | County Roads | 0.4584763726 | $943,817 | $943,817 | $432.72 | | |
| ISLANDEMS | Hospital GEN (EMS) | 0.5000000000 | $943,817 | $943,817 | $471.91 | | |
| LIB | Library Sno-Isle GEN | 0.3153421757 | $943,817 | $943,817 | $297.63 | | |
| PORTWHID | Port of S Whidbey GEN | 0.1094540357 | $943,817 | $943,817 | $103.30 | | |
| SCH206BOND | School 206 BOND | 0.3161759235 | $943,817 | $943,817 | $298.41 | | |
| SCH206MO | School 206 Enrichment | 0.4547169547 | $943,817 | $943,817 | $429.17 | | |
| ST | State School | 1.3035497053 | $943,817 | $943,817 | $1,230.31 | | |
| ST2 | State School Part 2 | 0.8169543533 | $943,817 | $943,817 | $771.06 | | |
| SWHIDPRBD | P & R S Whidbey BOND | 0.0152817568 | $943,817 | $943,817 | $14.42 | | |
| SWHIDPRBD2 | P & R S Whidbey BOND2 | 0.0138911264 | $943,817 | $943,817 | $13.11 | | |
| SWHIDPRMT | P & R S Whidbey GEN | 0.2053334452 | $943,817 | $943,817 | $193.80 | | |
| | Total Tax Rate: | 6.6934522006 | | | | | |
| | | | | Taxes w/Current Exemptions: | $6,317.39 | | |
| | | | | Taxes w/o Exemptions: | $6,317.39 | | |
Improvement / Building
| Improvement #1: | RESIDENTIAL | State Code: | Y | 1940.0 sqft | Value: | $243,267 |
| Bathrooms: | 2 | Bedrooms: | 4 | | Ceiling: | DRYWALL PAINTED | Exterior Wall/Cover: | WOOD SIDING | | Floor Covering: | CARPET/VINYL 80-20 | Floor Structure: | WOOD W/SUBFLOOR | | Foundation: | CONCRETE BLOCKS | Heating: | FHA ELECTRIC | | Interior Finish: | DRYWALL PAINT | Plumbing Fixture Cnt: | 9 | | Roof Slope: | 4" IN 12" | Roof Structure/Cover: | BEAM WOOD SHAKES |
|
| | Type | Description | Class CD | Sub Class CD | Year Built | Area |
| | BAS | BASE/MAIN FLOOR | 3 | 0 | 1965 | 1940.0 |
| | UTY | STORAGE/UTILITY | 3 | 0 | 1965 | 54.0 |
| | OWP | OPEN WOOD PORCH W/STEPS | 3 | 0 | 1965 | 384.0 |
| | OWC | OPEN WOOD PORCH W/STEPS/ROOF/C | 3 | 0 | 1965 | 30.0 |
| | OWC | OPEN WOOD PORCH W/STEPS/ROOF/C | 3 | 0 | 1965 | 28.0 |
Sketch
Property Image
Land
| 1 | LB | LOW BANK | 0.0000 | 0.00 | 55.00 | 0.00 | 1.00 | $700,000 | $0 |
| 2 | 55 | TIDES | 0.0000 | 0.00 | 55.00 | 0.00 | 1.00 | $550 | $0 |
Roll Value History
| 2026 | N/A | N/A | N/A | N/A | N/A |
| 2025 | $243,267 | $700,550 | $0 | $943,817 | $943,817 |
| 2024 | $246,884 | $700,550 | $0 | $947,434 | $947,434 |
| 2023 | $250,501 | $700,550 | $0 | $951,051 | $951,051 |
| 2022 | $230,110 | $725,550 | $0 | $955,660 | $955,660 |
| 2021 | $202,933 | $600,550 | $0 | $803,483 | $803,483 |
| 2020 | $171,017 | $475,550 | $0 | $646,567 | $646,567 |
| 2019 | $130,807 | $475,550 | $0 | $606,357 | $606,357 |
| 2018 | $131,324 | $475,550 | $0 | $606,874 | $606,874 |
| 2017 | $132,359 | $475,550 | $0 | $607,909 | $607,909 |
| 2016 | $134,426 | $475,550 | $0 | $609,976 | $609,976 |
| 2015 | $136,494 | $450,550 | $0 | $587,044 | $587,044 |
| 2014 | $127,214 | $450,550 | $0 | $577,764 | $577,764 |
| 2013 | $129,424 | $378,179 | $0 | $507,603 | $507,603 |
| 2012 | $131,635 | $378,179 | $0 | $509,814 | $509,814 |
| 2011 | $133,844 | $378,179 | $0 | $512,023 | $512,023 |
| 2010 | $146,293 | $378,179 | $0 | $524,472 | $524,472 |
| 2009 | $152,894 | $445,122 | $0 | $598,016 | $598,016 |
| 2008 | $155,108 | $417,658 | $0 | $572,766 | $572,766 |
| 2007 | $157,322 | $300,551 | $0 | $457,873 | $457,873 |
Deed and Sales History
| 1 | 05/08/2006 | QCD | Quit Claim Deed | NELSON, BROOKE | NELSON, BROOKE | | | $0.00 | 62276 | 4171438 |
| 2 | 05/01/2006 | QCD | Quit Claim Deed | NELSON, BROOKE | NELSON, BROOKE | | | $0.00 | 62275 | 4171437 |
| 3 | 04/18/2006 | QCD | Quit Claim Deed | NELSON, BROOKE | LBBC LLC, | | | $0.00 | 62278 | 4171440 |
| 4 | 04/18/2006 | QCD | Quit Claim Deed | NELSON, BROOKE | NELSON, BROOKE | | | $0.00 | 62274 | 4171436 |
| 5 | 04/07/2006 | QCD | Quit Claim Deed | NELSON, BROOKE | NELSON, BROOKE | | | $0.00 | 62277 | 4171439 |
| 6 | 11/22/2002 | QCD | Quit Claim Deed | NELSON, DIANE LABOW | NELSON, BROOKE | | | $0.00 | 25203 | 442239 |
| 7 | 11/22/2002 | QCD | Quit Claim Deed | LABOW, ROBERT S | NELSON, DIANE LABOW | | | $0.00 | 25203 | 4042239 |
| 8 | 01/01/1989 | QCD | Quit Claim Deed | SHIELDS, THELMA L | LABOW, ROBERT S | | | $0.00 | 90226 | 89000819 |
| 9 | 07/01/1983 | QCD | Quit Claim Deed | LABOW, ROBERT A | SHIELDS, THELMA L | | | $0.00 | 32136 | 412869 |
| 10 | 01/01/1900 | OTHER | Other - Misc. Documents | Unknown | LABOW, ROBERT A | | | $0.00 | 0 | 0 |
Payout Agreement
| No payout information available.. |