Property
Account |
| Property ID: | 370609 | Abbreviated Legal Description: | Saratoga,s Lot 5,s Blk B;s LOT B BLC AF#4433753s |
| Geographic ID: | S8085-00-0B005-0 | Agent Code: | |
| Type: | Real | | |
| Tax Area: | 730 - APPRAISER-S Whid Schl Dist, Special District, improved & less than 1 acre | Land Use Code | 11 |
| Open Space: | N | DFL | N |
| Historic Property: | N | Remodel Property: | N |
| Multi-Family Redevelopment: | N | | |
| Township: | | Section: | |
| Range: | |
Location |
| Address: | 3794 BELLS BEACH RD LANGLEY, WA 98260 | Mapsco: | |
| Neighborhood: | Cycle 4 | Map ID: | 880 |
| Neighborhood CD: | 4 |
Owner |
| Name: | BOTHEL, JEANETTE M | Owner ID: | 290137 |
| Mailing Address: | 3794 BELLS BEACH RD LANGLEY, WA 98260 | % Ownership: | 100.0000000000% |
| | | Exemptions: | |
Taxes and Assessment Details
Values
| (+) Improvement Homesite Value: | + | $0 | |
| (+) Improvement Non-Homesite Value: | + | $301,007 | |
| (+) Land Homesite Value: | + | $0 | |
| (+) Land Non-Homesite Value: | + | $420,000 | |
| (+) Curr Use (HS): | + | $0 | $0 |
| (+) Curr Use (NHS): | + | $0 | $0 |
| | | -------------------------- | |
| (=) Market Value: | = | $721,007 | |
| (–) Productivity Loss: | – | $0 | |
| | | -------------------------- | |
| (=) Subtotal: | = | $721,007 | |
| (+) Senior Appraised Value: | + | $0 | |
| (+) Non-Senior Appraised Value: | + | $721,007 | |
| | | -------------------------- | |
| (=) Total Appraised Value: | = | $721,007 | |
| (–) Senior Exemption Loss: | – | $0 | |
| (–) Exemption Loss: | – | $0 | |
| | | -------------------------- | |
| (=) Taxable Value: | = | $721,007 | |
Taxing Jurisdiction
| Owner: | BOTHEL, JEANETTE M | | |
| % Ownership: | 100.0000000000% | | |
| Total Value: | $721,007 | | |
| Tax Area: | 730 - APPRAISER-S Whid Schl Dist, Special District, improved & less than 1 acre |
| CF | Conservation Futures | 0.0316035091 | $721,007 | $721,007 | $22.79 | | |
| FIRE3 | Fire & Rescue Dist #3 S Whidbey GEN | 1.2004855531 | $721,007 | $721,007 | $865.56 | | |
| HOBOND | Hospital BOND | 0.1910887512 | $721,007 | $721,007 | $137.78 | | |
| HOGEN | Hospital GEN | 0.3902502903 | $721,007 | $721,007 | $281.37 | | |
| CE | County Current Expense | 0.3708482477 | $721,007 | $721,007 | $267.38 | | |
| CR | County Roads | 0.4584763726 | $721,007 | $721,007 | $330.56 | | |
| ISLANDEMS | Hospital GEN (EMS) | 0.5000000000 | $721,007 | $721,007 | $360.50 | | |
| LIB | Library Sno-Isle GEN | 0.3153421757 | $721,007 | $721,007 | $227.36 | | |
| PORTWHID | Port of S Whidbey GEN | 0.1094540357 | $721,007 | $721,007 | $78.92 | | |
| SCH206BOND | School 206 BOND | 0.3161759235 | $721,007 | $721,007 | $227.97 | | |
| SCH206MO | School 206 Enrichment | 0.4547169547 | $721,007 | $721,007 | $327.85 | | |
| ST | State School | 1.3035497053 | $721,007 | $721,007 | $939.87 | | |
| ST2 | State School Part 2 | 0.8169543533 | $721,007 | $721,007 | $589.03 | | |
| SWHIDPRBD | P & R S Whidbey BOND | 0.0152817568 | $721,007 | $721,007 | $11.02 | | |
| SWHIDPRBD2 | P & R S Whidbey BOND2 | 0.0138911264 | $721,007 | $721,007 | $10.02 | | |
| SWHIDPRMT | P & R S Whidbey GEN | 0.2053334452 | $721,007 | $721,007 | $148.05 | | |
| | Total Tax Rate: | 6.6934522006 | | | | | |
| | | | | Taxes w/Current Exemptions: | $4,826.03 | | |
| | | | | Taxes w/o Exemptions: | $4,826.03 | | |
Improvement / Building
| Improvement #1: | RESIDENTIAL | State Code: | Y | 2276.0 sqft | Value: | $301,007 |
| Bathrooms: | 3 | Bedrooms: | 3 | | Ceiling: | DRYWALL PAINTED | Exterior Wall/Cover: | PLY/HARDBOARD T-111 | | Floor Covering: | HARDWOOD/CARP 20-80 | Floor Structure: | WOOD W/SUBFLOOR | | Foundation: | CONCRETE | Heating: | FHA ELECTRIC | | Interior Finish: | DRYWALL PAINT | Plumbing Fixture Cnt: | 11 | | Roof Slope: | 3" IN 12" | Roof Structure/Cover: | CJ ASPHALT |
|
| | Type | Description | Class CD | Sub Class CD | Year Built | Area |
| | BAS | BASE/MAIN FLOOR | 3 | 0 | 1999 | 780.0 |
| | UPS | UPPER STORY | 3 | 0 | 1999 | 716.0 |
| | OWP | OPEN WOOD PORCH W/STEPS | 3 | 0 | 1999 | 132.0 |
| | OWP | OPEN WOOD PORCH W/STEPS | 3 | 0 | 1999 | 164.0 |
| | OWC | OPEN WOOD PORCH W/STEPS/ROOF/C | 3 | 0 | 1999 | 180.0 |
| | DWN | DOWNSTAIRS LIVING AREA | 3 | 0 | 1999 | 780.0 |
| | oUTI | UTILITY | 3 | 0 | 1999 | 0.0 |
| | oCPD | CARPRT DRT | 3 | 0 | 1999 | 0.0 |
Sketch
Property Image
Land
| 1 | 14 | SQ (08001-12000) | 0.0000 | 0.00 | 0.00 | 0.00 | 1.00 | $420,000 | $0 |
Roll Value History
| 2026 | N/A | N/A | N/A | N/A | N/A |
| 2025 | $301,007 | $420,000 | $0 | $721,007 | $721,007 |
| 2024 | $304,568 | $420,000 | $0 | $724,568 | $724,568 |
| 2023 | $308,130 | $420,000 | $0 | $728,130 | $728,130 |
| 2022 | $282,666 | $330,000 | $0 | $612,666 | $612,666 |
| 2021 | $249,168 | $220,000 | $0 | $469,168 | $469,168 |
| 2020 | $232,279 | $220,000 | $0 | $452,279 | $452,279 |
| 2019 | $179,970 | $250,000 | $0 | $429,970 | $429,970 |
| 2018 | $180,484 | $200,000 | $0 | $380,484 | $380,484 |
| 2017 | $181,513 | $180,000 | $0 | $361,513 | $361,513 |
| 2016 | $183,573 | $150,000 | $0 | $333,573 | $333,573 |
| 2015 | $185,632 | $125,000 | $0 | $310,632 | $310,632 |
| 2014 | $182,293 | $95,000 | $0 | $277,293 | $277,293 |
| 2013 | $184,412 | $95,000 | $0 | $279,412 | $279,412 |
| 2012 | $186,529 | $106,250 | $0 | $292,779 | $292,779 |
| 2011 | $188,647 | $125,000 | $0 | $313,647 | $313,647 |
| 2010 | $194,144 | $125,000 | $0 | $319,144 | $319,144 |
| 2009 | $202,278 | $170,000 | $0 | $372,278 | $372,278 |
| 2008 | $204,629 | $252,390 | $0 | $457,019 | $457,019 |
| 2007 | $168,444 | $197,739 | $0 | $366,183 | $366,183 |
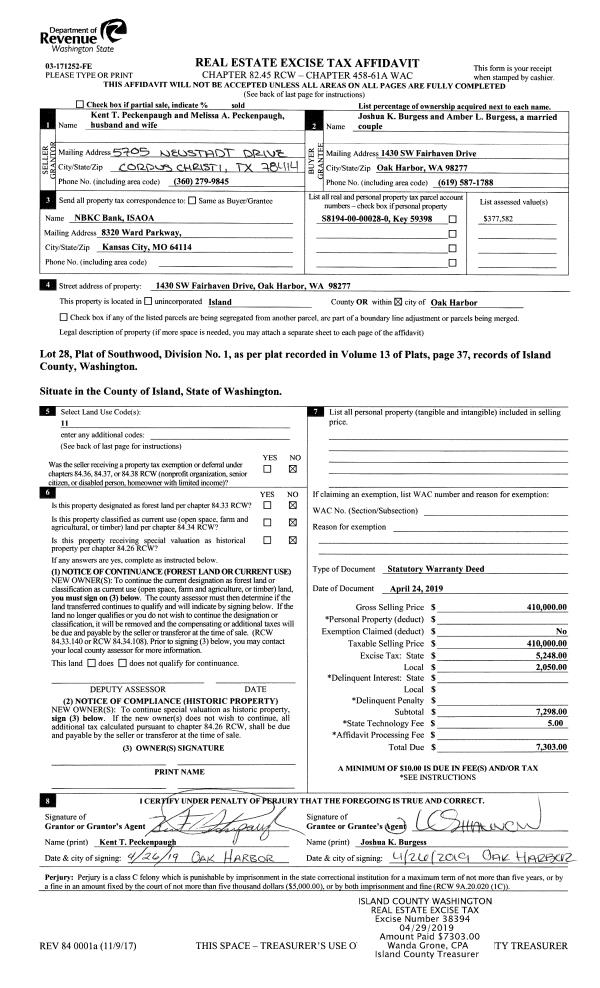
Deed and Sales History
| 1 | 05/20/2019 | WD | Warranty Deed | MORRISON, DELCY | BOTHEL, JEANETTE M | | | $535,500.00 | 38706 | 4464196 |
| 2 | 12/21/2017 | QCD | Quit Claim Deed | MORRISON, DELCY | MORRISON, DELCY | | | $0.00 | 32400 | 4436347 |
| 3 | 04/02/2002 | QCD | Quit Claim Deed | MORRISON, DELCY SCHRAM | MORRISON, DELCY | | | $0.00 | 21299 | 4016314 |
| 4 | 06/08/2000 | WD | Warranty Deed | CASE, DWAYNE D | MORRISON, DELCY SCHRAM | | | $200,000.00 | 2121 | 20010065 |
| 5 | 06/01/2000 | ESTSEPPROP | Establish Separate Property | CASE, DWAYNE D | CASE, DWAYNE D | | | $0.00 | 2120 | 20010064 |
| 6 | 05/01/1993 | WD | Warranty Deed | MOSSMAN, TIMOTHY A | CASE, DWAYNE D | | | $22,500.00 | 31837 | 93009613 |
| 7 | 11/01/1991 | WD | Warranty Deed | MOSSMAN, HOWARD M | MOSSMAN, TIMOTHY A | | | $0.00 | 14274 | 91018567 |
| 8 | 05/01/1989 | WD | Warranty Deed | RASCH, DAVID L | MOSSMAN, HOWARD M | | | $71,000.00 | 92046 | 89006961 |
| 9 | 07/01/1988 | WD | Warranty Deed | TILLSON, BARBARA K | RASCH, DAVID L | | | $59,589.00 | 82207 | 88008119 |
| 10 | 05/01/1988 | QCD | Quit Claim Deed | HALLORAN, JOHN | TILLSON, BARBARA K | | | $0.00 | 81576 | 88005955 |
| 11 | 03/01/1988 | QCD | Quit Claim Deed | TILLSON, BARBARA K | HALLORAN, JOHN | | | $0.00 | 80750 | 88002987 |
| 12 | 02/01/1987 | WD | Warranty Deed | HALLORAN, JOHN F | TILLSON, BARBARA K | | | $57,500.00 | 70349 | 87002213 |
| 13 | 06/01/1978 | OTHER | Other - Misc. Documents | Unknown | HALLORAN, JOHN F | | | $0.00 | 82993 | 3351450 |
Payout Agreement
| No payout information available.. |